日光、雨・風を防ぎバルコニーを快適に
お庭に屋内空間を拡張
セット購入でお値引きお得な価格で快適生活
快適なガレージには必須
お庭に憩いのスペースを作り出します
防犯、お家のドレスアップはこれで決まり
各取扱メーカーの会社名、ロゴ及び商品名等は各社の商標または登録商標です。
| 日 | 月 | 火 | 水 | 木 | 金 | 土 |
|---|---|---|---|---|---|---|
| 1 | 2 | 3 | 4 | 5 | 6 | 7 |
| 8 | 9 | 10 | 11 | 12 | 13 | 14 |
| 15 | 16 | 17 | 18 | 19 | 20 | 21 |
| 22 | 23 | 24 | 25 | 26 | 27 | 28 |
| 日 | 月 | 火 | 水 | 木 | 金 | 土 |
|---|---|---|---|---|---|---|
| 1 | 2 | 3 | 4 | 5 | 6 | 7 |
| 8 | 9 | 10 | 11 | 12 | 13 | 14 |
| 15 | 16 | 17 | 18 | 19 | 20 | 21 |
| 22 | 23 | 24 | 25 | 26 | 27 | 28 |
| 29 | 30 | 31 |
…休業日(現場調査・工事は一部対応)
![]()
【受付時間】9:30 - 17:30(営業日)
![]()
【受付時間】9:30 - 17:30(営業日)
オペレーションスタッフ
エクステリアプランナー有資格者の私たちにお任せください。
ショップ責任者
神(じん)
エクステリア プランナー
有資格者61名
1/3
木附
枡田
重富
吉澤
吉野
小東
池本
山田
佐藤
白崎
新西
伊野
次田
南
西山
小林
阿重田
梨田
長谷川
藤田
村上
平戸
植松
内田
久田
中島
長石
水口
榮
山崎
清水
室谷
安田
水谷
小野
酒井
一氏
神吉
日下部
山中
深田
田中
水田
西田
岡本
丸山
北
坂本
中嶋
岩野
伊藤
上中
高山
原
犬井
佐伯
谷川
塚田
松本
小林
森下
上内
島田
森
梅田
松山
山本
小西
倉地
山根
中原
河野
村上
土井
岩破
南
井上
三ツ股
小田
依藤
永禮
林
加藤
石藤
駒井
末吉
山本
芦野
樽井
野上
岡田
木村
池田
西村
藤澤
達川
奥原
那須
1/3
今週のPick Upページ
![]()
ご利用頂いたお客様の口コミ・レビューを「お客様の声」として掲載しております。
全てのご感想を掲載しておりますので、エクスショップの評判としてご参考ください。
正式お見積りと一緒に提出させて頂いております「工事概略図面」もご覧頂けます。
商品や設置場所のご検討にお役立てください。
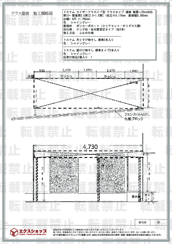
(写真No:21012922)
(テラス屋根)
| カラー | シャイングレー |
|---|---|
| サイズ | 屋根幅 6,390mm 出幅 1,785mm |
| 柱仕様 | ロング柱・柱位置固定タイプ(柱3本) |
| 屋根材 | ポリカーボネート(クリアマット・すりガラス調) |
| 工事方法 | 地域密着あんしん施工 |
現地見積もり、日にちの連絡、施工等早く対応していただき助かりました。
現場調査のご依頼を頂いてから、テラス屋根の施工が完了するまで、全てお客様のご要望に沿うことが出来ましたこと、スタッフ一同大変嬉しく存じます。フラットなポリカーボネート(クリアマット・すりガラス調)の屋根が、雨をしっかりと防ぎますので、曇り空の日でも安心してお洗濯物を干して頂けますね。ご自宅の外観を損なうことなく納まり、大変嬉しく思います。これからも、お客様のご期待を裏切らないよう精進して参りますので、また機会がございましたら、是非エクスショップをご利用して頂きますよう、宜しくお願い致します。
当サイトは以下のセキュリティ機能や保護認定等を備えています。安心してお申し込みください
当サイトはSSL暗号化に対応しています。入力した個人情報は暗号化して送られますので、安心してご利用ください。
当社はJADMAの正会員です。同協会は法律で位置づけられた団体で、消費者の利益保護と業界の健全な発展の為に活動しています。
こちらの工事に使用しているエクステリア
![]()
スピーネ F型 テラスタイプ 単体

工事費・税込
86,100円〜
総合平均評価(星5つ評価)
4.8
商品レビュー数
627件
LIXILの新テラス屋根スピーネ。見た目もスッキリ、モダンなシンプル住宅に最適。広い地域に対応ができる積雪〜20cmタイプです。定番の吊り下げの物干しから壁付けの物干しまで洗濯物干し場に最適なテラスです。
この商品の詳細へ
無料お見積り・現場調査・ご注文もこちら
この商品のレビュー
商品レビュー627件

東京都 府中市 K.S.様
見栄えがとても良い。造りもしっかりしている。

福岡県 福岡市 W.J.様
作業が丁寧で声かけもしていただいてすごく助かりました。

長野県 須坂市 T.A.様
積雪20cm対応の割には、縦柱が太くで丈夫だと思います。

大阪府 箕面市 H.R.様
自宅の色に合わせ選びました。 馴染んでいて良かったです。

京都府 京都市 M.T.様
すっきりしたデザインで、光もよく入り満足してます

埼玉県 鴻巣市 I.N.様
雨風が防げて自転車も停めることができるので非常に満足してます。

東京都 西東京市 T.K.様
自在桁にも、出来ることと出来ないことがありました。

埼玉県 越谷市 Y.Y.様
また、他の施工はお願いしたいと思っています。

大阪府 枚方市 N.T.様
まだ実際に利用していないので満足度は不明ですが、希望通りに施工していただけました。

静岡県 掛川市 T.M.様
フェンスとの色合いもよく、自転車小屋として外観、機能とも、とても満足しています。

茨城県 石岡市 U.T.様
出来れば、もっと屋根部分を長くすればよかったかなと思いました。

茨城県 那珂市 H.T.様
大変きれいに設置されたので満足しています。耐久性や他の人の評判はもう少し時間がたたないとわかりません。 私の住んでいる茨城県は積雪20センチになることはないので、大丈夫です。

大阪府 摂津市 N.K.様
思っていた通りにはならなかったが設置したことには満足している。

静岡県 藤枝市 H.I.様
サイズ(間口・出幅)が豊富で柱タイプ・屋根材が選べる為、敷地にあったものが選べた。

兵庫県 神戸市 H.K.様
ロング柱仕様で柱をホワイト色、屋根材をクリアマットすることで、明るく、圧迫感の少ないスペースになり、大変満足しています。

兵庫県 神戸市 H.K.様
ロング柱仕様で柱をホワイト色、屋根材をクリアマットすることで、明るく、圧迫感の少ないスペースになり、大変満足しています。

岡山県 津山市 O.K.様
スッキリしたデザインで色も良かったです。 プロヴァンス風の家と調和するかどうか不安でしたが、違和感なく仕上がりました。

千葉県 流山市 O.H.様
外から、見ると出幅が小さいなと思いましたが、リビングから見ると、そんなことなかったです。

愛知県 豊田市 K.S.様
テラス下で洗濯物を干しましたが、直射日光は当たりませんが、程よく光を通すのですぐに乾きます。
関連するお客様の声

5つ星のうち5
千葉県O.H. 様回答日:2023年6月
お洗濯物が大雨にあたってしまったことが、たたありました。又、お天気を気にして、買い物から急いで帰ったりと、大変でした。何年も前からテラス屋根がひがんでした。工事の次の日が偶然にも、雨でした。外を見ながら、嬉しくて、付けて良かったと、実感しました。

5つ星のうち5
岡山県O.K. 様回答日:2023年6月
屋外に自転車置き場や物置がなく、唯一屋根のある場所がウッドデッキだったので、デッキの上に自転車や荷物を置いていたため、家の表が雑然としていました。家の裏の少しのスペースにテラス屋根をつけていただき、自転車や子供の屋外用のおもちゃを置けるようにしたので、ウッドデッキも片付いてとても快適になりました。

5つ星のうち5
兵庫県H.K. 様回答日:2023年6月
隣家に間のスペースを駐輪場と収納を兼ねるスペースを設けたかったのが購入のきっかけです。広い屋根付きスペースとなり、駐輪以外に大型器具の収納が可能になりました。さらにサイドパネルをつけることで、プライバシーをしっかり確保できました。丁寧な作業できれいに仕上げていただき、ありがとうございました。

5つ星のうち5
広島県S.Y. 様回答日:2022年9月
商品を購入したきっかけは、自転車を置いたり、洗濯物が干せるスペースの軒が欲しいと思っていたからです。軒を設置後、雨を気にせず過ごせる点(上記に挙げた事について)が快適になりました。工事に至るまでのメールの対応や、また工事して下さった方々の対応が丁寧でした。

5つ星のうち5
愛知県O.H. 様回答日:2022年8月
買ったのはテラスですが、駐輪場代わりに使用する予定です。今までは幼児用の自転車を玄関土間に置いており玄関が狭く、自転車もサイズアップの時期になり室内には入り切らない為に依頼を致しました。設置して頂いた事で屋外に自転車が置けるようになり、子供達も嬉しそうです。

5つ星のうち4
埼玉県H.A. 様回答日:2025年9月
前々からテラス屋根を付けたくて検討してました。1社見積もりを取ったのですが、高すぎた為エクスショップさんにお見積もりをお願いしました。設置前と比べて、雨がかからず見た目も良くなり大満足です。最初、ネットでのやり取りに不安がありましたが対応も早く、納得するまでご対応いただき良かったです。

5つ星のうち5
福岡県I.Y. 様回答日:2025年8月
家をフルリノベーションしたのですが、家の形が独特なので玄関から軒までの高さがあり、玄関に庇をつけると変になりそうだったので庇のない玄関だったのですが、ちょうど西向きの玄関なので夏は西陽が厳しく、雨の日は、玄関の中まで振り込んでくるようなこともあり、今回のプレーンルーフに一目惚れし、決定しました。まだ2日目ですが明らかに玄関の暑さも緩和されました。雨の日の様子はまだ分かりませんが、見た目も思っていた以上に素敵になり家全体が締まった感じでとてもカッコいいです。いろいろ悩みましたがとてもよかったです。そしてエクスショップさんから派遣していただいた業者さんもとても丁寧でいろいろ確認しながら施工していただいて西陽があたる暑い中の作業にも関わらず迅速丁寧な作業に感謝の思いです。この度は本当にありがとうございました。また機会があったらよろしくお願いします。

5つ星のうち5
栃木県H.S. 様回答日:2025年4月
ある事情で2年前に止めた工事を完遂させた。ウッドデッキ全体と通路をほぼ全体を覆うことにより、夏場の暑さ対策並びに自転車置き場の確保を狙い目とした。仕事の品質、コスト対応力に優れていると感じ、引き合いしたがなかなかのものでした。作業をする方も勤勉で対応も良かった。総合的に満点以上で十二分に満足でした。
関連するブログ記事
関連するよくあるご質問
TOEXの樹の木テラスの取り扱いはありますか?
【商品カテゴリ >テラス屋根】(ご質問No.67)
タカショーのJ/EUポーチ(独立タイプ)の取り扱いはありますか?
【商品カテゴリ >テラス屋根】(ご質問No.166)
人工石貼りのガーデンテラスの取り扱いはありますか?
【商品カテゴリ >テラス屋根】(ご質問No.235)
プレシオステラス R型 テラスタイプ 単体に前面スクリーンをつけることはできますでしょうか?
【商品カテゴリ >テラス屋根】(ご質問No.334)
柱奥行移動タイプにする場合、柱から屋根先が何センチくらい出っ張るようになるのでしょうか。
【商品カテゴリ >テラス屋根】(ご質問No.567)
はじめまして。二階建て住宅に住んでおります。一階のテラス屋根が一部破損してしまったので、修繕を考えております。
【商品カテゴリ >テラス屋根】(ご質問No.624)
敷地に合わせて切詰め加工できますか?
【商品カテゴリ >テラス屋根】(ご質問No.735)
柱固定仕様と出幅自在桁・柱奥行移動仕様の違いはどんなものですか?
【商品カテゴリ >テラス屋根】(ご質問No.736)
物干しの金額は見積に含まれますか?他にどんなオプションがあるのか教えてください。
【商品カテゴリ >テラス屋根】(ご質問No.737)
テラス屋根の取り付け見積とその他の製品について相談したく思います。
場所は総社市です。宜しくお願いします。
【商品カテゴリ >テラス屋根】(ご質問No.942)


















