日光、雨・風を防ぎバルコニーを快適に
お庭に屋内空間を拡張
セット購入でお値引きお得な価格で快適生活
快適なガレージには必須
お庭に憩いのスペースを作り出します
防犯、お家のドレスアップはこれで決まり
各取扱メーカーの会社名、ロゴ及び商品名等は各社の商標または登録商標です。
| 日 | 月 | 火 | 水 | 木 | 金 | 土 |
|---|---|---|---|---|---|---|
| 1 | 2 | 3 | 4 | 5 | 6 | |
| 7 | 8 | 9 | 10 | 11 | 12 | 13 |
| 14 | 15 | 16 | 17 | 18 | 19 | 20 |
| 21 | 22 | 23 | 24 | 25 | 26 | 27 |
| 28 | 29 | 30 | 31 |
| 日 | 月 | 火 | 水 | 木 | 金 | 土 |
|---|---|---|---|---|---|---|
| 1 | 2 | 3 | ||||
| 4 | 5 | 6 | 7 | 8 | 9 | 10 |
| 11 | 12 | 13 | 14 | 15 | 16 | 17 |
| 18 | 19 | 20 | 21 | 22 | 23 | 24 |
| 25 | 26 | 27 | 28 | 29 | 30 | 31 |
…休業日(現場調査・工事は一部対応)
![]()
【受付時間】9:30 - 17:30(営業日)
![]()
【受付時間】9:30 - 17:30(営業日)
オペレーションスタッフ
エクステリアプランナー有資格者の私たちにお任せください。
ショップ責任者
神(じん)
エクステリア プランナー
有資格者61名
1/3
木附
枡田
重富
吉澤
吉野
小東
池本
山田
佐藤
白崎
新西
伊野
次田
浅川
南
西山
小林
梨田
長谷川
藤田
阿重田
村上
植松
内田
久田
小野
平戸
中島
長石
水口
榮
山崎
清水
室谷
安田
水谷
酒井
神吉
日下部
山中
深田
田中
水田
西田
一氏
岡本
北
坂本
中嶋
岩野
伊藤
上中
高山
竹本
犬井
佐伯
谷川
原
丸山
塚田
松本
上内
島田
森
梅田
松山
山本
小林
倉地
山根
中原
河野
村上
土井
岩破
南
井上
三ツ股
小田
依藤
永禮
林
加藤
石藤
駒井
末吉
山本
芦野
樽井
野上
岡田
木村
池田
西村
藤澤
達川
奥原
那須
小西
森下
1/3
今週のPick Upページ
![]()
ご利用頂いたお客様の口コミ・レビューを「お客様の声」として掲載しております。
全てのご感想を掲載しておりますので、エクスショップの評判としてご参考ください。
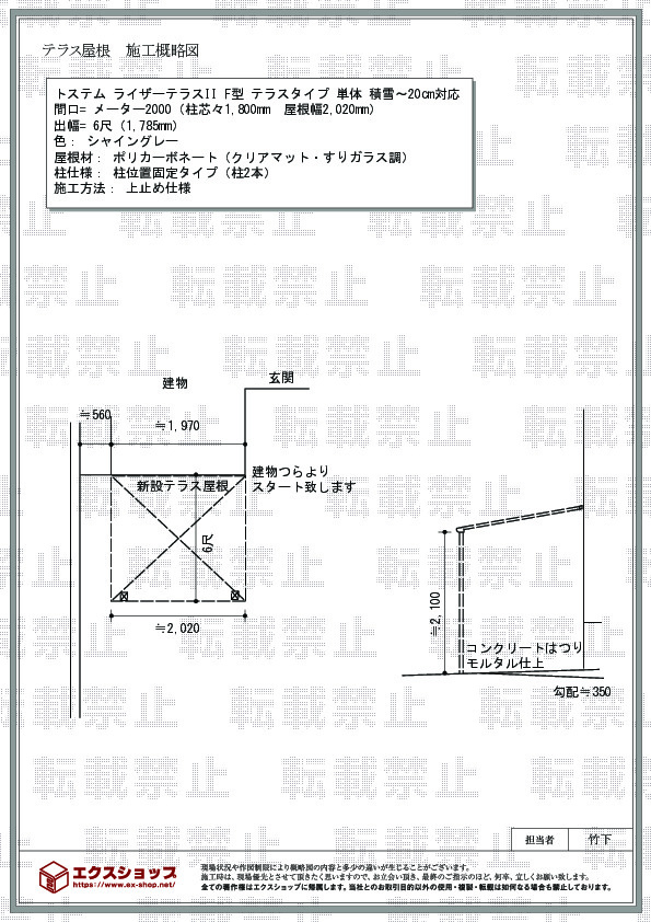
正式お見積りと一緒に提出させて頂いております「工事概略図面」もご覧頂けます。
商品や設置場所のご検討にお役立てください。
(写真No:21622323)
(テラス屋根)
| カラー | シャイングレー |
|---|---|
| サイズ | 屋根幅 2,020mm 出幅 1,785mm |
| 柱仕様 | 柱位置固定タイプ(柱2本) |
| 屋根材 | ポリカーボネート(クリアマット・すりガラス調) |
| 工事方法 | メーカー責任施工 |
申し込んでからや打ち合わせの時もきちんと連絡下さり、細かい要望まで聞いて下さったりと丁寧な対応だったので私は満足しています!!
この度は、エクスショップをご利用くださいまして、誠に有り難うございます。弊社はネット販売ならではの低価格に加え、迅速・丁寧な対応を日々心掛けておりますので、このようなお褒めのお言葉を頂くのは一番の喜びでございます。今後も、お客様にご満足して頂けるエクスショップを目指して努めて参りますので、また機会がございましたら、ぜひエクスショップにご用命くださいますよう、宜しくお願い致します。
当サイトは以下のセキュリティ機能や保護認定等を備えています。安心してお申し込みください
当サイトは256ビットSSL暗号化に対応しています。入力した個人情報は暗号化して送られますので、安心してご利用ください。
当社はJADMAの正会員です。同協会は法律で位置づけられた団体で、消費者の利益保護と業界の健全な発展の為に活動しています。
こちらの工事に使用しているエクステリア
![]()
スピーネ F型 テラスタイプ 単体

工事費・税込
86,100円〜
総合平均評価(星5つ評価)
4.79
商品レビュー数
611件
LIXILの新テラス屋根スピーネ。見た目もスッキリ、モダンなシンプル住宅に最適。広い地域に対応ができる積雪〜20cmタイプです。定番の吊り下げの物干しから壁付けの物干しまで洗濯物干し場に最適なテラスです。
この商品の詳細へ
無料お見積り・現場調査・ご注文もこちら
この商品のレビュー
商品レビュー611件

福岡県 福岡市 W.J.様
作業が丁寧で声かけもしていただいてすごく助かりました。

大阪府 箕面市 H.R.様
自宅の色に合わせ選びました。 馴染んでいて良かったです。

京都府 京都市 M.T.様
すっきりしたデザインで、光もよく入り満足してます

埼玉県 鴻巣市 I.N.様
雨風が防げて自転車も停めることができるので非常に満足してます。

東京都 西東京市 T.K.様
自在桁にも、出来ることと出来ないことがありました。

埼玉県 越谷市 Y.Y.様
また、他の施工はお願いしたいと思っています。

大阪府 枚方市 N.T.様
まだ実際に利用していないので満足度は不明ですが、希望通りに施工していただけました。

静岡県 掛川市 T.M.様
フェンスとの色合いもよく、自転車小屋として外観、機能とも、とても満足しています。

茨城県 石岡市 U.T.様
出来れば、もっと屋根部分を長くすればよかったかなと思いました。

茨城県 那珂市 H.T.様
大変きれいに設置されたので満足しています。耐久性や他の人の評判はもう少し時間がたたないとわかりません。 私の住んでいる茨城県は積雪20センチになることはないので、大丈夫です。

大阪府 摂津市 N.K.様
思っていた通りにはならなかったが設置したことには満足している。

静岡県 藤枝市 H.I.様
サイズ(間口・出幅)が豊富で柱タイプ・屋根材が選べる為、敷地にあったものが選べた。

神奈川県 相模原市 M.H.様
まだ施工完了したばかりで、使用感はわかりませんが、見た目はしっかりした作りなのに圧迫感はなく、家の外壁とマッチしてとても良いです。 自転車カバーのつけ外しが面倒でしたが、今後は楽になりそうです。

神奈川県 川崎市 K.C.様
物干しとしても使う為、屋根は必要だったので良かった。

茨城県 結城市 I.S.様
設置時に大きいサイズを購入しましたが、施工時に切ってサイズを合わせてもらいました。

兵庫県 明石市 H.H.様
テラス屋根の機能は十分あると思いますが、構造的に少し華奢な印象があります。まだ台風を経験していないので、あくまで印象ですが。

愛知県 豊田市 S.M.様
5メートルにしたことで洗濯物以外にも利用できて長くしてよかったです。
関連するお客様の声

5つ星のうち5
広島県M.K. 様回答日:2012年4月
細かくメールで連絡下さりとても対応が良かったです。工事も手際良く早くしてくださってとても助かりました。

5つ星のうち5
東京都T.Y. 様回答日:2013年3月
施工していただいた方が、とても丁寧で、こちらの要望に快く答えていただけとても満足のいく仕上がりでした。

5つ星のうち4
福岡県K.M. 様回答日:2014年9月
ありがとうごさいました。要望を沢山聞き入れて貰い、本当に助かりました(^^*)丁寧な、対応ありがとうごさいました。

5つ星のうち5
兵庫県Y.R. 様回答日:2013年3月
対応は迅速で丁寧でした。変更もしてちゃんと要望を聞いてくれました。他のも見積もりをお願いして丁寧に対応して頂きました。工事が半日ぐらいかかって出来上がりは良くて満足しています。本当にありがとうございました。また利用したいと思います。

5つ星のうち4
東京都M.H. 様回答日:2021年4月
見積もり段階で色々な要望を聞いて対応していただいた。施工業者も丁寧で、工事前にしっかりした打ち合わせを行えた。

5つ星のうち5
愛知県M.S. 様回答日:2021年5月
仕様の打ち合わせの時も、丁寧に説明してもらい、施工時の対応も大変満足しています。雨の日でも窓を開けることができるので、とても快適です。ありがとうございました。

5つ星のうち4
静岡県I.A. 様回答日:2012年4月
地元の施工業者さんが対応してくれたため安心してお任せすることができました。私の希望を聞いて見積もりの時からわかりやすく説明してくださり実際もイメージ通りだったと思います。

5つ星のうち5
広島県S.Y. 様回答日:2022年9月
商品を購入したきっかけは、自転車を置いたり、洗濯物が干せるスペースの軒が欲しいと思っていたからです。軒を設置後、雨を気にせず過ごせる点(上記に挙げた事について)が快適になりました。工事に至るまでのメールの対応や、また工事して下さった方々の対応が丁寧でした。

5つ星のうち5
愛知県O.H. 様回答日:2022年8月
買ったのはテラスですが、駐輪場代わりに使用する予定です。今までは幼児用の自転車を玄関土間に置いており玄関が狭く、自転車もサイズアップの時期になり室内には入り切らない為に依頼を致しました。設置して頂いた事で屋外に自転車が置けるようになり、子供達も嬉しそうです。

5つ星のうち5
神奈川県Y.A. 様回答日:2022年2月
家の外構屋に見積依頼をしたら、高かったので比較のためネットから依頼したところ対応も早く、予算内で済んだので本当に助かりました。自転車が雨にさらされているのが気がかりで、合うように屋根を付けていただいたおかげで快適になりました。ありがとうございます。

5つ星のうち5
千葉県S.T. 様回答日:2022年1月
きっかけは、植木を片付け空いたスペースに自転車を置いており、以前より狭いながらも屋根を設置したいと考えておりました。設置前と比較して側面パネルも付けた事で、雨風が避けられ自転車の劣化が進みづらくなったと思います。また御社のサイトは様々なエクステリアが用意されていて非常に見やすく設置例の画像も豊富で、再度ほかの部分で今後も利用したいと思いました。

5つ星のうち5
大阪府O.H. 様回答日:2021年8月
希望としては 屋根だけではなくて 吐き出し口から 外へ 出て物干しができるように作りたかったのだけれど 寸法が合わないらしくて できなかったのが残念です。 自分で 踏み台 を買ってきたり 枠を付けたり 工夫しないといけないのでまだ 快適となったとは言えませんが 楽にはなると思います
関連するブログ記事
関連するよくあるご質問
TOEXの樹の木テラスの取り扱いはありますか?
【商品カテゴリ >テラス屋根】(ご質問No.67)
タカショーのJ/EUポーチ(独立タイプ)の取り扱いはありますか?
【商品カテゴリ >テラス屋根】(ご質問No.166)
人工石貼りのガーデンテラスの取り扱いはありますか?
【商品カテゴリ >テラス屋根】(ご質問No.235)
プレシオステラス R型 テラスタイプ 単体に前面スクリーンをつけることはできますでしょうか?
【商品カテゴリ >テラス屋根】(ご質問No.334)
柱奥行移動タイプにする場合、柱から屋根先が何センチくらい出っ張るようになるのでしょうか。
【商品カテゴリ >テラス屋根】(ご質問No.567)
はじめまして。二階建て住宅に住んでおります。一階のテラス屋根が一部破損してしまったので、修繕を考えております。
【商品カテゴリ >テラス屋根】(ご質問No.624)
敷地に合わせて切詰め加工できますか?
【商品カテゴリ >テラス屋根】(ご質問No.735)
柱固定仕様と出幅自在桁・柱奥行移動仕様の違いはどんなものですか?
【商品カテゴリ >テラス屋根】(ご質問No.736)
物干しの金額は見積に含まれますか?他にどんなオプションがあるのか教えてください。
【商品カテゴリ >テラス屋根】(ご質問No.737)
テラス屋根の取り付け見積とその他の製品について相談したく思います。
場所は総社市です。宜しくお願いします。
【商品カテゴリ >テラス屋根】(ご質問No.942)


















