各取扱メーカーの会社名、ロゴ及び商品名等は各社の商標または登録商標です。
| 日 | 月 | 火 | 水 | 木 | 金 | 土 |
|---|---|---|---|---|---|---|
| 1 | ||||||
| 2 | 3 | 4 | 5 | 6 | 7 | 8 |
| 9 | 10 | 11 | 12 | 13 | 14 | 15 |
| 16 | 17 | 18 | 19 | 20 | 21 | 22 |
| 23 | 24 | 25 | 26 | 27 | 28 | 29 |
| 30 |
| 日 | 月 | 火 | 水 | 木 | 金 | 土 |
|---|---|---|---|---|---|---|
| 1 | 2 | 3 | 4 | 5 | 6 | |
| 7 | 8 | 9 | 10 | 11 | 12 | 13 |
| 14 | 15 | 16 | 17 | 18 | 19 | 20 |
| 21 | 22 | 23 | 24 | 25 | 26 | 27 |
| 28 | 29 | 30 | 31 |
…休業日(現場調査・工事は一部対応)
![]()
【受付時間】9:30 - 17:30(営業日)
![]()
【受付時間】9:30 - 17:30(営業日)
オペレーションスタッフ
エクステリアプランナー有資格者の私たちにお任せください。
ショップ責任者
神(じん)
エクステリア プランナー
有資格者61名
1/3
1/3
今週のPick Upページ
![]()
ご利用頂いたお客様の口コミ・レビューを「お客様の声」として掲載しております。
全てのご感想を掲載しておりますので、エクスショップの評判としてご参考ください。
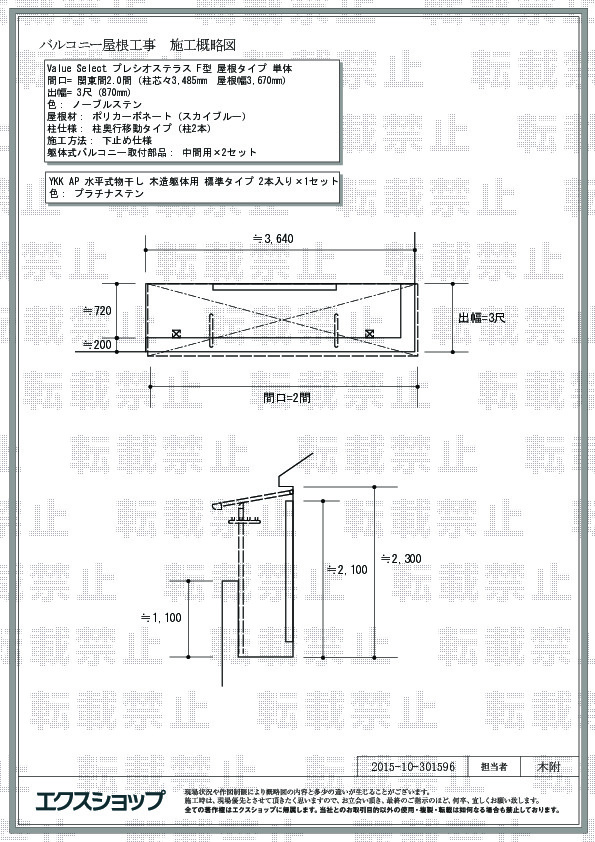
正式お見積りと一緒に提出させて頂いております「工事概略図面」もご覧頂けます。
商品や設置場所のご検討にお役立てください。
(写真No:30159631)
(バルコニー・ベランダ屋根)
| カラー | ノーブルステン |
|---|---|
| サイズ | 屋根幅 3,670mm 出幅 870mm |
| 柱仕様 | 柱奥行移動タイプ(柱2本) |
| 屋根材 | ポリカーボネート(スカイブルー) |
| 工事方法 | 地域密着あんしん施工 |
バルコニーが狭く雨の日や洗濯物が多い日は干す場所に苦労しましたが、一階に物干し、二階バルコニーに屋根を設置してもらい、干す場所に困らなくなりました。現場調査の方と施工者が同じだったので安心でした。商品説明や工事の説明も分かりやすく、納得のいく商品選びが出来ました。工事は1日がかりでしたが、外に電源があれば外出出OKだったので助かりました。施工終了後に2階バルコニーからハシゴで降りる際、竿を体に引っかけて2階から1階に落とされた時は肝を冷やしました。幸い人もいなく家や車にも当たらず良かったですが、在宅の時は家の中を通って頂いても良いので安全第一でお願いしたいです。
プレシオステラス F型と一階への物干しの施工をご依頼頂きまして、誠に有り難うございます。お洗濯物の干場が増えて、早速、お喜び頂いておりますこと、大変嬉しく存じます。ポリカーボネート(スカイブルー)の屋根材は、紫外線も遮りますので、お洗濯物の色褪せなども軽減されるものと存じます。施工終了後の施工担当者の対応に、至らない点がございましたこと、深くお詫び申し上げます。お客様のお言葉を真摯に受け止め、提携施工店にも事実関係を確認し、安全に十分注意を払うよう、指導して参りたいと存じます。ご迷惑とご心配をお掛け致しましたこと、重ねてお詫び申し上げます。
当サイトは以下のセキュリティ機能や保護認定等を備えています。安心してお申し込みください
当サイトは256ビットSSL暗号化に対応しています。入力した個人情報は暗号化して送られますので、安心してご利用ください。
当社はJADMAの正会員です。同協会は法律で位置づけられた団体で、消費者の利益保護と業界の健全な発展の為に活動しています。
こちらの工事に使用しているエクステリア
![]()
プレシオステラスU F型 屋根タイプ 単体

工事費・税込
67,300円〜
商品レビュー数
101件
プレシオステラスU F型 屋根タイプ 単体はエクスショップオリジナルブランドのフラット屋根タイプのバルコニー屋根です。間口は3サイズ、出幅は5サイズから最適なものを選択いただけます。屋根は平らなフラット仕様です。
この商品の詳細へ
無料お見積り・現場調査・ご注文もこちら