日光、雨・風を防ぎバルコニーを快適に
お庭に屋内空間を拡張
セット購入でお値引きお得な価格で快適生活
快適なガレージには必須
お庭に憩いのスペースを作り出します
防犯、お家のドレスアップはこれで決まり
各取扱メーカーの会社名、ロゴ及び商品名等は各社の商標または登録商標です。
| 日 | 月 | 火 | 水 | 木 | 金 | 土 |
|---|---|---|---|---|---|---|
| 1 | 2 | 3 | 4 | 5 | 6 | |
| 7 | 8 | 9 | 10 | 11 | 12 | 13 |
| 14 | 15 | 16 | 17 | 18 | 19 | 20 |
| 21 | 22 | 23 | 24 | 25 | 26 | 27 |
| 28 | 29 | 30 | 31 |
| 日 | 月 | 火 | 水 | 木 | 金 | 土 |
|---|---|---|---|---|---|---|
| 1 | 2 | 3 | ||||
| 4 | 5 | 6 | 7 | 8 | 9 | 10 |
| 11 | 12 | 13 | 14 | 15 | 16 | 17 |
| 18 | 19 | 20 | 21 | 22 | 23 | 24 |
| 25 | 26 | 27 | 28 | 29 | 30 | 31 |
…休業日(現場調査・工事は一部対応)
![]()
【受付時間】9:30 - 17:30(営業日)
![]()
【受付時間】9:30 - 17:30(営業日)
オペレーションスタッフ
エクステリアプランナー有資格者の私たちにお任せください。
ショップ責任者
神(じん)
エクステリア プランナー
有資格者61名
1/3
木附
枡田
重富
吉澤
吉野
小東
池本
山田
佐藤
白崎
新西
伊野
次田
浅川
南
西山
小林
梨田
長谷川
藤田
阿重田
村上
植松
内田
久田
小野
平戸
中島
長石
水口
榮
山崎
清水
室谷
安田
水谷
酒井
神吉
日下部
山中
深田
田中
水田
西田
一氏
岡本
北
坂本
中嶋
岩野
伊藤
上中
高山
竹本
犬井
佐伯
谷川
原
丸山
塚田
松本
上内
島田
森
梅田
松山
山本
小林
倉地
山根
中原
河野
村上
土井
岩破
南
井上
三ツ股
小田
依藤
永禮
林
加藤
石藤
駒井
末吉
山本
芦野
樽井
野上
岡田
木村
池田
西村
藤澤
達川
奥原
那須
小西
森下
1/3
今週のPick Upページ
![]()
ご利用頂いたお客様の口コミ・レビューを「お客様の声」として掲載しております。
全てのご感想を掲載しておりますので、エクスショップの評判としてご参考ください。
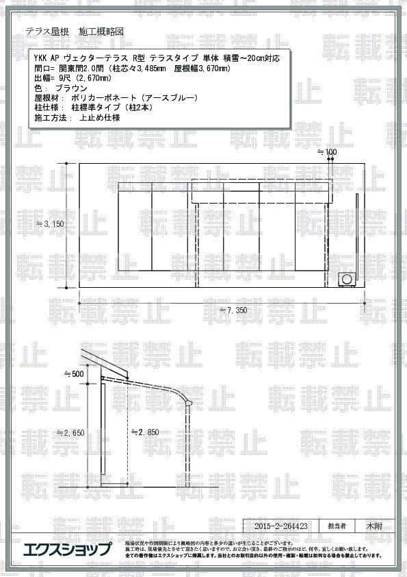
正式お見積りと一緒に提出させて頂いております「工事概略図面」もご覧頂けます。
商品や設置場所のご検討にお役立てください。
(写真No:26442322)
(テラス屋根)
| カラー | ブラウン |
|---|---|
| サイズ | 屋根幅 3,670mm 出幅 2,670mm |
| 柱仕様 | 柱標準タイプ(柱2本) |
| 屋根材 | ポリカーボネート(アースブルー) |
| 工事方法 | 地域密着あんしん施工 |
廊下の戸を開けると雨が吹き込んできていました。夏の雨の日など,窓を開けたままで外を眺めていたいと思っていました。便利なのは、雨の日でも外に出て庭を眺められることです。
この度はヴェクターテラス R型 テラスタイプの施工をご依頼頂き、誠に有り難うございました。広々としたお庭に大きなテラス屋根が設置され、素敵なお仕上がりでございますね。雨の日でもお庭に出ることが出来るようになり、有効にご活用頂けるものと存じます。これからもお客様に更にご満足頂けるショップを目指し、エクスショップは日々精進して参ります。また機会がございましたら、是非弊社にご用命くださいますよう、宜しくお願い申し上げます。
当サイトは以下のセキュリティ機能や保護認定等を備えています。安心してお申し込みください
当サイトは256ビットSSL暗号化に対応しています。入力した個人情報は暗号化して送られますので、安心してご利用ください。
当社はJADMAの正会員です。同協会は法律で位置づけられた団体で、消費者の利益保護と業界の健全な発展の為に活動しています。
こちらの工事に使用しているエクステリア
![]()
ソラリア R型 テラスタイプ 単体

工事費・税込
65,800円〜
総合平均評価(星5つ評価)
4.81
商品レビュー数
995件
実用的で快適な空間を作り出すソラリアのテラス屋根。雨の日でも安心な洗濯物干し場の屋根として大活躍してくれます。物干しや目隠しパネルなど使い勝手を重視したオプションも豊富に揃っています。
この商品の詳細へ
無料お見積り・現場調査・ご注文もこちら
この商品のレビュー
商品レビュー995件

福岡県 福岡市 T.H.様
・かなり満足なテラス屋根が完成しました。 これから急な雨でも洗濯物が濡れる心配もありません。 また、夏も暑い日差しから多少解放されることを期待しています。 ・色もイメージ通りのもので完成しました。

岡山県 岡山市 I.Y.様
支柱がウッドデッキのサイズにきちんとおさまり、目論見通りに

兵庫県 たつの市 D.D.様
プラチナステン、ソラリアR、見た目が良くて、満足している!

神奈川県 川崎市 Y.K.様
思ったよりもコンパクトでしたが、見た目も気に入りました。 小雨程度なら外でも干せそうなので、活躍を期待しています。

愛媛県 西条市 Y.S.様
高さや幅など最適なサイズを選ぶことができた。

滋賀県 大津市 T.K.様
雨除けだけでなく日除にもなるのでありがたいです。

宮城県 仙台市 O.N.様
今までリビングに直射日光が当たっていたのでそれが大分軽減されたので今度の夏のエアコンの効き目が楽しみです。

東京都 武蔵村山市 N.N.様
できる限り広い屋根のテラスにしてもらったので 自転車2台があまり濡れず、掃き出しのガラス戸も濡れず 大変気にいっています。

香川県 高松市 K.K.様
ベランダ側からテラスをつけていただき、スペースを広くとることができた。

静岡県 富士市 I.C.様
テラスができたことで、テラス下に洗濯を干すことができるようになりました。 急な雨にもあわてることなく、雨の日も窓を開けて換気ができるのでよかったです。
関連するお客様の声

5つ星のうち5
埼玉県F.K. 様回答日:2018年10月
庇のない掃き出し窓であったため、雨の日に窓を上げることができなかった。雨の日も愛犬が外に出ることができ、便利になった。

5つ星のうち5
大阪府O.M. 様回答日:2020年7月
現場調査にすぐ来てくださり丁寧に対応していただけた。設置前は雨の日には窓を開けることができなかったが、設置後は雨の日でも窓を開けることができ、少々の雨では雨が吹き込むこともなく快適に過ごせている。外に出てバーベキューをする機会も増えた。

5つ星のうち5
熊本県O.K. 様回答日:2017年2月
これまでは、雨の日は洗濯物を外に干すことができませんでしたが、テラス屋根設置後は雨の日でも外に干すことが出来るようになりました。また、突然の雨などの時にも洗濯物が濡れる心配が無くなりました。

5つ星のうち5
京都府K.S. 様回答日:2020年8月
屋根がなく、雨が降ると外に出れませんでしたが屋根がついたことにより雨でも外に出ることができるようになりました。

5つ星のうち5
愛知県K.T. 様回答日:2017年10月
雨に濡れる事もなく、日差しも防ぐことができ快適に作業ができます。雨の日でも窓を開けたままにでき、閉め忘れも気にしなくて良くなりました。

5つ星のうち4
福岡県O.M. 様回答日:2020年7月
もともとテラス屋根がなく、雨の日は窓を閉めざるおえない状況であった。設置後は、窓を開けたままでも雨が降り込む事もなく、快適に過ごすことができるようになった。

5つ星のうち4
福岡県O.M. 様回答日:2020年7月
もともとテラス屋根がなく、雨の日は窓を閉めざるおえない状況であった。設置後は、窓を開けたままでも雨が降り込む事もなく、快適に過ごすことができるようになった。

5つ星のうち4
千葉県A.Y. 様回答日:2019年8月
雨風をしのぐために探していたら、安かったので頼むことにしました。着けたことによって雨の日でも濡れずに外に出れるようになった。

5つ星のうち4
千葉県A.Y. 様回答日:2019年8月
雨風をしのぐために探していたら、安かったので頼むことにしました。着けたことによって雨の日でも濡れずに外に出れるようになった。

5つ星のうち5
茨城県O.N. 様回答日:2020年4月
以前からテラス屋根がほしかった。 設置してすぐに雨が降ったが、屋根がある事で外の確認もやりやすくなり、今までは雨が降ると犬を外に出せなかったが、これから雨が降っても外に出せるので大変快適になった。
関連するブログ記事
関連するよくあるご質問
TOEXの樹の木テラスの取り扱いはありますか?
【商品カテゴリ >テラス屋根】(ご質問No.67)
タカショーのJ/EUポーチ(独立タイプ)の取り扱いはありますか?
【商品カテゴリ >テラス屋根】(ご質問No.166)
人工石貼りのガーデンテラスの取り扱いはありますか?
【商品カテゴリ >テラス屋根】(ご質問No.235)
プレシオステラス R型 テラスタイプ 単体に前面スクリーンをつけることはできますでしょうか?
【商品カテゴリ >テラス屋根】(ご質問No.334)
柱奥行移動タイプにする場合、柱から屋根先が何センチくらい出っ張るようになるのでしょうか。
【商品カテゴリ >テラス屋根】(ご質問No.567)
はじめまして。二階建て住宅に住んでおります。一階のテラス屋根が一部破損してしまったので、修繕を考えております。
【商品カテゴリ >テラス屋根】(ご質問No.624)
敷地に合わせて切詰め加工できますか?
【商品カテゴリ >テラス屋根】(ご質問No.735)
柱固定仕様と出幅自在桁・柱奥行移動仕様の違いはどんなものですか?
【商品カテゴリ >テラス屋根】(ご質問No.736)
物干しの金額は見積に含まれますか?他にどんなオプションがあるのか教えてください。
【商品カテゴリ >テラス屋根】(ご質問No.737)
テラス屋根の取り付け見積とその他の製品について相談したく思います。
場所は総社市です。宜しくお願いします。
【商品カテゴリ >テラス屋根】(ご質問No.942)


















