日光、雨・風を防ぎバルコニーを快適に
お庭に屋内空間を拡張
セット購入でお値引きお得な価格で快適生活
快適なガレージには必須
お庭に憩いのスペースを作り出します
防犯、お家のドレスアップはこれで決まり
各取扱メーカーの会社名、ロゴ及び商品名等は各社の商標または登録商標です。
日 | 月 | 火 | 水 | 木 | 金 | 土 |
---|---|---|---|---|---|---|
1 | 2 | 3 | 4 | |||
5 | 6 | 7 | 8 | 9 | 10 | 11 |
12 | 13 | 14 | 15 | 16 | 17 | 18 |
19 | 20 | 21 | 22 | 23 | 24 | 25 |
26 | 27 | 28 | 29 | 30 | 31 |
日 | 月 | 火 | 水 | 木 | 金 | 土 |
---|---|---|---|---|---|---|
1 | ||||||
2 | 3 | 4 | 5 | 6 | 7 | 8 |
9 | 10 | 11 | 12 | 13 | 14 | 15 |
16 | 17 | 18 | 19 | 20 | 21 | 22 |
23 | 24 | 25 | 26 | 27 | 28 | 29 |
30 |
…休業日(現場調査・工事は一部対応)
【受付時間】9:30 - 17:30(営業日)
【受付時間】9:30 - 17:30(営業日)
オペレーションスタッフ
エクステリアプランナー有資格者の私たちにお任せください。
ショップ責任者
神(じん)
エクステリア プランナー
有資格者61名
1/3
木附
枡田
重富
吉澤
吉野
小東
池本
山田
佐藤
白崎
新西
伊野
次田
浅川
南
西山
小林
梨田
長谷川
藤田
阿重田
村上
植松
内田
久田
小野
平戸
中島
長石
水口
榮
山崎
清水
室谷
安田
水谷
酒井
神吉
日下部
山中
深田
田中
板持
西田
一氏
水田
岡本
坂本
中嶋
岩野
伊藤
上中
高山
竹本
犬井
佐伯
谷川
原
丸山
北
塚田
松本
島田
森
梅田
松山
山本
小林
倉地
山根
中原
河野
村上
土井
岩破
南
井上
三ツ股
小田
依藤
永禮
林
加藤
石藤
駒井
末吉
山本
芦野
樽井
野上
岡田
木村
池田
西村
藤澤
達川
奥原
那須
上内
森下
小西
1/3
今週のPick Upページ
ご利用頂いたお客様の口コミ・レビューを「お客様の声」として掲載しております。
全てのご感想を掲載しておりますので、エクスショップの評判としてご参考ください。
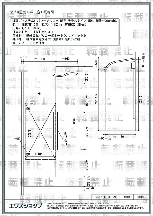
正式お見積りと一緒に提出させて頂いております「工事概略図面」もご覧頂けます。
商品や設置場所のご検討にお役立てください。
(写真No:33022934)
(テラス屋根)
カラー | ホワイト |
---|---|
サイズ | 屋根幅 2,320mm 出幅 1,185mm |
柱仕様 | 柱位置固定タイプ(柱2本)※ロング柱 |
屋根材 | 熱線吸収ポリカーボネート(クリアマットS) |
工事方法 | 地域密着あんしん施工 |
バルコニー屋根がないので設置、突然の雨に助かっている。二階のシャッターは雨風、防犯的にも助かっている。
この度は弊社で多数商品の施工のご依頼を頂きまして、誠に有り難うございます。ホワイトカラーで統一されたエクステリアは、建物との一体感がございますね。テラス屋根やバルコニー屋根は部屋への強い日差しを和らげながらもクリアマットの屋根が明るさはそのままに快適にお過ごし頂けるものと存じます。防犯効果の高い窓シャッターと面格子が完成した事で安心出来る環境になりますと幸いでございます。これからもお客様の快適な暮らしを作るお手伝いが出来るよう、スタッフ一同努力をして参りますので、また機会がございましたら、是非エクスショップにご用命頂きますよう、宜しくお願い申し上げます。
当サイトは以下のセキュリティ機能や保護認定等を備えています。安心してお申し込みください
当サイトは256ビットSSL暗号化に対応しています。入力した個人情報は暗号化して送られますので、安心してご利用ください。
当社はJADMAの正会員です。同協会は法律で位置づけられた団体で、消費者の利益保護と業界の健全な発展の為に活動しています。
こちらの工事に使用しているエクステリア
テラスVS R型 テラスタイプ 単体
工事費・税込
137,800円〜
総合平均評価(星5つ評価)
4.67
商品レビュー数
3件
この商品の詳細へ
無料お見積り・現場調査・ご注文もこちら
関連するお客様の声
5つ星のうち5
熊本県O.Y. 様回答日:2018年4月
以前は物置を設置していただきました。今回も信頼できるこちらのサイトを利用することを決めました。今回はテラス囲いとテラス屋根を設置していただきました。雨の日でも洗濯物が乾きます。以前は洗濯物をリビングで乾かしていましたのでとてもストレスでしたが今はとても快適になりストレスもなくなりました。ありがとうございました。
5つ星のうち5
鹿児島県A.S. 様回答日:2015年11月
きっかけは、ウッドデッキ部分と玄関前に屋根が欲しく設置、屋根を付けた事により、リビングへの光が暗くなるのでは?と心配もありましたが、まったく問題なく採光によりリビングも明るく快適です!!屋根が付いたことで、外からの窓の目隠しも必要なく、カーテンも開けたままでも大丈夫なくらい開放感がアップしました!!
5つ星のうち5
鹿児島県G.O. 様回答日:2014年9月
ネット注文で不安でしたが、電話対応もよく、施工業者の方が手際よく現場確認をされ施工方法も納得いく内容でしたので設置をお願いしました。商品の運搬も前日にして下さり安心しました。施工も細かい所まで丁寧に仕上げられこちらの要望にも対応して頂き助かりました。仕上がりにも満足しています。
5つ星のうち5
佐賀県J.Y. 様回答日:2013年4月
ネットでの買い物は不安が先立ち価格も小さな物では無いので多少の心配はありましたが当ショップ担当者の親切な応対で安心出来ました。工事担当者も現場調査時点から丁寧な説明でしたし職人さんたちも温和で丁寧な仕事をしてくれました。他人にも自信を持って紹介できます。
5つ星のうち5
静岡県T.H. 様回答日:2012年7月
今回で2回目です。前回はいそいでなく、対応も価格も満足でした。今回は屋根のため、最大限の対応をしていただいたのでしょうけれど、今の半分くらいのスピードだったらよいのにと思います。でもそれも含めて☆5つです、商品満足です、ありがとうございました
5つ星のうち5
神奈川県F.K. 様回答日:2025年4月
飼い犬の散歩で使用したタオルなどの一時的の外干し(基本的には室内干し)の際にこれまでは雨が降ると屋根がないところでタオルを洗ったり干していたので、なにかしら雨が防げるものが欲しかった。施工後まだ雨は降ってませんがイメージどおりに施工してもらいよかったです。
5つ星のうち5
福島県M.N. 様回答日:2025年3月
ネットで知り、扱う商品も多彩でコスパも良いので決めました。大体、設置完了の状態を想像してましたが、想像通りで決まった敷地内で上手く収まり大変満足し、信頼出来る業者さんでした!又、エクスショップの営業担当様の相談、見積りなど迅速、丁寧な対応が決めてですね(^^♪
5つ星のうち5
兵庫県K.T. 様回答日:2025年3月
ネットで見ました。実際にはそんなに安くはできないだろうと思っていましたが、複数社に見積したなかで圧倒的に安かったです。安さ故に仕上がりについて心配していましたが、全く心配無用でした。美しくしっかり仕上げていただきました。掃き出し窓から外に洗濯を干しにいく段差が、年齢が上がると厳しくなるだろうと思っており、いつかはウッドデッキ(+屋根+物干し)をと思っていました。今では、段差の心配なく、外に干しに行け、半透明屋根つきですので急な雨の心配もなくなりました。施工は能率よくすすめてもらい、途中でてすりの追加をお願いしましたが、工期ちゅうに対応してもらえました。
関連するブログ記事
関連するよくあるご質問
TOEXの樹の木テラスの取り扱いはありますか?
【商品カテゴリ >テラス屋根】(ご質問No.67)
タカショーのJ/EUポーチ(独立タイプ)の取り扱いはありますか?
【商品カテゴリ >テラス屋根】(ご質問No.166)
人工石貼りのガーデンテラスの取り扱いはありますか?
【商品カテゴリ >テラス屋根】(ご質問No.235)
プレシオステラス R型 テラスタイプ 単体に前面スクリーンをつけることはできますでしょうか?
【商品カテゴリ >テラス屋根】(ご質問No.334)
柱奥行移動タイプにする場合、柱から屋根先が何センチくらい出っ張るようになるのでしょうか。
【商品カテゴリ >テラス屋根】(ご質問No.567)
はじめまして。二階建て住宅に住んでおります。一階のテラス屋根が一部破損してしまったので、修繕を考えております。
【商品カテゴリ >テラス屋根】(ご質問No.624)
敷地に合わせて切詰め加工できますか?
【商品カテゴリ >テラス屋根】(ご質問No.735)
柱固定仕様と出幅自在桁・柱奥行移動仕様の違いはどんなものですか?
【商品カテゴリ >テラス屋根】(ご質問No.736)
物干しの金額は見積に含まれますか?他にどんなオプションがあるのか教えてください。
【商品カテゴリ >テラス屋根】(ご質問No.737)
テラス屋根の取り付け見積とその他の製品について相談したく思います。
場所は総社市です。宜しくお願いします。
【商品カテゴリ >テラス屋根】(ご質問No.942)