日光、雨・風を防ぎバルコニーを快適に
お庭に屋内空間を拡張
セット購入でお値引きお得な価格で快適生活
快適なガレージには必須
お庭に憩いのスペースを作り出します
防犯、お家のドレスアップはこれで決まり
各取扱メーカーの会社名、ロゴ及び商品名等は各社の商標または登録商標です。
| 日 | 月 | 火 | 水 | 木 | 金 | 土 |
|---|---|---|---|---|---|---|
| 1 | 2 | 3 | 4 | 5 | 6 | 7 |
| 8 | 9 | 10 | 11 | 12 | 13 | 14 |
| 15 | 16 | 17 | 18 | 19 | 20 | 21 |
| 22 | 23 | 24 | 25 | 26 | 27 | 28 |
| 日 | 月 | 火 | 水 | 木 | 金 | 土 |
|---|---|---|---|---|---|---|
| 1 | 2 | 3 | 4 | 5 | 6 | 7 |
| 8 | 9 | 10 | 11 | 12 | 13 | 14 |
| 15 | 16 | 17 | 18 | 19 | 20 | 21 |
| 22 | 23 | 24 | 25 | 26 | 27 | 28 |
| 29 | 30 | 31 |
…休業日(現場調査・工事は一部対応)
![]()
【受付時間】9:30 - 17:30(営業日)
![]()
【受付時間】9:30 - 17:30(営業日)
オペレーションスタッフ
エクステリアプランナー有資格者の私たちにお任せください。
ショップ責任者
神(じん)
エクステリア プランナー
有資格者61名
1/3
木附
枡田
重富
吉澤
吉野
小東
池本
山田
佐藤
白崎
新西
伊野
次田
南
西山
小林
阿重田
梨田
長谷川
藤田
村上
平戸
植松
内田
久田
中島
長石
水口
榮
山崎
清水
室谷
安田
水谷
小野
酒井
一氏
神吉
日下部
山中
深田
田中
水田
西田
岡本
丸山
北
坂本
中嶋
岩野
伊藤
上中
高山
原
犬井
佐伯
谷川
塚田
松本
小林
森下
上内
島田
森
梅田
松山
山本
小西
倉地
山根
中原
河野
村上
土井
岩破
南
井上
三ツ股
小田
依藤
永禮
林
加藤
石藤
駒井
末吉
山本
芦野
樽井
野上
岡田
木村
池田
西村
藤澤
達川
奥原
那須
1/3
今週のPick Upページ
![]()
ご利用頂いたお客様の口コミ・レビューを「お客様の声」として掲載しております。
全てのご感想を掲載しておりますので、エクスショップの評判としてご参考ください。
正式お見積りと一緒に提出させて頂いております「工事概略図面」もご覧頂けます。
商品や設置場所のご検討にお役立てください。
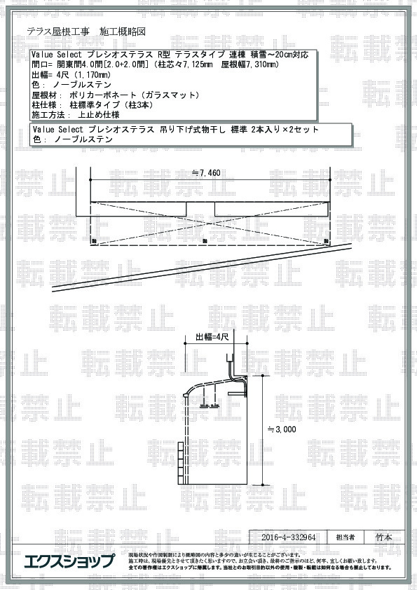
(写真No:33296434)
(テラス屋根)
| カラー | ノーブルステン |
|---|---|
| サイズ | 屋根幅 7,310mm 出幅 1,170mm |
| 柱仕様 | 柱標準タイプ(柱3本) |
| 屋根材 | ポリカーボネート(ガラスマット) |
| 工事方法 | 地域密着あんしん施工 |
上で洗濯物を干すのが大変なのと狭かったので大変便利になりました。
プレシオステラス R型の施工をご依頼頂きまして、誠に有り難うございます。日当たりが良く、雨を遮るテラスは、お洗濯物を干すのに最適でございますね。お洗濯の負担が減り、家事の効率アップに繋がりましたら幸いでございます。これからも、エクスショップをご利用頂いた、全てのお客様に、安心と満足をお届けすることが出来ますよう、日々精進して参りたいと存じます。またのご利用を、心よりお待ち申し上げております。
当サイトは以下のセキュリティ機能や保護認定等を備えています。安心してお申し込みください
当サイトはSSL暗号化に対応しています。入力した個人情報は暗号化して送られますので、安心してご利用ください。
当社はJADMAの正会員です。同協会は法律で位置づけられた団体で、消費者の利益保護と業界の健全な発展の為に活動しています。
こちらの工事に使用しているエクステリア
![]()
プレシオステラスU R型 テラスタイプ 単体

工事費・税込
58,787円〜
総合平均評価(星5つ評価)
4.68
商品レビュー数
205件
プレシオステラスU R型 テラスタイプ 単体はエクスショップオリジナルブランドのアール屋根仕様のテラス屋根です。商品カラーはシンプルで外観と馴染みやすいノーブルステン、グレースブラウン、チャコールブラックの3種類をご用意しています。
この商品の詳細へ
無料お見積り・現場調査・ご注文もこちら
この商品のレビュー
商品レビュー205件

兵庫県 加西市 S.S.様
メーカー品であるため、とてもいいものだと思います。お値段もすばらしい価格だと考えます。

千葉県 千葉市 H.M.様
コストパフォーマンスに優れ、必要にして十分だと思います。

愛媛県 東温市 N.T.様
今回、他の業者とも比較し、工費含め安価であったことで、テラス(物干し:オプション)及びデッキを注文しました。設置場所を自身で計測し、ネットでの注文ということで仕上がりにはかなり不安を感じていました。担当者の方とメールや電話で質問など何度かやり取りしましたが対応やレスポンスもよくしていただきました。工事においても丁寧に対応していただき満足いけるものが完成したと感謝しております。今後、カーポートなどの設置も考えており、次回もお願いしようと思います。

埼玉県 鴻巣市 I.S.様
素材がしっかりしていて、R屋根のお洒落なデザインと熱線遮断ポリカーボネート(スカイブルーマット調)が気に入っています。妻は、見積が大変安かったので、かなり品祖なテラス屋根をイメージしていたようで、驚いていましたし素直に喜んでいました。

栃木県 宇都宮市 I.H.様
満足。 しいて言うなら取り付け高さがもう少し低くてもよかった。

福岡県 福岡市 I.K.様
メーカー品のPB商品との説明をうけましたので、そういった点でも安心でした。

島根県 出雲市 T.A.様
予想していた以上にしっかりした作りでした。

神奈川県 横浜市 U.Y.様
夏場にならないと評価はできないものの、仕上がりは満足。屋根の色が思っていた以上に濃いことに驚いたが、やはり熱射軽減のためにはこの程度は必要なのかも知れない。 ホワイトの在庫がなかったことが残念。

熊本県 菊池郡大津町 F.K.様
何かと値上がりしているこのご時世にしては、値段と製品性能は満足できると思います。

東京都 多摩市 K.Y.様
見た目は他ブランドと変わらず、安価で購入できて満足です。

東京都 多摩市 K.Y.様
見た目は他ブランドと変わらず、安価で購入できて満足です。

三重県 津市 U.J.様
違和感のない色合いで日を遮ることなく屋根を取り付けることが出来ました。

静岡県 浜松市 K.S.様
商品については満足しています。 ご近所の方も見に来られどちらでやったのか?聞かれました。お値段も満足で良かった事を伝えました。

東京都 足立区 W.M.様
お見積もりの際に合うものをすすめていただきました。ピッタリで気に入ってます。

福岡県 筑後市 E.K.様
外で作業する際、雨を気にせずできるようになりました
関連するお客様の声

5つ星のうち5
埼玉県I.S. 様回答日:2024年1月
今回、カーポートとテラス屋根を設置していただきました。カーポートは、車を霜(雨・熱・紫外線など)と鳥の糞から守るため、テラス屋根は、雨の降り込みと近隣の目線対策が主な目的です。設置して2日目ですが、目的は達せられたものと満足感に浸っているところです。2つの工事を同時に発注できたのも、エクスショップ特価のお陰だと感謝しています。

5つ星のうち5
愛媛県N.T. 様回答日:2024年1月
暗く感じていた庭がゴージャスになったように思います。また、庭への行き来が増え有効活用できていると感じています。ネットに掲載している商品については、もう少し詳細な情報や取扱説明書などもあればより分かりよいと思います。また、注文画面は、今回のキャンペーンなどわかりにくい部分もあり改善の余地があろうかと思います。

5つ星のうち5
熊本県F.K. 様回答日:2023年4月
以前に玄関前に雨よけにと思いテラス屋根を取り付けて頂きましたが、思いのほか設置して良かったです。今回は妻とペットの住む部屋に差し込む陽射し対策として日よけシェードは不十分なので、日差し熱の対策としてもテラス屋根は適しており圧迫感もなく快適に過ごせると思います。

5つ星のうち4
神奈川県U.Y. 様回答日:2023年4月
以前からあるガーデンアーチとの組み合わせ両開き門扉に左右差が生じてしまい閉めにくくなってしまった。新設の門扉はデザイン、色調も周囲と調和し、機能的になった。又、南側は夏の陽射しが強いためシェードでしのいできたが、掃き出し窓の外側に熱射を緩和するテラス屋根を設け、合わせて縁台を設置したことで快適さがずいぶんと増した。

5つ星のうち5
宮城県S.M. 様回答日:2023年1月
安心して施工を頼めたことと、金銭的にもリーズナブルでありました。この施工によりカーポートから玄関まで天候に左右されずに家へ入れます。利用の感想は、さまざまな連絡事についてメールのみに固執せず、電話での対応もして頂き、忙しい身においては大変助かりました。

5つ星のうち4
埼玉県H.A. 様回答日:2025年9月
前々からテラス屋根を付けたくて検討してました。1社見積もりを取ったのですが、高すぎた為エクスショップさんにお見積もりをお願いしました。設置前と比べて、雨がかからず見た目も良くなり大満足です。最初、ネットでのやり取りに不安がありましたが対応も早く、納得するまでご対応いただき良かったです。

5つ星のうち5
福岡県I.Y. 様回答日:2025年8月
家をフルリノベーションしたのですが、家の形が独特なので玄関から軒までの高さがあり、玄関に庇をつけると変になりそうだったので庇のない玄関だったのですが、ちょうど西向きの玄関なので夏は西陽が厳しく、雨の日は、玄関の中まで振り込んでくるようなこともあり、今回のプレーンルーフに一目惚れし、決定しました。まだ2日目ですが明らかに玄関の暑さも緩和されました。雨の日の様子はまだ分かりませんが、見た目も思っていた以上に素敵になり家全体が締まった感じでとてもカッコいいです。いろいろ悩みましたがとてもよかったです。そしてエクスショップさんから派遣していただいた業者さんもとても丁寧でいろいろ確認しながら施工していただいて西陽があたる暑い中の作業にも関わらず迅速丁寧な作業に感謝の思いです。この度は本当にありがとうございました。また機会があったらよろしくお願いします。

5つ星のうち5
栃木県H.S. 様回答日:2025年4月
ある事情で2年前に止めた工事を完遂させた。ウッドデッキ全体と通路をほぼ全体を覆うことにより、夏場の暑さ対策並びに自転車置き場の確保を狙い目とした。仕事の品質、コスト対応力に優れていると感じ、引き合いしたがなかなかのものでした。作業をする方も勤勉で対応も良かった。総合的に満点以上で十二分に満足でした。
関連するブログ記事
関連するよくあるご質問
TOEXの樹の木テラスの取り扱いはありますか?
【商品カテゴリ >テラス屋根】(ご質問No.67)
タカショーのJ/EUポーチ(独立タイプ)の取り扱いはありますか?
【商品カテゴリ >テラス屋根】(ご質問No.166)
人工石貼りのガーデンテラスの取り扱いはありますか?
【商品カテゴリ >テラス屋根】(ご質問No.235)
プレシオステラス R型 テラスタイプ 単体に前面スクリーンをつけることはできますでしょうか?
【商品カテゴリ >テラス屋根】(ご質問No.334)
柱奥行移動タイプにする場合、柱から屋根先が何センチくらい出っ張るようになるのでしょうか。
【商品カテゴリ >テラス屋根】(ご質問No.567)
はじめまして。二階建て住宅に住んでおります。一階のテラス屋根が一部破損してしまったので、修繕を考えております。
【商品カテゴリ >テラス屋根】(ご質問No.624)
敷地に合わせて切詰め加工できますか?
【商品カテゴリ >テラス屋根】(ご質問No.735)
柱固定仕様と出幅自在桁・柱奥行移動仕様の違いはどんなものですか?
【商品カテゴリ >テラス屋根】(ご質問No.736)
物干しの金額は見積に含まれますか?他にどんなオプションがあるのか教えてください。
【商品カテゴリ >テラス屋根】(ご質問No.737)
テラス屋根の取り付け見積とその他の製品について相談したく思います。
場所は総社市です。宜しくお願いします。
【商品カテゴリ >テラス屋根】(ご質問No.942)


















