日光、雨・風を防ぎバルコニーを快適に
お庭に屋内空間を拡張
セット購入でお値引きお得な価格で快適生活
快適なガレージには必須
お庭に憩いのスペースを作り出します
防犯、お家のドレスアップはこれで決まり
各取扱メーカーの会社名、ロゴ及び商品名等は各社の商標または登録商標です。
| 日 | 月 | 火 | 水 | 木 | 金 | 土 |
|---|---|---|---|---|---|---|
| 1 | 2 | 3 | ||||
| 4 | 5 | 6 | 7 | 8 | 9 | 10 |
| 11 | 12 | 13 | 14 | 15 | 16 | 17 |
| 18 | 19 | 20 | 21 | 22 | 23 | 24 |
| 25 | 26 | 27 | 28 | 29 | 30 | 31 |
| 日 | 月 | 火 | 水 | 木 | 金 | 土 |
|---|---|---|---|---|---|---|
| 1 | 2 | 3 | 4 | 5 | 6 | 7 |
| 8 | 9 | 10 | 11 | 12 | 13 | 14 |
| 15 | 16 | 17 | 18 | 19 | 20 | 21 |
| 22 | 23 | 24 | 25 | 26 | 27 | 28 |
…休業日(現場調査・工事は一部対応)
![]()
【受付時間】9:30 - 17:30(営業日)
![]()
【受付時間】9:30 - 17:30(営業日)
オペレーションスタッフ
エクステリアプランナー有資格者の私たちにお任せください。
ショップ責任者
神(じん)
エクステリア プランナー
有資格者61名
1/3
木附
枡田
重富
吉澤
吉野
小東
池本
山田
佐藤
白崎
新西
伊野
次田
南
西山
小林
阿重田
梨田
長谷川
藤田
村上
平戸
植松
内田
久田
中島
長石
水口
榮
山崎
清水
室谷
安田
水谷
小野
酒井
一氏
神吉
日下部
山中
深田
田中
水田
西田
岡本
丸山
北
坂本
中嶋
岩野
伊藤
上中
高山
原
犬井
佐伯
谷川
塚田
松本
小林
森下
上内
島田
森
梅田
松山
山本
小西
倉地
山根
中原
河野
村上
土井
岩破
南
井上
三ツ股
小田
依藤
永禮
林
加藤
石藤
駒井
末吉
山本
芦野
樽井
野上
岡田
木村
池田
西村
藤澤
達川
奥原
那須
1/3
今週のPick Upページ
![]()
ご利用頂いたお客様の口コミ・レビューを「お客様の声」として掲載しております。
全てのご感想を掲載しておりますので、エクスショップの評判としてご参考ください。
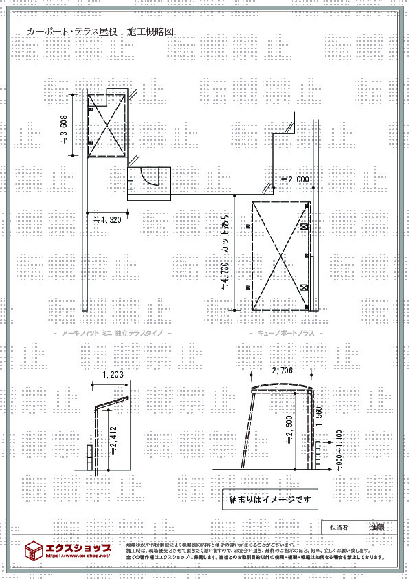
正式お見積りと一緒に提出させて頂いております「工事概略図面」もご覧頂けます。
商品や設置場所のご検討にお役立てください。
(写真No:19090311)
(テラス屋根)
| カラー | オータムブラウン |
|---|---|
| サイズ | 間口 3,608mm 出幅 1,203mm |
| 柱仕様 | ロング柱仕様(有効高 約2,400mm) |
| 屋根材 | ポリカーボネート(クリアマット・すりガラス調) |
| 工事方法 | 地域密着あんしん施工 |
思い通りのカーポートが完成し、大変満足しています。ありがとうございました。「エクスショップ」さんには大変お世話になりました。他にも見積を取っていたということもあり、施工に至るまでに日をかけてしまいましたが、対応も良く、熱心にお電話も下さり、価格も満足いくものでした。最初、まだどんなカーポートにしようかと迷っていた際に、沢山の見積依頼をしました。他社では、見積は3つまでしか出せないと断られましたが、「エクスショップ」さんは、丁寧に、また迅速にお見積りを出して下さいました。その後、取り付けたいと思うカーポートが見つかり、設置方法や、色、価格、その他いろりろ、解らない点、不安な点についてもお電話や、メールなどで親切に対応していただけました。「エクスショップ」さんに頼んでよかったです。ありがとうございました。
ご丁寧なお褒めのお言葉も頂き、誠に有り難うございます。オータムブラウンのカーポートとテラス屋根が、統一感のある、とても落ち着いた雰囲気のお仕上がりでございますね。ポリカーボネート(クリアマット・すりガラス調)の屋根材は、光を通しますが、有害な紫外線をほぼ100%カット致しますので、1年間快適にお過ごし頂けるものと存じます。顔の見えないネットショッピングではありますが、お客様にご満足して頂きたいとの思いで、日々精進しておりますので、このようなお言葉を頂き、大変光栄でございます。これからも、このようなお褒めのお言葉を励みに、さらにご満足頂けるエクスショップを目指して、努力して参りたいと存じます。また機会がございましたら、是非弊社にご用命くださいますよう、宜しくお願い致します。
当サイトは以下のセキュリティ機能や保護認定等を備えています。安心してお申し込みください
当サイトは256ビットSSL暗号化に対応しています。入力した個人情報は暗号化して送られますので、安心してご利用ください。
当社はJADMAの正会員です。同協会は法律で位置づけられた団体で、消費者の利益保護と業界の健全な発展の為に活動しています。
こちらの工事に使用しているエクステリア
![]()
フーゴF 独立テラスタイプ

工事費・税込
136,200円〜
総合平均評価(星5つ評価)
4.69
商品レビュー数
313件
躯体にネジ止めすることがない、独立タイプの新感覚ルーフのフーゴFのテラスタイプ。豊富なサイズバリエーションをご用意しています。
この商品の詳細へ
無料お見積り・現場調査・ご注文もこちら
この商品のレビュー
商品レビュー313件

神奈川県 平塚市 K.Y.様
玄関前の雨除けが完璧にでき、非常に満足している。 上記目隠しフェンスと一緒に施工していただいたが、丁寧で仕上げもよく、大変満足している。

奈良県 橿原市 O.H.様
隣のお家から丸見えで、開けるとこが出来なかったカーテンを開けるとこが出来ました。日陰で干す洗濯物も干せて、とても嬉しいです。

東京都 国分寺市 K.M.様
思ったよりしっかりしていることと、チープさがない。 スタイリッシュな感じがよかった。

佐賀県 佐賀市 H.K.様
支柱も思ったより大きくなく、見た目も満足してます。

東京都 国分寺市 Y.M.様
駐輪スペースをを使いやすくなり、満足しています。

神奈川県 鎌倉市 S.T.様
購入前、屋根の傾斜が4度とほぼ水平に近い為、大雨の時、雨水が建物側に逆流しないか心配しましたが、杞憂に過ぎませんでした。デザインは昔のテラス屋根と比べると非常に洗練されていて良いです。

東京都 足立区 U.M.様
期待通りの商品でしっかりして満足しております。

大阪府 箕面市 Y.T.様
とても満足しています。 色味も綺麗で、見た目が良い感じです。 また支柱がしっかりしているので安定性も問題なさそう。

熊本県 熊本市 S.N.様
家の外壁に穴を開けたくないので、独立タイプでお願いしました。隙間材もつけたので家との隙間は気になりません。子供が小さいうちは外遊びをすることも多いので、日陰になって助かります。今回は予算の関係で床面はまだ何もしていませんが、タイル敷きにする予定なので理想の庭に一歩近づきました。

千葉県 流山市 T.Y.様
デザインもスタイリッシュで、気に入っています。

三重県 鈴鹿市 U.A.様
設置前は、屋根テラスを付けたときの違和感が心配でしたが、つけてもらったらすごくなじんでいてよかったです。

愛媛県 西条市 F.T.様
雨除けになり、しっかり設置していただき満足です。

静岡県 浜松市 M.C.様
独立型で柱が2本なので、家の壁側のエアコンの室外機の位置も気にしなくて良かったですし、柱も太くてしっかりしています。

大阪府 池田市 T.M.様
アルミサッシと同じ色を提案していただいたのですが、一体感があって満足しました。

兵庫県 川西市 A.M.様
・テラスに濡れても良いお洒落な椅子・テーブルを置き、雰囲気が向上した。 ・バーベキューや庭時間が楽しめる ・今まで、雨が窓ガラスに付き窓掃除をよく行っていましたが、 雨粒がつかなくなって嬉しい ・熱吸収の屋根にしたので、カーネーションやアジサイを東側に置き、窓から見られ なかったが、お洒落な器でカバーして南の庭に置き目を楽しませることができる

千葉県 八街市 T.K.様
壁に穴を開けないので良いです。 頑丈なところが良いです。 設置してよかったです。 もう少しだけ傾斜をつけて雨樋に雨が集まるようにしてもいいかもしれません。

東京都 多摩市 I.R.様
これで大切な自転車も守られるので、安心です

大分県 玖珠郡九重町 S.T.様
既存のウッドデッキの上にテラス屋根をつけました。これからは雨でも窓を開けることが出来ますし、洗濯物を安心して干せます。今までは、鳥のふんに悩まされました。
関連するお客様の声

5つ星のうち5
福岡県I.K. 様回答日:2019年4月
洗濯物を雨が降るとすぐ取り込まなくてはいけなかったので、前々からカーポートと、庇をつけたかった。洗濯物が雨でも外に干せるようになりました。自転車通勤なので、濡れずに自転車に乗る準備ができるようになりました。エクスショップ さんを初めて利用させて頂きました。メールでのやり取りで不安はありましたが、分からない事や知りたい事を丁寧に返信して頂きました。施工会社さんも仕事が丁寧で親切でした。とても立派なカーポートとテラスが付きました。ありがとうございました。また何かあれば利用したいと思います。

5つ星のうち5
熊本県Y.S. 様回答日:2014年9月
ネットでの注文なのでどうなるか不安でしたが、メールと電話で丁寧に対応して頂き、現場の施工業者さんも見積、工事とも丁寧にしてくださいました。価格も安く、とても満足してます。ありがとうございました。

5つ星のうち4
神奈川県S.T. 様回答日:2024年4月
以前、フェンスの購入施工で利用しており安心感があった為、再度の利用です。大きめテラス屋根に合わせてテラスの土間を拡張工事も?して頂き、その際、既存のテラスタイルの品番が分かれば、同じタイルで合わせられるという提案も有り、お陰様で元の土間との境目も?分からない位綺麗に仕上がり、満足です。

5つ星のうち5
熊本県S.N. 様回答日:2023年7月
今回南向きのリビングの掃き出し窓に面してテラス屋根を設置してもらいましたが、室内は夏の日差しもやや穏やかになり、外では日差しを抑えられるので子供が小さいうちは外遊びがしやすくなりそうです。今回施工いただいたのがちょうど梅雨真っ只中でしたので、雨が続く中晴れ間を見て丁寧に作業してもらえました。

5つ星のうち5
大阪府Y.T. 様回答日:2023年7月
隣に新築が建ち、視線を遮るついでに元々検討していた自転車の屋根を設置することにしました。現地調査時にも色々要望を聞いてくださり、理想の形で施工していただきました。また細かな質問などにもショップの方が迅速に対応していただいたのも非常に良かったです。

5つ星のうち5
東京都I.H. 様回答日:2022年3月
以前は簡易式自転車置き場を設置しておりましたが劣化してしまい、テラステラス屋根を自転車置き場の屋根に検討していました。狭い設置場所に独立式タイプを選びました。打合せ及び施工当日にもお互い確認して、要望通りの対応をしていただき、満足しております。また機会あればお願いいたします。

5つ星のうち5
徳島県N.Y. 様回答日:2022年3月
以前から手動巻き取り式のシェード屋根を設置していましたが、風の強い日には使い物にならず、穴もあき、また部屋も暗く、設置を考えてはいました。価格が変わるとの事で、購入するなら今かな、と思いあちこちで、見積もり比較をしていました。設置工事はしていただいたばかりなので、これからの使用ですが、担当者の方の応対も施工も丁寧でした。

5つ星のうち5
福岡県I.Y. 様回答日:2025年8月
家をフルリノベーションしたのですが、家の形が独特なので玄関から軒までの高さがあり、玄関に庇をつけると変になりそうだったので庇のない玄関だったのですが、ちょうど西向きの玄関なので夏は西陽が厳しく、雨の日は、玄関の中まで振り込んでくるようなこともあり、今回のプレーンルーフに一目惚れし、決定しました。まだ2日目ですが明らかに玄関の暑さも緩和されました。雨の日の様子はまだ分かりませんが、見た目も思っていた以上に素敵になり家全体が締まった感じでとてもカッコいいです。いろいろ悩みましたがとてもよかったです。そしてエクスショップさんから派遣していただいた業者さんもとても丁寧でいろいろ確認しながら施工していただいて西陽があたる暑い中の作業にも関わらず迅速丁寧な作業に感謝の思いです。この度は本当にありがとうございました。また機会があったらよろしくお願いします。

5つ星のうち5
福岡県T.H. 様回答日:2025年4月
・商品のきっかけとなったのは、色々なサイトでテラス屋根を調べていたらエクスショップにたどり着きました。かなり、値段が安かったので、少し疑いながら見積もりをお願いしました。担当者も工事見積の方もとても親切でお願いしようと思いました。結果、今までの考えが変わり、再度他の場所も注文しました。信頼できるショップです。

5つ星のうち5
神奈川県U.H. 様回答日:2025年4月
今回、ウッドデッキとテラス屋根の施工をお願いしました。天然木のデッキが壊れて中庭への出入りが不便になったため依頼しましたが、当初予定になかったテラス屋根も思い切って追加。費用は増えましたが、出入りの利便性に加え天候対策もでき、大変満足しています。営業・施工担当の方の対応も丁寧で、安心してお任せできました。
関連するブログ記事
関連するよくあるご質問
TOEXの樹の木テラスの取り扱いはありますか?
【商品カテゴリ >テラス屋根】(ご質問No.67)
タカショーのJ/EUポーチ(独立タイプ)の取り扱いはありますか?
【商品カテゴリ >テラス屋根】(ご質問No.166)
人工石貼りのガーデンテラスの取り扱いはありますか?
【商品カテゴリ >テラス屋根】(ご質問No.235)
プレシオステラス R型 テラスタイプ 単体に前面スクリーンをつけることはできますでしょうか?
【商品カテゴリ >テラス屋根】(ご質問No.334)
柱奥行移動タイプにする場合、柱から屋根先が何センチくらい出っ張るようになるのでしょうか。
【商品カテゴリ >テラス屋根】(ご質問No.567)
はじめまして。二階建て住宅に住んでおります。一階のテラス屋根が一部破損してしまったので、修繕を考えております。
【商品カテゴリ >テラス屋根】(ご質問No.624)
敷地に合わせて切詰め加工できますか?
【商品カテゴリ >テラス屋根】(ご質問No.735)
柱固定仕様と出幅自在桁・柱奥行移動仕様の違いはどんなものですか?
【商品カテゴリ >テラス屋根】(ご質問No.736)
物干しの金額は見積に含まれますか?他にどんなオプションがあるのか教えてください。
【商品カテゴリ >テラス屋根】(ご質問No.737)
テラス屋根の取り付け見積とその他の製品について相談したく思います。
場所は総社市です。宜しくお願いします。
【商品カテゴリ >テラス屋根】(ご質問No.942)


















