各取扱メーカーの会社名、ロゴ及び商品名等は各社の商標または登録商標です。
| 日 | 月 | 火 | 水 | 木 | 金 | 土 |
|---|---|---|---|---|---|---|
| 1 | ||||||
| 2 | 3 | 4 | 5 | 6 | 7 | 8 |
| 9 | 10 | 11 | 12 | 13 | 14 | 15 |
| 16 | 17 | 18 | 19 | 20 | 21 | 22 |
| 23 | 24 | 25 | 26 | 27 | 28 | 29 |
| 30 |
| 日 | 月 | 火 | 水 | 木 | 金 | 土 |
|---|---|---|---|---|---|---|
| 1 | 2 | 3 | 4 | 5 | 6 | |
| 7 | 8 | 9 | 10 | 11 | 12 | 13 |
| 14 | 15 | 16 | 17 | 18 | 19 | 20 |
| 21 | 22 | 23 | 24 | 25 | 26 | 27 |
| 28 | 29 | 30 | 31 |
…休業日(現場調査・工事は一部対応)
![]()
【受付時間】9:30 - 17:30(営業日)
![]()
【受付時間】9:30 - 17:30(営業日)
オペレーションスタッフ
エクステリアプランナー有資格者の私たちにお任せください。
ショップ責任者
神(じん)
エクステリア プランナー
有資格者61名
1/3
1/3
今週のPick Upページ
![]()
ご利用頂いたお客様の口コミ・レビューを「お客様の声」として掲載しております。
全てのご感想を掲載しておりますので、エクスショップの評判としてご参考ください。
正式お見積りと一緒に提出させて頂いております「工事概略図面」もご覧頂けます。
商品や設置場所のご検討にお役立てください。
(写真No:20404121)
(バルコニー・ベランダ屋根)
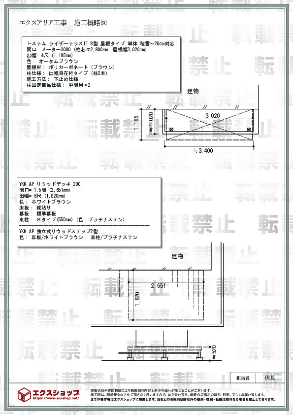
| カラー | オータムブラウン |
|---|---|
| サイズ | 屋根幅 3,020mm 出幅 1,185mm |
| 柱仕様 | 出幅自在桁タイプ(柱2本) |
| 屋根材 | ポリカーボネート(ブラウン) |
| 工事方法 | 地域密着あんしん施工 |
現場調査日の前日に確認の電話をするとの事でしたが結局電話は無く現場調査を実施した事は残念でした。施工に関しては大変丁寧に作業を実施して頂き満足です。また今後も機会があれば利用したいと思います。
この度はリウッドデッキ 200及びライザーテラスII R型 屋根タイプの施工をご依頼頂き、誠に有り難うございました。施工に『満足』とご感想をお寄せ頂き、大変光栄でございます。施工前日のご案内につきまして、対応が至らず誠に申し訳ございませんでした。顔の見えないネット販売であるからこそ、きめ細かい対応を心掛け、お客様に安心して頂くということを全スタッフに徹底して参りたいと存じます。貴重なご意見をお寄せ頂きまして、誠に有り難うございます。
当サイトは以下のセキュリティ機能や保護認定等を備えています。安心してお申し込みください
当サイトは256ビットSSL暗号化に対応しています。入力した個人情報は暗号化して送られますので、安心してご利用ください。
当社はJADMAの正会員です。同協会は法律で位置づけられた団体で、消費者の利益保護と業界の健全な発展の為に活動しています。
こちらの工事に使用しているエクステリア
![]()
スピーネ R型 屋根タイプ 単体

工事費・税込
92,200円〜
商品レビュー数
421件
LIXILの新テラス屋根スピーネ。広い地域に対応ができる積雪〜20cmタイプです。雨や雪の入り込みを防ぎ、さらに視線も遮る目隠しスクリーンも取り付けられるテラスです。
この商品の詳細へ
無料お見積り・現場調査・ご注文もこちら