日光、雨・風を防ぎバルコニーを快適に
お庭に屋内空間を拡張
セット購入でお値引きお得な価格で快適生活
快適なガレージには必須
お庭に憩いのスペースを作り出します
防犯、お家のドレスアップはこれで決まり
各取扱メーカーの会社名、ロゴ及び商品名等は各社の商標または登録商標です。
| 日 | 月 | 火 | 水 | 木 | 金 | 土 |
|---|---|---|---|---|---|---|
| 1 | 2 | 3 | 4 | 5 | 6 | |
| 7 | 8 | 9 | 10 | 11 | 12 | 13 |
| 14 | 15 | 16 | 17 | 18 | 19 | 20 |
| 21 | 22 | 23 | 24 | 25 | 26 | 27 |
| 28 | 29 | 30 | 31 |
| 日 | 月 | 火 | 水 | 木 | 金 | 土 |
|---|---|---|---|---|---|---|
| 1 | 2 | 3 | ||||
| 4 | 5 | 6 | 7 | 8 | 9 | 10 |
| 11 | 12 | 13 | 14 | 15 | 16 | 17 |
| 18 | 19 | 20 | 21 | 22 | 23 | 24 |
| 25 | 26 | 27 | 28 | 29 | 30 | 31 |
…休業日(現場調査・工事は一部対応)
![]()
【受付時間】9:30 - 17:30(営業日)
![]()
【受付時間】9:30 - 17:30(営業日)
オペレーションスタッフ
エクステリアプランナー有資格者の私たちにお任せください。
ショップ責任者
神(じん)
エクステリア プランナー
有資格者61名
1/3
木附
枡田
重富
吉澤
吉野
小東
池本
山田
佐藤
白崎
新西
伊野
次田
浅川
南
西山
小林
梨田
長谷川
藤田
阿重田
村上
植松
内田
久田
小野
平戸
中島
長石
水口
榮
山崎
清水
室谷
安田
水谷
酒井
神吉
日下部
山中
深田
田中
水田
西田
一氏
岡本
北
坂本
中嶋
岩野
伊藤
上中
高山
竹本
犬井
佐伯
谷川
原
丸山
塚田
松本
上内
島田
森
梅田
松山
山本
小林
倉地
山根
中原
河野
村上
土井
岩破
南
井上
三ツ股
小田
依藤
永禮
林
加藤
石藤
駒井
末吉
山本
芦野
樽井
野上
岡田
木村
池田
西村
藤澤
達川
奥原
那須
小西
森下
1/3
今週のPick Upページ
![]()
ご利用頂いたお客様の口コミ・レビューを「お客様の声」として掲載しております。
全てのご感想を掲載しておりますので、エクスショップの評判としてご参考ください。
正式お見積りと一緒に提出させて頂いております「工事概略図面」もご覧頂けます。
商品や設置場所のご検討にお役立てください。
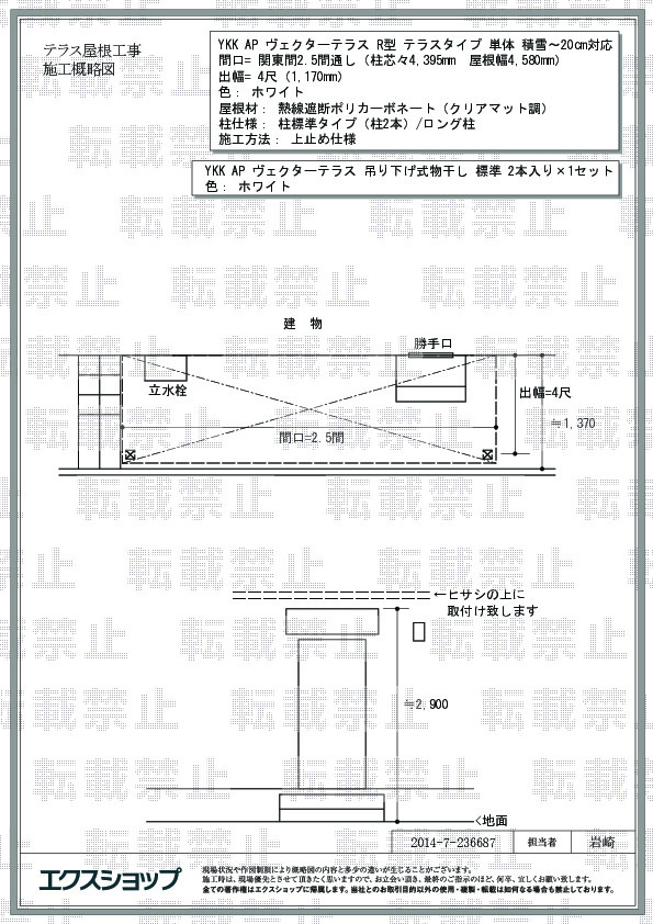
(写真No:23668727)
(テラス屋根)
| カラー | ホワイト |
|---|---|
| サイズ | 屋根幅 4,580mm 出幅 1,170mm |
| 柱仕様 | 柱標準タイプ(柱2本)/ロング柱 |
| 屋根材 | 熱線遮断ポリカーボネート(クリアマット調) |
| 工事方法 | 地域密着あんしん施工 |
見積もり現地調査依頼に始まり、何度もいろんなパターンを見積もっていただいたり、日程調整、施工等、すべてよぅしていただき感謝です。特に、施工業者の方には、いろいろと相談に乗っていただいて、ありがたかったです。
この度はレイナポートグラン 延長及びヴェクターテラス R型 テラスタイプの施工をご依頼頂き、誠に有り難うございました。ホワイトのフレームと透明度の高い屋根材で統一されたカーポートとテラス屋根が、ご自宅の外観を損なうことなく綺麗に納まり、美しいお仕上がりでございますね。熱線遮断ポリカーボネート(クリアマット)の屋根材が、雨や紫外線、太陽の熱をしっかり遮り、お客様の快適な暮らしをサポートをします。お気に召して頂き、永くご愛用頂けますと幸いでございます。これからもお客様に安心してご利用頂けるショップを目指し、エクスショップは日々精進して参ります。また機会がございましたら、是非弊社にご用命くださいますよう、宜しくお願い致します。
当サイトは以下のセキュリティ機能や保護認定等を備えています。安心してお申し込みください
当サイトは256ビットSSL暗号化に対応しています。入力した個人情報は暗号化して送られますので、安心してご利用ください。
当社はJADMAの正会員です。同協会は法律で位置づけられた団体で、消費者の利益保護と業界の健全な発展の為に活動しています。
こちらの工事に使用しているエクステリア
![]()
ソラリア R型 テラスタイプ 単体

工事費・税込
65,800円〜
総合平均評価(星5つ評価)
4.81
商品レビュー数
996件
実用的で快適な空間を作り出すソラリアのテラス屋根。雨の日でも安心な洗濯物干し場の屋根として大活躍してくれます。物干しや目隠しパネルなど使い勝手を重視したオプションも豊富に揃っています。
この商品の詳細へ
無料お見積り・現場調査・ご注文もこちら
この商品のレビュー
商品レビュー996件

福岡県 福岡市 T.H.様
・かなり満足なテラス屋根が完成しました。 これから急な雨でも洗濯物が濡れる心配もありません。 また、夏も暑い日差しから多少解放されることを期待しています。 ・色もイメージ通りのもので完成しました。

岡山県 岡山市 I.Y.様
支柱がウッドデッキのサイズにきちんとおさまり、目論見通りに

兵庫県 たつの市 D.D.様
プラチナステン、ソラリアR、見た目が良くて、満足している!

神奈川県 川崎市 Y.K.様
思ったよりもコンパクトでしたが、見た目も気に入りました。 小雨程度なら外でも干せそうなので、活躍を期待しています。

愛媛県 西条市 Y.S.様
高さや幅など最適なサイズを選ぶことができた。

滋賀県 大津市 T.K.様
雨除けだけでなく日除にもなるのでありがたいです。

宮城県 仙台市 O.N.様
今までリビングに直射日光が当たっていたのでそれが大分軽減されたので今度の夏のエアコンの効き目が楽しみです。

東京都 武蔵村山市 N.N.様
できる限り広い屋根のテラスにしてもらったので 自転車2台があまり濡れず、掃き出しのガラス戸も濡れず 大変気にいっています。

香川県 高松市 K.K.様
ベランダ側からテラスをつけていただき、スペースを広くとることができた。

静岡県 富士市 I.C.様
テラスができたことで、テラス下に洗濯を干すことができるようになりました。 急な雨にもあわてることなく、雨の日も窓を開けて換気ができるのでよかったです。
関連するお客様の声

5つ星のうち4
静岡県S.Y. 様回答日:2016年2月
想像していたものより、とても立派で満足しています。色々なパターンで、何度か見積もりをお願いしましたが丁寧に対応して頂きました。

5つ星のうち4
愛知県M.Y. 様回答日:2014年4月
現場調査の方はいろんなアドバイスをしてくれたり、いろんなパターンを考えてくださってとても親切でした。実際の施工時間も早かったので、とてもよかったと思います。

5つ星のうち5
福岡県T.H. 様回答日:2025年4月
・商品のきっかけとなったのは、色々なサイトでテラス屋根を調べていたらエクスショップにたどり着きました。かなり、値段が安かったので、少し疑いながら見積もりをお願いしました。担当者も工事見積の方もとても親切でお願いしようと思いました。結果、今までの考えが変わり、再度他の場所も注文しました。信頼できるショップです。

5つ星のうち5
静岡県I.C. 様回答日:2024年4月
隣家と道路からリビングの窓が丸見えだったので、目隠しが欲しかったのと、空いているスペースを有効利用したかったので依頼しました。目隠しフェンスとウッドデッキ、テラスを設置したことで、道路からの目線も気にならなくなり、ウッドデッキを付けたことで庭に出ることが楽しみになり、生活が非常に快適になりました。

5つ星のうち4
鹿児島県S.A. 様回答日:2024年4月
・車への乗り降りが、雨天時でも楽になりました。・洗濯物が干せるようになり、少し位の雨も心配ではなくなりました。・視界を遮らないフェンスを設置できて良かったと思います。ネットとメールでの工事発注については不安もありましたが、工事をして頂いた担当の方が親身に対応してくださり良かったと思っています。

5つ星のうち5
大阪府K.M. 様回答日:2024年3月
リフォームを行い、合わせてテラス、外壁、駐車場の拡張を貴社にお願いした。テラス、フェンスは既成のものの設置であったが、玄関から駐車場へのコンクリートのスロープ工事はは大変良く出来上がり満足しています。バリアフリーにもなりました。2月なのに雨の日が多く、作業ができない日も多くありましたが、延長しきちんと完成させて頂きました。

5つ星のうち5
神奈川県H.T. 様回答日:2023年7月
きっかけ:ネット検索便利、快適:雨の日もワンチャンを放し飼いできるようになった。夏場の日除けが可能になった。洗濯物が急な雨降りでも大丈夫になった。お隣さんから覗けなくなった。ご利用の感想:全てメールでのやり取りだったので煩わしさが無くたいへん良かった。

5つ星のうち5
福岡県T.H. 様回答日:2025年4月
・商品のきっかけとなったのは、色々なサイトでテラス屋根を調べていたらエクスショップにたどり着きました。かなり、値段が安かったので、少し疑いながら見積もりをお願いしました。担当者も工事見積の方もとても親切でお願いしようと思いました。結果、今までの考えが変わり、再度他の場所も注文しました。信頼できるショップです。

5つ星のうち5
神奈川県U.H. 様回答日:2025年4月
今回、ウッドデッキとテラス屋根の施工をお願いしました。天然木のデッキが壊れて中庭への出入りが不便になったため依頼しましたが、当初予定になかったテラス屋根も思い切って追加。費用は増えましたが、出入りの利便性に加え天候対策もでき、大変満足しています。営業・施工担当の方の対応も丁寧で、安心してお任せできました。

5つ星のうち5
神奈川県F.K. 様回答日:2025年4月
飼い犬の散歩で使用したタオルなどの一時的の外干し(基本的には室内干し)の際にこれまでは雨が降ると屋根がないところでタオルを洗ったり干していたので、なにかしら雨が防げるものが欲しかった。施工後まだ雨は降ってませんがイメージどおりに施工してもらいよかったです。
関連するブログ記事
関連するよくあるご質問
TOEXの樹の木テラスの取り扱いはありますか?
【商品カテゴリ >テラス屋根】(ご質問No.67)
タカショーのJ/EUポーチ(独立タイプ)の取り扱いはありますか?
【商品カテゴリ >テラス屋根】(ご質問No.166)
人工石貼りのガーデンテラスの取り扱いはありますか?
【商品カテゴリ >テラス屋根】(ご質問No.235)
プレシオステラス R型 テラスタイプ 単体に前面スクリーンをつけることはできますでしょうか?
【商品カテゴリ >テラス屋根】(ご質問No.334)
柱奥行移動タイプにする場合、柱から屋根先が何センチくらい出っ張るようになるのでしょうか。
【商品カテゴリ >テラス屋根】(ご質問No.567)
はじめまして。二階建て住宅に住んでおります。一階のテラス屋根が一部破損してしまったので、修繕を考えております。
【商品カテゴリ >テラス屋根】(ご質問No.624)
敷地に合わせて切詰め加工できますか?
【商品カテゴリ >テラス屋根】(ご質問No.735)
柱固定仕様と出幅自在桁・柱奥行移動仕様の違いはどんなものですか?
【商品カテゴリ >テラス屋根】(ご質問No.736)
物干しの金額は見積に含まれますか?他にどんなオプションがあるのか教えてください。
【商品カテゴリ >テラス屋根】(ご質問No.737)
テラス屋根の取り付け見積とその他の製品について相談したく思います。
場所は総社市です。宜しくお願いします。
【商品カテゴリ >テラス屋根】(ご質問No.942)


















