日光、雨・風を防ぎバルコニーを快適に
お庭に屋内空間を拡張
セット購入でお値引きお得な価格で快適生活
快適なガレージには必須
お庭に憩いのスペースを作り出します
防犯、お家のドレスアップはこれで決まり
各取扱メーカーの会社名、ロゴ及び商品名等は各社の商標または登録商標です。
| 日 | 月 | 火 | 水 | 木 | 金 | 土 |
|---|---|---|---|---|---|---|
| 1 | 2 | 3 | 4 | 5 | 6 | |
| 7 | 8 | 9 | 10 | 11 | 12 | 13 |
| 14 | 15 | 16 | 17 | 18 | 19 | 20 |
| 21 | 22 | 23 | 24 | 25 | 26 | 27 |
| 28 | 29 | 30 | 31 |
| 日 | 月 | 火 | 水 | 木 | 金 | 土 |
|---|---|---|---|---|---|---|
| 1 | 2 | 3 | ||||
| 4 | 5 | 6 | 7 | 8 | 9 | 10 |
| 11 | 12 | 13 | 14 | 15 | 16 | 17 |
| 18 | 19 | 20 | 21 | 22 | 23 | 24 |
| 25 | 26 | 27 | 28 | 29 | 30 | 31 |
…休業日(現場調査・工事は一部対応)
![]()
【受付時間】9:30 - 17:30(営業日)
![]()
【受付時間】9:30 - 17:30(営業日)
オペレーションスタッフ
エクステリアプランナー有資格者の私たちにお任せください。
ショップ責任者
神(じん)
エクステリア プランナー
有資格者61名
1/3
木附
枡田
重富
吉澤
吉野
小東
池本
山田
佐藤
白崎
新西
伊野
次田
浅川
南
西山
小林
梨田
長谷川
藤田
阿重田
村上
植松
内田
久田
小野
平戸
中島
長石
水口
榮
山崎
清水
室谷
安田
水谷
酒井
神吉
日下部
山中
深田
田中
水田
西田
一氏
岡本
北
坂本
中嶋
岩野
伊藤
上中
高山
竹本
犬井
佐伯
谷川
原
丸山
塚田
松本
上内
島田
森
梅田
松山
山本
小林
倉地
山根
中原
河野
村上
土井
岩破
南
井上
三ツ股
小田
依藤
永禮
林
加藤
石藤
駒井
末吉
山本
芦野
樽井
野上
岡田
木村
池田
西村
藤澤
達川
奥原
那須
小西
森下
1/3
今週のPick Upページ
![]()
ご利用頂いたお客様の口コミ・レビューを「お客様の声」として掲載しております。
全てのご感想を掲載しておりますので、エクスショップの評判としてご参考ください。
正式お見積りと一緒に提出させて頂いております「工事概略図面」もご覧頂けます。
商品や設置場所のご検討にお役立てください。
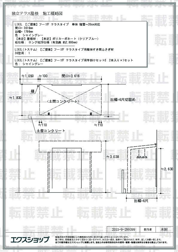
(写真No:29939929)
(テラス屋根)
| カラー | シャイングレー |
|---|---|
| サイズ | 屋根幅 3,616mm 出幅 1,796mm |
| 柱仕様 | ロング柱28仕様(有効高 約2,800mm) |
| 屋根材 | ポリカーボネート(クリアマット・すりガラス調) |
| 工事方法 | 地域密着あんしん施工 |
商品を購入したきっかけは、インターネットのワード検索で渉猟すると、頻繁にヒットしたからです。設置前(工事前)と比較して便利・快適になった点、は、屋根を施工したので急な雨でも洗濯物が濡れないことでしょうか。車庫の屋根新設では、車に鳥のフンがかかりません。今回は、明るさをとってクリアな屋根を選びましたが、少し汚れが気になるようです。早速、竣工祝に鳥さんからプレゼントをもらいました。
数多くございますショップの中より、エクスショップをお選び頂きまして、誠に有り難うございます。外壁側に柱を設置する際、最適なレイナポートREグラン 前下がりが綺麗に納まり、お車の出し入れもスムーズでございますね。フーゴF テラスタイプが完成したことにより、お洗濯物を干したまま安心して外出して頂けますので、家事の効率アップにも繋がるのではないかと存じます。今後も絶えず企業努力を続け、更にお客様にご満足頂けるサービスを目指して参ります。また機会がございましたら、是非エクスショップに御用命頂きますよう宜しくお願い致します。
当サイトは以下のセキュリティ機能や保護認定等を備えています。安心してお申し込みください
当サイトは256ビットSSL暗号化に対応しています。入力した個人情報は暗号化して送られますので、安心してご利用ください。
当社はJADMAの正会員です。同協会は法律で位置づけられた団体で、消費者の利益保護と業界の健全な発展の為に活動しています。
こちらの工事に使用しているエクステリア
![]()
フーゴF 独立テラスタイプ

工事費・税込
136,200円〜
総合平均評価(星5つ評価)
4.69
商品レビュー数
309件
躯体にネジ止めすることがない、独立タイプの新感覚ルーフのフーゴFのテラスタイプ。豊富なサイズバリエーションをご用意しています。
この商品の詳細へ
無料お見積り・現場調査・ご注文もこちら
この商品のレビュー
商品レビュー309件

神奈川県 平塚市 K.Y.様
玄関前の雨除けが完璧にでき、非常に満足している。 上記目隠しフェンスと一緒に施工していただいたが、丁寧で仕上げもよく、大変満足している。

奈良県 橿原市 O.H.様
隣のお家から丸見えで、開けるとこが出来なかったカーテンを開けるとこが出来ました。日陰で干す洗濯物も干せて、とても嬉しいです。

東京都 国分寺市 K.M.様
思ったよりしっかりしていることと、チープさがない。 スタイリッシュな感じがよかった。

佐賀県 佐賀市 H.K.様
支柱も思ったより大きくなく、見た目も満足してます。

東京都 国分寺市 Y.M.様
駐輪スペースをを使いやすくなり、満足しています。

神奈川県 鎌倉市 S.T.様
購入前、屋根の傾斜が4度とほぼ水平に近い為、大雨の時、雨水が建物側に逆流しないか心配しましたが、杞憂に過ぎませんでした。デザインは昔のテラス屋根と比べると非常に洗練されていて良いです。

東京都 足立区 U.M.様
期待通りの商品でしっかりして満足しております。

大阪府 箕面市 Y.T.様
とても満足しています。 色味も綺麗で、見た目が良い感じです。 また支柱がしっかりしているので安定性も問題なさそう。

熊本県 熊本市 S.N.様
家の外壁に穴を開けたくないので、独立タイプでお願いしました。隙間材もつけたので家との隙間は気になりません。子供が小さいうちは外遊びをすることも多いので、日陰になって助かります。今回は予算の関係で床面はまだ何もしていませんが、タイル敷きにする予定なので理想の庭に一歩近づきました。

千葉県 流山市 T.Y.様
デザインもスタイリッシュで、気に入っています。

愛媛県 西条市 F.T.様
雨除けになり、しっかり設置していただき満足です。

静岡県 浜松市 M.C.様
独立型で柱が2本なので、家の壁側のエアコンの室外機の位置も気にしなくて良かったですし、柱も太くてしっかりしています。

大阪府 池田市 T.M.様
アルミサッシと同じ色を提案していただいたのですが、一体感があって満足しました。

兵庫県 川西市 A.M.様
・テラスに濡れても良いお洒落な椅子・テーブルを置き、雰囲気が向上した。 ・バーベキューや庭時間が楽しめる ・今まで、雨が窓ガラスに付き窓掃除をよく行っていましたが、 雨粒がつかなくなって嬉しい ・熱吸収の屋根にしたので、カーネーションやアジサイを東側に置き、窓から見られ なかったが、お洒落な器でカバーして南の庭に置き目を楽しませることができる

東京都 多摩市 I.R.様
これで大切な自転車も守られるので、安心です

大分県 玖珠郡九重町 S.T.様
既存のウッドデッキの上にテラス屋根をつけました。これからは雨でも窓を開けることが出来ますし、洗濯物を安心して干せます。今までは、鳥のふんに悩まされました。

愛知県 一宮市 A.M.様
特に問題はありませんが敢えて言うのであれば台形カットが標準仕様で無い事。柱がごついのでスマートになると良い。柱にユーザー側でフックなど金具を取り付けられるようにタップ穴などがあると良い。(ホウキや濡れたカッパひっかけられるようにするため)

埼玉県 北葛飾郡松伏町 S.Y.様
設置希望場所の下に配管があり、 設置できるか不安でしたが、商品、設置場所共に満足しています。

埼玉県 上尾市 O.S.様
屋根材をクリアマットS・すりガラス調を進めていただいて、実際に施工してもらって合っていました。
関連するお客様の声

5つ星のうち5
京都府Y.K. 様回答日:2021年8月
雨を気にせず洗濯物を干して出かけたいと思い屋根をつけようと思いました。まだついたばかりですが、きっと快適だと思います。

5つ星のうち5
神奈川県O.M. 様回答日:2016年4月
急な雨の時によく洗濯物を濡らしてしまい、以前から屋根がほしいと思っていました。低予算で大きい屋根を付けることができ雨の日でも洗濯物を干せてとても快適になりました。

5つ星のうち5
東京都H.F. 様回答日:2021年1月
・購入のきっかけ、急な雨への対応を考慮した。・施工前と比較し便利になった点、雨風を防げるようになった。

5つ星のうち4
大阪府U.A. 様回答日:2020年3月
雨の日に洗濯物を入れ忘れても大丈夫だし、鳥のフンを気にすることなく干せるのが快適です。風が強いとガバっという音がするのが気になる時がありますが、普段は問題ないです。

5つ星のうち5
兵庫県T.S. 様回答日:2020年11月
2階まで上がらずに洗濯物が干せるようになったのがとても便利です。また屋根をつけてもらったので少しの雨なら干しておけることです。

5つ星のうち5
栃木県H.K. 様回答日:2015年1月
物干し場に屋根が欲しかったので購入しました。今は屋根がついたので少しの雨ならば気にすることなく洗濯物を干せたりします。

5つ星のうち5
大阪府A.D. 様回答日:2015年7月
雨の日の乗り降りや車の汚れが気になっていましたが、雨でも乗り降りがしやすくなりました。洗濯物も急な雨でも濡れなくなりました。

5つ星のうち5
愛知県S.T. 様回答日:2017年3月
自転車を停める場所に屋根を設置したいと思い購入を考えました。設置後は屋根があることで雨に濡れる心配が減り、吊り下げ物干しも設置したことで洗濯物も干せて便利になりました。

5つ星のうち5
埼玉県A.M. 様回答日:2019年8月
洗濯物を一階で干せるようになり、とても楽になりました。屋根もつけていただいたので、雨も気にすることなく快適です!

5つ星のうち5
神奈川県S.H. 様回答日:2018年6月
「商品をご購入頂いたきっかけ」微妙な天気の時洗濯物は部屋干しでした。それを気にせず干せるよう3Fに屋根を付けることを検討していました。また、そのついでに車の車庫がビルトインタイプなのですが、2/3位は建物の下になりますが、1/3が雨で濡れてしまうので、1Fに屋根も一緒に検討してました。「設置前(工事前)と比較して便利・快適になった点」3Fのバルコニー屋根は雨を気にせず洗濯物が干せると妻が満足しています。また、今までは雨の時は窓を開けられませんでしたが(吹き込んでくるため)、窓を開けても問題なくなりました。1Fのテラス屋根は雨が降っても車がほとんど濡れなくなって私が満足しています。しいて言えば、横から吹き込んで濡れてしまうのが気になります。(しょうがないですが...)あと、車庫入れの際、柱を気にするようになりました。「エクスショップご利用のご感想やお気づきの点など」受付していただいた方の対応(メールと電話のみでしたが)、来ていただいた職人さんともに対応がよくとてもよかったです。ただ、見積もりと最終で一部商品変更したのが職人さんに伝わっていなかったようで、当日逆に確認されてしまいました。そこがクリアできていれば満点だったと思います。(作業は普通に進めていただいたので問題はありませんでしたが)
関連するブログ記事
関連するよくあるご質問
TOEXの樹の木テラスの取り扱いはありますか?
【商品カテゴリ >テラス屋根】(ご質問No.67)
タカショーのJ/EUポーチ(独立タイプ)の取り扱いはありますか?
【商品カテゴリ >テラス屋根】(ご質問No.166)
人工石貼りのガーデンテラスの取り扱いはありますか?
【商品カテゴリ >テラス屋根】(ご質問No.235)
プレシオステラス R型 テラスタイプ 単体に前面スクリーンをつけることはできますでしょうか?
【商品カテゴリ >テラス屋根】(ご質問No.334)
柱奥行移動タイプにする場合、柱から屋根先が何センチくらい出っ張るようになるのでしょうか。
【商品カテゴリ >テラス屋根】(ご質問No.567)
はじめまして。二階建て住宅に住んでおります。一階のテラス屋根が一部破損してしまったので、修繕を考えております。
【商品カテゴリ >テラス屋根】(ご質問No.624)
敷地に合わせて切詰め加工できますか?
【商品カテゴリ >テラス屋根】(ご質問No.735)
柱固定仕様と出幅自在桁・柱奥行移動仕様の違いはどんなものですか?
【商品カテゴリ >テラス屋根】(ご質問No.736)
物干しの金額は見積に含まれますか?他にどんなオプションがあるのか教えてください。
【商品カテゴリ >テラス屋根】(ご質問No.737)
テラス屋根の取り付け見積とその他の製品について相談したく思います。
場所は総社市です。宜しくお願いします。
【商品カテゴリ >テラス屋根】(ご質問No.942)


















