日光、雨・風を防ぎバルコニーを快適に
お庭に屋内空間を拡張
セット購入でお値引きお得な価格で快適生活
快適なガレージには必須
お庭に憩いのスペースを作り出します
防犯、お家のドレスアップはこれで決まり
各取扱メーカーの会社名、ロゴ及び商品名等は各社の商標または登録商標です。
| 日 | 月 | 火 | 水 | 木 | 金 | 土 |
|---|---|---|---|---|---|---|
| 1 | 2 | 3 | 4 | 5 | 6 | 7 |
| 8 | 9 | 10 | 11 | 12 | 13 | 14 |
| 15 | 16 | 17 | 18 | 19 | 20 | 21 |
| 22 | 23 | 24 | 25 | 26 | 27 | 28 |
| 日 | 月 | 火 | 水 | 木 | 金 | 土 |
|---|---|---|---|---|---|---|
| 1 | 2 | 3 | 4 | 5 | 6 | 7 |
| 8 | 9 | 10 | 11 | 12 | 13 | 14 |
| 15 | 16 | 17 | 18 | 19 | 20 | 21 |
| 22 | 23 | 24 | 25 | 26 | 27 | 28 |
| 29 | 30 | 31 |
…休業日(現場調査・工事は一部対応)
![]()
【受付時間】9:30 - 17:30(営業日)
![]()
【受付時間】9:30 - 17:30(営業日)
オペレーションスタッフ
エクステリアプランナー有資格者の私たちにお任せください。
ショップ責任者
神(じん)
エクステリア プランナー
有資格者61名
1/3
木附
枡田
重富
吉澤
吉野
小東
池本
山田
佐藤
白崎
新西
伊野
次田
南
西山
小林
阿重田
梨田
長谷川
藤田
村上
平戸
植松
内田
久田
中島
長石
水口
榮
山崎
清水
室谷
安田
水谷
小野
酒井
一氏
神吉
日下部
山中
深田
田中
水田
西田
岡本
丸山
北
坂本
中嶋
岩野
伊藤
上中
高山
原
犬井
佐伯
谷川
塚田
松本
小林
森下
上内
島田
森
梅田
松山
山本
小西
倉地
山根
中原
河野
村上
土井
岩破
南
井上
三ツ股
小田
依藤
永禮
林
加藤
石藤
駒井
末吉
山本
芦野
樽井
野上
岡田
木村
池田
西村
藤澤
達川
奥原
那須
1/3
今週のPick Upページ
![]()
ご利用頂いたお客様の口コミ・レビューを「お客様の声」として掲載しております。
全てのご感想を掲載しておりますので、エクスショップの評判としてご参考ください。
正式お見積りと一緒に提出させて頂いております「工事概略図面」もご覧頂けます。
商品や設置場所のご検討にお役立てください。
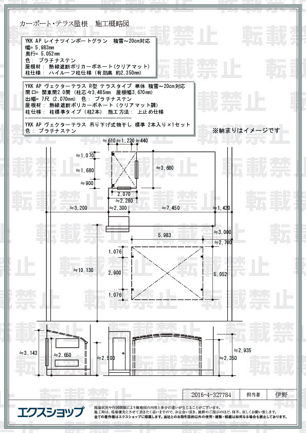
(写真No:32778434)
(テラス屋根)
| カラー | プラチナステン |
|---|---|
| サイズ | 屋根幅 3,670mm 出幅 2,070mm |
| 柱仕様 | 柱標準タイプ(柱2本) |
| 屋根材 | 熱線遮断ポリカーボネート(クリアマット調) |
| 工事方法 | 地域密着あんしん施工 |
日射しが強い時や、雨の時にとても快適に生活できるようになった。
レイナツインポートグランとヴェクターテラス R型の施工をご依頼頂きまして、誠に有り難うございます。ご自宅のサッシ類との調和が取れ、明るさと開放感を損なわないお仕上がりでございますね。熱線遮断ポリカーボネート(クリアマット)の屋根材は、雨だけではなく、紫外線や熱も遮りますので、お車の汚れや傷みが軽減されたり、お洗濯物の色褪せなどが防げるものと存じます。これからも、快適なお住まいづくりのパートナーとして、エクスショップをご利用して頂きますよう、宜しくお願い致します。またのご利用を、心よりお待ち申し上げております。
当サイトは以下のセキュリティ機能や保護認定等を備えています。安心してお申し込みください
当サイトはSSL暗号化に対応しています。入力した個人情報は暗号化して送られますので、安心してご利用ください。
当社はJADMAの正会員です。同協会は法律で位置づけられた団体で、消費者の利益保護と業界の健全な発展の為に活動しています。
こちらの工事に使用しているエクステリア
![]()
ソラリア R型 テラスタイプ 単体

工事費・税込
65,800円〜
総合平均評価(星5つ評価)
4.81
商品レビュー数
1042件
実用的で快適な空間を作り出すソラリアのテラス屋根。雨の日でも安心な洗濯物干し場の屋根として大活躍してくれます。物干しや目隠しパネルなど使い勝手を重視したオプションも豊富に揃っています。
この商品の詳細へ
無料お見積り・現場調査・ご注文もこちら
この商品のレビュー
商品レビュー1,042件

福岡県 福岡市 T.H.様
・かなり満足なテラス屋根が完成しました。 これから急な雨でも洗濯物が濡れる心配もありません。 また、夏も暑い日差しから多少解放されることを期待しています。 ・色もイメージ通りのもので完成しました。

熊本県 菊池市 T.Y.様
強い日差しを適度に和らげ雨から守れて良いと思います。

岡山県 岡山市 I.Y.様
支柱がウッドデッキのサイズにきちんとおさまり、目論見通りに

兵庫県 たつの市 D.D.様
プラチナステン、ソラリアR、見た目が良くて、満足している!

神奈川県 川崎市 Y.K.様
思ったよりもコンパクトでしたが、見た目も気に入りました。 小雨程度なら外でも干せそうなので、活躍を期待しています。

福岡県 春日市 I.T.様
夏の厚い日差しを防ぎ、リビングの床の日焼けを軽減できそう。雨が直接ドアに当たらないのでドアを守れる。

長崎県 雲仙市 H.K.様
最初は、横幅を狭く考えてましたが、業者さんの下見のさいに、ご助言頂き、幅を広げました。それがとても良かったです。見た目が良くなって満足しておりますし雨のふりこみも少ないです。屋根の色合いも明るくて気に入りました。

愛媛県 西条市 Y.S.様
高さや幅など最適なサイズを選ぶことができた。

兵庫県 宝塚市 I.T.様
ウッドデッキの上に取り付けたので、ウッドデッキでゆっくりと過ごす事ができます。見た目もよく、洗濯も干せるため満足しています。

長崎県 佐世保市 T.M.様
現時点においては満足しています。 こちらの方は元々日があまりささないところだったので採光も気になりません。

長崎県 佐世保市 T.M.様
現時点においては満足しています。 強いて言えば部屋の採光が若干暗くなったかなと言う感じです

長崎県 佐世保市 T.M.様
現時点においては満足しています。 こちらの方は元々日があまりささないところだったので採光も気になりません。

長野県 諏訪市 G.R.様
柱が2本でシンプルでスッキリした印象です。雪はまだ分かりませんが外壁と固定してあるので安心だと思います。 側面パネルのオプションが無いのが残念です。 自分で側面パネルを付けようかと思っていますが柱が2本で固定方法をどうしようかと悩んでいます。

大阪府 東大阪市 T.T.様
感じられる日光の熱さが施工前後で拡大に和らぎました。これであれば夏の日中の洗濯物干し作業も楽になりそうです。

滋賀県 大津市 T.K.様
雨除けだけでなく日除にもなるのでありがたいです。

宮城県 仙台市 O.N.様
今までリビングに直射日光が当たっていたのでそれが大分軽減されたので今度の夏のエアコンの効き目が楽しみです。
関連するお客様の声

5つ星のうち5
福岡県T.H. 様回答日:2025年4月
・商品のきっかけとなったのは、色々なサイトでテラス屋根を調べていたらエクスショップにたどり着きました。かなり、値段が安かったので、少し疑いながら見積もりをお願いしました。担当者も工事見積の方もとても親切でお願いしようと思いました。結果、今までの考えが変わり、再度他の場所も注文しました。信頼できるショップです。

5つ星のうち5
兵庫県I.T. 様回答日:2024年5月
以前も2階にテラス屋根を依頼して、とてもよかったため再度依頼しました。今まで2階に洗濯物を干しに行ってましたが、1階で干せるようになったので、とても楽になりました。依然と同様にとても丁寧、かつ時間も短くて信頼できます。次回も依頼したいと思います。

5つ星のうち5
愛知県A.S. 様回答日:2024年5月
雨の日にウッドデッキに出れない事と、夏場にウッドデッキが熱くなるので以前からテラスを検討していました。設置前はタープでウッドデッキが熱くならない様にしていましたが、風が強い日にはタープを外す必要があり大変でした。設置後はその心配もなく雨の日もウッドデッキが濡れないので快適です。

5つ星のうち5
静岡県I.C. 様回答日:2024年4月
隣家と道路からリビングの窓が丸見えだったので、目隠しが欲しかったのと、空いているスペースを有効利用したかったので依頼しました。目隠しフェンスとウッドデッキ、テラスを設置したことで、道路からの目線も気にならなくなり、ウッドデッキを付けたことで庭に出ることが楽しみになり、生活が非常に快適になりました。

5つ星のうち4
鹿児島県S.A. 様回答日:2024年4月
・車への乗り降りが、雨天時でも楽になりました。・洗濯物が干せるようになり、少し位の雨も心配ではなくなりました。・視界を遮らないフェンスを設置できて良かったと思います。ネットとメールでの工事発注については不安もありましたが、工事をして頂いた担当の方が親身に対応してくださり良かったと思っています。

5つ星のうち4
埼玉県H.A. 様回答日:2025年9月
前々からテラス屋根を付けたくて検討してました。1社見積もりを取ったのですが、高すぎた為エクスショップさんにお見積もりをお願いしました。設置前と比べて、雨がかからず見た目も良くなり大満足です。最初、ネットでのやり取りに不安がありましたが対応も早く、納得するまでご対応いただき良かったです。

5つ星のうち5
福岡県I.Y. 様回答日:2025年8月
家をフルリノベーションしたのですが、家の形が独特なので玄関から軒までの高さがあり、玄関に庇をつけると変になりそうだったので庇のない玄関だったのですが、ちょうど西向きの玄関なので夏は西陽が厳しく、雨の日は、玄関の中まで振り込んでくるようなこともあり、今回のプレーンルーフに一目惚れし、決定しました。まだ2日目ですが明らかに玄関の暑さも緩和されました。雨の日の様子はまだ分かりませんが、見た目も思っていた以上に素敵になり家全体が締まった感じでとてもカッコいいです。いろいろ悩みましたがとてもよかったです。そしてエクスショップさんから派遣していただいた業者さんもとても丁寧でいろいろ確認しながら施工していただいて西陽があたる暑い中の作業にも関わらず迅速丁寧な作業に感謝の思いです。この度は本当にありがとうございました。また機会があったらよろしくお願いします。

5つ星のうち5
栃木県H.S. 様回答日:2025年4月
ある事情で2年前に止めた工事を完遂させた。ウッドデッキ全体と通路をほぼ全体を覆うことにより、夏場の暑さ対策並びに自転車置き場の確保を狙い目とした。仕事の品質、コスト対応力に優れていると感じ、引き合いしたがなかなかのものでした。作業をする方も勤勉で対応も良かった。総合的に満点以上で十二分に満足でした。
関連するブログ記事
関連するよくあるご質問
TOEXの樹の木テラスの取り扱いはありますか?
【商品カテゴリ >テラス屋根】(ご質問No.67)
タカショーのJ/EUポーチ(独立タイプ)の取り扱いはありますか?
【商品カテゴリ >テラス屋根】(ご質問No.166)
人工石貼りのガーデンテラスの取り扱いはありますか?
【商品カテゴリ >テラス屋根】(ご質問No.235)
プレシオステラス R型 テラスタイプ 単体に前面スクリーンをつけることはできますでしょうか?
【商品カテゴリ >テラス屋根】(ご質問No.334)
柱奥行移動タイプにする場合、柱から屋根先が何センチくらい出っ張るようになるのでしょうか。
【商品カテゴリ >テラス屋根】(ご質問No.567)
はじめまして。二階建て住宅に住んでおります。一階のテラス屋根が一部破損してしまったので、修繕を考えております。
【商品カテゴリ >テラス屋根】(ご質問No.624)
敷地に合わせて切詰め加工できますか?
【商品カテゴリ >テラス屋根】(ご質問No.735)
柱固定仕様と出幅自在桁・柱奥行移動仕様の違いはどんなものですか?
【商品カテゴリ >テラス屋根】(ご質問No.736)
物干しの金額は見積に含まれますか?他にどんなオプションがあるのか教えてください。
【商品カテゴリ >テラス屋根】(ご質問No.737)
テラス屋根の取り付け見積とその他の製品について相談したく思います。
場所は総社市です。宜しくお願いします。
【商品カテゴリ >テラス屋根】(ご質問No.942)


















