日光、雨・風を防ぎバルコニーを快適に
お庭に屋内空間を拡張
セット購入でお値引きお得な価格で快適生活
快適なガレージには必須
お庭に憩いのスペースを作り出します
防犯、お家のドレスアップはこれで決まり
各取扱メーカーの会社名、ロゴ及び商品名等は各社の商標または登録商標です。
| 日 | 月 | 火 | 水 | 木 | 金 | 土 |
|---|---|---|---|---|---|---|
| 1 | 2 | 3 | 4 | 5 | 6 | 7 |
| 8 | 9 | 10 | 11 | 12 | 13 | 14 |
| 15 | 16 | 17 | 18 | 19 | 20 | 21 |
| 22 | 23 | 24 | 25 | 26 | 27 | 28 |
| 日 | 月 | 火 | 水 | 木 | 金 | 土 |
|---|---|---|---|---|---|---|
| 1 | 2 | 3 | 4 | 5 | 6 | 7 |
| 8 | 9 | 10 | 11 | 12 | 13 | 14 |
| 15 | 16 | 17 | 18 | 19 | 20 | 21 |
| 22 | 23 | 24 | 25 | 26 | 27 | 28 |
| 29 | 30 | 31 |
…休業日(現場調査・工事は一部対応)
![]()
【受付時間】9:30 - 17:30(営業日)
![]()
【受付時間】9:30 - 17:30(営業日)
オペレーションスタッフ
エクステリアプランナー有資格者の私たちにお任せください。
ショップ責任者
神(じん)
エクステリア プランナー
有資格者61名
1/3
木附
枡田
重富
吉澤
吉野
小東
池本
山田
佐藤
白崎
新西
伊野
次田
南
西山
小林
阿重田
梨田
長谷川
藤田
村上
平戸
植松
内田
久田
中島
長石
水口
榮
山崎
清水
室谷
安田
水谷
小野
酒井
一氏
神吉
日下部
山中
深田
田中
水田
西田
岡本
丸山
北
坂本
中嶋
岩野
伊藤
上中
高山
原
犬井
佐伯
谷川
塚田
松本
小林
森下
上内
島田
森
梅田
松山
山本
小西
倉地
山根
中原
河野
村上
土井
岩破
南
井上
三ツ股
小田
依藤
永禮
林
加藤
石藤
駒井
末吉
山本
芦野
樽井
野上
岡田
木村
池田
西村
藤澤
達川
奥原
那須
1/3
今週のPick Upページ
![]()
ご利用頂いたお客様の口コミ・レビューを「お客様の声」として掲載しております。
全てのご感想を掲載しておりますので、エクスショップの評判としてご参考ください。
正式お見積りと一緒に提出させて頂いております「工事概略図面」もご覧頂けます。
商品や設置場所のご検討にお役立てください。
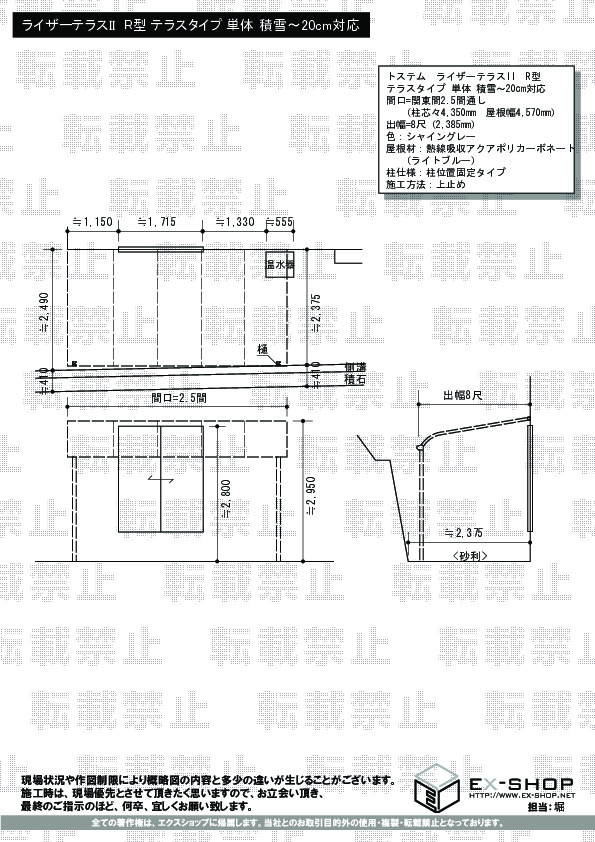
(写真No:4899741)
(テラス屋根)
| カラー | シャイングレー |
|---|---|
| サイズ | 屋根幅 4,570mm 出幅 2,385mm |
| 柱仕様 | 柱位置固定タイプ |
| 屋根材 | 熱線吸収アクアポリカーボネート(ライトブルー) |
| 工事方法 | メーカー責任施工 |
初めて利用するので、少し不安はあったのですが、注文して現場調査に来てもらって注文した商品はサイズが合わなかったのですが加工代金、他の商品色々と丁寧に説明してくれて、助かりました。
この度は、ライザーテラスII R型の施工をご依頼頂きまして、誠に有り難うございます。出幅切詰加工により、ご自宅の敷地にぴったりのテラス屋根を設置することができ、私どもも安堵致しました。自然の力で汚れの少ない状態を保ちながら、強い日差しもカットする熱線吸収アクアポリカーボネート(ライトブルー)のお屋根ですので、永くご愛用頂けましたら幸いでございます。また機会がございましたら、是非エクスショップにご用命くださいますよう、宜しくお願い致します。
当サイトは以下のセキュリティ機能や保護認定等を備えています。安心してお申し込みください
当サイトはSSL暗号化に対応しています。入力した個人情報は暗号化して送られますので、安心してご利用ください。
当社はJADMAの正会員です。同協会は法律で位置づけられた団体で、消費者の利益保護と業界の健全な発展の為に活動しています。
こちらの工事に使用しているエクステリア
![]()
スピーネ R型 テラスタイプ 単体

工事費・税込
88,100円〜
総合平均評価(星5つ評価)
4.68
商品レビュー数
339件
LIXILの新テラス屋根スピーネ。広い地域に対応ができる積雪〜20cmタイプです。緩やかなカーブでどんなご自宅にでもマッチングいたします。
この商品の詳細へ
無料お見積り・現場調査・ご注文もこちら
この商品のレビュー
商品レビュー339件

神奈川県 平塚市 O.Y.様
屋根の桟と桟の幅が広く、少しチープな感じがするのが、想定外でした。

大分県 大分市 K.S.様
サイズも良く、見た目も良い。 仕上がりも大変満足。

千葉県 千葉市 S.M.様
不満は全くありません。60センチの積雪の場合はどうなるか、台風の時はどうなるか、少し不安はありますが。

神奈川県 厚木市 Y.S.様
丁度良いもう少し前に張り出してもよかったかと思います。

群馬県 太田市 M.S.様
脚の固定部分がちょっと思っていたより雑な感じがしました。地盤が土だったので仕方がないとは思っています。

静岡県 掛川市 M.A.様
屋根材をポリカのクリアブルーにして明るさを確保できたので良かった。

栃木県 足利市 N.Y.様
陽の光もしっかり入りますが直射日光は避けられるので夏場が少し快適になりそうです。

茨城県 常陸大宮市 W.A.様
使い勝手も良く高さもあるので気に入ってます。

三重県 四日市市 N.Y.様
洗濯物干しの雨避けの為に設置しました。 耐久性に付いては年数を経過した段階出判断したいと思いますが配管のサポート材が樹脂性の為に爪の割れに依る配管外れ等は少し心配です。

宮城県 仙台市 T.K.様
作りもしっかりしてるし色も外壁にあっていて思っていた以上にいい感じで大変満足してます。

鹿児島県 鹿児島市 S.T.様
他の既設のテラス屋根に合わせて頂いたので、違和感のないできあがりでした。

福岡県 八女郡広川町 M.N.様
まだテラスも出来たばっかりですが、今後も役に立ってくれそうです。

三重県 桑名市 N.T.様
見た目も良く雨にも濡れずに作業をする事ができるので、とても満足しています。
関連するお客様の声

5つ星のうち5
福岡県M.N. 様回答日:2022年9月
出窓が3ケ所ありますが、屋根もなく雨の時も必ず閉め忘れないように気を付けています。一人生活なもので外出するときは特に気を使います。そこの3ケ所分をテラス施工で換気など出来るようになりました。施工者の方にも大変お世話になりました。ありがとうございます。

5つ星のうち5
兵庫県W.H. 様回答日:2021年4月
勝手口を出たところにゴミ箱を設置しているが、屋外のため雨の日には使うのをためらわれた。雨の日も使いたくて、それならばテラス屋根を設置しようという流れになった。物置は、アウトドア用品や自動車用品の収納のため。サイクルポートを設置していたが、風の強い日に飛ばないか心配かつリスクもあるので物置の設置はゆくゆくしたかった。

5つ星のうち5
埼玉県N.S. 様回答日:2020年9月
新しく車を購入し、大切な車を守るためにカーポートを設置していただきました。一緒にウッドデッキにテラス屋根を付けていただきました。カーポートを設置して紫外線や雨から車を守ることが出来ています。また、テラス屋根を設置したことでウッドデッキに面したリビングに直接日が当たらず涼しいです。雨の日も窓を開けておけるので天気が悪い日も開放感があります。

5つ星のうち5
愛媛県F.K. 様回答日:2020年1月
以前はテント型のサイクルガレージを使用していたが、強風により破損してしまった。そのため、サイクルポートを設置しようと思っていたが、金額が高額なため二の足を踏んでいた。その際に、偶然に弊社のホームページを見て、その豊富な品ぞろえや安さに心惹かれるものがあった。

5つ星のうち5
鹿児島県S.T. 様回答日:2018年8月
以前設置されていたテラス屋根は約30年ほど使用し、老朽化でパネルが割れてしまいました。出幅が1.5mほどしかなく、洗濯物を干す際に非常に動きづらかったのですが、今回設置してもらったものは2m強ありますので、動きやすくなり大変満足しております。

5つ星のうち4
埼玉県H.A. 様回答日:2025年9月
前々からテラス屋根を付けたくて検討してました。1社見積もりを取ったのですが、高すぎた為エクスショップさんにお見積もりをお願いしました。設置前と比べて、雨がかからず見た目も良くなり大満足です。最初、ネットでのやり取りに不安がありましたが対応も早く、納得するまでご対応いただき良かったです。

5つ星のうち5
福岡県I.Y. 様回答日:2025年8月
家をフルリノベーションしたのですが、家の形が独特なので玄関から軒までの高さがあり、玄関に庇をつけると変になりそうだったので庇のない玄関だったのですが、ちょうど西向きの玄関なので夏は西陽が厳しく、雨の日は、玄関の中まで振り込んでくるようなこともあり、今回のプレーンルーフに一目惚れし、決定しました。まだ2日目ですが明らかに玄関の暑さも緩和されました。雨の日の様子はまだ分かりませんが、見た目も思っていた以上に素敵になり家全体が締まった感じでとてもカッコいいです。いろいろ悩みましたがとてもよかったです。そしてエクスショップさんから派遣していただいた業者さんもとても丁寧でいろいろ確認しながら施工していただいて西陽があたる暑い中の作業にも関わらず迅速丁寧な作業に感謝の思いです。この度は本当にありがとうございました。また機会があったらよろしくお願いします。

5つ星のうち5
栃木県H.S. 様回答日:2025年4月
ある事情で2年前に止めた工事を完遂させた。ウッドデッキ全体と通路をほぼ全体を覆うことにより、夏場の暑さ対策並びに自転車置き場の確保を狙い目とした。仕事の品質、コスト対応力に優れていると感じ、引き合いしたがなかなかのものでした。作業をする方も勤勉で対応も良かった。総合的に満点以上で十二分に満足でした。
関連するブログ記事
関連するよくあるご質問
TOEXの樹の木テラスの取り扱いはありますか?
【商品カテゴリ >テラス屋根】(ご質問No.67)
タカショーのJ/EUポーチ(独立タイプ)の取り扱いはありますか?
【商品カテゴリ >テラス屋根】(ご質問No.166)
人工石貼りのガーデンテラスの取り扱いはありますか?
【商品カテゴリ >テラス屋根】(ご質問No.235)
プレシオステラス R型 テラスタイプ 単体に前面スクリーンをつけることはできますでしょうか?
【商品カテゴリ >テラス屋根】(ご質問No.334)
柱奥行移動タイプにする場合、柱から屋根先が何センチくらい出っ張るようになるのでしょうか。
【商品カテゴリ >テラス屋根】(ご質問No.567)
はじめまして。二階建て住宅に住んでおります。一階のテラス屋根が一部破損してしまったので、修繕を考えております。
【商品カテゴリ >テラス屋根】(ご質問No.624)
敷地に合わせて切詰め加工できますか?
【商品カテゴリ >テラス屋根】(ご質問No.735)
柱固定仕様と出幅自在桁・柱奥行移動仕様の違いはどんなものですか?
【商品カテゴリ >テラス屋根】(ご質問No.736)
物干しの金額は見積に含まれますか?他にどんなオプションがあるのか教えてください。
【商品カテゴリ >テラス屋根】(ご質問No.737)
テラス屋根の取り付け見積とその他の製品について相談したく思います。
場所は総社市です。宜しくお願いします。
【商品カテゴリ >テラス屋根】(ご質問No.942)


















