お客様の声(工事例)

ご利用頂いたお客様の口コミ・レビューを「お客様の声」として掲載しております。
全てのご感想を掲載しておりますので、エクスショップの評判としてご参考ください。
正式お見積りと一緒に提出させて頂いております「工事概略図面」もご覧頂けます。
商品や設置場所のご検討にお役立てください。

毎日更新 安心と信頼の工事実績
声の掲載数
177,246
商品工事数
220,287
(2025年10月02日現在)

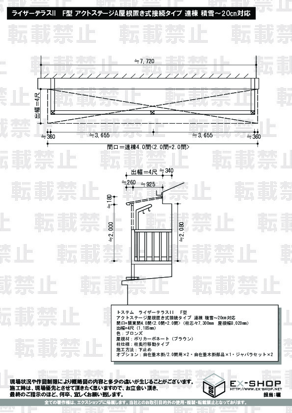
東京都調布市とうきょうと ちょうふし のLIXIL リクシル(トステム)バルコニー・ベランダ屋根施工例(ライザーテラスII F型 アクトステージA屋根置き式接続タイプ 連棟 積雪〜20cm対応)

東京都調布市のLIXIL リクシル(トステム)のバルコニー・ベランダ屋根 ライザーテラスII   F型 アクトステージA屋根置き式接続タイプ 連棟 積雪〜20cm対応 施工例

(写真No:4298146)

ライザーテラスII F型 アクトステージA屋根置き式接続タイプ 連棟 積雪〜20cm対応

カラー ブロンズ
サイズ 屋根幅 8,020mm 出幅 1,185mm
柱仕様 柱奥行移動タイプ
屋根材 ポリカーボネート(ブラウン)
工事方法 地域密着あんしん施工

お客様の感想 評価: 5つ星のうち

バルコニー屋根は、当初R型を考えていたが、現場調査時に高さがあまりないとのことでF型を勧められその他も的確なアドバイスをしてくれました。発注から施行日(土曜日)迄混んでいるとのことで約1ヶ月後となりましたが、工事業者は感じの良い人で丁寧な仕事をしてくれました。

エクスショップ担当者より

ライザーテラスII F型が、すっきりと納まり、既存のバルコニーにもぴったりマッチした施工となりましたこと、大変嬉しく存じます。 ポリカーボネート(ブラウン)の屋根材のフラットなお屋根は、開放感がございますね。担当致しました施工士に温かいお褒めのお言葉をお寄せ頂き、誠に有難うございます。施工士にとりましても、こういったお喜びのお言葉が何より励みとなっております。今後は、丁寧な対応とともに、スピードの面でもご満足頂けますよう、努力して参りたいと存じます。また機会がございましたら、是非エクスショップをご利用頂けますよう、宜しくお願い致します。

この工事例についてのお問い合わせ

下のフォームの全項目にご入力の上、確認画面へ進んでください。
(※お客様にご入力いただいた情報は、セコムSSLにて暗号化され、安全に送信されます。)

お名前
(ふりがな)
せい めい
ご住所 都道府県:
メールアドレス

メールアドレスを持っていない(info@ex-shop.netが自動入力されます)

お電話番号
お問い合わせ内容

上の「お問い合わせフォーム」に必要事項を全て入力されましたら、
次の入力内容の確認ページへと進んでください。

確認画面へ進む

第三者への転売等を目的とする建設関連業者様からの施工のご依頼は、申し訳ありませんがお断りしております(※商品のみのご購入には対応しております)。

こちらの工事に使用しているエクステリア

LIXIL

スピーネ F型 屋根タイプ 単体

  • 50%OFF
  • さらに特別値引

工事費・税込

90,000円〜

総合平均評価(星5つ評価)

4.74

商品レビュー数

500

LIXILの新テラス屋根スピーネ。雨や雪の入り込みを防ぎ、さらに視線も遮る目隠しスクリーンも取り付けられるテラスです。斜めなどの加工も対応が可能なシンプルスタイルです。

この商品のレビュー

エクスショップが選ばれる7つの理由

高価な買い物だから、工事が必要な商品だから、ネットを介した購入だから、工事実績豊富で価格面も安心!のエクスショップが選ばれています。

25年連続NO.1エクステリアネット販売実績2000〜2024

  • 極限価格 割引率最大69%+α OFF!!
  • 現場調査&お見積り工事開始まですべて無料! 仕様変更による再見積りももちろん無料!
  • 全国対応 地域密着 1,613店 お近くの当社提携施工店が工事対応します!
  • メーカー取り扱い商品点数 豊富な10,000商品
  • 掲載中の施工実績&お客様の声 170,000件の実績!!
  • 商品&施工、安心のダブル保証! 商品2年施工10年
  • お客様情報をあらゆる面から守ります 安心セキュリティ

ページトップへ