日光、雨・風を防ぎバルコニーを快適に
お庭に屋内空間を拡張
セット購入でお値引きお得な価格で快適生活
快適なガレージには必須
お庭に憩いのスペースを作り出します
防犯、お家のドレスアップはこれで決まり
各取扱メーカーの会社名、ロゴ及び商品名等は各社の商標または登録商標です。
| 日 | 月 | 火 | 水 | 木 | 金 | 土 |
|---|---|---|---|---|---|---|
| 1 | ||||||
| 2 | 3 | 4 | 5 | 6 | 7 | 8 |
| 9 | 10 | 11 | 12 | 13 | 14 | 15 |
| 16 | 17 | 18 | 19 | 20 | 21 | 22 |
| 23 | 24 | 25 | 26 | 27 | 28 | 29 |
| 30 |
| 日 | 月 | 火 | 水 | 木 | 金 | 土 |
|---|---|---|---|---|---|---|
| 1 | 2 | 3 | 4 | 5 | 6 | |
| 7 | 8 | 9 | 10 | 11 | 12 | 13 |
| 14 | 15 | 16 | 17 | 18 | 19 | 20 |
| 21 | 22 | 23 | 24 | 25 | 26 | 27 |
| 28 | 29 | 30 | 31 |
…休業日(現場調査・工事は一部対応)
![]()
【受付時間】9:30 - 17:30(営業日)
![]()
【受付時間】9:30 - 17:30(営業日)
オペレーションスタッフ
エクステリアプランナー有資格者の私たちにお任せください。
ショップ責任者
神(じん)
エクステリア プランナー
有資格者61名
1/3
木附
枡田
重富
吉澤
吉野
小東
池本
山田
佐藤
白崎
新西
伊野
次田
浅川
南
西山
小林
梨田
長谷川
藤田
阿重田
村上
植松
内田
久田
小野
平戸
中島
長石
水口
榮
山崎
清水
室谷
安田
水谷
酒井
神吉
日下部
山中
深田
田中
水田
西田
一氏
岡本
北
坂本
中嶋
岩野
伊藤
上中
高山
竹本
犬井
佐伯
谷川
原
丸山
塚田
松本
上内
島田
森
梅田
松山
山本
小林
倉地
山根
中原
河野
村上
土井
岩破
南
井上
三ツ股
小田
依藤
永禮
林
加藤
石藤
駒井
末吉
山本
芦野
樽井
野上
岡田
木村
池田
西村
藤澤
達川
奥原
那須
小西
森下
1/3
今週のPick Upページ
![]()
ご利用頂いたお客様の口コミ・レビューを「お客様の声」として掲載しております。
全てのご感想を掲載しておりますので、エクスショップの評判としてご参考ください。
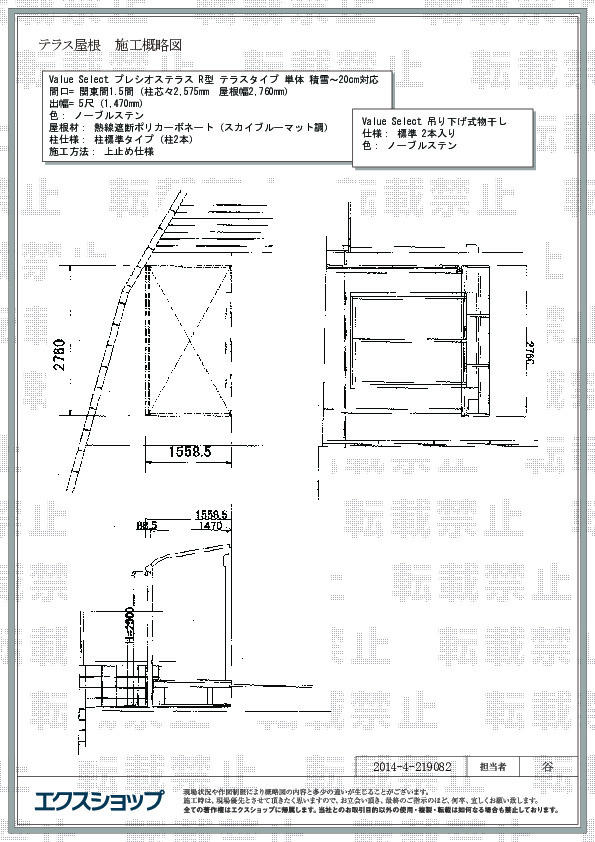
正式お見積りと一緒に提出させて頂いております「工事概略図面」もご覧頂けます。
商品や設置場所のご検討にお役立てください。
(写真No:21908224)
(テラス屋根)
| カラー | ノーブルステン |
|---|---|
| サイズ | 屋根幅 2,760mm 出幅 1,470mm |
| 柱仕様 | 柱標準タイプ(柱2本) |
| 屋根材 | 熱線遮断ポリカーボネート(スカイブルーマット調) |
| 工事方法 | 地域密着あんしん施工 |
現場見積もりも良い対応で、決して高価な方を勧められるわけでもなく、気持ちよく契約できました。工事も多少予定時間はオーバーしましたが、キッチリとし仕事をこなして頂き大変満足できる買い物となりました。
お客様にご満足頂ける施工内容となりまして、私どもも大変安堵しております。弊社では「格安のお値段での最高品質の商品提供」をモットーとしておりますので、このようなお言葉を頂戴出来ます事は、何よりの励みとなります。今後もお客様の温かいお言葉を無駄にせぬよう、日々精進して参る所存でございます。アール型にカーブしたプレシオステラスは雨風の吹込みを軽減し、雨天時も快適にご利用頂ける事と存じます。今後もお客様の笑顔の為日々精進して参りますので、また機会がございましたらエクスショップをご利用下さいますよう、宜しくお願い致します。
当サイトは以下のセキュリティ機能や保護認定等を備えています。安心してお申し込みください
当サイトは256ビットSSL暗号化に対応しています。入力した個人情報は暗号化して送られますので、安心してご利用ください。
当社はJADMAの正会員です。同協会は法律で位置づけられた団体で、消費者の利益保護と業界の健全な発展の為に活動しています。
こちらの工事に使用しているエクステリア
![]()
プレシオステラスU R型 テラスタイプ 単体

工事費・税込
64,200円〜
総合平均評価(星5つ評価)
4.69
商品レビュー数
194件
プレシオステラスU R型 テラスタイプ 単体はエクスショップオリジナルブランドのアール屋根仕様のテラス屋根です。商品カラーはシンプルで外観と馴染みやすいノーブルステン、グレースブラウン、チャコールブラックの3種類をご用意しています。
この商品の詳細へ
無料お見積り・現場調査・ご注文もこちら
この商品のレビュー
商品レビュー194件

兵庫県 加西市 S.S.様
メーカー品であるため、とてもいいものだと思います。お値段もすばらしい価格だと考えます。

千葉県 千葉市 H.M.様
コストパフォーマンスに優れ、必要にして十分だと思います。

愛媛県 東温市 N.T.様
今回、他の業者とも比較し、工費含め安価であったことで、テラス(物干し:オプション)及びデッキを注文しました。設置場所を自身で計測し、ネットでの注文ということで仕上がりにはかなり不安を感じていました。担当者の方とメールや電話で質問など何度かやり取りしましたが対応やレスポンスもよくしていただきました。工事においても丁寧に対応していただき満足いけるものが完成したと感謝しております。今後、カーポートなどの設置も考えており、次回もお願いしようと思います。

埼玉県 鴻巣市 I.S.様
素材がしっかりしていて、R屋根のお洒落なデザインと熱線遮断ポリカーボネート(スカイブルーマット調)が気に入っています。妻は、見積が大変安かったので、かなり品祖なテラス屋根をイメージしていたようで、驚いていましたし素直に喜んでいました。

栃木県 宇都宮市 I.H.様
満足。 しいて言うなら取り付け高さがもう少し低くてもよかった。

島根県 出雲市 T.A.様
予想していた以上にしっかりした作りでした。

神奈川県 横浜市 U.Y.様
夏場にならないと評価はできないものの、仕上がりは満足。屋根の色が思っていた以上に濃いことに驚いたが、やはり熱射軽減のためにはこの程度は必要なのかも知れない。 ホワイトの在庫がなかったことが残念。

熊本県 菊池郡大津町 F.K.様
何かと値上がりしているこのご時世にしては、値段と製品性能は満足できると思います。

東京都 多摩市 K.Y.様
見た目は他ブランドと変わらず、安価で購入できて満足です。

東京都 多摩市 K.Y.様
見た目は他ブランドと変わらず、安価で購入できて満足です。

東京都 足立区 W.M.様
お見積もりの際に合うものをすすめていただきました。ピッタリで気に入ってます。

福岡県 筑後市 E.K.様
外で作業する際、雨を気にせずできるようになりました

奈良県 磯城郡川西町 N.T.様
母親が欲しい言っていました。 設置後大変喜んでいます。

佐賀県 唐津市 B.H.様
屋根があるので、急な雨でも安心して洗濯物が干せるようになったのが嬉しいです。
関連するお客様の声

5つ星のうち4
栃木県H.S. 様回答日:2012年11月
工事日に施工業者が、予定時間に来なかったので焦りました。少しし遅れて到着しましたが、夕方前には工事が終わってました。とても良い買い物ができてよかったです。また機会があったらお願いするかも知れません。

5つ星のうち5
千葉県F.Y. 様回答日:2012年3月
問い合わせしてから現場見積もりまでとても迅速で良かったです。メールだけでなく、電話も頂けたので、私としては安心感がありました。発注、施工までもスムーズで、思っていたよりは早く施工できて良かったです。施工担当の方も、とても良く、丁寧な仕事をしてたと思います。

5つ星のうち5
福岡県S.K. 様回答日:2011年10月
予想以上に丁寧な対応、連絡をしていただき大変満足です。ただ、エクスショップ担当者が工事に直接関わるわけではないので、担当者に伝えた内容が工事の方に伝わっていなかったのが残念ですが…。でも工事の方がこれまた良くて、時間のことなど当日に変更していただき大変助かりました。ぜひまた利用したいです。ありがとうございました。

5つ星のうち5
三重県H.M. 様回答日:2012年3月
インターネットによる初めての設置工事を伴う商品購入でしたので、粗悪な設置工事にならないか不安でしたが、丁寧に施工いただき、完成すると製品の見栄えも良く、大変満足しています。設置工事が終わるまでは、高価な買い物だったかな?と思っていましたが、安価で満足のいく買い物になりました。施工担当の方には、現場調査及び施工時、丁寧に対応いただき、ありがとうございました。

5つ星のうち5
埼玉県I.S. 様回答日:2024年1月
今回、カーポートとテラス屋根を設置していただきました。カーポートは、車を霜(雨・熱・紫外線など)と鳥の糞から守るため、テラス屋根は、雨の降り込みと近隣の目線対策が主な目的です。設置して2日目ですが、目的は達せられたものと満足感に浸っているところです。2つの工事を同時に発注できたのも、エクスショップ特価のお陰だと感謝しています。

5つ星のうち5
愛媛県N.T. 様回答日:2024年1月
暗く感じていた庭がゴージャスになったように思います。また、庭への行き来が増え有効活用できていると感じています。ネットに掲載している商品については、もう少し詳細な情報や取扱説明書などもあればより分かりよいと思います。また、注文画面は、今回のキャンペーンなどわかりにくい部分もあり改善の余地があろうかと思います。

5つ星のうち5
熊本県F.K. 様回答日:2023年4月
以前に玄関前に雨よけにと思いテラス屋根を取り付けて頂きましたが、思いのほか設置して良かったです。今回は妻とペットの住む部屋に差し込む陽射し対策として日よけシェードは不十分なので、日差し熱の対策としてもテラス屋根は適しており圧迫感もなく快適に過ごせると思います。

5つ星のうち4
神奈川県U.Y. 様回答日:2023年4月
以前からあるガーデンアーチとの組み合わせ両開き門扉に左右差が生じてしまい閉めにくくなってしまった。新設の門扉はデザイン、色調も周囲と調和し、機能的になった。又、南側は夏の陽射しが強いためシェードでしのいできたが、掃き出し窓の外側に熱射を緩和するテラス屋根を設け、合わせて縁台を設置したことで快適さがずいぶんと増した。

5つ星のうち5
宮城県S.M. 様回答日:2023年1月
安心して施工を頼めたことと、金銭的にもリーズナブルでありました。この施工によりカーポートから玄関まで天候に左右されずに家へ入れます。利用の感想は、さまざまな連絡事についてメールのみに固執せず、電話での対応もして頂き、忙しい身においては大変助かりました。

5つ星のうち5
福岡県T.H. 様回答日:2025年4月
・商品のきっかけとなったのは、色々なサイトでテラス屋根を調べていたらエクスショップにたどり着きました。かなり、値段が安かったので、少し疑いながら見積もりをお願いしました。担当者も工事見積の方もとても親切でお願いしようと思いました。結果、今までの考えが変わり、再度他の場所も注文しました。信頼できるショップです。
関連するブログ記事
関連するよくあるご質問
TOEXの樹の木テラスの取り扱いはありますか?
【商品カテゴリ >テラス屋根】(ご質問No.67)
タカショーのJ/EUポーチ(独立タイプ)の取り扱いはありますか?
【商品カテゴリ >テラス屋根】(ご質問No.166)
人工石貼りのガーデンテラスの取り扱いはありますか?
【商品カテゴリ >テラス屋根】(ご質問No.235)
プレシオステラス R型 テラスタイプ 単体に前面スクリーンをつけることはできますでしょうか?
【商品カテゴリ >テラス屋根】(ご質問No.334)
柱奥行移動タイプにする場合、柱から屋根先が何センチくらい出っ張るようになるのでしょうか。
【商品カテゴリ >テラス屋根】(ご質問No.567)
はじめまして。二階建て住宅に住んでおります。一階のテラス屋根が一部破損してしまったので、修繕を考えております。
【商品カテゴリ >テラス屋根】(ご質問No.624)
敷地に合わせて切詰め加工できますか?
【商品カテゴリ >テラス屋根】(ご質問No.735)
柱固定仕様と出幅自在桁・柱奥行移動仕様の違いはどんなものですか?
【商品カテゴリ >テラス屋根】(ご質問No.736)
物干しの金額は見積に含まれますか?他にどんなオプションがあるのか教えてください。
【商品カテゴリ >テラス屋根】(ご質問No.737)
テラス屋根の取り付け見積とその他の製品について相談したく思います。
場所は総社市です。宜しくお願いします。
【商品カテゴリ >テラス屋根】(ご質問No.942)


















