バイク・自転車を雨風から保護
お家の収納能力をアップ
ガレージの保全・防犯にカーポートと合わせて
お庭に機能的スペースを作り出します
防犯、お家のドレスアップはこれで決まり
ガレージ商品とコンビで高級感を演出
各取扱メーカーの会社名、ロゴ及び商品名等は各社の商標または登録商標です。
| 日 | 月 | 火 | 水 | 木 | 金 | 土 |
|---|---|---|---|---|---|---|
| 1 | ||||||
| 2 | 3 | 4 | 5 | 6 | 7 | 8 |
| 9 | 10 | 11 | 12 | 13 | 14 | 15 |
| 16 | 17 | 18 | 19 | 20 | 21 | 22 |
| 23 | 24 | 25 | 26 | 27 | 28 | 29 |
| 30 |
| 日 | 月 | 火 | 水 | 木 | 金 | 土 |
|---|---|---|---|---|---|---|
| 1 | 2 | 3 | 4 | 5 | 6 | |
| 7 | 8 | 9 | 10 | 11 | 12 | 13 |
| 14 | 15 | 16 | 17 | 18 | 19 | 20 |
| 21 | 22 | 23 | 24 | 25 | 26 | 27 |
| 28 | 29 | 30 | 31 |
…休業日(現場調査・工事は一部対応)
![]()
【受付時間】9:30 - 17:30(営業日)
![]()
【受付時間】9:30 - 17:30(営業日)
オペレーションスタッフ
エクステリアプランナー有資格者の私たちにお任せください。
ショップ責任者
神(じん)
エクステリア プランナー
有資格者61名
1/3
木附
枡田
重富
吉澤
吉野
小東
池本
山田
佐藤
白崎
新西
伊野
次田
浅川
南
西山
小林
梨田
長谷川
藤田
阿重田
村上
植松
内田
久田
小野
平戸
中島
長石
水口
榮
山崎
清水
室谷
安田
水谷
酒井
神吉
日下部
山中
深田
田中
水田
西田
一氏
岡本
北
坂本
中嶋
岩野
伊藤
上中
高山
竹本
犬井
佐伯
谷川
原
丸山
塚田
松本
上内
島田
森
梅田
松山
山本
小林
倉地
山根
中原
河野
村上
土井
岩破
南
井上
三ツ股
小田
依藤
永禮
林
加藤
石藤
駒井
末吉
山本
芦野
樽井
野上
岡田
木村
池田
西村
藤澤
達川
奥原
那須
小西
森下
1/3
今週のPick Upページ
![]()
ご利用頂いたお客様の口コミ・レビューを「お客様の声」として掲載しております。
全てのご感想を掲載しておりますので、エクスショップの評判としてご参考ください。
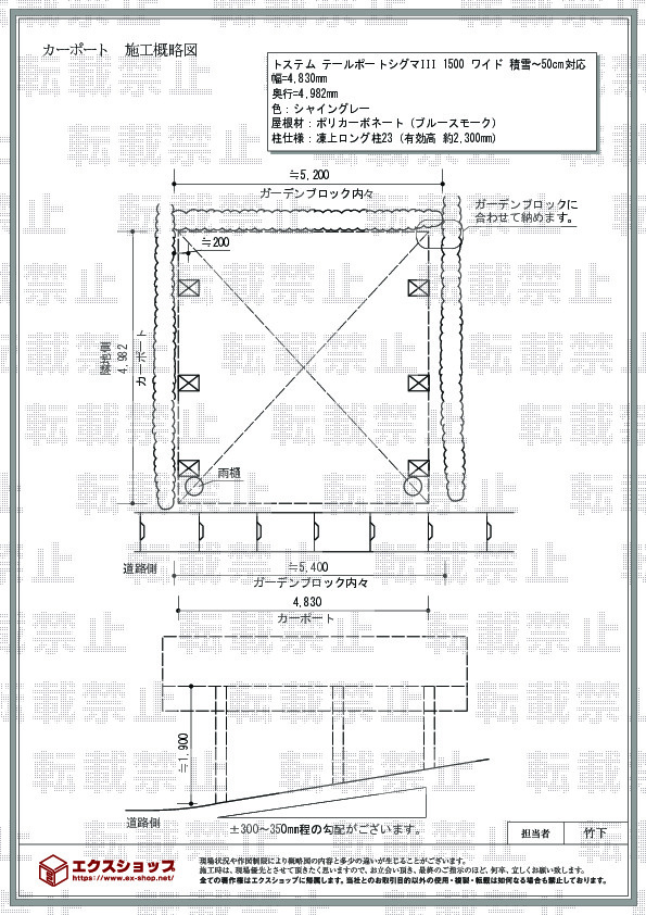
正式お見積りと一緒に提出させて頂いております「工事概略図面」もご覧頂けます。
商品や設置場所のご検討にお役立てください。
(写真No:18958611)
(カーポート)
| カラー | シャイングレー |
|---|---|
| サイズ | 幅 4,830mm 奥行 4,982mm |
| 屋根高等 | 凍上ロング柱23(有効高 約2,300mm) |
| 屋根材等 | ポリカーボネート(ブルースモーク) |
| 工事方法 | メーカー責任施工 |
製品、品物でないカーポートの組み立てという工事をネットで発注して大丈夫なのかという問題があったが現場調査の人と担当者との会話で対応可能と判断しました。工事は若い3人が慣れた手つきで支柱固定のための1mの穴ほりから始めて、その後、組み立ても丁寧にしっかりと施工してくれたので、これならば冬場でも問題ないと安心しました。
顔のみえないネット販売にはご不安がおありだったかと存じますが、弊社を信頼して、施工までお任せ頂いたことを誠に嬉しく存じます。施工のご依頼を頂きましたテールポートシグマIIIが、堂々としており、頼もしい存在でございますね。お気に召して頂き、永くご愛用頂けましたら幸いでございます。今後もさらなる努力を重ね、全ての方に安心して利用して頂けるショップを目指してまいります。また機会がございましたら、是非エクスショップにご用命くださいますよう、宜しくお願い致します。
当サイトは以下のセキュリティ機能や保護認定等を備えています。安心してお申し込みください
当サイトは256ビットSSL暗号化に対応しています。入力した個人情報は暗号化して送られますので、安心してご利用ください。
当社はJADMAの正会員です。同協会は法律で位置づけられた団体で、消費者の利益保護と業界の健全な発展の為に活動しています。
こちらの工事に使用しているエクステリア
![]()
フーゴ R 袖壁 1500 2台用(ラウンドスタイル)

工事費・税込
705,300円〜
フーゴ R 袖壁 1500 2台用(ラウンドスタイル)は側風や雪、雨を和らげるカバー力が特徴の並列に2台駐車ができるカーポートです。高さのある車にも楽に対応できるH22柱を標準装備しています。基準風速Vo=38m/sに対する耐風性能と、50cmの積雪に対応しています。
この商品の詳細へ
無料お見積り・現場調査・ご注文もこちら
関連するお客様の声

5つ星のうち5
群馬県T.Y. 様回答日:2011年7月
インターネットと言う心配もありましたが、他の人の感想を見て「これなら問題無い」と判断してエクスショップにお願いしました。

5つ星のうち4
埼玉県K.N. 様回答日:2014年5月
特に問題もなく、よかったと思います。地域により、施工をする人も違うと思うので、仮に問題があれば、問い合わせなどをすれば解消されると思います。

5つ星のうち5
東京都N.K. 様回答日:2014年10月
メールでのやりとりや質問に対する返答など、とても迅速で好感がもてました。見積もりに来ていただいた担当の方の説明もわかりやすかったです。工事の担当者もとても礼儀正しく、はつり工事やカーポート本体の組み立ても、気を使った丁寧な仕事をしていただきました。また何かあれば是非利用させていただきたいです!

5つ星のうち4
滋賀県H.T. 様回答日:2013年12月
思っていたよりも早く工事が終わり、良かったです。出来上がりにも、特に問題なく、追加の工事もすぐに対応していただけました。

5つ星のうち4
宮城県M.M. 様回答日:2014年5月
ネットでの発注は初めてででしたが、メールでのやり取りも、施工もスムーズで全く問題ありませんでした。ありがとうございました。

5つ星のうち4
愛知県I.T. 様回答日:2013年8月
現場調査の日程等で少し不安になることがありましたが、その後の対応はよかったです。カーポートとテラス屋根の施工でしたが問題なく終わったので安心しました。

5つ星のうち5
大阪府N.A. 様回答日:2010年10月
工事の会社は特に指定しませんでしたが、とても気分のよい方達が組み立てに来てくださり、また何かあればお願いしたいと思いました。

5つ星のうち5
長野県K.S. 様回答日:2017年8月
駐車場の雪かきが大変だったこと、フロントガラスの霜取りに時間がかかるためカーポートの設置を考えてネットを見てエクスショップを知りました。ネットでの取引で心配でしたが、工事例が参考となりテールポートシグマVワイドにしました。従来よりのオーバードアとのマッチングも気に入りました。工事担当の方も地元の方で親切に対応して頂けました。

5つ星のうち4
長野県S.S. 様回答日:2017年4月
当初フラットタイプ積雪20pにてお願いしたが当地区が積雪50p対応地区で価格も大幅にアップしてしまい違うタイプにしましたが当地区は積雪が30〜50pになることはないです。ただし写真を見ていただけるとわかるように良い出来ばえだと思います。ありがとうございました。

5つ星のうち4
神奈川県T.A. 様回答日:2016年10月
ネットでカーポートを検討していたとき、耐積雪、耐暴風を考慮し、商品は当初から決めていた。ネットで工事業者を決めるとき、他社の商品選択が分かり辛かったので、貴社できめた。カーポート設置後は、いきなり早朝フロントガラスに夜露が付かなくなったので効果を実感した。

5つ星のうち5
北海道K.H. 様回答日:2016年6月
カーポート設置は、雨天時の乗り降りと冬季の除雪作業負荷軽減が目的です。苫小牧は北海道でも降雪が少ないことと、暗いのは嫌なためポリカーボネートで積雪50cm対応を選びました。雨天時は雨を気にすることもなく余裕をもって乗り降りできるようになりました。除雪はこれからですが期待しています。

5つ星のうち5
福島県Y.R. 様回答日:2016年3月
以前からカーポートの設置は考えていたのですが、今回車の購入にあたりカーポートの購入も決めました。柱のサイズ等もカットしていただき、低すぎず高すぎずとても満足しています。施工業者の方もどのような人が来るか最初心配だったのですが、とても丁寧な仕事で感謝しています。
関連するブログ記事
関連するよくあるご質問
カーポートの設置と一緒に土間コンクリートを打設できますか?
【商品カテゴリ >カーポート】(ご質問No.707)
既存のカーポート屋根材の張り替えの依頼はできますか?
【商品カテゴリ >カーポート】(ご質問No.21)
以前購入したカーポートの部品のみを追加で購入する事は可能ですか?
【商品カテゴリ >カーポート】(ご質問No.48)
ワイドタイプのカーポートですが、横幅の切り詰めは可能ですか?
【商品カテゴリ >カーポート】(ご質問No.69)
カーポートって何ですか?
【商品カテゴリ >カーポート】(ご質問No.28910)
既存のカーポートの柱の高さを桁上げする事は可能ですか?
【商品カテゴリ >カーポート】(ご質問No.43)
既存のカーポートをいったん解体し、再度組み立てることは可能ですか?
【商品カテゴリ >カーポート】(ご質問No.46)
四国化成のFリードカーポート収納庫付きタイプは取り扱ってますか?
【商品カテゴリ >カーポート】(ご質問No.74)
既存カーポートの支柱を流用して、増設、縦列2台用のカーポートを設置することは可能ですか?
【商品カテゴリ >カーポート】(ご質問No.84)
四国化成のマイポートneoの取り扱いはありますか?
【商品カテゴリ >カーポート】(ご質問No.88)


















