※ 販売終了商品
工事情報
| 工事対応エリア |
全国対応 |
|---|
商品について
| 形状 | 1台用片流タイプ |
|---|---|
| 積雪対応 | 〜20cmまで積雪対応 |
| 基準風速Vo | 34m |
| 保証 | 安心ダブル保証 |
| キャンペーン | 対象商品 |
ノーブルステン
グレースブラウン
チャコールブラック
商品規格
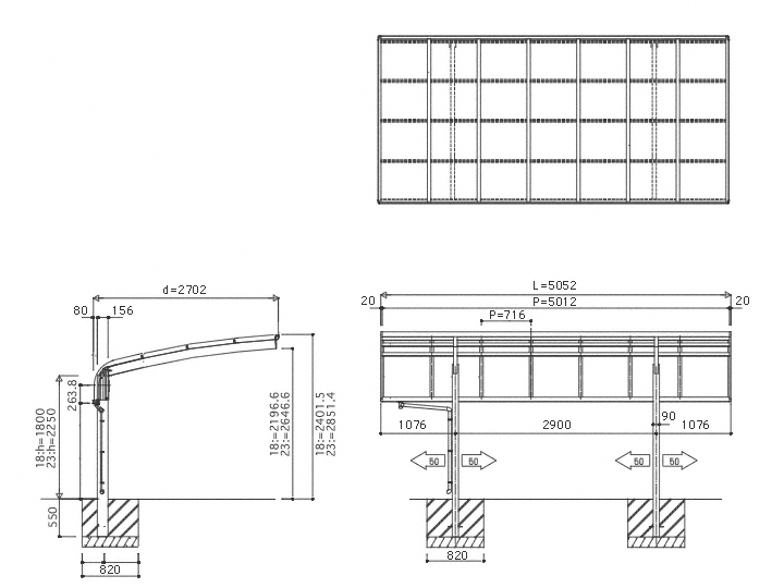
| 規格幅 | 2402mm / 2702mm |
|---|---|
| 規格奥行 | 5052mm |
| 屋根高タイプ | 標準柱仕様(有効高 約1,800mm) / ハイルーフ柱仕様(有効高 約2,250mm) |
プレシオスポート アルファは袖壁一体型仕様のエクスショップオリジナルブランドのカーポートです。アルファシリーズはアール形状の垂れ下がり屋根が特徴です。屋根材は紫外線透過率ほぼ0%の3種類のポリカーボネート板からお選びいただけます。

プレシオスポート アルファの特徴である袖壁はミニサイズのサイドパネルのような役割を持ち、雨・風の横からの侵入を抑えてくれます。商品カラーは全3色で、住宅外観に自然に調和するデザイン性を持ち合わせています。
総合評価5つ星のうち4.44.4
5つ星のうち5
埼玉県H.T. 様
2023年5月
前々から、カーポートを設置したいと考えておりましたが、御社にて設置していただき完成品を前に快適さを感じております。また、なかなか日程が決まらず不安を感じておりましたが、こちらの要望に対し営業担当者様には速やかにご対応されていただき安心を致しました。
5つ星のうち5
千葉県H.K. 様
2022年3月
今回、建て替えを依頼させて頂きました。解体を伴うため、他の業者だと工事を簡略化させるために前のカーポートの柱から位置をずらして建て替えようとしましたが、エクスショップ様ではきちんと撤去して同じ位置に工事をしていただきました。また、屋根を断熱のものとしたので、夏場は車が熱くならなそうで満足です。
5つ星のうち5
神奈川県K.K. 様
2021年9月
リピート利用です。カーポートは2台用がすでにあるが車が1台増えたため増設した。天板を熱線遮断ポリカ―ポネートにしため太陽光線がほとんど遮光でき満足しています。職人さんも愛想よくはありませんでしたが、聞けば丁寧に相談に乗ってくれました。今回は出入りの業者と合い見積もりを取りましたが断然エクスショップの方がコストパフォーマンスがよかったです。
5つ星のうち5
熊本県N.H. 様
2017年7月
震災後の建て直しに伴い、休日以外は自分の車に乗ることがなくなったのでカーポートを設置することにしました。以前までの露天駐車では鳥の糞などに悩まされたが、カーポート設置後はその心配もなくなり雨風も防げるようになったので車が汚れにくくなって大変満足です。震災後でどの業界も忙しくあまり期待していなかったが、思った以上に対応も早く施工業者の方も好印象でした。
5つ星のうち5
福岡県F.M. 様
2017年3月
ついでに近隣の施工店を見てみましたが、同程度の商品と比較しても絶対的に価格が安く、想像していたより実際の出来上がりが、しっかりしていました。今回車を買い替える際に、前車を下取りに出したのですが、通路に面した側の劣化が明らかだったので、やはり車を長持ちさせるには、カーポートは必要だと思いました。雨天の荷物の積み下ろしも濡れる事無く楽になりました。
5つ星のうち5
神奈川県K.K. 様
2016年3月
電動自転車を買って、雨ざらしにしたくなくて、せっかくだから車も一緒にカーポートを考えました。自転車のためでしたが、雨の日の車の乗り降りが格段に楽になりました。今まではこどもふたりを一人づつ傘で連れていき、親はずぶ濡れになりながら乗せてチャイルドシートつけてとしていましたがぬれなくて済むとなるととてもうれしいです。
5つ星のうち5
神奈川県S.S. 様
2015年8月
自転車とバイク用にカーポートを設置しました。サイクルポートだと建物とブロック壁の間に隙間が・・・。エクスショップのスタッフに電話で相談したら、切り詰め加工も大丈夫!との事でしたので工事をお願いしました。建物とのスペースを上手く利用してテラス屋根風に設置して頂けたので大満足です。
5つ星のうち5
広島県O.N. 様
2014年12月
見積りの依頼から、対応が早く、現地見積り、施工と1か月で完了しました。対応もメールでの質問等直ぐに回答があり、とても良かったです。施工業者の人も対応が良く、出来上がりも大変満足しています。金額もネット見積りより安くなりとても良かったです。ありがとうございました。
5つ星のうち5
広島県F.H. 様
2014年10月
注文してから施工完了まで、とてもスムーズに進みました。こちらの都合で急に施工日を変更してもらいましたが、迅速、丁寧に対応してくださりありがとうございました。また施工業者の方もとても仕事が速く、お昼過ぎには終わっていました。次の機会があれば是非利用させていただきたいと思いました。
5つ星のうち5
愛知県K.H. 様
2014年6月
以前に別の業者で発注した際に、見積から施工完了までの間、営業の人や施工者との打ち合わせ面談や電話やメールなど、あれもこれもで面倒臭いと感じたが、今回、連絡は簡潔だしメールだけで済んで、とてもカンタンで助かりました。料金もお値打ちに感じます。お世話になりありがとうございました。
5つ星のうち5
群馬県N.K. 様
2014年6月
初めての利用ですが、思っていたより手続きは簡単でした。現場調査では、地元の業者の方に来ていただき、アドバイスをいただきましたので、安心して発注できました。工事はスピーディーで、丁寧にやっていただきした。また機会がありましたら利用したいと思っています。
5つ星のうち4
広島県K.J. 様
2014年5月
始めはネットでの販売の為、不安もありましたが、(現場下見、見積り、工事)と進めて行く中で、エクスショップの担当者の方の対応も、親切で解りやすく、ネットでの販売もいいなと思いました。また、工事に関しても、手際良く綺麗に仕事をして頂きありがとうございました。
5つ星のうち5
埼玉県O.H. 様
2014年5月
出来栄えも素晴らしいが、施工業者も細かいところまで丁寧に気配りして施工して下さった。その施工姿勢を見ていると「本当に工事を注文してよかった」と心底思っています。本当にありがとうございました。施工業者のツルタアルミ工業さん有難うございました。
5つ星のうち4
三重県T.S. 様
2014年3月
見積もりから注文、実際の施工に至るまで常に丁寧迅速で大変満足しています。もちろん商品に関しても大満足!これで車の駐車やバイク仲間が遊びに来たときの駐輪場にもなるのでとても重宝します!今後ガレージ周りに手を加えていくのが一層楽しくなりそうです。
5つ星のうち4
東京都H.Y. 様
2014年2月
現場下見の時に来ていただいた方に設置方法や製品の詳細を説明いただいたので設置後のイメージがつきやすく助かりました。予定の施工日は天候不順のため延期となってしまいましたが、再日程の調整も迅速にしていただき問題はありませんでした。施工に来ていただいた方も感じもよく、時間通りに作業も終了し問題ありませんでした。
5つ星のうち5
神奈川県I.M. 様
2013年12月
皆さん、インターネットでの契約は不安だったと思います。私もその内の一人でした。でも、申し込みから取り付けまでしっかりと行ってくれて不安など無くなってしまいました。本当にしっかりした対応と工事でした、対面販売ではないと不安だと感じるかもしれませんがそれも工事終了時には変わっている事でしょう。
5つ星のうち5
大分県O.S. 様
2013年6月
はじめはネットで捜すのは不安もありましたが、県内の指定の業者さんは対応がとてもよく、下見にこられてから施工の日取りまでトントン拍子に決まりましたので喜んでいました。でも実際の施工が梅雨いりしてからになってしまったときは、やっパリ近くの業者さんにと思ったこともありましたが、施工に来てくださった方がとても感じのよい人ばかりで満足しています。
5つ星のうち5
埼玉県T.K. 様
2013年4月
ネットでの発注で最も心配だったのは、実際の施工業者の人柄と、施工の丁寧さでした。いずれも杞憂に終わり大変満足しています。ダルビッシュ似のイケメン君が一人で手際よく、しかも丁寧に仕上げてくれて大変満足しています。カーポート自体の品質も価格以上のものを感じました。
5つ星のうち4
千葉県O.I. 様
2013年4月
初めてのネットでの買い物で少し不安はありましたがメールと電話対応で少しづつその思いも薄らいでいきました。日程が雨と、こちらの都合とが合わず少し遅れましたが現地調査に来られた方も実際施工をされた方も良い方で屋根の色などで迷っていたら色々アドバイスも頂き素敵なカーポートが完成しました。
5つ星のうち5
福岡県K.S. 様
2012年11月
本体価格もそうですが、工事費が安かったので決めました。当初はネットでの発注ということもあり、施工面等に多少の不安もありましたが、現場調査,見積り,発注後の施工とスムーズに進めてもらいました。施工も2日かかるとの事でしたが1日で終わらしてもらい満足してます。施工してくれた職人さんが最後まで丁寧に掃除していってくれたのにとても好印象を受けました。
5つ星のうち5
三重県H.T. 様
2012年7月
メールのやり取りが非常に迅速かつ丁寧でした。また、当方からの質問に対し的確な回答が得られたことが大変大きかったです。施工業者様も施工前に何度かお会いしましたが、非常に信頼でき、施工に関して迷いはありませんでした。現在近所の方からも高い評判を得ております。
5つ星のうち5
神奈川県T.R. 様
2012年7月
居住地域の施工業者が丁寧に対応してくれたことが安心でした。工事期間が2日と短く、手際の良さもあり車を午後2時には別の保管場所から戻せ大変助かりました。また、本部の方は見積もり依頼から施工完了まで、状況確認のメール対応を迅速にいていただき安心できました。
5つ星のうち3
福岡県M.T. 様
2024年2月
車両の乗り換えの為、車両移動に伴う雨ざらし防止する為。
5つ星のうち5
長野県M.K. 様
2023年7月
見積り依頼から現地調査、正式見積りまで非常に迅速・丁寧でした。カーポート的な使い方と言うよりも雨と落雪で泥はねが激しかった場所に、ついでに車やバイク、自転車なども止められたら都合イイかなと考えて設置することにしました。エクスショップさんは初めてで不安な部分もありましたが、近隣の業者と比較しても価格的に安く、担当の方も価格面や質問に対しても対応が良かったので注文することにしました。日程調整で少し時間がかかり、さらに梅雨時の天候で日程がズレたりもしましたが施行業者さんが信頼出来る地元の業者さんで細かい部分の調整ができて良かったです。設置後は、駐車や物干し、日向ぼっこや焼肉などにいろいろと有効活用する予定です。
5つ星のうち5
神奈川県M.Y. 様
2023年6月
施工担当様は、以前も今回も良かったと思います。但し、施工者様への連絡を正確にした方が良いと思います。連絡上手く取れず作業時間足りなく成りました。
5つ星のうち5
兵庫県T.K. 様
2023年4月
門扉の下が擦れてたのが解消され、快適です。
5つ星のうち5
奈良県Y.Y. 様
2023年2月
お一人での作業でしたが、一日で手際よく丁寧な工事をしていただき、安心できるしあがりに感心しました。
5つ星のうち5
鳥取県T.S. 様
2023年2月
玄関の自転車が移動できて、玄関がひろくなりました。
5つ星のうち5
神奈川県K.M. 様
2023年1月
キャンバストップの自動車のキャンバスへのダメージ軽減の目的でカーポートを探していました。駐車エリアにピッタリのサイズでかつ想像以上にしっかりした構造でしたので、高い満足と安心感があります。
5つ星のうち5
大分県H.H. 様
2022年7月
車に日光が当たらないので車内が快適工事の人ものすごく感じが良かった。
バイク・自転車を雨風から保護
お家の収納能力をアップ
ガレージの保全・防犯にカーポートと合わせて
お庭に機能的スペースを作り出します
防犯、お家のドレスアップはこれで決まり
ガレージ商品とコンビで高級感を演出
各取扱メーカーの会社名、ロゴ及び商品名等は各社の商標または登録商標です。
| 日 | 月 | 火 | 水 | 木 | 金 | 土 |
|---|---|---|---|---|---|---|
| 1 | 2 | 3 | ||||
| 4 | 5 | 6 | 7 | 8 | 9 | 10 |
| 11 | 12 | 13 | 14 | 15 | 16 | 17 |
| 18 | 19 | 20 | 21 | 22 | 23 | 24 |
| 25 | 26 | 27 | 28 | 29 | 30 | 31 |
| 日 | 月 | 火 | 水 | 木 | 金 | 土 |
|---|---|---|---|---|---|---|
| 1 | 2 | 3 | 4 | 5 | 6 | 7 |
| 8 | 9 | 10 | 11 | 12 | 13 | 14 |
| 15 | 16 | 17 | 18 | 19 | 20 | 21 |
| 22 | 23 | 24 | 25 | 26 | 27 | 28 |
…休業日(現場調査・工事は一部対応)
![]()
【受付時間】9:30 - 17:30(営業日)
![]()
【受付時間】9:30 - 17:30(営業日)
オペレーションスタッフ
エクステリアプランナー有資格者の私たちにお任せください。
ショップ責任者
神(じん)
エクステリア プランナー
有資格者61名
1/3
木附
枡田
重富
吉澤
吉野
小東
池本
山田
佐藤
白崎
新西
伊野
次田
南
西山
小林
阿重田
梨田
長谷川
藤田
村上
平戸
植松
内田
久田
中島
長石
水口
榮
山崎
清水
室谷
安田
水谷
小野
酒井
一氏
神吉
日下部
山中
深田
田中
水田
西田
岡本
丸山
北
坂本
中嶋
岩野
伊藤
上中
高山
原
犬井
佐伯
谷川
塚田
松本
小林
森下
上内
島田
森
梅田
松山
山本
小西
倉地
山根
中原
河野
村上
土井
岩破
南
井上
三ツ股
小田
依藤
永禮
林
加藤
石藤
駒井
末吉
山本
芦野
樽井
野上
岡田
木村
池田
西村
藤澤
達川
奥原
那須
1/3
今週のPick Upページ
※ 販売終了商品
この商品のキーワード








