バイク・自転車を雨風から保護
お家の収納能力をアップ
ガレージの保全・防犯にカーポートと合わせて
お庭に機能的スペースを作り出します
防犯、お家のドレスアップはこれで決まり
ガレージ商品とコンビで高級感を演出
各取扱メーカーの会社名、ロゴ及び商品名等は各社の商標または登録商標です。
| 日 | 月 | 火 | 水 | 木 | 金 | 土 |
|---|---|---|---|---|---|---|
| 1 | 2 | 3 | 4 | 5 | 6 | 7 |
| 8 | 9 | 10 | 11 | 12 | 13 | 14 |
| 15 | 16 | 17 | 18 | 19 | 20 | 21 |
| 22 | 23 | 24 | 25 | 26 | 27 | 28 |
| 日 | 月 | 火 | 水 | 木 | 金 | 土 |
|---|---|---|---|---|---|---|
| 1 | 2 | 3 | 4 | 5 | 6 | 7 |
| 8 | 9 | 10 | 11 | 12 | 13 | 14 |
| 15 | 16 | 17 | 18 | 19 | 20 | 21 |
| 22 | 23 | 24 | 25 | 26 | 27 | 28 |
| 29 | 30 | 31 |
…休業日(現場調査・工事は一部対応)
![]()
【受付時間】9:30 - 17:30(営業日)
![]()
【受付時間】9:30 - 17:30(営業日)
オペレーションスタッフ
エクステリアプランナー有資格者の私たちにお任せください。
ショップ責任者
神(じん)
エクステリア プランナー
有資格者61名
1/3
木附
枡田
重富
吉澤
吉野
小東
池本
山田
佐藤
白崎
新西
伊野
次田
南
西山
小林
阿重田
梨田
長谷川
藤田
村上
平戸
植松
内田
久田
中島
長石
水口
榮
山崎
清水
室谷
安田
水谷
小野
酒井
一氏
神吉
日下部
山中
深田
田中
水田
西田
岡本
丸山
北
坂本
中嶋
岩野
伊藤
上中
高山
原
犬井
佐伯
谷川
塚田
松本
小林
森下
上内
島田
森
梅田
松山
山本
小西
倉地
山根
中原
河野
村上
土井
岩破
南
井上
三ツ股
小田
依藤
永禮
林
加藤
石藤
駒井
末吉
山本
芦野
樽井
野上
岡田
木村
池田
西村
藤澤
達川
奥原
那須
1/3
今週のPick Upページ
![]()
ご利用頂いたお客様の口コミ・レビューを「お客様の声」として掲載しております。
全てのご感想を掲載しておりますので、エクスショップの評判としてご参考ください。
正式お見積りと一緒に提出させて頂いております「工事概略図面」もご覧頂けます。
商品や設置場所のご検討にお役立てください。
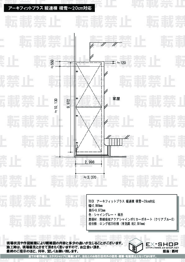
(写真No:11936614)
(カーポート)
| カラー | シャイングレー + 柿渋 |
|---|---|
| サイズ | 幅 2,998mm 奥行 9,972mm |
| 屋根高等 | ロング柱25仕様(有効高 約2,501mm) |
| 屋根材等 | 熱線吸収アクアシャインポリカーボネート(クリアブルーS) |
| 工事方法 | 地域密着あんしん施工 |
価格も非常に安くしていただいた上に、今回は密な連絡も取っていただき、非常に丁寧な対応で満足しました。次も是非お願いしたいです。
再度、エクスショップをご利用頂き誠に有難うございます。担当致します施工士も弊社スタッフも、常にお客様にご満足して頂くことを第一に考えておりますので、このようなお褒めのお言葉を頂き、これからの励みになります。スタイリッシュで高級感を感じるアーキフィットプラスがご自宅にマッチし、とても素敵お仕上がりでございますね。シャイングレー+柿渋の色味で既存カーゲ−トとも調和しております。今後も、お客様にご満足頂ける様、日々精進して参りますのでまた機会がございましたら是非エクスショップをご利用下さいます様、宜しくお願い致します。
当サイトは以下のセキュリティ機能や保護認定等を備えています。安心してお申し込みください
当サイトはSSL暗号化に対応しています。入力した個人情報は暗号化して送られますので、安心してご利用ください。
当社はJADMAの正会員です。同協会は法律で位置づけられた団体で、消費者の利益保護と業界の健全な発展の為に活動しています。
こちらの工事に使用しているエクステリア
![]()
フーゴ F 1台用(フラットスタイル)

工事費・税込
221,200円〜
総合平均評価(星5つ評価)
4.73
商品レビュー数
115件
フーゴ F 1台用(フラットスタイル)はフラットな屋根仕様が特徴的な1台用カーポートです。ブラックマットと他6種類展開の屋根材に、シャイングレーと他3色展開の本体カラーをご用意しています。耐風圧は基準風速Vo=38m/s、耐積雪性能は20cm相当確保。
この商品の詳細へ
無料お見積り・現場調査・ご注文もこちら
この商品のレビュー
商品レビュー115件

神奈川県 横浜市 Y.T.様
まだ積雪や強風を体験していないので その件は分かりませんが、アドバイス頂いた色と形には大変満足しています 補助支柱の取り付け 取り外しが思っていたより簡単で私でも出来ました 使わない時の収納もスッキリ付けられてびっくりです

大阪府 吹田市 H.K.様
見た目もイメージしていた通りで良かったです(形状・色見)

広島県 廿日市市 M.T.様
近隣が設置されている物よりもしっかりしていると思われ大変満足している。

岡山県 倉敷市 K.N.様
シンプルなデザインで気に入っています。駐車もしやすくて良いです。

埼玉県 入間市 T.N.様
玄関前の設置の為、ロング柱を選びましたが、思った程の違和感はなく良かったと思いました。

大阪府 箕面市 Y.Y.様
家の基礎が高く、出来上がりのイメージがわかず、施工店の方に2回も現地に来て頂きアドバイスを頂きました。広い駐車場ではありませんが、施工後は家とのバランスもよく満足しています。

埼玉県 新座市 I.M.様
まだわからないがつくりはしっかりとしていそう。

長崎県 長崎市 U.H.様
直線的なデザインが洗練されていて気に入りました。 カーポート本体の質感、屋根材の色味や遮光性など、こちらを選んで良かったです。

京都府 八幡市 K.S.様
あまりごつい感じのカーポートにはしたくないと主人は言っておりましたのでフーゴFにしました。思っていた以上にスタイリッシュで大変満足しております。

大阪府 堺市 Y.T.様
購入前はフラットスタイルとラウンドスタイルで迷いましたが、完成を見てフラットスタイルで良かった。

千葉県 野田市 I.M.様
とてもデザインがスッキリしていて良いと思いました。また、高さもちょうどいいです。

東京都 江戸川区 O.K.様
駐車スペースに丁度良いサイズのカーポート設置ができた。

栃木県 栃木市 O.M.様
デザイン面では家外観と調和しており満足しております。機能面ではこれからの梅雨時期、冬の季節に確認したいと思います。

神奈川県 横浜市 T.C.様
直線的な屋根のデザインや淵取りされた木目調な色が家のドアとマッチしてとても良い感じです。

愛知県 海部郡蟹江町 I.Y.様
家にもマッチしていて凄く気に入っています。
関連するお客様の声

5つ星のうち5
神奈川県Y.Y. 様回答日:2013年7月
連絡も密にとって頂き安心してお願いできました。施工に来て頂いた業者さんも非常に親切でとてもよかったです。

5つ星のうち5
岡山県K.T. 様回答日:2018年3月
対応がとても速く、とても助かりました。こちらの要望にも迅速に対応して頂き、非常に満足しています。また何かありましたら是非お願いしたいと思います。

5つ星のうち5
大阪府I.T. 様回答日:2012年10月
連絡も密にとっていただき、施工までスムーズに進みました。作業も2日間で終わりますし、完成したものを見ると非常に満足です。

5つ星のうち5
熊本県Y.M. 様回答日:2013年4月
施工に関しては、地域密着施工で非常に安心でき、また満足いく仕上がりになったので非常に良かった。契約については、ネットということで非常に不安であったが、連絡等も密にされて逆に安心して契約することができ、非常に満足している。

5つ星のうち5
大阪府A.A. 様回答日:2013年9月
一部、切り込みがあり、大丈夫か不安でしたが、非常に綺麗にうまく施工していただいて、非常に満足です価格的にも非常に安く、価格も満足しています

5つ星のうち5
埼玉県S.K. 様回答日:2014年8月
ネットで申し込みしたものの不安が残っていましたが、担当者や施工者との連絡が非常に密にできたことで不安が徐々に解消していきました。施工に当たっては、毎日非常に暑い中、丁寧な仕事をしていただき非常に満足しています。

5つ星のうち5
愛知県K.S. 様回答日:2017年9月
価格が安い上、工事の施工もとても早く、非常に満足しています。また、機会があったら利用したいと思っています。

5つ星のうち5
長野県S.Y. 様回答日:2016年11月
カーポート施工を検討していたところ、御社にたどり着きました。見積もりから施工まで非常に丁寧に対応いただき、非常に満足しております。次の機会にも是非利用したいと考えています。

5つ星のうち5
愛知県K.K. 様回答日:2014年2月
見積り・発注〜工事まで非常に素早く対応して頂き非常に助かりました。又、施工業者さんの対応も大変丁寧かつ迅速に施工して頂き非常に満足しています。

5つ星のうち5
長崎県K.T. 様回答日:2018年1月
工事に来ていただいた方には大変よくしていただきました。次の機会もありましたら是非お願いしたいと思います。価格以上に満足しております。
関連するブログ記事
関連するよくあるご質問
カーポートの設置と一緒に土間コンクリートを打設できますか?
【商品カテゴリ >カーポート】(ご質問No.707)
既存のカーポート屋根材の張り替えの依頼はできますか?
【商品カテゴリ >カーポート】(ご質問No.21)
以前購入したカーポートの部品のみを追加で購入する事は可能ですか?
【商品カテゴリ >カーポート】(ご質問No.48)
ワイドタイプのカーポートですが、横幅の切り詰めは可能ですか?
【商品カテゴリ >カーポート】(ご質問No.69)
カーポートって何ですか?
【商品カテゴリ >カーポート】(ご質問No.28910)
既存のカーポートの柱の高さを桁上げする事は可能ですか?
【商品カテゴリ >カーポート】(ご質問No.43)
既存のカーポートをいったん解体し、再度組み立てることは可能ですか?
【商品カテゴリ >カーポート】(ご質問No.46)
四国化成のFリードカーポート収納庫付きタイプは取り扱ってますか?
【商品カテゴリ >カーポート】(ご質問No.74)
既存カーポートの支柱を流用して、増設、縦列2台用のカーポートを設置することは可能ですか?
【商品カテゴリ >カーポート】(ご質問No.84)
四国化成のマイポートneoの取り扱いはありますか?
【商品カテゴリ >カーポート】(ご質問No.88)


















