バイク・自転車を雨風から保護
お家の収納能力をアップ
ガレージの保全・防犯にカーポートと合わせて
お庭に機能的スペースを作り出します
防犯、お家のドレスアップはこれで決まり
ガレージ商品とコンビで高級感を演出
各取扱メーカーの会社名、ロゴ及び商品名等は各社の商標または登録商標です。
| 日 | 月 | 火 | 水 | 木 | 金 | 土 |
|---|---|---|---|---|---|---|
| 1 | 2 | 3 | 4 | 5 | 6 | 7 |
| 8 | 9 | 10 | 11 | 12 | 13 | 14 |
| 15 | 16 | 17 | 18 | 19 | 20 | 21 |
| 22 | 23 | 24 | 25 | 26 | 27 | 28 |
| 29 | 30 | 31 |
| 日 | 月 | 火 | 水 | 木 | 金 | 土 |
|---|---|---|---|---|---|---|
| 1 | 2 | 3 | 4 | |||
| 5 | 6 | 7 | 8 | 9 | 10 | 11 |
| 12 | 13 | 14 | 15 | 16 | 17 | 18 |
| 19 | 20 | 21 | 22 | 23 | 24 | 25 |
| 26 | 27 | 28 | 29 | 30 |
…休業日(現場調査・工事は一部対応)
![]()
【受付時間】9:30 - 17:30(営業日)
![]()
【受付時間】9:30 - 17:30(営業日)
オペレーションスタッフ
エクステリアプランナー有資格者の私たちにお任せください。
ショップ責任者
神(じん)
エクステリア プランナー
有資格者61名
1/3
木附
枡田
重富
吉澤
吉野
小東
池本
山田
佐藤
白崎
新西
伊野
次田
南
西山
小林
阿重田
梨田
長谷川
藤田
村上
平戸
植松
内田
久田
中島
長石
水口
榮
山崎
清水
室谷
安田
水谷
小野
酒井
一氏
神吉
日下部
山中
深田
田中
水田
西田
岡本
丸山
北
坂本
中嶋
岩野
伊藤
上中
高山
原
犬井
佐伯
谷川
塚田
松本
小林
森下
上内
島田
森
梅田
松山
山本
小西
倉地
山根
中原
河野
村上
土井
岩破
南
井上
三ツ股
小田
依藤
永禮
林
加藤
石藤
駒井
末吉
山本
芦野
樽井
野上
岡田
木村
池田
西村
藤澤
達川
奥原
那須
1/3
今週のPick Upページ
![]()
ご利用頂いたお客様の口コミ・レビューを「お客様の声」として掲載しております。
全てのご感想を掲載しておりますので、エクスショップの評判としてご参考ください。
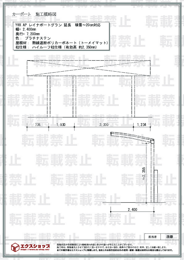
正式お見積りと一緒に提出させて頂いております「工事概略図面」もご覧頂けます。
商品や設置場所のご検討にお役立てください。
(写真No:19166811)
(カーポート)
| カラー | プラチナステン |
|---|---|
| サイズ | 幅 2,400mm 奥行 7,200mm |
| 屋根高等 | ハイルーフ柱仕様(有効高 約2,350mm) |
| 屋根材等 | 熱線遮断ポリカーボネート(トーメイマット) |
| 工事方法 | 地域密着あんしん施工 |
施工日が決まるまでに時間がかかったが概ね満足しています
この度はレイナポートグラン 延長の施工をご依頼頂き、誠に有り難うございました。ハイルーフ柱仕様のカーポートが、お住まいの敷地に綺麗に納まり、圧迫感のないスッキリとしたお仕上がりでございますね。施工完了までにお時間を頂き、誠に申し訳ございませんでした。今後、スピード面でもご満足頂けるよう、企業努力を重ねて参ります。貴重なご意見をお寄せ頂き、誠に有り難うございました。またのご利用をスタッフ一同心よりお待ち申し上げております。
当サイトは以下のセキュリティ機能や保護認定等を備えています。安心してお申し込みください
当サイトはSSL暗号化に対応しています。入力した個人情報は暗号化して送られますので、安心してご利用ください。
当社はJADMAの正会員です。同協会は法律で位置づけられた団体で、消費者の利益保護と業界の健全な発展の為に活動しています。
こちらの工事に使用しているエクステリア
![]()
アリュース 600タイプ 1台用 奥行延長セット

工事費・税込
197,300円〜
総合平均評価(星5つ評価)
4.83
商品レビュー数
63件
アリュース 600タイプ 1台用 奥行延長セットはアリュース 600タイプ 1台用の奥行が広くなった片側支持スタイルのカーポートです。柱・梁は高強度T6アルミニウム合金が使われており、基準風速Vo=34m/s・耐積雪性能20cmの性能を保持しています。
この商品の詳細へ
無料お見積り・現場調査・ご注文もこちら
この商品のレビュー
商品レビュー63件

茨城県 牛久市 O.Y.様
車庫に丁度いい大きさだったので良かったです。

埼玉県 鴻巣市 A.A.様
寸法とっての概ね想像通りでしたが思ってた以上に存在感があり、実際かなり大きいので今後風が強く吹いた時などに場合によっては補強も検討しなければかと感じました。

福島県 郡山市 O.S.様
延長タイプでしたが、柱が3本で安定感があり良かったです。

埼玉県 川口市 M.A.様
家族の評判もよく色もパネルの遮光性も大変満足しています。もう少し長くても良かったかなと思ってます。

広島県 広島市 T.S.様
見た目もおしゃれ?でかっこいい! 仕様もガッチリ、しっかりしていて良い 近所の人たちも「いいの付けたね」と良くいわれます!

埼玉県 熊谷市 K.J.様
車が大きいので、奥行延長タイプにしました。すっきりしたデザインで気に入っております。

長崎県 佐世保市 K.A.様
自宅からテラスを見ると柱が見えるので、設置前と比べると景色が多少悪い。 屋根材を透明で熱遮断のタイプにしたため、明るさはそこまで変わらず自宅内が暗くならずに済んでいる。

長野県 小諸市 T.T.様
寸法を自分で測って注文したのでほぼ計画通りに出来たと思います。ただ、サイドパネルが透明だと思って注文したがすりガラスっぽく、それが予想外だった。

神奈川県 平塚市 N.J.様
実際に設置するまで写真しか見れなかったため、色合いなど心配していましたが、写真と変わらない印象でとても良かったです。

東京都 国分寺市 I.T.様
とてもしっかりした作り。柱の位置に融通が利くので既存の構造物を避けられる。

兵庫県 加東市 H.S.様
以前設置したテラス屋根と同じ色で揃えられて良かった。

奈良県 奈良市 F.K.様
車および自転車をカーポートの屋根がかぶる範囲で置くことができたので、とてもよかった。

和歌山県 和歌山市 M.T.様
思っていたより、どっしりとした感じでたいへん気に入っています。

宮城県 気仙沼市 S.Y.様
倉庫にかかるよう商品を選んだが、開け閉めの際に予想より雨が入らず満足している。

兵庫県 加古郡稲美町 Y.Y.様
購入前に商品を見ていなかったので、強度面やカラー(天板含む)が少し不安でしたが、出来上がりを見て、しっかりした作りで安心しました。また、シルバー色の構造体や天板の薄いブルー色は品があって私好みでした。

千葉県 印西市 K.M.様
価格と性能のバランスがよいと感じる、色もよい。

群馬県 高崎市 O.T.様
車とバイクの両方の置き場所を設置したいと思っていたところ、サイズも価格もちょうど良く満足しております。
関連するお客様の声

5つ星のうち5
奈良県F.K. 様回答日:2024年11月
カーポートに関しては、車はもちろんのこと自転車が雨ざらしの状態であったため、雨、直射日光を防ぐために設置したかった。フェンスは家の横が歩行者専用道路になっており、歩行者の目線的にちょうど家の中が見えてしまう状態であったので、目隠しのために設置したかった。

5つ星のうち5
愛知県M.T. 様回答日:2024年10月
年齢的に今後、楽に生活出来るように少しずつ変えていきたいと思ったのがきっかけです。ウッドデッキについては、一階に寝室がある為、布団干しをするのに便利になりました。又、カーポートは雨の時の出入りが楽になった。雪かきが楽になる。自転車も濡れなくなった。

5つ星のうち4
群馬県M.N. 様回答日:2024年9月
新車購入にあたり新たにカーポートの設置の検討を始め、ご対応いただいた内容から他社よりも信頼できそうだと感じ依頼する事とした。契約から工事まで少し時間が空いてしまったが、施工業者さんは人柄も良くとても丁寧な仕事ぶりで安心してお任せする事ができた。

5つ星のうち5
埼玉県U.S. 様回答日:2024年2月
見積もりに来てくださった方の対応がとても良かったこと、見積もりもとてもわかり易く表示してあり、信頼できると思いました。また、エクスショップの担当の方が丁寧に対応して頂けたのと施工業者の方も分かりやすく説明いただき、対応も丁寧にして頂けたのが良かったです。

5つ星のうち5
岡山県M.A. 様回答日:2023年7月
今度新車を購入するのに、炎天下では、車が焼けるので、カーポートを設置したかったので。色々ネットでみて、ホームセンターをみてみましたが、エクスショップさんが1番でした。現場を見ていただいて見積もりをいただいて、バッチリでした。工事を担当していただいた業者さんも、暑い中、頑張っていただきました。本当にありがとうございました。

5つ星のうち5
福岡県N.H. 様回答日:2026年3月
カーポート設置を検討したのは、EV購入に伴い、EV用充電器を設置したのがきっかけで、充電時に雨に濡れるということを避けたかったためです(濡れても問題ないとのことですが、なんとなく気持ちが悪いので)。カーポート設置後、最も快適に感じるのは、雨の日の車の乗り降りが苦にならなくなったことです(当たり前ですが・・・)。設置はエクスショップさんに依頼し、工事していただきましたが、工事に来てくださった職人さんが、とても感じが良く、また大変丁寧に作業していただき、このショップをチョイスして正解だったと思いました。有難うございました。

5つ星のうち5
香川県M.Y. 様回答日:2026年3月
所有する車の台数も増え、車の出し入れも大変だったため、カーポートを4台用に取替えました。車の出し入れもスムーズになり、土間も新しくコンクリート敷にしたため、雨の日でも快適に出かけることができました。注文手続きについても、主にメールで丁寧にやりとりしていただいたため、忙しい中でも確実に情報連絡でき助かりました。

5つ星のうち5
静岡県K.M. 様回答日:2026年3月
新たに車を買い足して、二台とも長く使いたいため、二台用のカーポートを購入した。本当は来客用に三台用が欲しかったが、駐車場用地の形状から無理とのことで、二台用カーポートに一台分の空きスペース確保を条件に施工していただいた。施工後翌々日に雨が降りましたが、やはり屋根があると車の乗り降りが快適ですね。屋根を低くし、熱線遮断の素材にしたので、日中も少しヒンヤリします。夏には酷暑対策にもなりそうです。
関連するブログ記事
関連するよくあるご質問
カーポートの設置と一緒に土間コンクリートを打設できますか?
【商品カテゴリ >カーポート】(ご質問No.707)
既存のカーポート屋根材の張り替えの依頼はできますか?
【商品カテゴリ >カーポート】(ご質問No.21)
以前購入したカーポートの部品のみを追加で購入する事は可能ですか?
【商品カテゴリ >カーポート】(ご質問No.48)
ワイドタイプのカーポートですが、横幅の切り詰めは可能ですか?
【商品カテゴリ >カーポート】(ご質問No.69)
カーポートって何ですか?
【商品カテゴリ >カーポート】(ご質問No.28910)
既存のカーポートの柱の高さを桁上げする事は可能ですか?
【商品カテゴリ >カーポート】(ご質問No.43)
既存のカーポートをいったん解体し、再度組み立てることは可能ですか?
【商品カテゴリ >カーポート】(ご質問No.46)
四国化成のFリードカーポート収納庫付きタイプは取り扱ってますか?
【商品カテゴリ >カーポート】(ご質問No.74)
既存カーポートの支柱を流用して、増設、縦列2台用のカーポートを設置することは可能ですか?
【商品カテゴリ >カーポート】(ご質問No.84)
四国化成のマイポートneoの取り扱いはありますか?
【商品カテゴリ >カーポート】(ご質問No.88)


















