バイク・自転車を雨風から保護
お家の収納能力をアップ
ガレージの保全・防犯にカーポートと合わせて
お庭に機能的スペースを作り出します
防犯、お家のドレスアップはこれで決まり
ガレージ商品とコンビで高級感を演出
各取扱メーカーの会社名、ロゴ及び商品名等は各社の商標または登録商標です。
| 日 | 月 | 火 | 水 | 木 | 金 | 土 |
|---|---|---|---|---|---|---|
| 1 | 2 | 3 | 4 | 5 | 6 | 7 |
| 8 | 9 | 10 | 11 | 12 | 13 | 14 |
| 15 | 16 | 17 | 18 | 19 | 20 | 21 |
| 22 | 23 | 24 | 25 | 26 | 27 | 28 |
| 29 | 30 | 31 |
| 日 | 月 | 火 | 水 | 木 | 金 | 土 |
|---|---|---|---|---|---|---|
| 1 | 2 | 3 | 4 | |||
| 5 | 6 | 7 | 8 | 9 | 10 | 11 |
| 12 | 13 | 14 | 15 | 16 | 17 | 18 |
| 19 | 20 | 21 | 22 | 23 | 24 | 25 |
| 26 | 27 | 28 | 29 | 30 |
…休業日(現場調査・工事は一部対応)
![]()
【受付時間】9:30 - 17:30(営業日)
![]()
【受付時間】9:30 - 17:30(営業日)
オペレーションスタッフ
エクステリアプランナー有資格者の私たちにお任せください。
ショップ責任者
神(じん)
エクステリア プランナー
有資格者61名
1/3
木附
枡田
重富
吉澤
吉野
小東
池本
山田
佐藤
白崎
新西
伊野
次田
南
西山
小林
阿重田
梨田
長谷川
藤田
村上
平戸
植松
内田
久田
中島
長石
水口
榮
山崎
清水
室谷
安田
水谷
小野
酒井
一氏
神吉
日下部
山中
深田
田中
水田
西田
岡本
丸山
北
坂本
中嶋
岩野
伊藤
上中
高山
原
犬井
佐伯
谷川
塚田
松本
小林
森下
上内
島田
森
梅田
松山
山本
小西
倉地
山根
中原
河野
村上
土井
岩破
南
井上
三ツ股
小田
依藤
永禮
林
加藤
石藤
駒井
末吉
山本
芦野
樽井
野上
岡田
木村
池田
西村
藤澤
達川
奥原
那須
1/3
今週のPick Upページ
![]()
ご利用頂いたお客様の口コミ・レビューを「お客様の声」として掲載しております。
全てのご感想を掲載しておりますので、エクスショップの評判としてご参考ください。
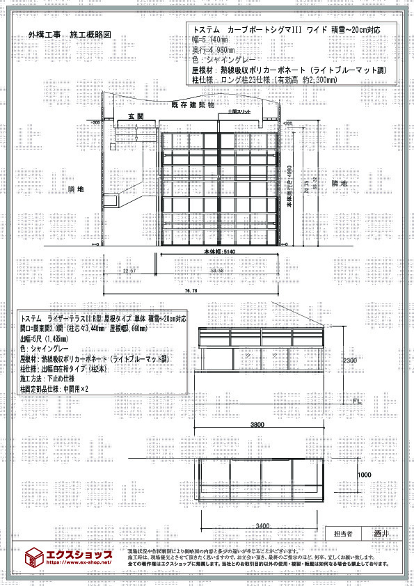
正式お見積りと一緒に提出させて頂いております「工事概略図面」もご覧頂けます。
商品や設置場所のご検討にお役立てください。
(写真No:19797011)
(カーポート)
| カラー | シャイングレー |
|---|---|
| サイズ | 幅 5,140mm 奥行 4,980mm |
| 屋根高等 | ロング柱23仕様(有効高 約2,300mm) |
| 屋根材等 | 熱線吸収ポリカーボネート(ライトブルーマット調) |
| 工事方法 | 地域密着あんしん施工 |
担当の方の応対は、大変丁寧でとても感じがよかったのですが、見積もりや図面の再作成に若干時間がかかったのが残念です。地元施工対応店での工事は、やはり当たり外れがあると思いました。金額的には満足しています。
この度は、カーブポートシグマIIIワイド及びライザーテラスII R型 屋根タイプの施工ご依頼を頂き誠に有り難うございます。施工士も担当スタッフもお客様にご満足頂ける様、日々精進しておりますので、このようなお言葉を頂戴でき大変嬉しく存じます。大型エクステリアの同時施工でございましたが、どちらも綺麗に収まり、上品な印象がご自宅にマッチしておりますね。今後も、お客様にお喜び頂ける様、日々精進して参りますので、また機会がございましたら是非エクスショップをご利用下さいますよう、宜しくお願い致します。
当サイトは以下のセキュリティ機能や保護認定等を備えています。安心してお申し込みください
当サイトはSSL暗号化に対応しています。入力した個人情報は暗号化して送られますので、安心してご利用ください。
当社はJADMAの正会員です。同協会は法律で位置づけられた団体で、消費者の利益保護と業界の健全な発展の為に活動しています。
こちらの工事に使用しているエクステリア
![]()
ネスカ R 2台用(ラウンドスタイル)

工事費・税込
223,500円〜
総合平均評価(星5つ評価)
4.76
商品レビュー数
1290件
ネスカ R 2台用(ラウンドスタイル)は大きなアール仕様の屋根が特徴的な横並び2台駐車可能のカーポートです。標準柱が2200mmとなっており大半の車種に対応可能。耐風性能は基準風速Vo=40m/s、耐積雪性能は20cm相当の耐性があります。
この商品の詳細へ
無料お見積り・現場調査・ご注文もこちら
この商品のレビュー
商品レビュー1,290件

東京都 江戸川区 K.A.様
とても満足していますが屋根が雨などの吹き込み防止など一工夫あると更に大満足になります。

滋賀県 大津市 H.K.様
今のところ不満はないです。 もし今後、友人にどこで買うか聞かれたら、勧めようと思います。

東京都 あきる野市 T.S.様
標準仕様で高さが220cmあり十分。カラーも希望のものが選択でき、周囲との調和が図れた。

高知県 香美市 N.N.様
カーポートの下側、内面は問題有りませんが、外側の上側の方で、シーラントがされてるのにちょっと疑問持ちました。隣の一基目のカーポートはシーラントされていないので。

佐賀県 佐賀市 S.N.様
見た目もスッキリしていて柱も思ったほど太くなく設置後の駐車もスムーズです。

和歌山県 和歌山市 I.M.様
幅=3,624mm 奥行=5,686mm 色:シャイングレー 屋根材:ポリカーボネート(クリアブラウン) 柱仕様:標準柱仕様(有効高 約2,200mm)

千葉県 市原市 I.T.様
パネルの色や支柱の色合いなども良く満足しております。

埼玉県 さいたま市 S.M.様
商品は満足です、現地確認の担当者も丁寧に説明して頂きました、施工の方も初めにいろいろと説明して頂いてからの施工でしたが、施工完了時の商品が汚れたままだったのが残念です。

東京都 八王子市 A.S.様
思ったよりも高さがあったので、2.2mの高さで 良かったです。 欲を言えば、もう少し日光を遮断してくれれば良かったのですけど。

東京都 杉並区 I.T.様
前回施工して頂いた自転車置き場の時と同様に、非常に満足です。 ネスカは、柱が多少高いので仕上り全体の感じが良いように思います。

埼玉県 北本市 K.Y.様
車2台が余裕に入り、強風でも揺ら足りしないので、重宝しています。

茨城県 水戸市 K.H.様
暗くなるかと思ったが意外に明るくとても満足しています。

埼玉県 川口市 O.K.様
暑くなってきたのもあり、カーポートがあると直射日光を遮れるし、梅雨の時期を前にして設置できて満足している。

兵庫県 宍粟市 F.M.様
高さもあり、フェンスともマッチしていて、良いと思います。

山梨県 中央市 G.H.様
・大変満足しています ・ご近所でも評判のスタイリッシュな仕上がりになりました ・前より柱が一回り細くなり、少々(強度面で)不安はありますが、 そこは品質を信じています。 ・施工完了時、特に書類を書かされなかったのは少しだけ不安です。 ・お見積り時に提示頂いたかと思うのですが、何年保証なのかが承知しておらず、ちょとだけ不安です。
関連するお客様の声

5つ星のうち5
東京都S.S. 様回答日:2015年10月
以前からの計画でセカンドカー購入がきっかけです。

5つ星のうち5
埼玉県I.R. 様回答日:2015年10月
雨の日でもクルマいじりができるようになりました。工事は1.5日予定でしたが、3人であっという間に1日で出来てしまいました。コンクリ固まるまでの時間とかなくて大丈夫?と少し思いましたが、予定より早かったので助かりました。

5つ星のうち5
栃木県S.T. 様回答日:2015年9月
ネット販売という不安はありましたが、インターネットならではの、様々な工事事例や商品を見れる事がメリットだと感じました。また、メールでの対応が迅速で丁寧だった事が安心感につながりました。

5つ星のうち5
高知県H.E. 様回答日:2015年9月
対応が早くて、値段も安いので、今後また利用する場合はまたよろしくお願いします。

5つ星のうち5
愛知県N.C. 様回答日:2015年8月
丁寧かつ迅速な対応に感謝しております。工事日程などこちらの都合に対して最大限動いて頂きました。工事自体もこちらが思っていた以上にスピーディーでした。もちろんとてもきれいです。カーポートがついたので、雨の日の車の乗り降りがものすごく便利になりました。

5つ星のうち5
岡山県S.A. 様回答日:2026年1月
新築戸建の購入に伴い、カーポートとサイクルポートの設置を検討していました。インターネットで検索した際に上位に表示され、施工事例の画像やレビューを拝見して良さそうだと感じ、見積もりを依頼しました。見積もり内容の変更を何度かお願いしましたが、その都度迅速にご対応いただきました。また、工事日程の調整などについても小まめにご連絡をいただき、無事に完工することができました。

5つ星のうち5
群馬県M.A. 様回答日:2025年12月
車の入れ替えをきっかけに、カーポートを検討。近接の娘の家にも同時に設置したかった。冬場の朝、フロントガラスの凍結がなくなり、朝の通勤がとても快適になった。工事担当業者も気さくな人で、設置場所等細かいところまで相談に乗ってくれ安心して任せられた。今後も何かあれば一番初めに相談したいと思います。

5つ星のうち5
神奈川県O.K. 様回答日:2025年11月
カーポート設置は住宅新築当初からの懸案でしたが、デザイン的に満足するものがなく、十年にわたり車は陽ざらし雨ざらしの状態を続けていました。あるときネット上でふと目にした製品がようやく気に入り、そこからどんどん話を進めて短期間での設置完了となりました。その過程で、エクスショップさんとは二十回以上のメール応答があり、担当の方の迅速かつ丁寧な対応は好印象だったといえます。予想していたよりも早い日にちで工事をしてもらえた点も大いに助かりました。なお施工完了後にみても、費用に十分見合う出来映えとして満足しています。
関連するブログ記事
関連するよくあるご質問
カーポートの設置と一緒に土間コンクリートを打設できますか?
【商品カテゴリ >カーポート】(ご質問No.707)
既存のカーポート屋根材の張り替えの依頼はできますか?
【商品カテゴリ >カーポート】(ご質問No.21)
以前購入したカーポートの部品のみを追加で購入する事は可能ですか?
【商品カテゴリ >カーポート】(ご質問No.48)
ワイドタイプのカーポートですが、横幅の切り詰めは可能ですか?
【商品カテゴリ >カーポート】(ご質問No.69)
カーポートって何ですか?
【商品カテゴリ >カーポート】(ご質問No.28910)
既存のカーポートの柱の高さを桁上げする事は可能ですか?
【商品カテゴリ >カーポート】(ご質問No.43)
既存のカーポートをいったん解体し、再度組み立てることは可能ですか?
【商品カテゴリ >カーポート】(ご質問No.46)
四国化成のFリードカーポート収納庫付きタイプは取り扱ってますか?
【商品カテゴリ >カーポート】(ご質問No.74)
既存カーポートの支柱を流用して、増設、縦列2台用のカーポートを設置することは可能ですか?
【商品カテゴリ >カーポート】(ご質問No.84)
四国化成のマイポートneoの取り扱いはありますか?
【商品カテゴリ >カーポート】(ご質問No.88)


















