バイク・自転車を雨風から保護
お家の収納能力をアップ
ガレージの保全・防犯にカーポートと合わせて
お庭に機能的スペースを作り出します
防犯、お家のドレスアップはこれで決まり
ガレージ商品とコンビで高級感を演出
各取扱メーカーの会社名、ロゴ及び商品名等は各社の商標または登録商標です。
| 日 | 月 | 火 | 水 | 木 | 金 | 土 |
|---|---|---|---|---|---|---|
| 1 | 2 | 3 | 4 | 5 | 6 | |
| 7 | 8 | 9 | 10 | 11 | 12 | 13 |
| 14 | 15 | 16 | 17 | 18 | 19 | 20 |
| 21 | 22 | 23 | 24 | 25 | 26 | 27 |
| 28 | 29 | 30 | 31 |
| 日 | 月 | 火 | 水 | 木 | 金 | 土 |
|---|---|---|---|---|---|---|
| 1 | 2 | 3 | ||||
| 4 | 5 | 6 | 7 | 8 | 9 | 10 |
| 11 | 12 | 13 | 14 | 15 | 16 | 17 |
| 18 | 19 | 20 | 21 | 22 | 23 | 24 |
| 25 | 26 | 27 | 28 | 29 | 30 | 31 |
…休業日(現場調査・工事は一部対応)
![]()
【受付時間】9:30 - 17:30(営業日)
![]()
【受付時間】9:30 - 17:30(営業日)
オペレーションスタッフ
エクステリアプランナー有資格者の私たちにお任せください。
ショップ責任者
神(じん)
エクステリア プランナー
有資格者61名
1/3
木附
枡田
重富
吉澤
吉野
小東
池本
山田
佐藤
白崎
新西
伊野
次田
浅川
南
西山
小林
梨田
長谷川
藤田
阿重田
村上
植松
内田
久田
小野
平戸
中島
長石
水口
榮
山崎
清水
室谷
安田
水谷
酒井
神吉
日下部
山中
深田
田中
水田
西田
一氏
岡本
北
坂本
中嶋
岩野
伊藤
上中
高山
竹本
犬井
佐伯
谷川
原
丸山
塚田
松本
上内
島田
森
梅田
松山
山本
小林
倉地
山根
中原
河野
村上
土井
岩破
南
井上
三ツ股
小田
依藤
永禮
林
加藤
石藤
駒井
末吉
山本
芦野
樽井
野上
岡田
木村
池田
西村
藤澤
達川
奥原
那須
小西
森下
1/3
今週のPick Upページ
![]()
ご利用頂いたお客様の口コミ・レビューを「お客様の声」として掲載しております。
全てのご感想を掲載しておりますので、エクスショップの評判としてご参考ください。
正式お見積りと一緒に提出させて頂いております「工事概略図面」もご覧頂けます。
商品や設置場所のご検討にお役立てください。
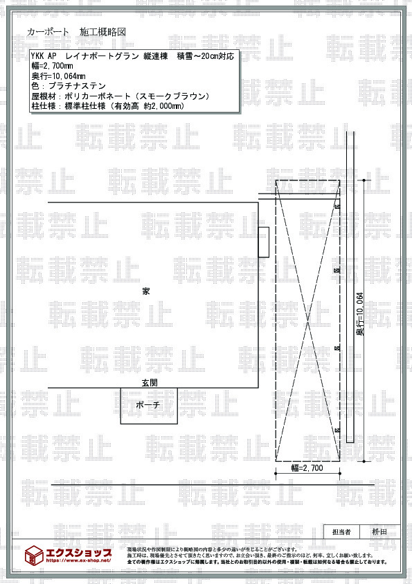
(写真No:20008221)
(カーポート)
| カラー | プラチナステン |
|---|---|
| サイズ | 幅 2,700mm 奥行 10,064mm |
| 屋根高等 | 標準柱仕様(有効高 約2,000mm) |
| 屋根材等 | ポリカーボネート(スモークブラウン) |
| 工事方法 | 地域密着あんしん施工 |
注文から施工・引き渡しまで適切に対応していると感じました。
この度は、エクスショップをご利用くださいまして、誠に有り難うございます。顔の見えないネットショッピングではありますが、お客様に出来るだけご満足して頂きたいとの思いで、日々精進しておりますので、このようなお言葉を頂き、大変光栄でございます。今後もお客様にご満足して頂けるよう、迅速で親切・丁寧な対応を心掛けて参りますので、また機会がございましたら、ぜひエクスショップにご用命くださいますよう、宜しくお願い致します。
当サイトは以下のセキュリティ機能や保護認定等を備えています。安心してお申し込みください
当サイトは256ビットSSL暗号化に対応しています。入力した個人情報は暗号化して送られますので、安心してご利用ください。
当社はJADMAの正会員です。同協会は法律で位置づけられた団体で、消費者の利益保護と業界の健全な発展の為に活動しています。
こちらの工事に使用しているエクステリア
![]()
アリュース 600タイプ 縦連棟セット(2台用)

工事費・税込
281,300円〜
総合平均評価(星5つ評価)
4.85
商品レビュー数
34件
アリュース 600タイプ 縦連棟セット(2台用)は車2台が縦列駐車できる片側支持タイプのカーポートです。柱・梁にはT6処理と呼ばれる水での急速冷却で高強度化させたアルミニウム合金を使用しており、基準風速Vo=34m/s・耐積雪性能20cmの強度があります。
この商品の詳細へ
無料お見積り・現場調査・ご注文もこちら
この商品のレビュー
商品レビュー34件

群馬県 太田市 S.S.様
機能と値段だけで選んだため見栄え的に浮いたりしないか?という懸念も有りましたが、目立ちすぎない色味を選べたため特に気にならなかったです

愛知県 刈谷市 O.S.様
少し薄暗くなっているのが夏場重宝しそうだと感じました

東京都 西多摩郡瑞穂町 T.S.様
施工後に感じた事が有ります。 屋根材の色の選択を間違えました。

福島県 石川郡浅川町 T.F.様
思ったよりしっかりしてるので安心出来ました。

東京都 東大和市 S.M.様
設置したばかりなので機能面はまだ判断出来ませんが、見た目はシンプルで飽きのこないデザインなのでとても満足しています。

兵庫県 明石市 T.K.様
今のところイメージどおりです。耐久性や劣化度を見させていただきます。

東京都 八王子市 M.O.様
しっかりした作りの柱で雨風には安心です。高級感もあり満足しています。

東京都 大田区 M.Y.様
現在とても満足しています。屋根材などの耐久性や、強風時の揺れなどはこれから確認していきたい。見た目はとても良く、周りからの評判も良いです。

埼玉県 桶川市 F.T.様
今回新築により大変狭い場所だったので両柱が建てられなく片柱で、断念したものの、出来上がって見て頑丈な柱と素敵なインテリア的で大変満足しています

大阪府 堺市 N.J.様
掃き出し窓のすぐ横に設置できたので、雨の日でも窓を開けても濡れることもなく荷物等の出し入れができて助かっている。

東京都 八王子市 Y.A.様
しっかりした造りで安心感がある。 日差しをかなり凌げるのは良い

広島県 東広島市 F.N.様
商品については期待通りで良かったです。 でもサイドパネルの取付も検討しておりましたが、価格が跳ね上がるので今回は見送りました。 可能であればオプションパーツがもう少し安価であれば良いと感じております。

東京都 府中市 M.T.様
柱も思ったよりしっかりしており、見た目も高級感がある。

福岡県 福岡市 H.D.様
大変満足しています。少し大きすぎたのではと思うくらい、立派なカーポートが立ちました。

岡山県 岡山市 W.A.様
カットしてもらったがギリギリにしてもらい満足

宮城県 大崎市 G.H.様
とても綺麗に仕上げてくれたので、大満足です。

群馬県 伊勢崎市 H.K.様
思っていた以上に大きく立派なカーポートで大変満足しています。
関連するお客様の声

5つ星のうち5
東京都S.M. 様回答日:2024年11月
雨天時は雨風を受けながら車や自転車に乗り降りしていましたが、カーポート設置後は濡れずに乗り降りできるようになり、快適になりました。対応についても、大手HCと比較しても非常にスムーズで、質問にも迅速にご回答いただけたので、安心して依頼できました。

5つ星のうち5
福岡県M.Y. 様回答日:2024年2月
15年前、新築の時に現地調査をお願いしておりましたが、外構計画の変更のため、お願いできませんでした。この度、子供が成人し、車も増えたので駐車場を広げたため、あらためてお願いしたところです。屋根の高さ、長さとも納得しております。また、工事も一日半と非常に早くて驚きました。

5つ星のうち5
岐阜県N.H. 様回答日:2024年2月
降雹被害による既存カーポート(30年経過)の屋根材損傷がきっかけです。設置前の高さが2mでしたが、今回2.35mにしたのは正解でした。降雹被害は自宅の雨樋・屋根にも及んだため、その施工後(約半年)まで待っていただきました。ありがとうございました。

5つ星のうち4
福岡県T.N. 様回答日:2023年7月
(きっかけ)自宅を建替えし、新たにカーポートと境界フェンスが必要になったため(感想など)エクスショップは価格はリーズナブルで、施工もしっかりしていると思います。ただ、今回は私の現場の特性などもあり、施工士とショップ担当とのやり取りで正確性に欠ける面が少しあった。

5つ星のうち5
愛知県Y.N. 様回答日:2023年1月
他社との相見積もりなどで価格が安かったので決めさせていただきました。価格が安いので少し不安なところもありましたが保証がついていたので安心して依頼させていただきました。実際の施工では細かい要望も聞いていただき安心してお任せできましたので、次回も是非とも利用したいと思います。また知り合いなどにも自信をもっておすすめしたいと思います。

5つ星のうち5
愛知県A.M. 様回答日:2025年9月
ずっとカーポートが付けたかったけど、どうしてもいるものではなかったので後回しになっていた。年々猛暑が続いていた事がきっかけです。暑い日に乗った最初の車内の温度が低く感じられて、つけて良かったと思った。小雨の時の車の汚れが防げるといいなと思っています。

5つ星のうち5
静岡県G.M. 様回答日:2025年4月
昨年購入した車両は高さが2,250mmあり構造的にルーフには乗れず、洗車がとても大変で苦労していました。現在3連のカーポートはありますが高さが2,400mmの所があり納まりません。高さがクリアーできるカーポートを探した所エクスショップに辿り着きました。価格、保証等説明を聞き、クチコミにも後押しされ決めさせて頂きました。現地調査も準則にして頂き設置も近くの業者様により、2日で完了しました。設置後雨が降りましたが、車両が濡れないため雨垂れ等無くとても満足しております。また機会がありましたらその際は是非お願いしたいと思います。大変有り難う御座いました。

5つ星のうち5
長野県N.Y. 様回答日:2025年4月
友人の話を聞いて購入を考えました。初めてのマイホームということもあり、また積雪も多い地域であったことから、カーポートをつけたいと考えていました。今回購入したことで車に積もった雪を降ろすことなく快適に乗車できそうなので大変助かります。購入してよかったです。ありがとうございました。
関連するブログ記事
関連するよくあるご質問
カーポートの設置と一緒に土間コンクリートを打設できますか?
【商品カテゴリ >カーポート】(ご質問No.707)
既存のカーポート屋根材の張り替えの依頼はできますか?
【商品カテゴリ >カーポート】(ご質問No.21)
以前購入したカーポートの部品のみを追加で購入する事は可能ですか?
【商品カテゴリ >カーポート】(ご質問No.48)
ワイドタイプのカーポートですが、横幅の切り詰めは可能ですか?
【商品カテゴリ >カーポート】(ご質問No.69)
カーポートって何ですか?
【商品カテゴリ >カーポート】(ご質問No.28910)
既存のカーポートの柱の高さを桁上げする事は可能ですか?
【商品カテゴリ >カーポート】(ご質問No.43)
既存のカーポートをいったん解体し、再度組み立てることは可能ですか?
【商品カテゴリ >カーポート】(ご質問No.46)
四国化成のFリードカーポート収納庫付きタイプは取り扱ってますか?
【商品カテゴリ >カーポート】(ご質問No.74)
既存カーポートの支柱を流用して、増設、縦列2台用のカーポートを設置することは可能ですか?
【商品カテゴリ >カーポート】(ご質問No.84)
四国化成のマイポートneoの取り扱いはありますか?
【商品カテゴリ >カーポート】(ご質問No.88)


















