バイク・自転車を雨風から保護
お家の収納能力をアップ
ガレージの保全・防犯にカーポートと合わせて
お庭に機能的スペースを作り出します
防犯、お家のドレスアップはこれで決まり
ガレージ商品とコンビで高級感を演出
各取扱メーカーの会社名、ロゴ及び商品名等は各社の商標または登録商標です。
| 日 | 月 | 火 | 水 | 木 | 金 | 土 |
|---|---|---|---|---|---|---|
| 1 | 2 | 3 | 4 | 5 | 6 | 7 |
| 8 | 9 | 10 | 11 | 12 | 13 | 14 |
| 15 | 16 | 17 | 18 | 19 | 20 | 21 |
| 22 | 23 | 24 | 25 | 26 | 27 | 28 |
| 29 | 30 | 31 |
| 日 | 月 | 火 | 水 | 木 | 金 | 土 |
|---|---|---|---|---|---|---|
| 1 | 2 | 3 | 4 | |||
| 5 | 6 | 7 | 8 | 9 | 10 | 11 |
| 12 | 13 | 14 | 15 | 16 | 17 | 18 |
| 19 | 20 | 21 | 22 | 23 | 24 | 25 |
| 26 | 27 | 28 | 29 | 30 |
…休業日(現場調査・工事は一部対応)
![]()
【受付時間】9:30 - 17:30(営業日)
![]()
【受付時間】9:30 - 17:30(営業日)
オペレーションスタッフ
エクステリアプランナー有資格者の私たちにお任せください。
ショップ責任者
神(じん)
エクステリア プランナー
有資格者61名
1/3
木附
枡田
重富
吉澤
吉野
小東
池本
山田
佐藤
白崎
新西
伊野
次田
南
西山
小林
阿重田
梨田
長谷川
藤田
村上
平戸
植松
内田
久田
中島
長石
水口
榮
山崎
清水
室谷
安田
水谷
小野
酒井
一氏
神吉
日下部
山中
深田
田中
水田
西田
岡本
丸山
北
坂本
中嶋
岩野
伊藤
上中
高山
原
犬井
佐伯
谷川
塚田
松本
小林
森下
上内
島田
森
梅田
松山
山本
小西
倉地
山根
中原
河野
村上
土井
岩破
南
井上
三ツ股
小田
依藤
永禮
林
加藤
石藤
駒井
末吉
山本
芦野
樽井
野上
岡田
木村
池田
西村
藤澤
達川
奥原
那須
1/3
今週のPick Upページ
![]()
ご利用頂いたお客様の口コミ・レビューを「お客様の声」として掲載しております。
全てのご感想を掲載しておりますので、エクスショップの評判としてご参考ください。
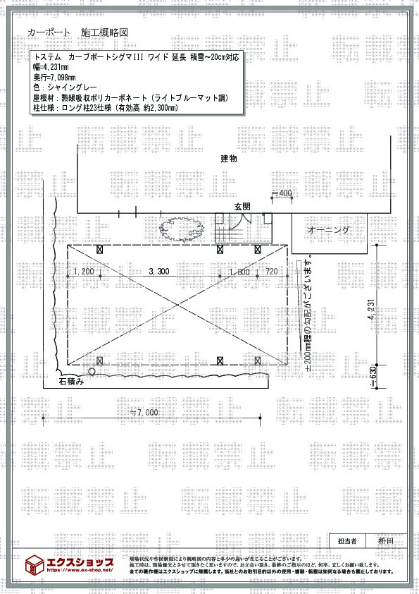
正式お見積りと一緒に提出させて頂いております「工事概略図面」もご覧頂けます。
商品や設置場所のご検討にお役立てください。
(写真No:18388618)
(カーポート)
| カラー | プラチナステン |
|---|---|
| サイズ | 幅 4,185mm 奥行 7,200mm |
| 屋根高等 | ハイルーフ柱仕様(有効高 約2,350mm) |
| 屋根材等 | 熱線遮断ポリカーボネート(アースブルーマット調) |
| 工事方法 | 地域密着あんしん施工 |
全体的に、大変、満足しています。また、機会があれば、お願いしたいと思います。
当サイトは以下のセキュリティ機能や保護認定等を備えています。安心してお申し込みください
当サイトはSSL暗号化に対応しています。入力した個人情報は暗号化して送られますので、安心してご利用ください。
当社はJADMAの正会員です。同協会は法律で位置づけられた団体で、消費者の利益保護と業界の健全な発展の為に活動しています。
こちらの工事に使用しているエクステリア
![]()
アリュース 600タイプ 2台用 奥行延長セット

工事費・税込
407,200円〜
総合平均評価(星5つ評価)
4.8
商品レビュー数
10件
アリュース 600タイプ 2台用 奥行延長セットはアリュース 600タイプ 2台用に奥行を追加したワイドタイプのカーポートです。基準風速Vo=34m/s・耐積雪性能20cmがあります。屋根材は弾力性に富んだポリカーボネート板と遮熱効果のある熱線遮断ポリカーボネートをご用意。
この商品の詳細へ
無料お見積り・現場調査・ご注文もこちら
関連するお客様の声

5つ星のうち5
茨城県T.T. 様回答日:2017年7月
子供が中学校へ進学。自転車通学なので当初サイクルポートの設置を検討していました。しかし適当な場所が無く、ならば自動車兼自転車置き場としてカーポートをと考え設置しました。雨天時の通学準備等、濡れることもなくなり少しは楽になったかなと思います。またこの時期、日中の駐車時の車内温度がだいぶ低くなりました。

5つ星のうち5
群馬県K.R. 様回答日:2016年9月
前からカーポートが欲しくて、家を広げる事になったので、カーポートを見つけました。携帯で検索したら、エクスショップが最初にでてきて、種類がたくさんあり、値段も安かったため決めました。 工事の日にちや、カーポート幅なども、いろいろ融通をきかせてもらい、エクスショップでお願いして良かったです。

5つ星のうち5
岡山県H.Y. 様回答日:2015年11月
自宅前に露天駐車をしていましたので、冬場はフロントガラスの霜を毎日解かしてからの出勤でした。もちろん雪の日も大変でした。設置後はその手間も無くなりました。また、設置については施工業の方から大変親切なアドバイスを頂いた上に、細部にわたって丁寧な施工でした。

5つ星のうち5
神奈川県N.Y. 様回答日:2015年7月
実は1年前にも見積もりをしてもらい、実際に施工担当者の方に現地調査までしてもらったのですが、その時は希望のカーポート商品がウチへの施工は不可能であることがわかり、一旦保留になってしまいました。今回は商品を変更しての施工でしたが、結果大満足の仕上がりでした。

5つ星のうち5
静岡県A.H. 様回答日:2015年7月
カーポートを設置したいと思っており、検討を始めたところエクスショップのサイトを見つけました。いろんな商品の費用もわかりやすく見積もりを依頼したところ、工事請負の方も気持ちのいい、説明もしっかりしている方でしたので、契約しました。先日工事完了しましたが、イメージ通りのできで満足しております。

5つ星のうち5
岡山県S.A. 様回答日:2026年1月
新築戸建の購入に伴い、カーポートとサイクルポートの設置を検討していました。インターネットで検索した際に上位に表示され、施工事例の画像やレビューを拝見して良さそうだと感じ、見積もりを依頼しました。見積もり内容の変更を何度かお願いしましたが、その都度迅速にご対応いただきました。また、工事日程の調整などについても小まめにご連絡をいただき、無事に完工することができました。

5つ星のうち5
群馬県M.A. 様回答日:2025年12月
車の入れ替えをきっかけに、カーポートを検討。近接の娘の家にも同時に設置したかった。冬場の朝、フロントガラスの凍結がなくなり、朝の通勤がとても快適になった。工事担当業者も気さくな人で、設置場所等細かいところまで相談に乗ってくれ安心して任せられた。今後も何かあれば一番初めに相談したいと思います。

5つ星のうち5
神奈川県O.K. 様回答日:2025年11月
カーポート設置は住宅新築当初からの懸案でしたが、デザイン的に満足するものがなく、十年にわたり車は陽ざらし雨ざらしの状態を続けていました。あるときネット上でふと目にした製品がようやく気に入り、そこからどんどん話を進めて短期間での設置完了となりました。その過程で、エクスショップさんとは二十回以上のメール応答があり、担当の方の迅速かつ丁寧な対応は好印象だったといえます。予想していたよりも早い日にちで工事をしてもらえた点も大いに助かりました。なお施工完了後にみても、費用に十分見合う出来映えとして満足しています。
関連するブログ記事
関連するよくあるご質問
カーポートの設置と一緒に土間コンクリートを打設できますか?
【商品カテゴリ >カーポート】(ご質問No.707)
既存のカーポート屋根材の張り替えの依頼はできますか?
【商品カテゴリ >カーポート】(ご質問No.21)
以前購入したカーポートの部品のみを追加で購入する事は可能ですか?
【商品カテゴリ >カーポート】(ご質問No.48)
ワイドタイプのカーポートですが、横幅の切り詰めは可能ですか?
【商品カテゴリ >カーポート】(ご質問No.69)
カーポートって何ですか?
【商品カテゴリ >カーポート】(ご質問No.28910)
既存のカーポートの柱の高さを桁上げする事は可能ですか?
【商品カテゴリ >カーポート】(ご質問No.43)
既存のカーポートをいったん解体し、再度組み立てることは可能ですか?
【商品カテゴリ >カーポート】(ご質問No.46)
四国化成のFリードカーポート収納庫付きタイプは取り扱ってますか?
【商品カテゴリ >カーポート】(ご質問No.74)
既存カーポートの支柱を流用して、増設、縦列2台用のカーポートを設置することは可能ですか?
【商品カテゴリ >カーポート】(ご質問No.84)
四国化成のマイポートneoの取り扱いはありますか?
【商品カテゴリ >カーポート】(ご質問No.88)


















