バイク・自転車を雨風から保護
お家の収納能力をアップ
ガレージの保全・防犯にカーポートと合わせて
お庭に機能的スペースを作り出します
防犯、お家のドレスアップはこれで決まり
ガレージ商品とコンビで高級感を演出
各取扱メーカーの会社名、ロゴ及び商品名等は各社の商標または登録商標です。
| 日 | 月 | 火 | 水 | 木 | 金 | 土 |
|---|---|---|---|---|---|---|
| 1 | 2 | 3 | 4 | 5 | 6 | |
| 7 | 8 | 9 | 10 | 11 | 12 | 13 |
| 14 | 15 | 16 | 17 | 18 | 19 | 20 |
| 21 | 22 | 23 | 24 | 25 | 26 | 27 |
| 28 | 29 | 30 | 31 |
| 日 | 月 | 火 | 水 | 木 | 金 | 土 |
|---|---|---|---|---|---|---|
| 1 | 2 | 3 | ||||
| 4 | 5 | 6 | 7 | 8 | 9 | 10 |
| 11 | 12 | 13 | 14 | 15 | 16 | 17 |
| 18 | 19 | 20 | 21 | 22 | 23 | 24 |
| 25 | 26 | 27 | 28 | 29 | 30 | 31 |
…休業日(現場調査・工事は一部対応)
![]()
【受付時間】9:30 - 17:30(営業日)
![]()
【受付時間】9:30 - 17:30(営業日)
オペレーションスタッフ
エクステリアプランナー有資格者の私たちにお任せください。
ショップ責任者
神(じん)
エクステリア プランナー
有資格者61名
1/3
木附
枡田
重富
吉澤
吉野
小東
池本
山田
佐藤
白崎
新西
伊野
次田
浅川
南
西山
小林
梨田
長谷川
藤田
阿重田
村上
植松
内田
久田
小野
平戸
中島
長石
水口
榮
山崎
清水
室谷
安田
水谷
酒井
神吉
日下部
山中
深田
田中
水田
西田
一氏
岡本
北
坂本
中嶋
岩野
伊藤
上中
高山
竹本
犬井
佐伯
谷川
原
丸山
塚田
松本
上内
島田
森
梅田
松山
山本
小林
倉地
山根
中原
河野
村上
土井
岩破
南
井上
三ツ股
小田
依藤
永禮
林
加藤
石藤
駒井
末吉
山本
芦野
樽井
野上
岡田
木村
池田
西村
藤澤
達川
奥原
那須
小西
森下
1/3
今週のPick Upページ
![]()
ご利用頂いたお客様の口コミ・レビューを「お客様の声」として掲載しております。
全てのご感想を掲載しておりますので、エクスショップの評判としてご参考ください。
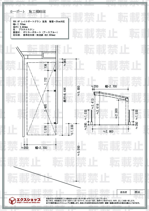
正式お見積りと一緒に提出させて頂いております「工事概略図面」もご覧頂けます。
商品や設置場所のご検討にお役立てください。
(写真No:20514621)
(カーポート)
| カラー | プラチナステン |
|---|---|
| サイズ | 幅 2,700mm 奥行 6,484mm |
| 屋根高等 | 標準柱仕様(有効高 約2,000mm) |
| 屋根材等 | ポリカーボネート(アースブルー) |
| 工事方法 | 地域密着あんしん施工 |
工事も手際良く、満足している。
この度はレイナポートグランの施工をご依頼頂きまして、誠に有り難うございます。ネット販売という顔の見えないお取引にご不安もおありであったかと存じますが、弊社を信頼して頂き、施工までお任せ頂きまして、大変光栄でございます。プラチナステンのカーポートがお車のお色とも見事に調和し、ご自宅の外観を損ねない素敵なお仕上がりでございますね。玄関アプローチの屋根としても機能的にご利用頂き、お気に召して頂きましたら幸いでございます。今後もお客様に愛され、信頼される企業を目指し日々邁進して参りますので、また機会がございましたらエクスショップをご用命下さいますよう、宜しくお願い致します。
当サイトは以下のセキュリティ機能や保護認定等を備えています。安心してお申し込みください
当サイトは256ビットSSL暗号化に対応しています。入力した個人情報は暗号化して送られますので、安心してご利用ください。
当社はJADMAの正会員です。同協会は法律で位置づけられた団体で、消費者の利益保護と業界の健全な発展の為に活動しています。
こちらの工事に使用しているエクステリア
![]()
アリュース 600タイプ 1台用 奥行延長セット

工事費・税込
197,300円〜
総合平均評価(星5つ評価)
4.81
商品レビュー数
52件
アリュース 600タイプ 1台用 奥行延長セットはアリュース 600タイプ 1台用の奥行が広くなった片側支持スタイルのカーポートです。柱・梁は高強度T6アルミニウム合金が使われており、基準風速Vo=34m/s・耐積雪性能20cmの性能を保持しています。
この商品の詳細へ
無料お見積り・現場調査・ご注文もこちら
この商品のレビュー
商品レビュー52件

長野県 小諸市 T.T.様
寸法を自分で測って注文したのでほぼ計画通りに出来たと思います。ただ、サイドパネルが透明だと思って注文したがすりガラスっぽく、それが予想外だった。

神奈川県 平塚市 N.J.様
実際に設置するまで写真しか見れなかったため、色合いなど心配していましたが、写真と変わらない印象でとても良かったです。

東京都 国分寺市 I.T.様
とてもしっかりした作り。柱の位置に融通が利くので既存の構造物を避けられる。

兵庫県 加東市 H.S.様
以前設置したテラス屋根と同じ色で揃えられて良かった。

奈良県 奈良市 F.K.様
車および自転車をカーポートの屋根がかぶる範囲で置くことができたので、とてもよかった。

和歌山県 和歌山市 M.T.様
思っていたより、どっしりとした感じでたいへん気に入っています。

宮城県 気仙沼市 S.Y.様
倉庫にかかるよう商品を選んだが、開け閉めの際に予想より雨が入らず満足している。

兵庫県 加古郡稲美町 Y.Y.様
購入前に商品を見ていなかったので、強度面やカラー(天板含む)が少し不安でしたが、出来上がりを見て、しっかりした作りで安心しました。また、シルバー色の構造体や天板の薄いブルー色は品があって私好みでした。

千葉県 印西市 K.M.様
価格と性能のバランスがよいと感じる、色もよい。

群馬県 高崎市 O.T.様
車とバイクの両方の置き場所を設置したいと思っていたところ、サイズも価格もちょうど良く満足しております。

徳島県 阿南市 A.T.様
風速5メ-トル位でも想像以上の揺れがあり心配

茨城県 つくばみらい市 N.H.様
商品に関してはイメージ通りで非常に満足です。高さの設定に悩みましたが、施工の際いろいろアドバイスいただけて、納得して決める事が出来ました。

愛知県 一宮市 M.T.様
満足しています!色をホワイトにしたので玄関が暗くなりにくいのは良かった。又、近所の方にカーポートを付けると車に霜がかからないから、冬はフロントガラスが凍らないからいいよと言われました。

神奈川県 横浜市 M.T.様
商品にはとても満足しています。本来車両2台分のカーポートにしようと思いましたが、柱の位置に水洗が埋め込まれていた為、それを回避する為中途半端ですが車両1.5台分の延長型のカーポートにしました。唯一の不満は真ん中の柱が丁度車両のドア位置に来るため、開閉時に接触する懸念がある点です。

兵庫県 神戸市 H.K.様
暑さはかなり軽減されました。 もう少し日光の眩しさはないのかと思っていましたが、そうでもなかった。

兵庫県 神戸市 U.Y.様
これまでと比べて高さがあるので圧迫感もなく、幅も広くなり建物との隙間も少なくなった。車の乗り降り時に雨に濡れることが少なくなった。見た目もきれい。
関連するお客様の声

5つ星のうち5
奈良県F.K. 様回答日:2024年11月
カーポートに関しては、車はもちろんのこと自転車が雨ざらしの状態であったため、雨、直射日光を防ぐために設置したかった。フェンスは家の横が歩行者専用道路になっており、歩行者の目線的にちょうど家の中が見えてしまう状態であったので、目隠しのために設置したかった。

5つ星のうち5
愛知県M.T. 様回答日:2024年10月
年齢的に今後、楽に生活出来るように少しずつ変えていきたいと思ったのがきっかけです。ウッドデッキについては、一階に寝室がある為、布団干しをするのに便利になりました。又、カーポートは雨の時の出入りが楽になった。雪かきが楽になる。自転車も濡れなくなった。

5つ星のうち4
群馬県M.N. 様回答日:2024年9月
新車購入にあたり新たにカーポートの設置の検討を始め、ご対応いただいた内容から他社よりも信頼できそうだと感じ依頼する事とした。契約から工事まで少し時間が空いてしまったが、施工業者さんは人柄も良くとても丁寧な仕事ぶりで安心してお任せする事ができた。

5つ星のうち5
埼玉県U.S. 様回答日:2024年2月
見積もりに来てくださった方の対応がとても良かったこと、見積もりもとてもわかり易く表示してあり、信頼できると思いました。また、エクスショップの担当の方が丁寧に対応して頂けたのと施工業者の方も分かりやすく説明いただき、対応も丁寧にして頂けたのが良かったです。

5つ星のうち5
岡山県M.A. 様回答日:2023年7月
今度新車を購入するのに、炎天下では、車が焼けるので、カーポートを設置したかったので。色々ネットでみて、ホームセンターをみてみましたが、エクスショップさんが1番でした。現場を見ていただいて見積もりをいただいて、バッチリでした。工事を担当していただいた業者さんも、暑い中、頑張っていただきました。本当にありがとうございました。

5つ星のうち5
愛知県A.M. 様回答日:2025年9月
ずっとカーポートが付けたかったけど、どうしてもいるものではなかったので後回しになっていた。年々猛暑が続いていた事がきっかけです。暑い日に乗った最初の車内の温度が低く感じられて、つけて良かったと思った。小雨の時の車の汚れが防げるといいなと思っています。

5つ星のうち5
静岡県G.M. 様回答日:2025年4月
昨年購入した車両は高さが2,250mmあり構造的にルーフには乗れず、洗車がとても大変で苦労していました。現在3連のカーポートはありますが高さが2,400mmの所があり納まりません。高さがクリアーできるカーポートを探した所エクスショップに辿り着きました。価格、保証等説明を聞き、クチコミにも後押しされ決めさせて頂きました。現地調査も準則にして頂き設置も近くの業者様により、2日で完了しました。設置後雨が降りましたが、車両が濡れないため雨垂れ等無くとても満足しております。また機会がありましたらその際は是非お願いしたいと思います。大変有り難う御座いました。

5つ星のうち5
長野県N.Y. 様回答日:2025年4月
友人の話を聞いて購入を考えました。初めてのマイホームということもあり、また積雪も多い地域であったことから、カーポートをつけたいと考えていました。今回購入したことで車に積もった雪を降ろすことなく快適に乗車できそうなので大変助かります。購入してよかったです。ありがとうございました。
関連するブログ記事
関連するよくあるご質問
カーポートの設置と一緒に土間コンクリートを打設できますか?
【商品カテゴリ >カーポート】(ご質問No.707)
既存のカーポート屋根材の張り替えの依頼はできますか?
【商品カテゴリ >カーポート】(ご質問No.21)
以前購入したカーポートの部品のみを追加で購入する事は可能ですか?
【商品カテゴリ >カーポート】(ご質問No.48)
ワイドタイプのカーポートですが、横幅の切り詰めは可能ですか?
【商品カテゴリ >カーポート】(ご質問No.69)
カーポートって何ですか?
【商品カテゴリ >カーポート】(ご質問No.28910)
既存のカーポートの柱の高さを桁上げする事は可能ですか?
【商品カテゴリ >カーポート】(ご質問No.43)
既存のカーポートをいったん解体し、再度組み立てることは可能ですか?
【商品カテゴリ >カーポート】(ご質問No.46)
四国化成のFリードカーポート収納庫付きタイプは取り扱ってますか?
【商品カテゴリ >カーポート】(ご質問No.74)
既存カーポートの支柱を流用して、増設、縦列2台用のカーポートを設置することは可能ですか?
【商品カテゴリ >カーポート】(ご質問No.84)
四国化成のマイポートneoの取り扱いはありますか?
【商品カテゴリ >カーポート】(ご質問No.88)


















