バイク・自転車を雨風から保護
お家の収納能力をアップ
ガレージの保全・防犯にカーポートと合わせて
お庭に機能的スペースを作り出します
防犯、お家のドレスアップはこれで決まり
ガレージ商品とコンビで高級感を演出
各取扱メーカーの会社名、ロゴ及び商品名等は各社の商標または登録商標です。
| 日 | 月 | 火 | 水 | 木 | 金 | 土 |
|---|---|---|---|---|---|---|
| 1 | 2 | 3 | 4 | 5 | 6 | |
| 7 | 8 | 9 | 10 | 11 | 12 | 13 |
| 14 | 15 | 16 | 17 | 18 | 19 | 20 |
| 21 | 22 | 23 | 24 | 25 | 26 | 27 |
| 28 | 29 | 30 | 31 |
| 日 | 月 | 火 | 水 | 木 | 金 | 土 |
|---|---|---|---|---|---|---|
| 1 | 2 | 3 | ||||
| 4 | 5 | 6 | 7 | 8 | 9 | 10 |
| 11 | 12 | 13 | 14 | 15 | 16 | 17 |
| 18 | 19 | 20 | 21 | 22 | 23 | 24 |
| 25 | 26 | 27 | 28 | 29 | 30 | 31 |
…休業日(現場調査・工事は一部対応)
![]()
【受付時間】9:30 - 17:30(営業日)
![]()
【受付時間】9:30 - 17:30(営業日)
オペレーションスタッフ
エクステリアプランナー有資格者の私たちにお任せください。
ショップ責任者
神(じん)
エクステリア プランナー
有資格者61名
1/3
木附
枡田
重富
吉澤
吉野
小東
池本
山田
佐藤
白崎
新西
伊野
次田
浅川
南
西山
小林
梨田
長谷川
藤田
阿重田
村上
植松
内田
久田
小野
平戸
中島
長石
水口
榮
山崎
清水
室谷
安田
水谷
酒井
神吉
日下部
山中
深田
田中
水田
西田
一氏
岡本
北
坂本
中嶋
岩野
伊藤
上中
高山
竹本
犬井
佐伯
谷川
原
丸山
塚田
松本
上内
島田
森
梅田
松山
山本
小林
倉地
山根
中原
河野
村上
土井
岩破
南
井上
三ツ股
小田
依藤
永禮
林
加藤
石藤
駒井
末吉
山本
芦野
樽井
野上
岡田
木村
池田
西村
藤澤
達川
奥原
那須
小西
森下
1/3
今週のPick Upページ
![]()
ご利用頂いたお客様の口コミ・レビューを「お客様の声」として掲載しております。
全てのご感想を掲載しておりますので、エクスショップの評判としてご参考ください。
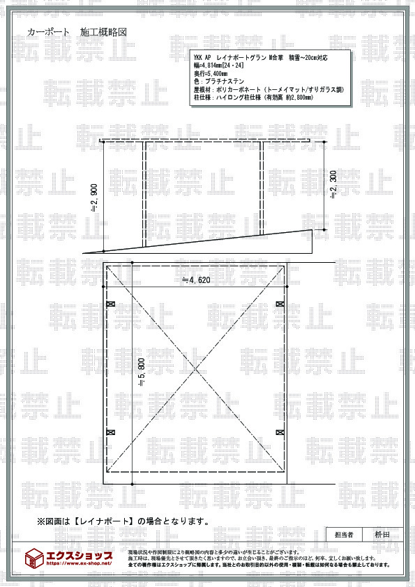
正式お見積りと一緒に提出させて頂いております「工事概略図面」もご覧頂けます。
商品や設置場所のご検討にお役立てください。
(写真No:20806722)
(カーポート)
| カラー | プラチナステン |
|---|---|
| サイズ | 幅 4,814mm 奥行 5,400mm |
| 屋根高等 | ハイロング柱仕様(有効高 約2,800mm) |
| 屋根材等 | ポリカーボネート(トーメイマット/すりガラス調) |
| 工事方法 | 地域密着あんしん施工 |
見積から工事完了まで、とても丁寧に対応して頂きました。又、細かい要望にも親切に相談に乗っていただきましたので。エクスショップ様に工事依頼して良かったです。
この度はレイナポートグランの施工をご依頼頂きまして、誠に有り難うございます。ご丁寧にお褒めのお言葉を頂戴致しまして、大変嬉しく光栄に存じます。プラチナステンのカーポートがご自宅の外観を損ねることの無いスッキリとしたお仕上がりでございますね。ポリカーボネートの屋根材は雨や埃だけでなく有害な紫外線をほぼ100%遮断致しますので、お客様のお身体にも優しく快適にご利用頂ける事と存じます。カーポートの設置によりお客様の生活がより豊かなものになりますことを、心より願っております。今後もお客様に愛され、信頼される企業を目指し日々邁進して参りますので、また機会がございましたらエクスショップをご用命下さいますよう、宜しくお願い致します。
当サイトは以下のセキュリティ機能や保護認定等を備えています。安心してお申し込みください
当サイトは256ビットSSL暗号化に対応しています。入力した個人情報は暗号化して送られますので、安心してご利用ください。
当社はJADMAの正会員です。同協会は法律で位置づけられた団体で、消費者の利益保護と業界の健全な発展の為に活動しています。
こちらの工事に使用しているエクステリア
![]()
アリュース 600タイプ M合掌セット(2台用)

工事費・税込
343,000円〜
総合平均評価(星5つ評価)
4.57
商品レビュー数
7件
アリュース 600タイプ M合掌セット(2台用)は2台のアリュース 600タイプ 1台用の屋根先をつなぎ合わせたM字型のカーポートです。異なるサイズでの組み合わせも可能で、敷地形状に適したものを設置いただけます。性能は基準風速Vo=34m/s・耐積雪性能20cmです。
この商品の詳細へ
無料お見積り・現場調査・ご注文もこちら
この商品のレビュー
商品レビュー7件
関連するお客様の声

5つ星のうち5
埼玉県T.K. 様回答日:2024年5月
以前からカーポートの購入を検討してはいたのですがホームセンター、工務店等に足を運ぶまでは…と思っていたところ自宅から、商品の比較や自分の希望のものを探せたのがよかったです。少量の雨でも車が汚れず洗車が減り隣の家との目隠しにもなりました。申し込みから短期間で設置してもらうことができました。

5つ星のうち5
宮城県S.M. 様回答日:2022年1月
妻が車通勤で、朝の雪下ろしが大変でした。雪は勿論、ガラスの凍結も無くなり大変喜んでます。御社は工事完了まで電話、メールでのやり取りでしたがこまめに連絡いただき全く不安もなく、価格も他店よりかなり安く、そして何より工事が丁寧で驚きでした。他の工事店に依頼しなくてつくづく良かったと思います。

5つ星のうち5
長崎県K.T. 様回答日:2021年4月
カーポートにおいては、元々1台分で支柱が気になって駐車に気をつけていました。しかし、3台分にして支柱が無くなり快適。ストックヤードでは、古い物置の撤去、足場コンクリート打ち直しをして非常に快適です。エクスショップの感想はメールでの打合せ、現場での簡単な打合せと淡々と事が進んで私としてはよかったです。

5つ星のうち4
福岡県H.M. 様回答日:2020年8月
入居当初からカーポートを設置したかったのですが、仕事が忙しく、なかなか家の方に手を着けられずにいました。今年は新型コロナの影響でステイホーム期間があったため、この機会を逃すまいと設置を決めました。完成してまだ数日で、降雨もまだないですが、雨の日に車を降りても玄関まで濡れずに行けるようになったのは嬉しいです。

5つ星のうち4
埼玉県N.M. 様回答日:2019年7月
真夏に熱くなった車内に入ることが苦痛でした。遮光のパネルにしたことで、まだ初夏ですが、車内の温度が下がっているようです。すでに、ひんやりとしていることが多くなりました。また、数年前に大雪が降った時、カーポートが崩れて、車が被害を受けた地域ですので、強度にも期待しています。

5つ星のうち5
愛知県A.M. 様回答日:2025年9月
ずっとカーポートが付けたかったけど、どうしてもいるものではなかったので後回しになっていた。年々猛暑が続いていた事がきっかけです。暑い日に乗った最初の車内の温度が低く感じられて、つけて良かったと思った。小雨の時の車の汚れが防げるといいなと思っています。

5つ星のうち5
静岡県G.M. 様回答日:2025年4月
昨年購入した車両は高さが2,250mmあり構造的にルーフには乗れず、洗車がとても大変で苦労していました。現在3連のカーポートはありますが高さが2,400mmの所があり納まりません。高さがクリアーできるカーポートを探した所エクスショップに辿り着きました。価格、保証等説明を聞き、クチコミにも後押しされ決めさせて頂きました。現地調査も準則にして頂き設置も近くの業者様により、2日で完了しました。設置後雨が降りましたが、車両が濡れないため雨垂れ等無くとても満足しております。また機会がありましたらその際は是非お願いしたいと思います。大変有り難う御座いました。

5つ星のうち5
長野県N.Y. 様回答日:2025年4月
友人の話を聞いて購入を考えました。初めてのマイホームということもあり、また積雪も多い地域であったことから、カーポートをつけたいと考えていました。今回購入したことで車に積もった雪を降ろすことなく快適に乗車できそうなので大変助かります。購入してよかったです。ありがとうございました。
関連するブログ記事
関連するよくあるご質問
カーポートの設置と一緒に土間コンクリートを打設できますか?
【商品カテゴリ >カーポート】(ご質問No.707)
既存のカーポート屋根材の張り替えの依頼はできますか?
【商品カテゴリ >カーポート】(ご質問No.21)
以前購入したカーポートの部品のみを追加で購入する事は可能ですか?
【商品カテゴリ >カーポート】(ご質問No.48)
ワイドタイプのカーポートですが、横幅の切り詰めは可能ですか?
【商品カテゴリ >カーポート】(ご質問No.69)
カーポートって何ですか?
【商品カテゴリ >カーポート】(ご質問No.28910)
既存のカーポートの柱の高さを桁上げする事は可能ですか?
【商品カテゴリ >カーポート】(ご質問No.43)
既存のカーポートをいったん解体し、再度組み立てることは可能ですか?
【商品カテゴリ >カーポート】(ご質問No.46)
四国化成のFリードカーポート収納庫付きタイプは取り扱ってますか?
【商品カテゴリ >カーポート】(ご質問No.74)
既存カーポートの支柱を流用して、増設、縦列2台用のカーポートを設置することは可能ですか?
【商品カテゴリ >カーポート】(ご質問No.84)
四国化成のマイポートneoの取り扱いはありますか?
【商品カテゴリ >カーポート】(ご質問No.88)


















