バイク・自転車を雨風から保護
お家の収納能力をアップ
ガレージの保全・防犯にカーポートと合わせて
お庭に機能的スペースを作り出します
防犯、お家のドレスアップはこれで決まり
ガレージ商品とコンビで高級感を演出
各取扱メーカーの会社名、ロゴ及び商品名等は各社の商標または登録商標です。
| 日 | 月 | 火 | 水 | 木 | 金 | 土 |
|---|---|---|---|---|---|---|
| 1 | 2 | 3 | ||||
| 4 | 5 | 6 | 7 | 8 | 9 | 10 |
| 11 | 12 | 13 | 14 | 15 | 16 | 17 |
| 18 | 19 | 20 | 21 | 22 | 23 | 24 |
| 25 | 26 | 27 | 28 | 29 | 30 | 31 |
| 日 | 月 | 火 | 水 | 木 | 金 | 土 |
|---|---|---|---|---|---|---|
| 1 | 2 | 3 | 4 | 5 | 6 | 7 |
| 8 | 9 | 10 | 11 | 12 | 13 | 14 |
| 15 | 16 | 17 | 18 | 19 | 20 | 21 |
| 22 | 23 | 24 | 25 | 26 | 27 | 28 |
…休業日(現場調査・工事は一部対応)
![]()
【受付時間】9:30 - 17:30(営業日)
![]()
【受付時間】9:30 - 17:30(営業日)
オペレーションスタッフ
エクステリアプランナー有資格者の私たちにお任せください。
ショップ責任者
神(じん)
エクステリア プランナー
有資格者61名
1/3
木附
枡田
重富
吉澤
吉野
小東
池本
山田
佐藤
白崎
新西
伊野
次田
南
西山
小林
阿重田
梨田
長谷川
藤田
村上
平戸
植松
内田
久田
中島
長石
水口
榮
山崎
清水
室谷
安田
水谷
小野
酒井
一氏
神吉
日下部
山中
深田
田中
水田
西田
岡本
丸山
北
坂本
中嶋
岩野
伊藤
上中
高山
原
犬井
佐伯
谷川
塚田
松本
小林
森下
上内
島田
森
梅田
松山
山本
小西
倉地
山根
中原
河野
村上
土井
岩破
南
井上
三ツ股
小田
依藤
永禮
林
加藤
石藤
駒井
末吉
山本
芦野
樽井
野上
岡田
木村
池田
西村
藤澤
達川
奥原
那須
1/3
今週のPick Upページ
![]()
ご利用頂いたお客様の口コミ・レビューを「お客様の声」として掲載しております。
全てのご感想を掲載しておりますので、エクスショップの評判としてご参考ください。
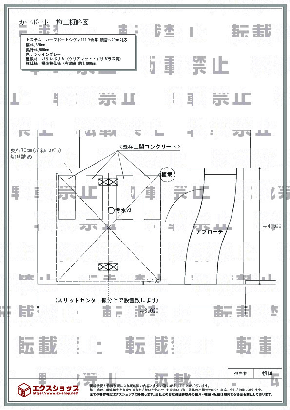
正式お見積りと一緒に提出させて頂いております「工事概略図面」もご覧頂けます。
商品や設置場所のご検討にお役立てください。
(写真No:21771423)
(カーポート)
| カラー | シャイングレー |
|---|---|
| サイズ | 幅 4,830mm 奥行 4,980mm |
| 屋根高等 | 標準柱仕様(有効高 約1,800mm) |
| 屋根材等 | ガリレポリカ(クリアマット・すりガラス調) |
| 工事方法 | 地域密着あんしん施工 |
電話の対応も良く、安心して任せることができました。現場調査から施工をして下さった工務店の方も話しやすく対応も良かったのでよかったです。現物を見ることができないので、高さをよく考えてお願いすればよかったなぁと思いました。
この度は、カーブポートシグマIII Y合掌の施工ご依頼を頂き誠に有り難うございます。弊社では、お客様に安心して快適にご利用頂ける様、日々精進しておりますので、この様なお言葉を頂戴でき大変嬉しく存じます。清々しい色味のカーポートで、すっきりと広がる屋根は開放感があり、とても素敵でございますね。現物確認として、メーカーショールムのご案内ができておりませんでしたこと、誠に申し訳ございませんでした。今後、お客様にすべての面でご満足頂ける様、日々精進して参りますので、又機会がございましたら是非エクスショップをご利用下さいますよう、宜しくお願い致します。
当サイトは以下のセキュリティ機能や保護認定等を備えています。安心してお申し込みください
当サイトは256ビットSSL暗号化に対応しています。入力した個人情報は暗号化して送られますので、安心してご利用ください。
当社はJADMAの正会員です。同協会は法律で位置づけられた団体で、消費者の利益保護と業界の健全な発展の為に活動しています。
こちらの工事に使用しているエクステリア
![]()
ネスカ R 1台用 Y合掌(ラウンドスタイル)

工事費・税込
305,000円〜
総合平均評価(星5つ評価)
4.65
商品レビュー数
23件
ネスカ R 1台用 Y合掌(ラウンドスタイル)は文字通りYの字に広がったアール型の屋根が特徴的な中央支柱カーポートです。用途により選べる6種類もの屋根材とオータムブラウンなど本体は計5カラーとなっています。耐風性能は基準風速Vo=34m/s、耐積雪性能は20cm相当を保持。
この商品の詳細へ
無料お見積り・現場調査・ご注文もこちら
この商品のレビュー
商品レビュー23件

福岡県 久留米市 S.Y.様
カーポートの屋根材を検討して注文・施工して貰いましたが、予期していた事態とチョット違った事もあり(私の判断ミス)、更に遮熱性の良い屋根材に葺き替えを貴社の担当者に相談中です。

愛知県 豊田市 I.K.様
真ん中は支柱なので駐車場がせまくならなかった。

広島県 福山市 Y.K.様
フロントガラスの凍結が気にならなくなりました。

広島県 福山市 Y.H.様
車一台分入るのですが、バックが下手で、ぶつかりそうになります。

広島県 福山市 A.A.様
自宅の外観と合わせたかったので白色が選択できて良かったです。

広島県 庄原市 T.K.様
屋根のサイズを最後まで悩みました。 大は小を兼ねると言う事で、1番大きなサイズにしたが、実際に施工されたのを見て悩んだが甲斐がありました。 金額はアップしましたが、車を止めてもまだ周りに余裕があり、雨の日の乗り降りが格段に楽です。

栃木県 宇都宮市 N.K.様
出来映えはしっかりしていて、断熱フィルムは本当に効果を実感しています。これから寒い季節ですが、霜の悩み、車のボディの痛みから解放されること期待です。

愛知県 みよし市 S.H.様
隣にもともと取り付けていたものと形も似てるのでよかったです

長崎県 長崎市 H.F.様
ネスカR (ラウンドスタイル) Y合掌とても格好いいです。 近所の方々にも褒められました。

千葉県 四街道市 S.Y.様
屋根の幅を左右で違う大きさにできるのが購入の決め手となりました。 玄関前と庭の2/3が屋根に覆われ、多少圧迫感はありますが快適です。

滋賀県 湖南市 T.R.様
細かくサイズ設定出来て良かったが、ネットの画像と実際の屋根のカラーが違ったのは残念でした。

福岡県 飯塚市 O.N.様
奥行もあって、背も高いためすごく収納力があって、とても満足しています。 重厚感があるので、安っぽくなく友人からの評判もとてもいいです。

宮崎県 児湯郡高鍋町 I.S.様
Y合掌タイプのメイン支柱の強度を増して、もう少し細いものに出来ないかと感じた。敷地に余裕が無いので駐車不可の面積が気になる。
関連するお客様の声

5つ星のうち5
静岡県K.Y. 様回答日:2022年9月
地元の業者に見積もりしてもらったら、とてもとても高額で諦めていたカーポートですが、こちらを見つけて見積もり依頼してもらったら、すぐに現地調査に来ていただき、見積もりを見たら、半額でした。即決でした。車の日焼けも防げますし、もちろん雨降りでも濡れなくて快適です。

5つ星のうち5
長崎県H.F. 様回答日:2016年12月
自宅に隣接した土地を購入し、駐車場として整備したのでカーポートを新設することにしました。設置が終わった後眺めると思っていたより立派なカーポートで駐車場の格が上がった気がします。土台部分も周りのアスファルトと同じ色にして頂いたので仕上がりに大変満足しています。

5つ星のうち4
福島県S.K. 様回答日:2013年10月
正直不安はありました。ネット上での契約、直接販売店に伺わずに業者とやり取りする事に抵抗もありました。しかし、売られている商品自体は同じモノで、販売店に2.3度足を運んだ処で何が変わって来るのでしょう?工事完了した今は、不安も消え、とても満足しています。

5つ星のうち4
三重県O.S. 様回答日:2013年1月
最初メールのやり取りで行き違いが有ったりしましたがその後は、全てスムーズに行きましたし、地元施工業者も雪の降る中での作業もありましたが丁寧に作業をして頂きましたので満足です。施工日数が一週間と長かった?ので申し訳ないですが星一つ減らして満足度は星4つです。

5つ星のうち5
宮崎県K.T. 様回答日:2012年8月
当初、テラス施工で見積依頼しましたが急遽、都合でカーポートに変更させてもらいましたがエクスショップには迷惑をお掛けしましたがスムーズに対応してもらえました。また、施工業者の対応も良く期待通りに設置できました。インターネットでの発注で不安もありましたが、順調に施工できたので思った以上に良かったです。

5つ星のうち5
愛知県A.M. 様回答日:2025年9月
ずっとカーポートが付けたかったけど、どうしてもいるものではなかったので後回しになっていた。年々猛暑が続いていた事がきっかけです。暑い日に乗った最初の車内の温度が低く感じられて、つけて良かったと思った。小雨の時の車の汚れが防げるといいなと思っています。

5つ星のうち5
京都府N.T. 様回答日:2025年9月
今回、人工芝の設置とカーポートの施工をお願いしました。人工芝は子供たちの評判も良く、近日にプールをするのを楽しみにしております。また、カーポートも想像以上の出来で、ご近所さんにもお褒めの言葉を頂きました。施工業者様もとても親切丁寧な方で、ぜひまたお願いしたいなと思います。

5つ星のうち5
神奈川県H.Y. 様回答日:2025年8月
1、新車購入をきっかけに、車を綺麗に保ちたかった。2、冬季の朝のガラスの霜降り、夏の昼間に車に乗る時の暑さを回避したかった。3、想定していた施工後のイメージを超えて非常に満足しています。ダウンライトをつけたので、夜はショールームのように車が照らされて、高級感があります。夜の駐車は少し近所では浮いていますが、慣れれば何ら問題ないです。
関連するブログ記事










関連するよくあるご質問
カーポートの設置と一緒に土間コンクリートを打設できますか?
【商品カテゴリ >カーポート】(ご質問No.707)
既存のカーポート屋根材の張り替えの依頼はできますか?
【商品カテゴリ >カーポート】(ご質問No.21)
以前購入したカーポートの部品のみを追加で購入する事は可能ですか?
【商品カテゴリ >カーポート】(ご質問No.48)
ワイドタイプのカーポートですが、横幅の切り詰めは可能ですか?
【商品カテゴリ >カーポート】(ご質問No.69)
カーポートって何ですか?
【商品カテゴリ >カーポート】(ご質問No.28910)
既存のカーポートの柱の高さを桁上げする事は可能ですか?
【商品カテゴリ >カーポート】(ご質問No.43)
既存のカーポートをいったん解体し、再度組み立てることは可能ですか?
【商品カテゴリ >カーポート】(ご質問No.46)
四国化成のFリードカーポート収納庫付きタイプは取り扱ってますか?
【商品カテゴリ >カーポート】(ご質問No.74)
既存カーポートの支柱を流用して、増設、縦列2台用のカーポートを設置することは可能ですか?
【商品カテゴリ >カーポート】(ご質問No.84)
四国化成のマイポートneoの取り扱いはありますか?
【商品カテゴリ >カーポート】(ご質問No.88)


















