バイク・自転車を雨風から保護
お家の収納能力をアップ
ガレージの保全・防犯にカーポートと合わせて
お庭に機能的スペースを作り出します
防犯、お家のドレスアップはこれで決まり
ガレージ商品とコンビで高級感を演出
各取扱メーカーの会社名、ロゴ及び商品名等は各社の商標または登録商標です。
| 日 | 月 | 火 | 水 | 木 | 金 | 土 |
|---|---|---|---|---|---|---|
| 1 | 2 | 3 | 4 | 5 | 6 | |
| 7 | 8 | 9 | 10 | 11 | 12 | 13 |
| 14 | 15 | 16 | 17 | 18 | 19 | 20 |
| 21 | 22 | 23 | 24 | 25 | 26 | 27 |
| 28 | 29 | 30 | 31 |
| 日 | 月 | 火 | 水 | 木 | 金 | 土 |
|---|---|---|---|---|---|---|
| 1 | 2 | 3 | ||||
| 4 | 5 | 6 | 7 | 8 | 9 | 10 |
| 11 | 12 | 13 | 14 | 15 | 16 | 17 |
| 18 | 19 | 20 | 21 | 22 | 23 | 24 |
| 25 | 26 | 27 | 28 | 29 | 30 | 31 |
…休業日(現場調査・工事は一部対応)
![]()
【受付時間】9:30 - 17:30(営業日)
![]()
【受付時間】9:30 - 17:30(営業日)
オペレーションスタッフ
エクステリアプランナー有資格者の私たちにお任せください。
ショップ責任者
神(じん)
エクステリア プランナー
有資格者61名
1/3
木附
枡田
重富
吉澤
吉野
小東
池本
山田
佐藤
白崎
新西
伊野
次田
浅川
南
西山
小林
梨田
長谷川
藤田
阿重田
村上
植松
内田
久田
小野
平戸
中島
長石
水口
榮
山崎
清水
室谷
安田
水谷
酒井
神吉
日下部
山中
深田
田中
水田
西田
一氏
岡本
北
坂本
中嶋
岩野
伊藤
上中
高山
竹本
犬井
佐伯
谷川
原
丸山
塚田
松本
上内
島田
森
梅田
松山
山本
小林
倉地
山根
中原
河野
村上
土井
岩破
南
井上
三ツ股
小田
依藤
永禮
林
加藤
石藤
駒井
末吉
山本
芦野
樽井
野上
岡田
木村
池田
西村
藤澤
達川
奥原
那須
小西
森下
1/3
今週のPick Upページ
![]()
ご利用頂いたお客様の口コミ・レビューを「お客様の声」として掲載しております。
全てのご感想を掲載しておりますので、エクスショップの評判としてご参考ください。
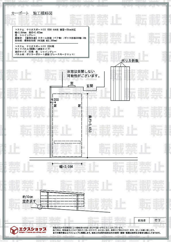
正式お見積りと一緒に提出させて頂いております「工事概略図面」もご覧頂けます。
商品や設置場所のご検討にお役立てください。
(写真No:22114824)
(カーポート)
| カラー | シャイングレー |
|---|---|
| サイズ | 幅 3,084mm 奥行 5,453mm |
| 屋根高等 | 凍上ロング柱25(有効高 約2,500mm) |
| 屋根材等 | スチール折板(ペフ無) |
| 工事方法 | メーカー責任施工 |
見積もりの時点でミスが多かった。担当以外のチェック機能を強化すべき。施工はメーカーだったのでしっかりしていた
テリオスポートIII 1500 4本柱の施工をご依頼頂きまして、誠に有り難うございます。お見積り内容に不備があり、ご発注までにお時間を頂戴致しましたこと、誠に申し訳ございませんでした。お客様のお言葉を真摯に受け止め、社内でのチェック体制を整えて参りたいと存じます。ご迷惑をお掛け致しましたが、施工にご満足頂き、何よりも嬉しく存じます。丈夫なスチール折板の屋根を太い4本の柱で支えるカーポートでございますので、積雪が多い地域にお住まいのお客様にも安心してご使用頂けるものと存じます。今後も変わらず、お客様のご満足の為に精進して参りたいと存じます。また機会がございましたら、お気軽にエクスショップまでご連絡くださいますよう宜しくお願い致します。
当サイトは以下のセキュリティ機能や保護認定等を備えています。安心してお申し込みください
当サイトは256ビットSSL暗号化に対応しています。入力した個人情報は暗号化して送られますので、安心してご利用ください。
当社はJADMAの正会員です。同協会は法律で位置づけられた団体で、消費者の利益保護と業界の健全な発展の為に活動しています。
こちらの工事に使用しているエクステリア
![]()
カーポートSW 積雪50cm対応 4本柱 折板

工事費・税込
471,400円〜
総合平均評価(星5つ評価)
4.64
商品レビュー数
14件
耐風圧・積雪強度に優れた、風が強い日でも安心のカーポート。耐風性能Vo=46m/s相当という業界最高水準の耐風性能を誇り、大事なお車を安心にお守り頂ける頼もしいスペック。力強さだけではなく、屋根がフラットでメリハリのあるデザインは、住宅のデザインを選ばない美しい機能美を魅せます。シンプルな機能美を兼ね備えた、正にワンランク上のカーポートです。
この商品の詳細へ
無料お見積り・現場調査・ご注文もこちら
この商品のレビュー
商品レビュー14件

北海道 室蘭市 H.T.様
思っていたよりも若干サイズが大きかったので、驚きましたが、地元施工業者さんと相談して敷地内に納めることができたので、一度。冬期の状況の際を見ないとわかりませんが、現状では、満足でした。

宮城県 仙台市 O.S.様
想像以上にがっしりしており、現状、満足しております。色合いもよくて周囲になじんでおり、施工して良かったと思っております。

宮城県 大崎市 I.Y.様
作りが非常にがっちりいていて、見た目も高級感があり大変良い。

長崎県 佐世保市 H.T.様
台風が毎年必ず来る地域なので、強度があるカーポートを選ぶ事としました。 実際、強度だけなく見栄えも満足してます。

大阪府 茨木市 Y.K.様
想像していたよりも、大きく、屋根が高いと思った。

神奈川県 秦野市 N.S.様
最初は明るさも考えてポリカを一部入れた屋根で検討してましたが、経年劣化での汚れが目立つことなどから、なるべくメんンテフリーにしようとオール折半にしまいしたが暗くなることもなく、風が強い地域で強度を優先に選びましたが強度も意匠的にも満足しております。 設置していただいた職人さんも、細かいところまで丁寧な仕事で良かったです。

千葉県 市原市 N.N.様
まだ3日目なのでよくわからないが、しっかりと施工されており、心配なさそう。

滋賀県 彦根市 M.M.様
大変満足してます。周りの人も立派で頑丈そうだねと、すごく評判は良いです。
関連するお客様の声

5つ星のうち4
東京都S.K. 様回答日:2017年6月
モノは満足のいくものだったが、施工までの時間がかかりすぎる。貴社のミスにより施工日が延期となったためさらに時間がかかった。ミスに対しての救済処置が無いのは残念。

5つ星のうち4
愛媛県H.H. 様回答日:2020年7月
ベランダ屋根は洗濯物が突然の雨でも安心出来るし、カーポートは雨に濡れずに乗り降り出来るので快適。エクスショップとのやり取りは担当の人とメール、電話で比較的スムーズに出来たと思う。でも、一回電話した時に担当以外の人が担当じゃないのでという感じで対応が悪かった。

5つ星のうち4
千葉県I.T. 様回答日:2012年6月
申し込みから現場調査、工事まで素早く対応して頂きました。施工時に小さなミスはありましたが、仕上がりには大変満足しています。

5つ星のうち5
神奈川県N.S. 様回答日:2020年12月
家を新築した8年ほど前にカーポートを設置したんですが、その1年後に大雪でカーポートが倒壊してしまい、これまでカーポート無しで過ごしてきました。新車を購入するにあたりカーポートを設置しようと思い、雪の重みと風に強いカーポートを探してたところ今回設置した製品が良いと思い決めました。

5つ星のうち5
東京都I.M. 様回答日:2015年9月
きっかけは、一昨年の大雪でカーポートが壊れてしまったこと。今まで時間が取れなくて更新できずにいた。昨年の冬は雪が降るたびに、つぶれてしまうのではないかと気が気ではなかったので今回、更新できてよかった。また、今回は一昨年の積雪量を考えて50cm対応のものにした。これで雪下ろしを考えずに済むので安心できそう。

5つ星のうち5
愛知県A.M. 様回答日:2025年9月
ずっとカーポートが付けたかったけど、どうしてもいるものではなかったので後回しになっていた。年々猛暑が続いていた事がきっかけです。暑い日に乗った最初の車内の温度が低く感じられて、つけて良かったと思った。小雨の時の車の汚れが防げるといいなと思っています。

5つ星のうち5
静岡県G.M. 様回答日:2025年4月
昨年購入した車両は高さが2,250mmあり構造的にルーフには乗れず、洗車がとても大変で苦労していました。現在3連のカーポートはありますが高さが2,400mmの所があり納まりません。高さがクリアーできるカーポートを探した所エクスショップに辿り着きました。価格、保証等説明を聞き、クチコミにも後押しされ決めさせて頂きました。現地調査も準則にして頂き設置も近くの業者様により、2日で完了しました。設置後雨が降りましたが、車両が濡れないため雨垂れ等無くとても満足しております。また機会がありましたらその際は是非お願いしたいと思います。大変有り難う御座いました。

5つ星のうち5
長野県N.Y. 様回答日:2025年4月
友人の話を聞いて購入を考えました。初めてのマイホームということもあり、また積雪も多い地域であったことから、カーポートをつけたいと考えていました。今回購入したことで車に積もった雪を降ろすことなく快適に乗車できそうなので大変助かります。購入してよかったです。ありがとうございました。
関連するブログ記事
関連するよくあるご質問
カーポートの設置と一緒に土間コンクリートを打設できますか?
【商品カテゴリ >カーポート】(ご質問No.707)
既存のカーポート屋根材の張り替えの依頼はできますか?
【商品カテゴリ >カーポート】(ご質問No.21)
以前購入したカーポートの部品のみを追加で購入する事は可能ですか?
【商品カテゴリ >カーポート】(ご質問No.48)
ワイドタイプのカーポートですが、横幅の切り詰めは可能ですか?
【商品カテゴリ >カーポート】(ご質問No.69)
カーポートって何ですか?
【商品カテゴリ >カーポート】(ご質問No.28910)
既存のカーポートの柱の高さを桁上げする事は可能ですか?
【商品カテゴリ >カーポート】(ご質問No.43)
既存のカーポートをいったん解体し、再度組み立てることは可能ですか?
【商品カテゴリ >カーポート】(ご質問No.46)
四国化成のFリードカーポート収納庫付きタイプは取り扱ってますか?
【商品カテゴリ >カーポート】(ご質問No.74)
既存カーポートの支柱を流用して、増設、縦列2台用のカーポートを設置することは可能ですか?
【商品カテゴリ >カーポート】(ご質問No.84)
四国化成のマイポートneoの取り扱いはありますか?
【商品カテゴリ >カーポート】(ご質問No.88)


















