バイク・自転車を雨風から保護
お家の収納能力をアップ
ガレージの保全・防犯にカーポートと合わせて
お庭に機能的スペースを作り出します
防犯、お家のドレスアップはこれで決まり
ガレージ商品とコンビで高級感を演出
各取扱メーカーの会社名、ロゴ及び商品名等は各社の商標または登録商標です。
| 日 | 月 | 火 | 水 | 木 | 金 | 土 |
|---|---|---|---|---|---|---|
| 1 | ||||||
| 2 | 3 | 4 | 5 | 6 | 7 | 8 |
| 9 | 10 | 11 | 12 | 13 | 14 | 15 |
| 16 | 17 | 18 | 19 | 20 | 21 | 22 |
| 23 | 24 | 25 | 26 | 27 | 28 | 29 |
| 30 |
| 日 | 月 | 火 | 水 | 木 | 金 | 土 |
|---|---|---|---|---|---|---|
| 1 | 2 | 3 | 4 | 5 | 6 | |
| 7 | 8 | 9 | 10 | 11 | 12 | 13 |
| 14 | 15 | 16 | 17 | 18 | 19 | 20 |
| 21 | 22 | 23 | 24 | 25 | 26 | 27 |
| 28 | 29 | 30 | 31 |
…休業日(現場調査・工事は一部対応)
![]()
【受付時間】9:30 - 17:30(営業日)
![]()
【受付時間】9:30 - 17:30(営業日)
オペレーションスタッフ
エクステリアプランナー有資格者の私たちにお任せください。
ショップ責任者
神(じん)
エクステリア プランナー
有資格者61名
1/3
木附
枡田
重富
吉澤
吉野
小東
池本
山田
佐藤
白崎
新西
伊野
次田
浅川
南
西山
小林
梨田
長谷川
藤田
阿重田
村上
植松
内田
久田
小野
平戸
中島
長石
水口
榮
山崎
清水
室谷
安田
水谷
酒井
神吉
日下部
山中
深田
田中
水田
西田
一氏
岡本
北
坂本
中嶋
岩野
伊藤
上中
高山
竹本
犬井
佐伯
谷川
原
丸山
塚田
松本
上内
島田
森
梅田
松山
山本
小林
倉地
山根
中原
河野
村上
土井
岩破
南
井上
三ツ股
小田
依藤
永禮
林
加藤
石藤
駒井
末吉
山本
芦野
樽井
野上
岡田
木村
池田
西村
藤澤
達川
奥原
那須
小西
森下
1/3
今週のPick Upページ
![]()
ご利用頂いたお客様の口コミ・レビューを「お客様の声」として掲載しております。
全てのご感想を掲載しておりますので、エクスショップの評判としてご参考ください。
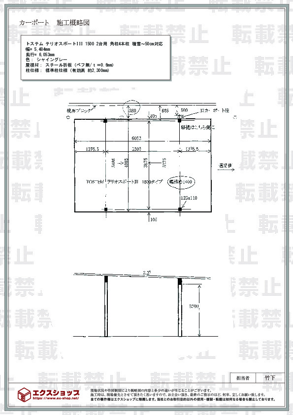
正式お見積りと一緒に提出させて頂いております「工事概略図面」もご覧頂けます。
商品や設置場所のご検討にお役立てください。
(写真No:22255224)
(カーポート)
| カラー | シャイングレー |
|---|---|
| サイズ | 幅 5,484mm 奥行 6,053mm |
| 屋根高等 | 標準柱仕様(有効高 約2,300mm) |
| 屋根材等 | スチール折板(ペフ無/t=0.6mm) |
| 工事方法 | メーカー責任施工 |
エクスショップ窓口の対応は迅速丁寧で良かったが、メーカー責任施工といっても結局最後は下請施工業者に丸投げしているようで、施工業者の工事は良くなかった。
施工時の対応に至らない点がございましたこと、誠に申し訳ございませんでした。今後はお客様にご安心して施工をお任せ頂けますよう、メーカー側とも協議し、きめ細やかなご説明・施工に努めて参る所存でございます。重ねてではございますが、この度はご迷惑をお掛け致しまして誠に申し訳ございませんでした。心よりお詫び申し上げます。また今後のご利用で何かお気になられること、ご不安な点等ございましたら、エクスショップまでご連絡下さいますよう、宜しくお願い致します。
当サイトは以下のセキュリティ機能や保護認定等を備えています。安心してお申し込みください
当サイトは256ビットSSL暗号化に対応しています。入力した個人情報は暗号化して送られますので、安心してご利用ください。
当社はJADMAの正会員です。同協会は法律で位置づけられた団体で、消費者の利益保護と業界の健全な発展の為に活動しています。
こちらの工事に使用しているエクステリア
![]()
カーポートSW 積雪50cm対応 2台用 4本柱 折板

工事費・税込
683,200円〜
総合平均評価(星5つ評価)
4.74
商品レビュー数
27件
高い耐久性とライフスタイルに合わせてお選び頂ける豊富なバリエーションが特徴のカーポートです。こちらのシリーズでは、耐風性能Vo=46m/s相当という業界最高水準の耐風性能を標準で設定。力強さだけではなく、屋根がフラットでメリハリのあるデザインは、住宅のデザインを選ばない美しい機能美を魅せます。シンプルな機能美を兼ね備えた、正にワンランク上のカーポートでございます。
この商品の詳細へ
無料お見積り・現場調査・ご注文もこちら
この商品のレビュー
商品レビュー27件

岐阜県 各務原市 A.M.様
駐車場が前と後ろで30cm位の傾斜地でしたので標準の柱と2500mmの柱と迷いましたが 2500mmの柱にして良かったです。

宮城県 大崎市 I.M.様
初めに見た時、スチール折板の色が黄味がかっていて、枠の色と差があり違和感がありましたが、最近は慣れてきました。

島根県 松江市 N.Y.様
近所の人からいいねとか、上等だねと言われました。

長野県 安曇野市 M.Y.様
多少、積雪50センチが気になりますが、近年温暖化のせいか年々ドカ雪が少なくなり大丈夫かな?って思ってます。

岐阜県 中津川市 F.K.様
車に雪が積らなくなったのはとても良い。 片側だけでも壁を作っても良かったかなと思う。

岩手県 盛岡市 Y.T.様
予想以上にがっちりしていることと、4本柱にしたのでドアの開け閉めの時に柱が邪魔にならない。

神奈川県 横浜市 H.M.様
思っていた通り、しっかりとした作りで、ご近所の方からも「立派なものができたわね!」と言われました。

神奈川県 相模原市 I.S.様
屋根の高さを3mとしたことで開放感があり、大きな車も入れられるので非常に満足しています。

茨城県 取手市 N.T.様
線路からの鉄粉で車がザラザラになってしまうので、フェンスと一緒に設置しました。鉄粉避けの効果はこれからですが、さっそく雨の日の車の乗り降りでも濡れなくなり満足しています。

長野県 長野市 T.Y.様
非常に満足している。 波板鋼板の裏側も黒ならなお良し。

宮城県 栗原市 K.N.様
頑丈にできていると言われています。 雨の日は車の乗りおりはとても楽です。

愛知県 愛西市 K.M.様
カタログで想像していたより、しっかりとした構造でよかった。

東京都 国立市 S.K.様
東京では不要なスペックかとも思いますが、既設の屋根が重厚な作りだったため しっかりとした作りの雰囲気が変わらず満足しています。 他社SW900よりも安くなっていたためSW1500にしましたが、 そこまでの積雪はないと思いつつも安心しています。

宮城県 遠田郡美里町 S.K.様
思った以上にしっかりとした作りで大満足です。心配していた強風や雪にも耐えられる作りだと思います。

福島県 福島市 H.S.様
メーカー製品のためカタログ通りのイメージです。

愛知県 あま市 F.S.様
もともとカーポートの、規定サイズがあるので、その規定サイズを広げたり狭めたりすれば、料金に反映します。 ただ、あまり料金に反映しないよう、カーポート取り付け位置を考えて設置して頂けたましたので、満足しております。

神奈川県 相模原市 H.N.様
施工場所が少し高台にある為、普段から風が強くてどうかなと考えていました。風に強いカーポートと選定理由もはっきりしていましたので、価格の面も考慮してレオンポートneoとテリオスポートVのどちらかになり、ネット情報の良さもありテリオスポートVに決めました。出来上がりに満足です。

群馬県 前橋市 S.N.様
非常に頑丈なカーポートに見え、安心して大事な車を駐車できるカーポートだと思います。

福島県 福島市 A.M.様
まだ実感がないが、壊れないに定評のあるところ。 シンプルだが高級感も兼ね備えている。

千葉県 木更津市 Y.T.様
柱も太く、今までのカーポートに比べると強固で安心感が全く違う。 屋根材のスチール波板の傾斜が少ない事も含め、ゴミがたまりそうで心配なのと、鉄粉飛来で鉄粉自体が錆てしまい茶色い点々が気になる。

北海道 苫小牧市 K.H.様
これからじっくり付き合います。 冬期の効果を期待してます。

長野県 諏訪市 I.A.様
思ってた以上に、しっかりとした作りで大満足です。 いろいろと検討した結果、これにしました。

神奈川県 横須賀市 K.T.様
とても満足しています。知人にはとても立派なカーポートと良い評価をしてもらっています。近所の方々にも好評です。
関連するお客様の声

5つ星のうち5
岐阜県A.M. 様回答日:2025年3月
今までは砂利の駐車場で側溝に石が落ちて困っていましたがカーポート工事と同時に洗出しの土間にし見た目も良く問題は解決しました。又はカーポートを決める際、仕様を変更何度も変更し担当の方にはご無理を言って申し訳ありませんでしたが、気持ちよく対応していただき本当にありがとうございました。

5つ星のうち4
千葉県M.E. 様回答日:2020年6月
前の屋根は1台用で、使い勝手も悪く不便でした。雨漏りを機に2台用決断しました。2台とも玄関から雨に濡れずに乗れるようになりました。またサイドパネルを両面に取り付け、雨の吹き込みや直射日光もやわらぎました。ショップの感想ですが、多少の食い違いなどはありましたが出来上がりOKで満足しています。

5つ星のうち4
埼玉県T.Y. 様回答日:2019年12月
ハウスメーカーでカーポートの設置を検討していましたが、それよりも価格が安く、天板をカットして頂けたりと要望を色々と聞いて頂けたのでこちらにお願いしました。設置後は、車からの荷物を運ぶ際など天候に左右されず快適に移動できる点が大変便利になりました。

5つ星のうち4
埼玉県K.N. 様回答日:2019年9月
今の家に引っ越してきて4年目になりますが、2回程度雪かきをしました。車2台分の駐車場を雪かきするのは大変で、カーポートを設置したいとずっと思っていました。雪があまり降らない所ですが、数年に一度のペースで大雪が降っているので、その際は楽になると思います。

5つ星のうち5
岩手県N.A. 様回答日:2019年5月
積雪はそれほど多くありませんが、ある程度の積雪に耐えることができることが第一条件でした。また、今は夏場ですが、日差しで車が熱くなり洗車や車のメンテナンスを諦めることが多くありましたが、日差しを完全に遮ってくれるので、日中でも洗車やメンテナンスができ、とても便利です。

5つ星のうち5
愛知県A.M. 様回答日:2025年9月
ずっとカーポートが付けたかったけど、どうしてもいるものではなかったので後回しになっていた。年々猛暑が続いていた事がきっかけです。暑い日に乗った最初の車内の温度が低く感じられて、つけて良かったと思った。小雨の時の車の汚れが防げるといいなと思っています。

5つ星のうち5
静岡県G.M. 様回答日:2025年4月
昨年購入した車両は高さが2,250mmあり構造的にルーフには乗れず、洗車がとても大変で苦労していました。現在3連のカーポートはありますが高さが2,400mmの所があり納まりません。高さがクリアーできるカーポートを探した所エクスショップに辿り着きました。価格、保証等説明を聞き、クチコミにも後押しされ決めさせて頂きました。現地調査も準則にして頂き設置も近くの業者様により、2日で完了しました。設置後雨が降りましたが、車両が濡れないため雨垂れ等無くとても満足しております。また機会がありましたらその際は是非お願いしたいと思います。大変有り難う御座いました。

5つ星のうち5
長野県N.Y. 様回答日:2025年4月
友人の話を聞いて購入を考えました。初めてのマイホームということもあり、また積雪も多い地域であったことから、カーポートをつけたいと考えていました。今回購入したことで車に積もった雪を降ろすことなく快適に乗車できそうなので大変助かります。購入してよかったです。ありがとうございました。
関連するブログ記事
関連するよくあるご質問
カーポートの設置と一緒に土間コンクリートを打設できますか?
【商品カテゴリ >カーポート】(ご質問No.707)
既存のカーポート屋根材の張り替えの依頼はできますか?
【商品カテゴリ >カーポート】(ご質問No.21)
以前購入したカーポートの部品のみを追加で購入する事は可能ですか?
【商品カテゴリ >カーポート】(ご質問No.48)
ワイドタイプのカーポートですが、横幅の切り詰めは可能ですか?
【商品カテゴリ >カーポート】(ご質問No.69)
カーポートって何ですか?
【商品カテゴリ >カーポート】(ご質問No.28910)
既存のカーポートの柱の高さを桁上げする事は可能ですか?
【商品カテゴリ >カーポート】(ご質問No.43)
既存のカーポートをいったん解体し、再度組み立てることは可能ですか?
【商品カテゴリ >カーポート】(ご質問No.46)
四国化成のFリードカーポート収納庫付きタイプは取り扱ってますか?
【商品カテゴリ >カーポート】(ご質問No.74)
既存カーポートの支柱を流用して、増設、縦列2台用のカーポートを設置することは可能ですか?
【商品カテゴリ >カーポート】(ご質問No.84)
四国化成のマイポートneoの取り扱いはありますか?
【商品カテゴリ >カーポート】(ご質問No.88)


















