バイク・自転車を雨風から保護
お家の収納能力をアップ
ガレージの保全・防犯にカーポートと合わせて
お庭に機能的スペースを作り出します
防犯、お家のドレスアップはこれで決まり
ガレージ商品とコンビで高級感を演出
各取扱メーカーの会社名、ロゴ及び商品名等は各社の商標または登録商標です。
| 日 | 月 | 火 | 水 | 木 | 金 | 土 |
|---|---|---|---|---|---|---|
| 1 | 2 | 3 | 4 | 5 | 6 | 7 |
| 8 | 9 | 10 | 11 | 12 | 13 | 14 |
| 15 | 16 | 17 | 18 | 19 | 20 | 21 |
| 22 | 23 | 24 | 25 | 26 | 27 | 28 |
| 29 | 30 | 31 |
| 日 | 月 | 火 | 水 | 木 | 金 | 土 |
|---|---|---|---|---|---|---|
| 1 | 2 | 3 | 4 | |||
| 5 | 6 | 7 | 8 | 9 | 10 | 11 |
| 12 | 13 | 14 | 15 | 16 | 17 | 18 |
| 19 | 20 | 21 | 22 | 23 | 24 | 25 |
| 26 | 27 | 28 | 29 | 30 |
…休業日(現場調査・工事は一部対応)
![]()
【受付時間】9:30 - 17:30(営業日)
![]()
【受付時間】9:30 - 17:30(営業日)
オペレーションスタッフ
エクステリアプランナー有資格者の私たちにお任せください。
ショップ責任者
神(じん)
エクステリア プランナー
有資格者61名
1/3
木附
枡田
重富
吉澤
吉野
小東
池本
山田
佐藤
白崎
新西
伊野
次田
南
西山
小林
阿重田
梨田
長谷川
藤田
村上
平戸
植松
内田
久田
中島
長石
水口
榮
山崎
清水
室谷
安田
水谷
小野
酒井
一氏
神吉
日下部
山中
深田
田中
水田
西田
岡本
丸山
北
坂本
中嶋
岩野
伊藤
上中
高山
原
犬井
佐伯
谷川
塚田
松本
小林
森下
上内
島田
森
梅田
松山
山本
小西
倉地
山根
中原
河野
村上
土井
岩破
南
井上
三ツ股
小田
依藤
永禮
林
加藤
石藤
駒井
末吉
山本
芦野
樽井
野上
岡田
木村
池田
西村
藤澤
達川
奥原
那須
1/3
今週のPick Upページ
![]()
ご利用頂いたお客様の口コミ・レビューを「お客様の声」として掲載しております。
全てのご感想を掲載しておりますので、エクスショップの評判としてご参考ください。
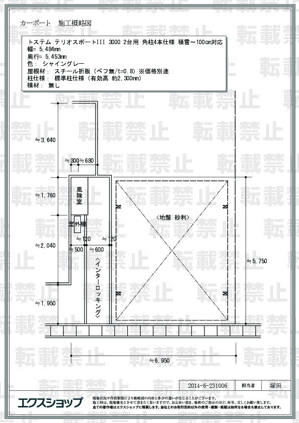
正式お見積りと一緒に提出させて頂いております「工事概略図面」もご覧頂けます。
商品や設置場所のご検討にお役立てください。
(写真No:23100626)
(カーポート)
| カラー | シャイングレー |
|---|---|
| サイズ | 幅 5,484mm 奥行 5,453mm |
| 屋根高等 | 標準柱仕様(有効高 約2,300mm) |
| 屋根材等 | スチール折板(ペフ無/t=0.8)※価格別途 |
| 工事方法 | 地域密着あんしん施工 |
単純に便利だと思います。
この度はテリオスポートIIIの施工をご依頼頂きまして、誠に有り難うございます。ネット販売は顔に見えないお取引となりますので、ご不安もおありであったかと存じますが、弊社をご信頼頂き施工までお任せ頂きまして、大変光栄に存じます。フラット屋根が特徴のテリオスポートIIIは、どの角度から見ても一定のスタイリッシュなデザイン性があり、ご自宅の外観を損ねることの無いとても素敵なお仕上がりでございますね。見た目ばかりでなく耐久性にも大変優れた商品でございますので、積雪時も安心してご利用頂ける事と存じます。今後もお客様の笑顔の為日々精進して参りますので、またエクステリアをご検討の際には是非エクスショップをご利用下さいますよう、宜しくお願い致します。
当サイトは以下のセキュリティ機能や保護認定等を備えています。安心してお申し込みください
当サイトはSSL暗号化に対応しています。入力した個人情報は暗号化して送られますので、安心してご利用ください。
当社はJADMAの正会員です。同協会は法律で位置づけられた団体で、消費者の利益保護と業界の健全な発展の為に活動しています。
こちらの工事に使用しているエクステリア
![]()
カーポートST 積雪100cm対応 2台用 4本柱 折板

工事費・税込
797,000円〜
総合平均評価(星5つ評価)
4.67
商品レビュー数
18件
耐風圧・積雪強度に優れた強度の高く、風が強い日でも安心のカーポート。豊富なバリエーションにも対応しておりますので、使い勝手や意匠性もグッと向上できます。車の台数に合わせて1〜4台用までラインアップされた豊富なサイズ展開とを実現しました。
この商品の詳細へ
無料お見積り・現場調査・ご注文もこちら
この商品のレビュー
商品レビュー18件

秋田県 潟上市 S.K.様
カーポートが設置できてから、玄関周りが行きやすくなった。

山梨県 北杜市 K.E.様
明かり取り等は雨漏りや傷みの原因になりかねませんね??

北海道 河西郡芽室町 H.O.様
見栄えよく、丈夫そうなので積雪時にも安心かなと思います。

岩手県 奥州市 A.K.様
大変満足している。友人知人にも高評価、価格を聞いてさらにびっくりしていました。(3年前同様連絡先問合せも。) 隣接建物(3年前エクスショップ施工カーポート)と10センチ位しか離れていないように見えるので、地震による接触が心配。

福井県 越前市 I.I.様
GWを挟み、施工開始から完了まで少し日数はかかりましたが、満足しています。強いていうならば、エクスショップ経由ではあるものの、施工業者の方へ直接質問などが出来る環境が整うことで検討している方々はもっと安心して一歩が進むのではないかと思います。

長野県 安曇野市 W.T.様
非常にしっかりした作りで積雪時も安心できます。また暗くなるのではと心配しましたが、ロング柱にしたためかそれほど暗くならずよかったです

北海道 旭川市 O.K.様
現時点では(10/30)たいへん満足しております。これからの旭川での雪が多く降った際、どうなるかが多少気がかりです。

北海道 登別市 N.R.様
駐車場所に屋根があるというだけで、雨があたらないのでいいです。雪の降る地域なので、冬も雪下ろしの手間が省けると思うと嬉しいです。

兵庫県 豊岡市 K.H.様
満足度は100点です。 ご近所さんからも立派なカーポートでうらやましがられました。
関連するお客様の声

5つ星のうち5
長野県S.R. 様回答日:2017年9月
車を2台を大切に保管する為、既存の犬舎のコンクリート床を再利用したカーポートへの改築を希望。屋根がつき車が雨や霜から守られ、周囲の駐車スペースも増えた。発注から着工まで時間がかかり、ショップからの着工予定の連絡が疎遠で不安を覚えたが、その後は、担当の施工業者さんの丁寧で美しい仕事に大変満足した。

5つ星のうち5
長野県K.T. 様回答日:2017年5月
ガレージをネットで検索していたところ、貴殿がヒットしました。中身や実績を見ていくうちに自分の気に入った商品が見つかったため、発注をさせていただきました。利用して良かったと感じています。メールで懇切丁寧にお返事等いただき対応に満足をしております。

5つ星のうち4
栃木県W.T. 様回答日:2016年8月
冬季1メートル近く積雪がある年もあるのと、近々納車の新車のことも考慮して積雪〜100cm対応で導入。青空駐車だと折角洗車しても樹液がこびりつくので、今後その心配もなくなると思う。花粉が多い季節でも、洗車後にすぐに花粉がつくこともあるので、これは来シーズンに確認してみることにします。

5つ星のうち5
栃木県H.T. 様回答日:2016年3月
カーポートが欲しいと考えていたところ,知人からエクスショップを紹介され,サイトを覗いてみたら気に入った商品があったため,購入することにした。 実際にカーポートを設置したことで,車の汚れが少なくなり,雨の日の乗り降りの際に体や車内が濡れなくなったので,とても快適に感じている。

5つ星のうち5
長野県Y.K. 様回答日:2015年7月
購入のきっかけ・車内の温度上昇対策・霜、雪対策・ルーフボックス、ヘッドライト類の紫外線劣化対策。設置後の利便性・車内温度が上昇しなくなった。・梁を利用してちょっとした物入れが出来た・雨の時濡れなくなった・少し大きめのものにしたので、自転車も置くことが出来るようになった。

5つ星のうち5
福岡県N.H. 様回答日:2026年3月
カーポート設置を検討したのは、EV購入に伴い、EV用充電器を設置したのがきっかけで、充電時に雨に濡れるということを避けたかったためです(濡れても問題ないとのことですが、なんとなく気持ちが悪いので)。カーポート設置後、最も快適に感じるのは、雨の日の車の乗り降りが苦にならなくなったことです(当たり前ですが・・・)。設置はエクスショップさんに依頼し、工事していただきましたが、工事に来てくださった職人さんが、とても感じが良く、また大変丁寧に作業していただき、このショップをチョイスして正解だったと思いました。有難うございました。

5つ星のうち5
香川県M.Y. 様回答日:2026年3月
所有する車の台数も増え、車の出し入れも大変だったため、カーポートを4台用に取替えました。車の出し入れもスムーズになり、土間も新しくコンクリート敷にしたため、雨の日でも快適に出かけることができました。注文手続きについても、主にメールで丁寧にやりとりしていただいたため、忙しい中でも確実に情報連絡でき助かりました。

5つ星のうち5
静岡県K.M. 様回答日:2026年3月
新たに車を買い足して、二台とも長く使いたいため、二台用のカーポートを購入した。本当は来客用に三台用が欲しかったが、駐車場用地の形状から無理とのことで、二台用カーポートに一台分の空きスペース確保を条件に施工していただいた。施工後翌々日に雨が降りましたが、やはり屋根があると車の乗り降りが快適ですね。屋根を低くし、熱線遮断の素材にしたので、日中も少しヒンヤリします。夏には酷暑対策にもなりそうです。
関連するブログ記事
関連するよくあるご質問
カーポートの設置と一緒に土間コンクリートを打設できますか?
【商品カテゴリ >カーポート】(ご質問No.707)
既存のカーポート屋根材の張り替えの依頼はできますか?
【商品カテゴリ >カーポート】(ご質問No.21)
以前購入したカーポートの部品のみを追加で購入する事は可能ですか?
【商品カテゴリ >カーポート】(ご質問No.48)
ワイドタイプのカーポートですが、横幅の切り詰めは可能ですか?
【商品カテゴリ >カーポート】(ご質問No.69)
カーポートって何ですか?
【商品カテゴリ >カーポート】(ご質問No.28910)
既存のカーポートの柱の高さを桁上げする事は可能ですか?
【商品カテゴリ >カーポート】(ご質問No.43)
既存のカーポートをいったん解体し、再度組み立てることは可能ですか?
【商品カテゴリ >カーポート】(ご質問No.46)
四国化成のFリードカーポート収納庫付きタイプは取り扱ってますか?
【商品カテゴリ >カーポート】(ご質問No.74)
既存カーポートの支柱を流用して、増設、縦列2台用のカーポートを設置することは可能ですか?
【商品カテゴリ >カーポート】(ご質問No.84)
四国化成のマイポートneoの取り扱いはありますか?
【商品カテゴリ >カーポート】(ご質問No.88)


















