バイク・自転車を雨風から保護
お家の収納能力をアップ
ガレージの保全・防犯にカーポートと合わせて
お庭に機能的スペースを作り出します
防犯、お家のドレスアップはこれで決まり
ガレージ商品とコンビで高級感を演出
各取扱メーカーの会社名、ロゴ及び商品名等は各社の商標または登録商標です。
| 日 | 月 | 火 | 水 | 木 | 金 | 土 |
|---|---|---|---|---|---|---|
| 1 | ||||||
| 2 | 3 | 4 | 5 | 6 | 7 | 8 |
| 9 | 10 | 11 | 12 | 13 | 14 | 15 |
| 16 | 17 | 18 | 19 | 20 | 21 | 22 |
| 23 | 24 | 25 | 26 | 27 | 28 | 29 |
| 30 |
| 日 | 月 | 火 | 水 | 木 | 金 | 土 |
|---|---|---|---|---|---|---|
| 1 | 2 | 3 | 4 | 5 | 6 | |
| 7 | 8 | 9 | 10 | 11 | 12 | 13 |
| 14 | 15 | 16 | 17 | 18 | 19 | 20 |
| 21 | 22 | 23 | 24 | 25 | 26 | 27 |
| 28 | 29 | 30 | 31 |
…休業日(現場調査・工事は一部対応)
![]()
【受付時間】9:30 - 17:30(営業日)
![]()
【受付時間】9:30 - 17:30(営業日)
オペレーションスタッフ
エクステリアプランナー有資格者の私たちにお任せください。
ショップ責任者
神(じん)
エクステリア プランナー
有資格者61名
1/3
木附
枡田
重富
吉澤
吉野
小東
池本
山田
佐藤
白崎
新西
伊野
次田
浅川
南
西山
小林
梨田
長谷川
藤田
阿重田
村上
植松
内田
久田
小野
平戸
中島
長石
水口
榮
山崎
清水
室谷
安田
水谷
酒井
神吉
日下部
山中
深田
田中
水田
西田
一氏
岡本
北
坂本
中嶋
岩野
伊藤
上中
高山
竹本
犬井
佐伯
谷川
原
丸山
塚田
松本
上内
島田
森
梅田
松山
山本
小林
倉地
山根
中原
河野
村上
土井
岩破
南
井上
三ツ股
小田
依藤
永禮
林
加藤
石藤
駒井
末吉
山本
芦野
樽井
野上
岡田
木村
池田
西村
藤澤
達川
奥原
那須
小西
森下
1/3
今週のPick Upページ
![]()
ご利用頂いたお客様の口コミ・レビューを「お客様の声」として掲載しております。
全てのご感想を掲載しておりますので、エクスショップの評判としてご参考ください。
正式お見積りと一緒に提出させて頂いております「工事概略図面」もご覧頂けます。
商品や設置場所のご検討にお役立てください。
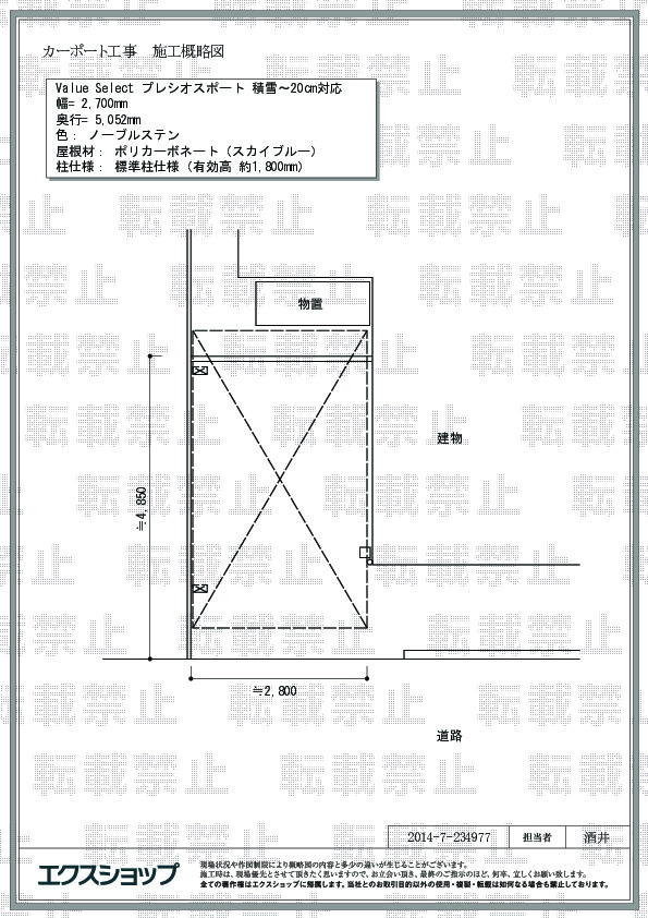
(写真No:23497727)
(カーポート)
| カラー | ノーブルステン |
|---|---|
| サイズ | 幅 2,700mm 奥行 5,052mm |
| 屋根高等 | 標準柱仕様(有効高 約1,800mm) |
| 屋根材等 | ポリカーボネート(スカイブルー) |
| 工事方法 | 地域密着あんしん施工 |
ネットで発注すると、即返答が来て、ネット上の対応も良い感じであった。それよりも工事人の方がネット発注とは思えないくらい、親切、丁寧な仕事振りであった。自分も何人かの業者の方を知ってますが、この方は格別であり、職人気質を感じました。責任感も強く、発注内容以上の仕事をして頂き、頭が下がる思いでした。とても満足してます。
当サイトは以下のセキュリティ機能や保護認定等を備えています。安心してお申し込みください
当サイトは256ビットSSL暗号化に対応しています。入力した個人情報は暗号化して送られますので、安心してご利用ください。
当社はJADMAの正会員です。同協会は法律で位置づけられた団体で、消費者の利益保護と業界の健全な発展の為に活動しています。
こちらの工事に使用しているエクステリア
![]()
プレシオスポート アール型 1台用

工事費・税込
112,000円〜
総合平均評価(星5つ評価)
4.83
商品レビュー数
39件
プレシオスポート アール型 1台用はアール屋根が特徴的なエクスショップオリジナルブランドのスタンダードカーポートです。耐風性能は基準風速Vo=34m/s・耐積雪性能は20cm相当(600N/㎡)を確保しています。本体カラーは3色展開・屋根材は4種類あります。
この商品の詳細へ
無料お見積り・現場調査・ご注文もこちら
この商品のレビュー
商品レビュー39件

大阪府 大阪狭山市 K.I.様
希望道理で施工も綺麗で工事の方の対応も礼儀正しく満足です。

広島県 世羅郡世羅町 M.M.様
施工業者様のお薦めでした。 費用対効果高い商品だと思います。 有効高さの選択があれば更に良い。

和歌山県 和歌山市 O.K.様
見積金額、施工と大満足です。また、機会があればよろしくお願いいたします。ありがとうございました。

福岡県 福岡市 A.H.様
見た目は一般的なカーポートと比べ先進的でおしゃれに感じる、柱は頑丈そうで安心感がある。天井部分が透明度が高く庭が暗くならず解放感がある

大阪府 高槻市 O.K.様
大満足です。来訪者の方から、見栄え良く綺麗になったなと、言われます。

埼玉県 日高市 N.A.様
ほぼイメージどおり。やや高さが低かったが、軽でトールタイプでなければ余裕。

長野県 諏訪市 T.R.様
非常に良く出来たカーポートと思います。コスパが良い、デザインも良い。ポリカの色もいろいろ有り良いです。

兵庫県 宝塚市 N.M.様
ステンレスのカーポートは、近所には無いので良いねといってもらえます。

滋賀県 守山市 I.A.様
満足しています。敷地に合わせて切り詰めて頂いたので駐輪スペースが広くとれて良かったです。

山口県 宇部市 T.Y.様
少し斜面になっていましたが、さすが専門業者さんでとてもよい仕上がりで大満足です。

愛知県 津島市 M.M.様
色も明るくてキレイで、威圧感がなく良いと思います。

愛知県 津島市 M.M.様
色も明るくてキレイで、威圧感がなく良いと思います。

滋賀県 大津市 S.Y.様
1台目のカーポートについては幅がバッチリ合っていて満足です。

福島県 いわき市 Y.J.様
色や質感も良く、玄関先が華やかになりました。大変満足しています。見学に来た友人も高級感があると言っていました。

静岡県 沼津市 G.T.様
以前自宅で施行してもらい、10年余が過ぎていますが強風で一度パネル1枚飛ばされただけであとは問題はありませんでした。
関連するお客様の声

5つ星のうち5
神奈川県S.K. 様回答日:2014年6月
工事をしてくださった方はとても感じがよく、仕事もきっちりと行ってくださいました。また、問い合わせに対して、すぐに返答もあり、しっかりと対応してくださいました。

5つ星のうち5
熊本県S.K. 様回答日:2018年1月
車を買い換えたので購入しました。施工していただいた業者の方が、親切で丁寧な仕事をしていただき満足しています

5つ星のうち5
和歌山県S.A. 様回答日:2011年3月
施工してくださった方が親切で、きちんとしたお仕事をしてくださいました。また何かあったら同じ方にしていただきたいと思いました。

5つ星のうち5
埼玉県M.T. 様回答日:2012年7月
担当者のメールや電話での対応も良く、現場調査の方や施工業者の方もすごく感じのいい方で、仕事も非常に丁寧で出来上がりに満足しています。ありがとうございました。

5つ星のうち4
岐阜県I.K. 様回答日:2016年5月
担当の方の電話対応、業者の方の対応、とても感じが良く「ネット業者だから少し不安」と言う自分の思いはすぐ消えました。工事も自分の素人の目から見ているので詳しくはわかりませんがとても丁寧に施工して頂けた感じです。工事期間中に業者の方が家の壁にトラックを当ててしまうトラブルがありましたが、そのトラブル対応にも満足しています。また利用したいと思える企業です。

5つ星のうち5
宮城県K.Y. 様回答日:2013年11月
エクスショップの担当の方も工事の方もとても親切でよかったです。発注から工事までもとても早い対応で満足しております。

5つ星のうち5
福岡県Y.T. 様回答日:2020年4月
見積り依頼をして来て頂いた業者の方も感じが良かったですし、エクスショップの方の対応も早かったので決めました。

5つ星のうち5
群馬県H.M. 様回答日:2019年1月
地元の業者の方が安心できる思いがありましたが、見積もりに来ていただいた業者の方の対応の良さで地元でなくともと思い決めました。実際に工事に対しても確りとやっていただきましたので、非常に満足です。

5つ星のうち5
福島県H.T. 様回答日:2018年5月
仕上がりにも満足していますし、施工業者の方も仕事がとても丁寧で感じも良かったです。ありがとうございました。

5つ星のうち4
大阪府U.T. 様回答日:2015年1月
下見に来た方や、施工しに来た方など、とても感じがよく対応に満足してます。充分安いとは思いますが、もう少し安いとありがたい。
関連するブログ記事
関連するよくあるご質問
カーポートの設置と一緒に土間コンクリートを打設できますか?
【商品カテゴリ >カーポート】(ご質問No.707)
既存のカーポート屋根材の張り替えの依頼はできますか?
【商品カテゴリ >カーポート】(ご質問No.21)
以前購入したカーポートの部品のみを追加で購入する事は可能ですか?
【商品カテゴリ >カーポート】(ご質問No.48)
ワイドタイプのカーポートですが、横幅の切り詰めは可能ですか?
【商品カテゴリ >カーポート】(ご質問No.69)
カーポートって何ですか?
【商品カテゴリ >カーポート】(ご質問No.28910)
既存のカーポートの柱の高さを桁上げする事は可能ですか?
【商品カテゴリ >カーポート】(ご質問No.43)
既存のカーポートをいったん解体し、再度組み立てることは可能ですか?
【商品カテゴリ >カーポート】(ご質問No.46)
四国化成のFリードカーポート収納庫付きタイプは取り扱ってますか?
【商品カテゴリ >カーポート】(ご質問No.74)
既存カーポートの支柱を流用して、増設、縦列2台用のカーポートを設置することは可能ですか?
【商品カテゴリ >カーポート】(ご質問No.84)
四国化成のマイポートneoの取り扱いはありますか?
【商品カテゴリ >カーポート】(ご質問No.88)


















