バイク・自転車を雨風から保護
お家の収納能力をアップ
ガレージの保全・防犯にカーポートと合わせて
お庭に機能的スペースを作り出します
防犯、お家のドレスアップはこれで決まり
ガレージ商品とコンビで高級感を演出
各取扱メーカーの会社名、ロゴ及び商品名等は各社の商標または登録商標です。
| 日 | 月 | 火 | 水 | 木 | 金 | 土 |
|---|---|---|---|---|---|---|
| 1 | ||||||
| 2 | 3 | 4 | 5 | 6 | 7 | 8 |
| 9 | 10 | 11 | 12 | 13 | 14 | 15 |
| 16 | 17 | 18 | 19 | 20 | 21 | 22 |
| 23 | 24 | 25 | 26 | 27 | 28 | 29 |
| 30 |
| 日 | 月 | 火 | 水 | 木 | 金 | 土 |
|---|---|---|---|---|---|---|
| 1 | 2 | 3 | 4 | 5 | 6 | |
| 7 | 8 | 9 | 10 | 11 | 12 | 13 |
| 14 | 15 | 16 | 17 | 18 | 19 | 20 |
| 21 | 22 | 23 | 24 | 25 | 26 | 27 |
| 28 | 29 | 30 | 31 |
…休業日(現場調査・工事は一部対応)
![]()
【受付時間】9:30 - 17:30(営業日)
![]()
【受付時間】9:30 - 17:30(営業日)
オペレーションスタッフ
エクステリアプランナー有資格者の私たちにお任せください。
ショップ責任者
神(じん)
エクステリア プランナー
有資格者61名
1/3
木附
枡田
重富
吉澤
吉野
小東
池本
山田
佐藤
白崎
新西
伊野
次田
浅川
南
西山
小林
梨田
長谷川
藤田
阿重田
村上
植松
内田
久田
小野
平戸
中島
長石
水口
榮
山崎
清水
室谷
安田
水谷
酒井
神吉
日下部
山中
深田
田中
水田
西田
一氏
岡本
北
坂本
中嶋
岩野
伊藤
上中
高山
竹本
犬井
佐伯
谷川
原
丸山
塚田
松本
上内
島田
森
梅田
松山
山本
小林
倉地
山根
中原
河野
村上
土井
岩破
南
井上
三ツ股
小田
依藤
永禮
林
加藤
石藤
駒井
末吉
山本
芦野
樽井
野上
岡田
木村
池田
西村
藤澤
達川
奥原
那須
小西
森下
1/3
今週のPick Upページ
![]()
ご利用頂いたお客様の口コミ・レビューを「お客様の声」として掲載しております。
全てのご感想を掲載しておりますので、エクスショップの評判としてご参考ください。
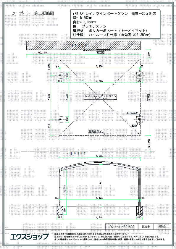
正式お見積りと一緒に提出させて頂いております「工事概略図面」もご覧頂けます。
商品や設置場所のご検討にお役立てください。
(写真No:30782231)
(カーポート)
| カラー | プラチナステン |
|---|---|
| サイズ | 幅 5,392mm 奥行 5,052mm |
| 屋根高等 | ハイルーフ柱仕様(有効高 約2,350mm) |
| 屋根材等 | ポリカーボネート(トーメイマット) |
| 工事方法 | 地域密着あんしん施工 |
カーポートを購入したきっかけは、家を新築したからです。ふゆなので、朝、出勤のさい、フロントが、こおらないので、たすかります。柱の色や、カーポートの、屋根部分も、いろいろな色から、えらぶことができ、家の、雰囲気にあったのが、たてれてよかったです!
レイナツインポートグランの施工のご依頼を頂きまして、誠に有り難うございます。お住まいの外観を損ねる事なく明るく開放感のあるお仕上がりでございますね。ポリカーボネート(トーメイマット)の屋根がお車を汚れや傷みから守り、雨の日もお車へ乗り降りして頂く際に雨に濡れる心配がなく、快適にお使い頂けるものと存じます。冬場のガラスの凍結防止効果をご実感頂けております事、誠に嬉しく存じます。これからも豊富な品揃えとお求めやすい価格でお客様にご満足頂けるよう、企業努力して参りますので、また機会がございましたら、是非エクスショップにご用命頂きますよう、宜しくお願い申し上げます。
当サイトは以下のセキュリティ機能や保護認定等を備えています。安心してお申し込みください
当サイトは256ビットSSL暗号化に対応しています。入力した個人情報は暗号化して送られますので、安心してご利用ください。
当社はJADMAの正会員です。同協会は法律で位置づけられた団体で、消費者の利益保護と業界の健全な発展の為に活動しています。
こちらの工事に使用しているエクステリア
![]()
アリュース 600タイプ 2台用

工事費・税込
215,900円〜
総合平均評価(星5つ評価)
4.85
商品レビュー数
110件
アリュース 600タイプ 2台用は継ぎ目のない大きなアール屋根が特徴的な両側支持タイプの2台用カーポートです。柱・梁には水での急速冷却により高強度化(T6処理)したアルミニウム合金を用いており、基準風速Vo=40m/s・耐積雪性能20cmを確保しています。
この商品の詳細へ
無料お見積り・現場調査・ご注文もこちら
この商品のレビュー
商品レビュー110件

茨城県 古河市 S.M.様
色々アドバイスもいただき良い買い物が出来たと思います。

静岡県 浜松市 A.T.様
急遽ハツリ工事が発生しましたが、職人さんも快く施工してくれました。 仕上がりも綺麗で満足してます。

福岡県 久留米市 R.K.様
仕様は2台用ですが、2台駐車は難しいと思います。私は1台で使用するので、ゆっくり停めれて満足です。

群馬県 伊勢崎市 K.H.様
外観はとても良い。 荒天の時を迎えないとそれ以上は言えない。

岡山県 和気郡和気町 N.K.様
大変満足です。 土地が広いのでもうワンサイズ大きい物でもよかったかなと思います。

埼玉県 蓮田市 T.K.様
改定で高さが標準で2,200mmになり、選んだカラー、屋根材のおかげで明るく素敵なカーポートが完成。

千葉県 八街市 T.K.様
車のUV対策で購入。ルーフが思ってた以上に濃いめだったので良かったです。

大阪府 高槻市 S.T.様
とても明るく凄く丈夫そうです 広くなった気もします

神奈川県 厚木市 O.T.様
まだ設置したばかりですが、シンプルな外観でアーチも緩やかなので、周囲の景観とよくマッチします。 色もプラチナステンを選んだので、重くならずにモダンな感じを維持出来ました。 家族からも良いデザインだといわれています。

栃木県 芳賀郡茂木町 T.T.様
担当者様及び施工業者様の対応がとてもよく、スムーズに購入設置することができました。

愛媛県 松山市 Y.H.様
もう少し低い方が良かったのではとの事 サイドからの吹き込みが気になる。

静岡県 富士宮市 M.Y.様
我が家の駐車場に合うのか実際分からなかったので不安でしたが、幅、高さ、奥行きも充分あり、大変満足しています。車にキャリーラックを搭載していますが、キャンプ用品の積み込みも余裕でできそうです。

千葉県 市川市 O.T.様
後付けでセンサーライトなどを取り付けられるようになっていれば良かった

埼玉県 春日部市 K.K.様
カーポートをつけ圧迫感が出てしまうかと思いましたが、屋根部分が明るいため逆に広く感じるほどでした。
関連するお客様の声

5つ星のうち5
大阪府T.K. 様回答日:2011年11月
初めは、この家の雰囲気を考えると、カーポートを設置しない方が良いと思っていましたが、たまたまインターネットのエクスショップでこの家に合いそうなカーポートを見つけたので、不安はありましたが購入を決意しました。設置してみると、家によくマッチしていて、家の雰囲気を壊すことなく、おしゃれな感じでしあがったと思います。

5つ星のうち4
東京都S.H. 様回答日:2011年10月
出来上がりが、イメージより大変良い印象です。です。ただ、屋根部分の選択が限られた色だけだった為、好みの色を選ぶ事が出来なかったのが、ちょっと残念に思っております。

5つ星のうち4
埼玉県K.S. 様回答日:2016年8月
壁の塗り替えもしたのでカーポートをつけたあとは新築のようになった。屋根の色が透明なので圧迫感がない。家の壁とのバランスを考えて色を決めたので淡い色で良かったと思う。

5つ星のうち4
兵庫県S.T. 様回答日:2019年3月
新築の家にカースペースが3台分あったので、せっかくならカーポートつけたいと思い、検討から購入にいたりました。実際施工していただき、家の雰囲気ともマッチしており満足しております。

5つ星のうち4
兵庫県K.M. 様回答日:2017年5月
新車購入をきっかけに、カーポートを設置しましたが、家の外観の雰囲気も変わって良くなったので満足しています。

5つ星のうち5
滋賀県K.M. 様回答日:2020年3月
引っ越しの為、家を購入したのですが、以前住んでいた家には車庫とか、いろいろな物を保管する場所があって良かったのですが、現在住んでいる家には無かったので、購入することにしました。

5つ星のうち5
千葉県O.T. 様回答日:2016年1月
価格が安かったのと、多数の実績でありましたので、エクスショップを」選びました、冬の朝が早い出勤の時、車のウインドーに霜がついて見えなくなるのを防ぐため、カーポートの設置を家の新築を機会に注文いたしました。施工も丁寧でした。

5つ星のうち5
大分県M.K. 様回答日:2017年7月
家が新築なので、カーポートの購入を考えていました。設置後は、雨の日の乗り降りが楽になりました。カーポート設置で、家の外観も家らしくまとまって、気に入ってます。

5つ星のうち5
兵庫県D.T. 様回答日:2017年1月
玄関からの見映えも良くなったし、フロントガラスがバリバリに凍って、朝お湯を掛けてからの出勤が面倒くさく、手間でした。 カーポートが出来てからは、朝の出勤が楽になりました。

5つ星のうち5
神奈川県O.A. 様回答日:2016年11月
小さい子供が居るため雨の日に出かけると急いで家の中に入らなきゃいけないのが大変でカーポートを設置することにしました。ない時は自転車にカバーをかけていましたが付けたことにより自転車に乗りやすくなって助かりました。カーポートの色も家に馴染んでいて大満足です。
関連するブログ記事
関連するよくあるご質問
カーポートの設置と一緒に土間コンクリートを打設できますか?
【商品カテゴリ >カーポート】(ご質問No.707)
既存のカーポート屋根材の張り替えの依頼はできますか?
【商品カテゴリ >カーポート】(ご質問No.21)
以前購入したカーポートの部品のみを追加で購入する事は可能ですか?
【商品カテゴリ >カーポート】(ご質問No.48)
ワイドタイプのカーポートですが、横幅の切り詰めは可能ですか?
【商品カテゴリ >カーポート】(ご質問No.69)
カーポートって何ですか?
【商品カテゴリ >カーポート】(ご質問No.28910)
既存のカーポートの柱の高さを桁上げする事は可能ですか?
【商品カテゴリ >カーポート】(ご質問No.43)
既存のカーポートをいったん解体し、再度組み立てることは可能ですか?
【商品カテゴリ >カーポート】(ご質問No.46)
四国化成のFリードカーポート収納庫付きタイプは取り扱ってますか?
【商品カテゴリ >カーポート】(ご質問No.74)
既存カーポートの支柱を流用して、増設、縦列2台用のカーポートを設置することは可能ですか?
【商品カテゴリ >カーポート】(ご質問No.84)
四国化成のマイポートneoの取り扱いはありますか?
【商品カテゴリ >カーポート】(ご質問No.88)


















