都道府県で探す
バイク・自転車を雨風から保護
お家の収納能力をアップ
ガレージの保全・防犯にカーポートと合わせて
お庭に機能的スペースを作り出します
防犯、お家のドレスアップはこれで決まり
ガレージ商品とコンビで高級感を演出
各取扱メーカーの会社名、ロゴ及び商品名等は各社の商標または登録商標です。
日 | 月 | 火 | 水 | 木 | 金 | 土 |
---|---|---|---|---|---|---|
1 | 2 | 3 | 4 | |||
5 | 6 | 7 | 8 | 9 | 10 | 11 |
12 | 13 | 14 | 15 | 16 | 17 | 18 |
19 | 20 | 21 | 22 | 23 | 24 | 25 |
26 | 27 | 28 | 29 | 30 | 31 |
日 | 月 | 火 | 水 | 木 | 金 | 土 |
---|---|---|---|---|---|---|
1 | ||||||
2 | 3 | 4 | 5 | 6 | 7 | 8 |
9 | 10 | 11 | 12 | 13 | 14 | 15 |
16 | 17 | 18 | 19 | 20 | 21 | 22 |
23 | 24 | 25 | 26 | 27 | 28 | 29 |
30 |
…休業日(現場調査・工事は一部対応)
【受付時間】9:30 - 17:30(営業日)
【受付時間】9:30 - 17:30(営業日)
オペレーションスタッフ
エクステリアプランナー有資格者の私たちにお任せください。
ショップ責任者
神(じん)
エクステリア プランナー
有資格者61名
1/3
木附
枡田
重富
吉澤
吉野
小東
池本
山田
佐藤
白崎
新西
伊野
次田
浅川
南
西山
小林
梨田
長谷川
藤田
阿重田
村上
植松
内田
久田
小野
平戸
中島
長石
水口
榮
山崎
清水
室谷
安田
水谷
酒井
神吉
日下部
山中
深田
田中
板持
西田
一氏
水田
岡本
坂本
中嶋
岩野
伊藤
上中
高山
竹本
犬井
佐伯
谷川
原
丸山
北
塚田
松本
島田
森
梅田
松山
山本
小林
倉地
山根
中原
河野
村上
土井
岩破
南
井上
三ツ股
小田
依藤
永禮
林
加藤
石藤
駒井
末吉
山本
芦野
樽井
野上
岡田
木村
池田
西村
藤澤
達川
奥原
那須
上内
森下
小西
1/3
今週のPick Upページ
ご利用頂いたお客様の口コミ・レビューを「お客様の声」として掲載しております。
全てのご感想を掲載しておりますので、エクスショップの評判としてご参考ください。
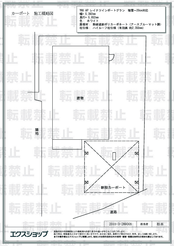
正式お見積りと一緒に提出させて頂いております「工事概略図面」もご覧頂けます。
商品や設置場所のご検討にお役立てください。
(写真No:26900523)
(カーポート)
カラー | ホワイト |
---|---|
サイズ | 幅 5,392mm 奥行 5,052mm |
屋根高等 | ハイルーフ柱仕様(有効高 約2,350mm) |
屋根材等 | 熱線遮断ポリカーボネート(アースブルーマット調) |
工事方法 | 地域密着あんしん施工 |
カーポートなので雨の日にかなり重宝しています。また、家の見栄えが良くなったので仲間に自慢してます。大変満足しています。
当サイトは以下のセキュリティ機能や保護認定等を備えています。安心してお申し込みください
当サイトは256ビットSSL暗号化に対応しています。入力した個人情報は暗号化して送られますので、安心してご利用ください。
当社はJADMAの正会員です。同協会は法律で位置づけられた団体で、消費者の利益保護と業界の健全な発展の為に活動しています。
こちらの工事に使用しているエクステリア
アリュース 600タイプ 2台用
工事費・税込
215,900円〜
総合平均評価(星5つ評価)
4.86
商品レビュー数
101件
アリュース 600タイプ 2台用は継ぎ目のない大きなアール屋根が特徴的な両側支持タイプの2台用カーポートです。柱・梁には水での急速冷却により高強度化(T6処理)したアルミニウム合金を用いており、基準風速Vo=40m/s・耐積雪性能20cmを確保しています。
この商品の詳細へ
無料お見積り・現場調査・ご注文もこちら
この商品のレビュー
商品レビュー101件
茨城県 古河市 S.M.様
色々アドバイスもいただき良い買い物が出来たと思います。
群馬県 伊勢崎市 K.H.様
外観はとても良い。 荒天の時を迎えないとそれ以上は言えない。
岡山県 和気郡和気町 N.K.様
大変満足です。 土地が広いのでもうワンサイズ大きい物でもよかったかなと思います。
埼玉県 蓮田市 T.K.様
改定で高さが標準で2,200mmになり、選んだカラー、屋根材のおかげで明るく素敵なカーポートが完成。
千葉県 八街市 T.K.様
車のUV対策で購入。ルーフが思ってた以上に濃いめだったので良かったです。
大阪府 高槻市 S.T.様
とても明るく凄く丈夫そうです 広くなった気もします
神奈川県 厚木市 O.T.様
まだ設置したばかりですが、シンプルな外観でアーチも緩やかなので、周囲の景観とよくマッチします。 色もプラチナステンを選んだので、重くならずにモダンな感じを維持出来ました。 家族からも良いデザインだといわれています。
栃木県 芳賀郡茂木町 T.T.様
担当者様及び施工業者様の対応がとてもよく、スムーズに購入設置することができました。
愛媛県 松山市 Y.H.様
もう少し低い方が良かったのではとの事 サイドからの吹き込みが気になる。
静岡県 富士宮市 M.Y.様
我が家の駐車場に合うのか実際分からなかったので不安でしたが、幅、高さ、奥行きも充分あり、大変満足しています。車にキャリーラックを搭載していますが、キャンプ用品の積み込みも余裕でできそうです。
千葉県 市川市 O.T.様
後付けでセンサーライトなどを取り付けられるようになっていれば良かった
埼玉県 春日部市 K.K.様
カーポートをつけ圧迫感が出てしまうかと思いましたが、屋根部分が明るいため逆に広く感じるほどでした。
長崎県 諫早市 E.Y.様
骨組みがしっかりしてるので、台風が来ても大丈夫そうです。
茨城県 つくば市 K.S.様
基盤がしっかりしていて頑丈そうだった。 色が良かった
大阪府 岸和田市 G.K.様
非常にスタイリッシュなカーポートだと思います。たいへん満足しています。
関連するお客様の声
5つ星のうち4
福岡県 様回答日:2019年6月
カーポートは以前より検討してて、家の外観の見栄えもよくなり、雨の日の乗り降りも快適で満足してます。物置も、家の中の土間が片付いてよかったです。
5つ星のうち4
大阪府O.T. 様回答日:2018年5月
オープン外構の方が見栄えが良いと思ってカーポートつけていなかったがつけてみるとそれほど気になることもなく雨の日も濡れずにすむのでつけてよかった。
5つ星のうち5
鹿児島県I.H. 様回答日:2019年2月
これまで布団が干せず困っていましたが、天気がいい日には干せるようになりました。また、洗濯物もまとめて干せて満足です。カーポートは、霜が降りる日は、特に重宝しています。
5つ星のうち5
愛媛県K.T. 様回答日:2017年4月
カーポートのデザインも良く、家の駐車場の見栄えが少し良くなりました。雨による車の劣化も防げると思います。
5つ星のうち4
京都府H.T. 様回答日:2015年5月
もともとつけていたカーポートがかなり古くなっていたので、新しカーポートを注文しました。以前より見栄えが良くなりました。
5つ星のうち5
埼玉県S.H. 様回答日:2020年2月
リフォームの為、車庫を取り壊したので、新しく造りたかった、又、家もカーポートも新しいので、見栄えが変わった。
5つ星のうち5
埼玉県N.T. 様回答日:2015年11月
カーポートの設置により、家の見栄えが良くなりました。当然のことながら、車も強い日射しから守ることができ、雨にも濡れず非常に良いです。
5つ星のうち5
愛知県K.Y. 様回答日:2017年8月
新車を購入したので、そのためのカーポート作成でした。また、カーポートがあることで、孫たちの乗り降りも雨の日に、また、暑い日にも重宝することです。
5つ星のうち5
埼玉県K.R. 様回答日:2016年8月
車を買い換えることがきっかけで、カーポートの検討をしていました。設置後は、車と自転車の雨、日差しよけとして重宝しています。
5つ星のうち5
岐阜県Y.Y. 様回答日:2021年3月
吐き出し窓からの出入りの際に、ひさしでは心もとなかったのでテラスを付けました。まだ入居前ですがよかったと思います。カーポートは雨の日に重宝しそうです。
関連するブログ記事
関連するよくあるご質問
カーポートの設置と一緒に土間コンクリートを打設できますか?
【商品カテゴリ >カーポート】(ご質問No.707)
既存のカーポート屋根材の張り替えの依頼はできますか?
【商品カテゴリ >カーポート】(ご質問No.21)
以前購入したカーポートの部品のみを追加で購入する事は可能ですか?
【商品カテゴリ >カーポート】(ご質問No.48)
ワイドタイプのカーポートですが、横幅の切り詰めは可能ですか?
【商品カテゴリ >カーポート】(ご質問No.69)
カーポートって何ですか?
【商品カテゴリ >カーポート】(ご質問No.28910)
既存のカーポートの柱の高さを桁上げする事は可能ですか?
【商品カテゴリ >カーポート】(ご質問No.43)
既存のカーポートをいったん解体し、再度組み立てることは可能ですか?
【商品カテゴリ >カーポート】(ご質問No.46)
四国化成のFリードカーポート収納庫付きタイプは取り扱ってますか?
【商品カテゴリ >カーポート】(ご質問No.74)
既存カーポートの支柱を流用して、増設、縦列2台用のカーポートを設置することは可能ですか?
【商品カテゴリ >カーポート】(ご質問No.84)
四国化成のマイポートneoの取り扱いはありますか?
【商品カテゴリ >カーポート】(ご質問No.88)