各取扱メーカーの会社名、ロゴ及び商品名等は各社の商標または登録商標です。
| 日 | 月 | 火 | 水 | 木 | 金 | 土 |
|---|---|---|---|---|---|---|
| 1 | 2 | |||||
| 3 | 4 | 5 | 6 | 7 | 8 | 9 |
| 10 | 11 | 12 | 13 | 14 | 15 | 16 |
| 17 | 18 | 19 | 20 | 21 | 22 | 23 |
| 24 | 25 | 26 | 27 | 28 | 29 | 30 |
| 31 |
| 日 | 月 | 火 | 水 | 木 | 金 | 土 |
|---|---|---|---|---|---|---|
| 1 | 2 | 3 | 4 | 5 | 6 | |
| 7 | 8 | 9 | 10 | 11 | 12 | 13 |
| 14 | 15 | 16 | 17 | 18 | 19 | 20 |
| 21 | 22 | 23 | 24 | 25 | 26 | 27 |
| 28 | 29 | 30 |
…休業日(現場調査・工事は一部対応)
![]()
【受付時間】9:30 - 17:30(営業日)
![]()
【受付時間】9:30 - 17:30(営業日)
オペレーションスタッフ
エクステリアプランナー有資格者の私たちにお任せください。
ショップ責任者
神(じん)
エクステリア プランナー
有資格者61名
1/3
1/3
今週のPick Upページ
![]()
ご利用頂いたお客様の口コミ・レビューを「お客様の声」として掲載しております。
全てのご感想を掲載しておりますので、エクスショップの評判としてご参考ください。
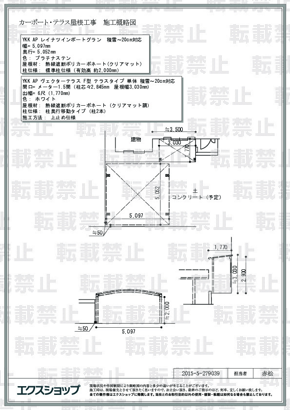
正式お見積りと一緒に提出させて頂いております「工事概略図面」もご覧頂けます。
商品や設置場所のご検討にお役立てください。
(写真No:27903925)
(カーポート)
| カラー | プラチナステン |
|---|---|
| サイズ | 幅 5,097mm 奥行 5,052mm |
| 屋根高等 | 標準柱仕様(有効高 約2,000mm) |
| 屋根材等 | 熱線遮断ポリカーボネート(クリアマット) |
| 工事方法 | 地域密着あんしん施工 |
雨の日など、かなり活躍してます。また機会があればエクスさんにお願いしようと思っています(^^)
この度は レイナツインポートグラン及びヴェクターテラス F型 テラスタイプの施工をご依頼頂き、誠に有り難うございました。また次回ご検討の際も、弊社をお選び頂けるとまで仰って頂き、スタッフ一同感激しております。どちらも雨や紫外線、太陽の熱を遮る機能的な商品でございますので、お気に召して頂き永くご愛用頂けますと幸いでございます。これからもお客様の笑顔の為に、エクスショップは精進して参ります。またのご利用を心よりお待ち申し上げております。
当サイトは以下のセキュリティ機能や保護認定等を備えています。安心してお申し込みください
当サイトはSSL暗号化に対応しています。入力した個人情報は暗号化して送られますので、安心してご利用ください。
当社はJADMAの正会員です。同協会は法律で位置づけられた団体で、消費者の利益保護と業界の健全な発展の為に活動しています。
こちらの工事に使用しているエクステリア
![]()
アリュース 600タイプ 2台用

工事費・税込
241,100円~
商品レビュー数
195件
アリュース 600タイプ 2台用は継ぎ目のない大きなアール屋根が特徴的な両側支持タイプの2台用カーポートです。柱・梁には水での急速冷却により高強度化(T6処理)したアルミニウム合金を用いており、基準風速Vo=40m/s・耐積雪性能20cmを確保しています。
この商品の詳細へ
無料お見積り・現場調査・ご注文もこちら