バイク・自転車を雨風から保護
お家の収納能力をアップ
ガレージの保全・防犯にカーポートと合わせて
お庭に機能的スペースを作り出します
防犯、お家のドレスアップはこれで決まり
ガレージ商品とコンビで高級感を演出
各取扱メーカーの会社名、ロゴ及び商品名等は各社の商標または登録商標です。
| 日 | 月 | 火 | 水 | 木 | 金 | 土 |
|---|---|---|---|---|---|---|
| 1 | 2 | 3 | 4 | 5 | 6 | |
| 7 | 8 | 9 | 10 | 11 | 12 | 13 |
| 14 | 15 | 16 | 17 | 18 | 19 | 20 |
| 21 | 22 | 23 | 24 | 25 | 26 | 27 |
| 28 | 29 | 30 | 31 |
| 日 | 月 | 火 | 水 | 木 | 金 | 土 |
|---|---|---|---|---|---|---|
| 1 | 2 | 3 | ||||
| 4 | 5 | 6 | 7 | 8 | 9 | 10 |
| 11 | 12 | 13 | 14 | 15 | 16 | 17 |
| 18 | 19 | 20 | 21 | 22 | 23 | 24 |
| 25 | 26 | 27 | 28 | 29 | 30 | 31 |
…休業日(現場調査・工事は一部対応)
![]()
【受付時間】9:30 - 17:30(営業日)
![]()
【受付時間】9:30 - 17:30(営業日)
オペレーションスタッフ
エクステリアプランナー有資格者の私たちにお任せください。
ショップ責任者
神(じん)
エクステリア プランナー
有資格者61名
1/3
木附
枡田
重富
吉澤
吉野
小東
池本
山田
佐藤
白崎
新西
伊野
次田
浅川
南
西山
小林
梨田
長谷川
藤田
阿重田
村上
植松
内田
久田
小野
平戸
中島
長石
水口
榮
山崎
清水
室谷
安田
水谷
酒井
神吉
日下部
山中
深田
田中
水田
西田
一氏
岡本
北
坂本
中嶋
岩野
伊藤
上中
高山
竹本
犬井
佐伯
谷川
原
丸山
塚田
松本
上内
島田
森
梅田
松山
山本
小林
倉地
山根
中原
河野
村上
土井
岩破
南
井上
三ツ股
小田
依藤
永禮
林
加藤
石藤
駒井
末吉
山本
芦野
樽井
野上
岡田
木村
池田
西村
藤澤
達川
奥原
那須
小西
森下
1/3
今週のPick Upページ
![]()
ご利用頂いたお客様の口コミ・レビューを「お客様の声」として掲載しております。
全てのご感想を掲載しておりますので、エクスショップの評判としてご参考ください。
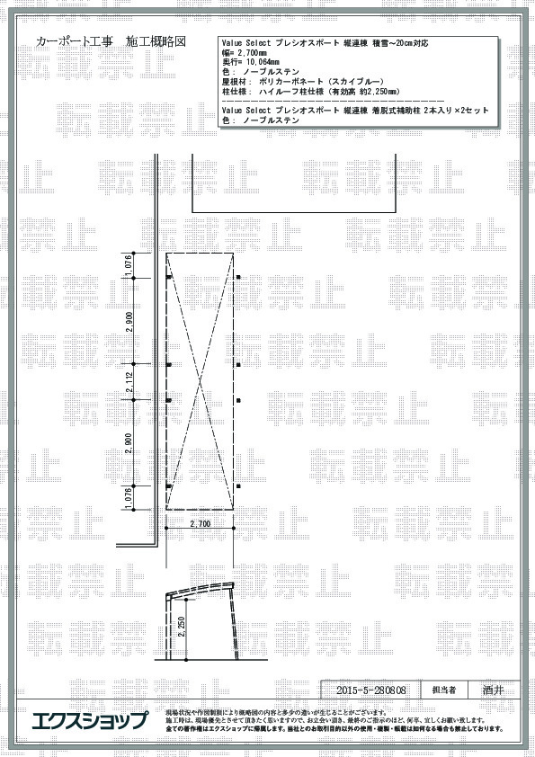
正式お見積りと一緒に提出させて頂いております「工事概略図面」もご覧頂けます。
商品や設置場所のご検討にお役立てください。
(写真No:28080825)
(カーポート)
| カラー | ノーブルステン |
|---|---|
| サイズ | 幅 2,700mm 奥行 10,064mm |
| 屋根高等 | ハイルーフ柱仕様(有効高 約2,250mm) |
| 屋根材等 | ポリカーボネート(スカイブルー) |
| 工事方法 | 地域密着あんしん施工 |
作業が迅速でとても助かりました。また工事までの流れもわかりやすく、メールなどで細かく説明して頂けて助かりました。ただ、まだ物を決める段階で現場での担当の方の説明が簡単すぎてちょっとあっけなく感じました。
プレシオスポートの施工にお伺い致しました、弊社提携施工店の担当者にお褒めのお言葉を頂き、誠に有り難うございます。広い敷地を有効にご活用頂ける縦連棟タイプのカーポートが綺麗に納まり、私どもも嬉しく存じます。現場調査の際のご説明が至らず、誠に申し訳ございませんでした。イメージの掴みにくい大型のエクステリアでございますので、今後は、より詳しいご説明を心掛けるよう提携施工店にも指導して参りたいと存じます。またのご利用を、心よりお待ち申し上げております。
当サイトは以下のセキュリティ機能や保護認定等を備えています。安心してお申し込みください
当サイトは256ビットSSL暗号化に対応しています。入力した個人情報は暗号化して送られますので、安心してご利用ください。
当社はJADMAの正会員です。同協会は法律で位置づけられた団体で、消費者の利益保護と業界の健全な発展の為に活動しています。
こちらの工事に使用しているエクステリア
![]()
プレシオスポート アール型 縦連棟セット 2台用

工事費・税込
275,700円〜
総合平均評価(星5つ評価)
5
商品レビュー数
4件
プレシオスポート アール型 縦連棟セット 2台用は車2台の縦列駐車が可能なエクスショップオリジナルブランドの奥行連結タイプのカーポートです。耐風性能は基準風速Vo=34m/s・耐積雪性能は20cm相当(600N/㎡)が備わっています。本体と屋根材の色も数種類ご用意。
この商品の詳細へ
無料お見積り・現場調査・ご注文もこちら
関連するお客様の声

5つ星のうち5
兵庫県H.N. 様回答日:2014年4月
迅速な対応と、丁寧な説明に大変満足いたしました。施工の方も、手際よく作業をしていただき、嬉しく思ってます。

5つ星のうち5
埼玉県W.J. 様回答日:2012年7月
担当の方が迅速にいろいろとメールで対応していただいたのでとても良かったと思います。工事の担当の方もこの暑い中頑張っていただきましたのでとても納得のいく仕上がりでした。本当に頼んで良かったと思います。ありがとうございました。

5つ星のうち5
岡山県H.K. 様回答日:2014年1月
初めはどうかなと思いましたけど丁寧に説明していただき納得できました。工事の方の説明も大変わかりやすくて安心してお任せできました。

5つ星のうち5
埼玉県H.K. 様回答日:2017年11月
サイトを初めて拝見させていただいた段階から施工完了までのすべての流れが。とてもスムースで、施工していただいた担当の方の説明もわかりやすく、とても丁寧な仕事をしていただきました。すべてにおいて快適でした。

5つ星のうち5
兵庫県H.K. 様回答日:2011年3月
担当の方もすごく親切で、商品の説明も分かりやすく、おすすめ商品も教えて頂き大変満足しています。現場の打ち合わせもスムーズにできました。施工に来て頂いた方も親切丁寧な作業をしていただきありがとう御座いました。

5つ星のうち5
兵庫県Y.K. 様回答日:2013年9月
迅速でとても丁寧な対応でした。現場調査に来られた時も分かりやすい説明で助かりました。ありがとうございました。

5つ星のうち4
埼玉県N.H. 様回答日:2010年12月
発注までのやり取りやクレームの対応が非常に良かったです。施工業者がいいかげんな仕事をしていったのが残念だったので、指導をした方がいいと思います。施工しに来た職人さんの当たり外れがあるので、しょうがない部分もある。工事中の説明が一切無いので工事の流れを施工主に簡単に説明した方がいい。こちらが聞かないと説明がなかった。

5つ星のうち5
福岡県K.K. 様回答日:2012年4月
連絡が早いこと、説明がわかりやすいこと(現場での説明を含む)、工事が丁寧であること大変満足しています。

5つ星のうち5
岡山県M.H. 様回答日:2013年6月
担当の方は迅速かつ親切に連絡してくれましたし、施工業者の方も下見の時から丁寧に説明、工事をしてくれました。立派なカーポートが出来満足しています。ただ、下見申込み前の簡単な見積もりはオプションを含めて出来ると有難いなと思いました。

5つ星のうち5
長崎県N.K. 様回答日:2019年3月
・ネット上の説明がわかりやすく、概算見積もりが簡単にできたこと。・工事が混みあっていましたが、予定より早く工事をしていただけて助かりました。
関連するブログ記事
関連するよくあるご質問
カーポートの設置と一緒に土間コンクリートを打設できますか?
【商品カテゴリ >カーポート】(ご質問No.707)
既存のカーポート屋根材の張り替えの依頼はできますか?
【商品カテゴリ >カーポート】(ご質問No.21)
以前購入したカーポートの部品のみを追加で購入する事は可能ですか?
【商品カテゴリ >カーポート】(ご質問No.48)
ワイドタイプのカーポートですが、横幅の切り詰めは可能ですか?
【商品カテゴリ >カーポート】(ご質問No.69)
カーポートって何ですか?
【商品カテゴリ >カーポート】(ご質問No.28910)
既存のカーポートの柱の高さを桁上げする事は可能ですか?
【商品カテゴリ >カーポート】(ご質問No.43)
既存のカーポートをいったん解体し、再度組み立てることは可能ですか?
【商品カテゴリ >カーポート】(ご質問No.46)
四国化成のFリードカーポート収納庫付きタイプは取り扱ってますか?
【商品カテゴリ >カーポート】(ご質問No.74)
既存カーポートの支柱を流用して、増設、縦列2台用のカーポートを設置することは可能ですか?
【商品カテゴリ >カーポート】(ご質問No.84)
四国化成のマイポートneoの取り扱いはありますか?
【商品カテゴリ >カーポート】(ご質問No.88)


















