バイク・自転車を雨風から保護
お家の収納能力をアップ
ガレージの保全・防犯にカーポートと合わせて
お庭に機能的スペースを作り出します
防犯、お家のドレスアップはこれで決まり
ガレージ商品とコンビで高級感を演出
各取扱メーカーの会社名、ロゴ及び商品名等は各社の商標または登録商標です。
| 日 | 月 | 火 | 水 | 木 | 金 | 土 |
|---|---|---|---|---|---|---|
| 1 | 2 | 3 | 4 | 5 | 6 | 7 |
| 8 | 9 | 10 | 11 | 12 | 13 | 14 |
| 15 | 16 | 17 | 18 | 19 | 20 | 21 |
| 22 | 23 | 24 | 25 | 26 | 27 | 28 |
| 29 | 30 | 31 |
| 日 | 月 | 火 | 水 | 木 | 金 | 土 |
|---|---|---|---|---|---|---|
| 1 | 2 | 3 | 4 | |||
| 5 | 6 | 7 | 8 | 9 | 10 | 11 |
| 12 | 13 | 14 | 15 | 16 | 17 | 18 |
| 19 | 20 | 21 | 22 | 23 | 24 | 25 |
| 26 | 27 | 28 | 29 | 30 |
…休業日(現場調査・工事は一部対応)
![]()
【受付時間】9:30 - 17:30(営業日)
![]()
【受付時間】9:30 - 17:30(営業日)
オペレーションスタッフ
エクステリアプランナー有資格者の私たちにお任せください。
ショップ責任者
神(じん)
エクステリア プランナー
有資格者61名
1/3
木附
枡田
重富
吉澤
吉野
小東
池本
山田
佐藤
白崎
新西
伊野
次田
南
西山
小林
阿重田
梨田
長谷川
藤田
村上
平戸
植松
内田
久田
中島
長石
水口
榮
山崎
清水
室谷
安田
水谷
小野
酒井
一氏
神吉
日下部
山中
深田
田中
水田
西田
岡本
丸山
北
坂本
中嶋
岩野
伊藤
上中
高山
原
犬井
佐伯
谷川
塚田
松本
小林
森下
上内
島田
森
梅田
松山
山本
小西
倉地
山根
中原
河野
村上
土井
岩破
南
井上
三ツ股
小田
依藤
永禮
林
加藤
石藤
駒井
末吉
山本
芦野
樽井
野上
岡田
木村
池田
西村
藤澤
達川
奥原
那須
1/3
今週のPick Upページ
![]()
ご利用頂いたお客様の口コミ・レビューを「お客様の声」として掲載しております。
全てのご感想を掲載しておりますので、エクスショップの評判としてご参考ください。
正式お見積りと一緒に提出させて頂いております「工事概略図面」もご覧頂けます。
商品や設置場所のご検討にお役立てください。
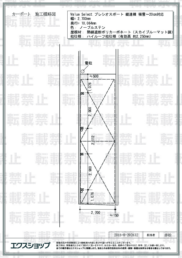
(写真No:29253228)
(カーポート)
| カラー | ノーブルステン |
|---|---|
| サイズ | 幅 2,700mm 奥行 10,064mm |
| 屋根高等 | ハイルーフ柱仕様(有効高 約2,250mm) |
| 屋根材等 | 熱線遮断ポリカーボネート(スカイブルーマット調) |
| 工事方法 | 地域密着あんしん施工 |
実際施工時にもっと打ち合わせしておけば良かったと感じました。
この度はプレシオスポート 縦連棟の施工をご依頼頂き、誠に有り難うございます。数多くございますショップの中からエクスショップをお選び頂いたにも関わらず、お客様のご要望に100%お応えすることが出来ず、大変心苦しく存じます。お客様から頂いたご意見を真摯に受け止め、今後の対応改善に努めさせて頂きます。貴重なご意見をお寄せ頂き、有り難うございました。また何かございましたら、お手数ではございますがエクスショップまでご連絡下さいますよう、宜しくお願い致します。
当サイトは以下のセキュリティ機能や保護認定等を備えています。安心してお申し込みください
当サイトはSSL暗号化に対応しています。入力した個人情報は暗号化して送られますので、安心してご利用ください。
当社はJADMAの正会員です。同協会は法律で位置づけられた団体で、消費者の利益保護と業界の健全な発展の為に活動しています。
こちらの工事に使用しているエクステリア
![]()
プレシオスポート アール型 縦連棟セット 2台用

工事費・税込
275,700円〜
総合平均評価(星5つ評価)
5
商品レビュー数
4件
プレシオスポート アール型 縦連棟セット 2台用は車2台の縦列駐車が可能なエクスショップオリジナルブランドの奥行連結タイプのカーポートです。耐風性能は基準風速Vo=34m/s・耐積雪性能は20cm相当(600N/㎡)が備わっています。本体と屋根材の色も数種類ご用意。
この商品の詳細へ
無料お見積り・現場調査・ご注文もこちら
関連するお客様の声

5つ星のうち5
熊本県N.S. 様回答日:2015年4月
知り合いからのすすめ。間違いなく一番安いとのこと。最後の電話交渉でも値下げをしてくれた。地場企業とはサービスが違う。

5つ星のうち5
宮城県T.S. 様回答日:2015年3月
雨や雪で苦悩しますが、雨の日でも濡れずに済むし、車の雪かきの手間や時間も短縮でき、とっても改善されて良かったです。

5つ星のうち5
山梨県H.T. 様回答日:2015年3月
長男が中学に進学し、新品の自転車を置けるよう、将来的には車も増えると思うので、それ用に購入しました。

5つ星のうち5
岡山県O.M. 様回答日:2015年3月
何回か仕様変更をして、見積もりも数回いただいてお手数をおかけしました。最終的に満足いくカーポートが安い価格でできました。有難うございました。

5つ星のうち4
福岡県N.M. 様回答日:2015年3月
満足しています。

5つ星のうち5
静岡県K.M. 様回答日:2026年3月
新たに車を買い足して、二台とも長く使いたいため、二台用のカーポートを購入した。本当は来客用に三台用が欲しかったが、駐車場用地の形状から無理とのことで、二台用カーポートに一台分の空きスペース確保を条件に施工していただいた。施工後翌々日に雨が降りましたが、やはり屋根があると車の乗り降りが快適ですね。屋根を低くし、熱線遮断の素材にしたので、日中も少しヒンヤリします。夏には酷暑対策にもなりそうです。

5つ星のうち5
兵庫県N.K. 様回答日:2026年1月
カーポートと200V充電コンセントを一体化できたので見た目もスッキリして雨の日でも快適に使える。ポストと宅配ボックスが一体化しているのでこちらも見た目スッキリで気に入っている。エクスショップ様は対応が早く、良い施工店様を紹介してくださったので感謝しています。有り難うございました。

5つ星のうち5
岡山県S.A. 様回答日:2026年1月
新築戸建の購入に伴い、カーポートとサイクルポートの設置を検討していました。インターネットで検索した際に上位に表示され、施工事例の画像やレビューを拝見して良さそうだと感じ、見積もりを依頼しました。見積もり内容の変更を何度かお願いしましたが、その都度迅速にご対応いただきました。また、工事日程の調整などについても小まめにご連絡をいただき、無事に完工することができました。
関連するブログ記事
関連するよくあるご質問
カーポートの設置と一緒に土間コンクリートを打設できますか?
【商品カテゴリ >カーポート】(ご質問No.707)
既存のカーポート屋根材の張り替えの依頼はできますか?
【商品カテゴリ >カーポート】(ご質問No.21)
以前購入したカーポートの部品のみを追加で購入する事は可能ですか?
【商品カテゴリ >カーポート】(ご質問No.48)
ワイドタイプのカーポートですが、横幅の切り詰めは可能ですか?
【商品カテゴリ >カーポート】(ご質問No.69)
カーポートって何ですか?
【商品カテゴリ >カーポート】(ご質問No.28910)
既存のカーポートの柱の高さを桁上げする事は可能ですか?
【商品カテゴリ >カーポート】(ご質問No.43)
既存のカーポートをいったん解体し、再度組み立てることは可能ですか?
【商品カテゴリ >カーポート】(ご質問No.46)
四国化成のFリードカーポート収納庫付きタイプは取り扱ってますか?
【商品カテゴリ >カーポート】(ご質問No.74)
既存カーポートの支柱を流用して、増設、縦列2台用のカーポートを設置することは可能ですか?
【商品カテゴリ >カーポート】(ご質問No.84)
四国化成のマイポートneoの取り扱いはありますか?
【商品カテゴリ >カーポート】(ご質問No.88)


















