バイク・自転車を雨風から保護
お家の収納能力をアップ
ガレージの保全・防犯にカーポートと合わせて
お庭に機能的スペースを作り出します
防犯、お家のドレスアップはこれで決まり
ガレージ商品とコンビで高級感を演出
各取扱メーカーの会社名、ロゴ及び商品名等は各社の商標または登録商標です。
| 日 | 月 | 火 | 水 | 木 | 金 | 土 |
|---|---|---|---|---|---|---|
| 1 | 2 | 3 | 4 | 5 | 6 | |
| 7 | 8 | 9 | 10 | 11 | 12 | 13 |
| 14 | 15 | 16 | 17 | 18 | 19 | 20 |
| 21 | 22 | 23 | 24 | 25 | 26 | 27 |
| 28 | 29 | 30 | 31 |
| 日 | 月 | 火 | 水 | 木 | 金 | 土 |
|---|---|---|---|---|---|---|
| 1 | 2 | 3 | ||||
| 4 | 5 | 6 | 7 | 8 | 9 | 10 |
| 11 | 12 | 13 | 14 | 15 | 16 | 17 |
| 18 | 19 | 20 | 21 | 22 | 23 | 24 |
| 25 | 26 | 27 | 28 | 29 | 30 | 31 |
…休業日(現場調査・工事は一部対応)
![]()
【受付時間】9:30 - 17:30(営業日)
![]()
【受付時間】9:30 - 17:30(営業日)
オペレーションスタッフ
エクステリアプランナー有資格者の私たちにお任せください。
ショップ責任者
神(じん)
エクステリア プランナー
有資格者61名
1/3
木附
枡田
重富
吉澤
吉野
小東
池本
山田
佐藤
白崎
新西
伊野
次田
浅川
南
西山
小林
梨田
長谷川
藤田
阿重田
村上
植松
内田
久田
小野
平戸
中島
長石
水口
榮
山崎
清水
室谷
安田
水谷
酒井
神吉
日下部
山中
深田
田中
水田
西田
一氏
岡本
北
坂本
中嶋
岩野
伊藤
上中
高山
竹本
犬井
佐伯
谷川
原
丸山
塚田
松本
上内
島田
森
梅田
松山
山本
小林
倉地
山根
中原
河野
村上
土井
岩破
南
井上
三ツ股
小田
依藤
永禮
林
加藤
石藤
駒井
末吉
山本
芦野
樽井
野上
岡田
木村
池田
西村
藤澤
達川
奥原
那須
小西
森下
1/3
今週のPick Upページ
![]()
ご利用頂いたお客様の口コミ・レビューを「お客様の声」として掲載しております。
全てのご感想を掲載しておりますので、エクスショップの評判としてご参考ください。
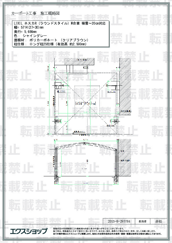
正式お見積りと一緒に提出させて頂いております「工事概略図面」もご覧頂けます。
商品や設置場所のご検討にお役立てください。
(写真No:29378428)
(カーポート)
| カラー | シャイングレー |
|---|---|
| サイズ | 幅 5,714mm 奥行 5,686mm |
| 屋根高等 | ロング柱25仕様(有効高 約2,500mm) |
| 屋根材等 | ポリカーボネート (クリアブラウン) |
| 工事方法 | 地域密着あんしん施工 |
雨に濡れず荷物の積み下ろしができるようになり、家族みんなおおよろこびです。
当サイトは以下のセキュリティ機能や保護認定等を備えています。安心してお申し込みください
当サイトは256ビットSSL暗号化に対応しています。入力した個人情報は暗号化して送られますので、安心してご利用ください。
当社はJADMAの正会員です。同協会は法律で位置づけられた団体で、消費者の利益保護と業界の健全な発展の為に活動しています。
こちらの工事に使用しているエクステリア
![]()
ネスカ R 1台用 M合掌(ラウンドスタイル)

工事費・税込
289,600円〜
総合平均評価(星5つ評価)
4.67
商品レビュー数
36件
ネスカ R 1台用 M合掌(ラウンドスタイル)はアールタイプの屋根が特徴的な並列駐車が出来る2台用カーポートです。6タイプの屋根材に5色の本体カラー仕様で展開しており、ご自宅に合うスタイルに。耐風性能は基準風速Vo=40m/s、耐積雪性能は20cm相当を確保。
この商品の詳細へ
無料お見積り・現場調査・ご注文もこちら
この商品のレビュー
商品レビュー36件

京都府 京都市 I.S.様
明るさも確保できつつカーポート設置の目的も確保できたので満足です。

千葉県 我孫子市 O.K.様
合掌タイプにしたので柱や奥行きが理想通りになりました。

愛知県 名古屋市 F.B.様
M合掌タイプは見てからに頑丈そうで安心できます。また、敷地幅いっぱいに設置が可能なので、スペースを効率よく利用できることが最大のメリットだと思います。天板も明るい感じのものを選んだので採光のお陰で、より開放感を感じられます。

岡山県 岡山市 Y.K.様
風などで揺れた時、外壁等に接触が 予測される箇所は、緩衝材などを取り付けておく必要があると思う。

愛知県 刈谷市 M.J.様
高さなどがもうひとつのカーポートと綺麗に揃っており、満足しております。今のところ、その他気になった所はありません。

熊本県 玉名市 K.R.様
高さがあるタイプにしたので、圧迫感がなくてよかった。 作りもしっかりしていて満足しています。

愛知県 岡崎市 S.K.様
柱が太くて丈夫そうで安心感がある。 また色合いの評判が良かった。

大阪府 堺市 K.J.様
M合掌を採用した事で、家の庇廻りにかなりフィットし、満足しています。そのほかネスカRは、低価格で柱高さを確保できるので、オススメです。

愛媛県 松山市 A.K.様
狭い場所にきちんと丁寧な工事をしていただきありがとうございました。

兵庫県 姫路市 S.C.様
変形地での設置が可能で良い商品。高さがあり、白ということもあり圧迫感がない。

千葉県 千葉市 U.K.様
以前の旧カーポートは設置後時間が経過しており古いものだから仕方ないと思いますが、今回は技術も進歩し製造されているので風害に対して強いのではないかなと思います。

東京都 多摩市 I.M.様
とても高級感があって気に入っています。色も良かったと思います。

愛知県 名古屋市 W.K.様
思っていたよりもスッキリとした仕上がりで満足しています。

東京都 足立区 K.K.様
色も落ち着いたブラウンで、違和感なく、とても満足しています。夏は暑さをしのげそうで、冬は車への積雪の心配がなくなり、購入して、本当に良かったと思いました。

千葉県 市川市 T.Y.様
駐車時のボディーの雨汚れはだいぶ抑えることができたが、バルコニーとの 干渉をさけるべく全長がかなりカットされてしまったため、降雨時の荷下ろし 時は濡れてしまい残念。列車の連結部アコーディオン枠の様に柔軟な雨よけ オプションがあれば尚良い。

埼玉県 入間市 T.K.様
車庫のスペースが規格に合わず、ワイドからM合掌になり少しがっかりしましたが、完成してみれば納得の商品です。

大阪府 吹田市 K.R.様
色もきれいで取り付け後の方が駐車場が広く感じました

愛知県 海部郡大治町 K.H.様
ほどよいかんじですね。金額、スタイル的に。

岐阜県 岐阜市 N.H.様
カーポートの存在感があり家か立派に見える様になりました。

千葉県 袖ケ浦市 S.R.様
ネスカRのデザイン、色は気に入っていて、家の雰囲気に合っています。 屋根材を熱線吸収ポリカーボネートにしたので夏場の炎天下でどうなのか気になります。

愛知県 刈谷市 K.Y.様
見た目はとても気に入ってる。 機能的にはまだ特に良し悪し分からず。
関連するお客様の声

5つ星のうち5
岐阜県N.H. 様回答日:2016年4月
前々からカーポートが欲しかったのですが、施工場所が複雑で思い通りに施工ができるか悩んでいました。色々とサイトを拝見して思い切って見積の依頼をする事にしました。見積依頼の現地視察の時に私の思いも伝わり安心して依頼をする事ができました。施工の職人さんもとても腕が良く満足しています。ありがとう御座いました。

5つ星のうち5
鹿児島県N.S. 様回答日:2015年5月
当地は桜島の火山灰が降り車に積り、それによる痛みや汚れが悩みでした。また、駐車場の真上に電線が通っており、鳥の糞も落とされ、これらを解消するために設置をお願いしました。火山灰の堆積は完全には解消できませんが、軽減できて、鳥の糞もつかなくなり満足しています。

5つ星のうち5
群馬県I.H. 様回答日:2014年12月
撤去いただいた旧カーポートは軽自動車と普通車用で幅が狭く、今回の工事で普通車2台用に幅の広いものに取り替え楽に出し入れ可能になりました。都市ガス管と雨水管が工事の妨げになりそうでしたが、丁寧な工事で回避いただき合掌式で幅詰めなしで目的通りの工事を実施いただき満足しております。

5つ星のうち4
千葉県M.K. 様回答日:2014年4月
メールのやりとりも迅速でしたし現場の作業も丁寧で良かったです。当初は設置場所の関係上、柱を切断したければならなく10年の保証が受けられなかったのですが、施工時に切らなくていいとの判断を受け助かりました。その時の現場の対応がとてもよかったです。

5つ星のうち5
福岡県H.K. 様回答日:2013年12月
ネットでのやりとりで不安でしたが、来て下さった施工士の方の説明もちゃんとしてあり見積もりも7件も出してもらいました。同時にエクスショップの方からも電話連絡も頂いて安心して任せることができ、雨や曇りの寒い中工事をして下さり、私たちの思いどうりのカーポートが出来上がってとても満足しています。また、何かあるときはお願いしたいです。

5つ星のうち5
愛知県A.M. 様回答日:2025年9月
ずっとカーポートが付けたかったけど、どうしてもいるものではなかったので後回しになっていた。年々猛暑が続いていた事がきっかけです。暑い日に乗った最初の車内の温度が低く感じられて、つけて良かったと思った。小雨の時の車の汚れが防げるといいなと思っています。

5つ星のうち5
静岡県G.M. 様回答日:2025年4月
昨年購入した車両は高さが2,250mmあり構造的にルーフには乗れず、洗車がとても大変で苦労していました。現在3連のカーポートはありますが高さが2,400mmの所があり納まりません。高さがクリアーできるカーポートを探した所エクスショップに辿り着きました。価格、保証等説明を聞き、クチコミにも後押しされ決めさせて頂きました。現地調査も準則にして頂き設置も近くの業者様により、2日で完了しました。設置後雨が降りましたが、車両が濡れないため雨垂れ等無くとても満足しております。また機会がありましたらその際は是非お願いしたいと思います。大変有り難う御座いました。

5つ星のうち5
長野県N.Y. 様回答日:2025年4月
友人の話を聞いて購入を考えました。初めてのマイホームということもあり、また積雪も多い地域であったことから、カーポートをつけたいと考えていました。今回購入したことで車に積もった雪を降ろすことなく快適に乗車できそうなので大変助かります。購入してよかったです。ありがとうございました。
関連するブログ記事
関連するよくあるご質問
カーポートの設置と一緒に土間コンクリートを打設できますか?
【商品カテゴリ >カーポート】(ご質問No.707)
既存のカーポート屋根材の張り替えの依頼はできますか?
【商品カテゴリ >カーポート】(ご質問No.21)
以前購入したカーポートの部品のみを追加で購入する事は可能ですか?
【商品カテゴリ >カーポート】(ご質問No.48)
ワイドタイプのカーポートですが、横幅の切り詰めは可能ですか?
【商品カテゴリ >カーポート】(ご質問No.69)
カーポートって何ですか?
【商品カテゴリ >カーポート】(ご質問No.28910)
既存のカーポートの柱の高さを桁上げする事は可能ですか?
【商品カテゴリ >カーポート】(ご質問No.43)
既存のカーポートをいったん解体し、再度組み立てることは可能ですか?
【商品カテゴリ >カーポート】(ご質問No.46)
四国化成のFリードカーポート収納庫付きタイプは取り扱ってますか?
【商品カテゴリ >カーポート】(ご質問No.74)
既存カーポートの支柱を流用して、増設、縦列2台用のカーポートを設置することは可能ですか?
【商品カテゴリ >カーポート】(ご質問No.84)
四国化成のマイポートneoの取り扱いはありますか?
【商品カテゴリ >カーポート】(ご質問No.88)


















