バイク・自転車を雨風から保護
お家の収納能力をアップ
ガレージの保全・防犯にカーポートと合わせて
お庭に機能的スペースを作り出します
防犯、お家のドレスアップはこれで決まり
ガレージ商品とコンビで高級感を演出
各取扱メーカーの会社名、ロゴ及び商品名等は各社の商標または登録商標です。
| 日 | 月 | 火 | 水 | 木 | 金 | 土 |
|---|---|---|---|---|---|---|
| 1 | 2 | 3 | ||||
| 4 | 5 | 6 | 7 | 8 | 9 | 10 |
| 11 | 12 | 13 | 14 | 15 | 16 | 17 |
| 18 | 19 | 20 | 21 | 22 | 23 | 24 |
| 25 | 26 | 27 | 28 | 29 | 30 | 31 |
| 日 | 月 | 火 | 水 | 木 | 金 | 土 |
|---|---|---|---|---|---|---|
| 1 | 2 | 3 | 4 | 5 | 6 | 7 |
| 8 | 9 | 10 | 11 | 12 | 13 | 14 |
| 15 | 16 | 17 | 18 | 19 | 20 | 21 |
| 22 | 23 | 24 | 25 | 26 | 27 | 28 |
…休業日(現場調査・工事は一部対応)
![]()
【受付時間】9:30 - 17:30(営業日)
![]()
【受付時間】9:30 - 17:30(営業日)
オペレーションスタッフ
エクステリアプランナー有資格者の私たちにお任せください。
ショップ責任者
神(じん)
エクステリア プランナー
有資格者61名
1/3
木附
枡田
重富
吉澤
吉野
小東
池本
山田
佐藤
白崎
新西
伊野
次田
南
西山
小林
阿重田
梨田
長谷川
藤田
村上
平戸
植松
内田
久田
中島
長石
水口
榮
山崎
清水
室谷
安田
水谷
小野
酒井
一氏
神吉
日下部
山中
深田
田中
水田
西田
岡本
丸山
北
坂本
中嶋
岩野
伊藤
上中
高山
原
犬井
佐伯
谷川
塚田
松本
小林
森下
上内
島田
森
梅田
松山
山本
小西
倉地
山根
中原
河野
村上
土井
岩破
南
井上
三ツ股
小田
依藤
永禮
林
加藤
石藤
駒井
末吉
山本
芦野
樽井
野上
岡田
木村
池田
西村
藤澤
達川
奥原
那須
1/3
今週のPick Upページ
![]()
ご利用頂いたお客様の口コミ・レビューを「お客様の声」として掲載しております。
全てのご感想を掲載しておりますので、エクスショップの評判としてご参考ください。
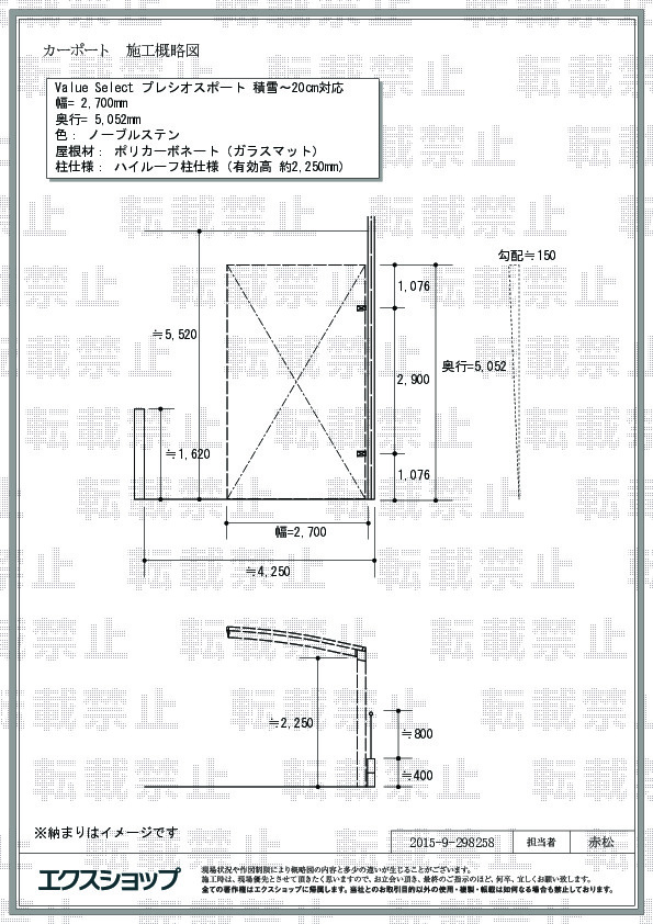
正式お見積りと一緒に提出させて頂いております「工事概略図面」もご覧頂けます。
商品や設置場所のご検討にお役立てください。
(写真No:29825829)
(カーポート)
| カラー | ノーブルステン |
|---|---|
| サイズ | 幅 2,700mm 奥行 5,052mm |
| 屋根高等 | ハイルーフ柱仕様(有効高 約2,250mm) |
| 屋根材等 | ポリカーボネート(ガラスマット) |
| 工事方法 | 地域密着あんしん施工 |
車を買ったので青空駐車では車に良くないと聞いたのでカーポートを取り付けました これで安心です 。また取り付け工事担当の方の対応も良かったです。 満足しています。
プレシオスポート の施工をご依頼頂きまして、誠に有り難うございます。ポリカーボネート(ガラスマット)の屋根が、雨や埃だけではなく、紫外線も遮りますので、新しいお車をいつも美しい状態で使用して頂けるものと存じます。担当致しました施工士もご期待にお応えすることが出来、大変喜んでおります。今後も変わらず、お客様の満足の為に精進して参りますので、また機会がございましたら、お気軽にエクスショップにご用命くださいますよう宜しくお願い致します。
当サイトは以下のセキュリティ機能や保護認定等を備えています。安心してお申し込みください
当サイトは256ビットSSL暗号化に対応しています。入力した個人情報は暗号化して送られますので、安心してご利用ください。
当社はJADMAの正会員です。同協会は法律で位置づけられた団体で、消費者の利益保護と業界の健全な発展の為に活動しています。
こちらの工事に使用しているエクステリア
![]()
プレシオスポート アール型 1台用

工事費・税込
112,000円〜
総合平均評価(星5つ評価)
4.74
商品レビュー数
46件
プレシオスポート アール型 1台用はアール屋根が特徴的なエクスショップオリジナルブランドのスタンダードカーポートです。耐風性能は基準風速Vo=34m/s・耐積雪性能は20cm相当(600N/㎡)を確保しています。本体カラーは3色展開・屋根材は4種類あります。
この商品の詳細へ
無料お見積り・現場調査・ご注文もこちら
この商品のレビュー
商品レビュー46件

大阪府 大阪狭山市 K.I.様
希望道理で施工も綺麗で工事の方の対応も礼儀正しく満足です。

広島県 世羅郡世羅町 M.M.様
施工業者様のお薦めでした。 費用対効果高い商品だと思います。 有効高さの選択があれば更に良い。

和歌山県 和歌山市 O.K.様
見積金額、施工と大満足です。また、機会があればよろしくお願いいたします。ありがとうございました。

福岡県 福岡市 A.H.様
見た目は一般的なカーポートと比べ先進的でおしゃれに感じる、柱は頑丈そうで安心感がある。天井部分が透明度が高く庭が暗くならず解放感がある

大阪府 高槻市 O.K.様
大満足です。来訪者の方から、見栄え良く綺麗になったなと、言われます。

埼玉県 日高市 N.A.様
ほぼイメージどおり。やや高さが低かったが、軽でトールタイプでなければ余裕。

長野県 諏訪市 T.R.様
非常に良く出来たカーポートと思います。コスパが良い、デザインも良い。ポリカの色もいろいろ有り良いです。

兵庫県 宝塚市 N.M.様
ステンレスのカーポートは、近所には無いので良いねといってもらえます。

滋賀県 守山市 I.A.様
満足しています。敷地に合わせて切り詰めて頂いたので駐輪スペースが広くとれて良かったです。

山口県 宇部市 T.Y.様
少し斜面になっていましたが、さすが専門業者さんでとてもよい仕上がりで大満足です。

愛知県 津島市 M.M.様
色も明るくてキレイで、威圧感がなく良いと思います。

愛知県 津島市 M.M.様
色も明るくてキレイで、威圧感がなく良いと思います。

滋賀県 大津市 S.Y.様
1台目のカーポートについては幅がバッチリ合っていて満足です。
関連するお客様の声

5つ星のうち5
新潟県Y.K. 様回答日:2018年11月
いままでは青空駐車でしたが、車を買い替える予定ですのでこの際と思い、カーポートを設置することにしました。

5つ星のうち5
愛知県N.K. 様回答日:2018年2月
青空駐車ですぐ車が汚れるのが嫌で購入しようと思いました。結果、車が汚れにくくなったのが何よりもいいです。ネットでカーポートの施工をお願いするのは多少不安でしたが、もっと早くお願いすればよかったです。

5つ星のうち5
大阪府M.S. 様回答日:2011年12月
・利用させて頂いて、本当に良かったです!今までの賃貸では青空駐車でしたが、車が汚れなくなるので助かる。自転車も安心です。有難うございました!

5つ星のうち5
高知県M.K. 様回答日:2019年9月
今まで青空駐車で雨が降るたびに車が汚れていたが、カーポート出来たことで車を綺麗に維持出来るようになった。エクスショップの利用は初めてですが、丁寧な対応で分かりやすく施工も予想通りで満足しています。

5つ星のうち5
東京都H.H. 様回答日:2020年5月
新築後、車を購入し、しばらくは青空駐車しておりました。汚れは雨が降れば落ちると思っておりましたが、車は汚れる一方で洗車の回数が増えました。カーポートの設置で雨が降っても車が汚れなくなって嬉しいです。

5つ星のうち5
福井県T.Y. 様回答日:2019年4月
今まで青空駐車で我慢していたのですが、猿が屋根から飛び車に傷を付けたので、エクスショップさんなら、安くして頂けると聞いて、決めました。これで、雪で車が埋まる心配も無くなって安心です。

5つ星のうち4
山口県Y.T. 様回答日:2018年4月
これまで青空駐車だったのですが、車の傷みも激しく心を痛めていました。今般、車の買い替えの機にカーポートの設置を行い、熱線や雨による車・塗装の劣化を大幅に減らすことを期待しています。エクスショップの対応は、迅速でよかったと思います。

5つ星のうち5
愛媛県M.S. 様回答日:2021年2月
車を買ったので、カーポートが欲しいと思い施工をお願いしました。雨が降っても急いで車から降りる必要がなくなりました。

5つ星のうち5
神奈川県S.H. 様回答日:2017年7月
車を入れ替えたが、新しい車が黒色だったため、青空駐車を避けたいと考えていた。カーポートを付けて車内温度の上昇も防げ、塗装への影響も少なくなったと思う。

5つ星のうち4
鹿児島県T.N. 様回答日:2017年8月
今まで青空駐車でしたが、家を購入にともない、カーポート設置しました。予算より安く設置できて、車も雨ざらしにならなくなったので良かったです。
関連するブログ記事










関連するよくあるご質問
カーポートの設置と一緒に土間コンクリートを打設できますか?
【商品カテゴリ >カーポート】(ご質問No.707)
既存のカーポート屋根材の張り替えの依頼はできますか?
【商品カテゴリ >カーポート】(ご質問No.21)
以前購入したカーポートの部品のみを追加で購入する事は可能ですか?
【商品カテゴリ >カーポート】(ご質問No.48)
ワイドタイプのカーポートですが、横幅の切り詰めは可能ですか?
【商品カテゴリ >カーポート】(ご質問No.69)
カーポートって何ですか?
【商品カテゴリ >カーポート】(ご質問No.28910)
既存のカーポートの柱の高さを桁上げする事は可能ですか?
【商品カテゴリ >カーポート】(ご質問No.43)
既存のカーポートをいったん解体し、再度組み立てることは可能ですか?
【商品カテゴリ >カーポート】(ご質問No.46)
四国化成のFリードカーポート収納庫付きタイプは取り扱ってますか?
【商品カテゴリ >カーポート】(ご質問No.74)
既存カーポートの支柱を流用して、増設、縦列2台用のカーポートを設置することは可能ですか?
【商品カテゴリ >カーポート】(ご質問No.84)
四国化成のマイポートneoの取り扱いはありますか?
【商品カテゴリ >カーポート】(ご質問No.88)


















