バイク・自転車を雨風から保護
お家の収納能力をアップ
ガレージの保全・防犯にカーポートと合わせて
お庭に機能的スペースを作り出します
防犯、お家のドレスアップはこれで決まり
ガレージ商品とコンビで高級感を演出
各取扱メーカーの会社名、ロゴ及び商品名等は各社の商標または登録商標です。
| 日 | 月 | 火 | 水 | 木 | 金 | 土 |
|---|---|---|---|---|---|---|
| 1 | ||||||
| 2 | 3 | 4 | 5 | 6 | 7 | 8 |
| 9 | 10 | 11 | 12 | 13 | 14 | 15 |
| 16 | 17 | 18 | 19 | 20 | 21 | 22 |
| 23 | 24 | 25 | 26 | 27 | 28 | 29 |
| 30 |
| 日 | 月 | 火 | 水 | 木 | 金 | 土 |
|---|---|---|---|---|---|---|
| 1 | 2 | 3 | 4 | 5 | 6 | |
| 7 | 8 | 9 | 10 | 11 | 12 | 13 |
| 14 | 15 | 16 | 17 | 18 | 19 | 20 |
| 21 | 22 | 23 | 24 | 25 | 26 | 27 |
| 28 | 29 | 30 | 31 |
…休業日(現場調査・工事は一部対応)
![]()
【受付時間】9:30 - 17:30(営業日)
![]()
【受付時間】9:30 - 17:30(営業日)
オペレーションスタッフ
エクステリアプランナー有資格者の私たちにお任せください。
ショップ責任者
神(じん)
エクステリア プランナー
有資格者61名
1/3
木附
枡田
重富
吉澤
吉野
小東
池本
山田
佐藤
白崎
新西
伊野
次田
浅川
南
西山
小林
梨田
長谷川
藤田
阿重田
村上
植松
内田
久田
小野
平戸
中島
長石
水口
榮
山崎
清水
室谷
安田
水谷
酒井
神吉
日下部
山中
深田
田中
水田
西田
一氏
岡本
北
坂本
中嶋
岩野
伊藤
上中
高山
竹本
犬井
佐伯
谷川
原
丸山
塚田
松本
上内
島田
森
梅田
松山
山本
小林
倉地
山根
中原
河野
村上
土井
岩破
南
井上
三ツ股
小田
依藤
永禮
林
加藤
石藤
駒井
末吉
山本
芦野
樽井
野上
岡田
木村
池田
西村
藤澤
達川
奥原
那須
小西
森下
1/3
今週のPick Upページ
![]()
ご利用頂いたお客様の口コミ・レビューを「お客様の声」として掲載しております。
全てのご感想を掲載しておりますので、エクスショップの評判としてご参考ください。
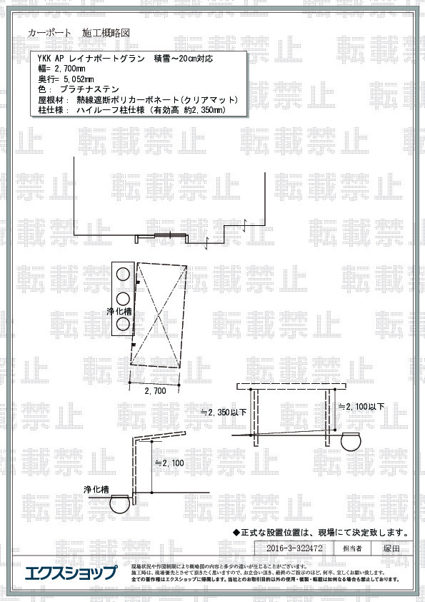
正式お見積りと一緒に提出させて頂いております「工事概略図面」もご覧頂けます。
商品や設置場所のご検討にお役立てください。
(写真No:32247233)
(カーポート)
| カラー | プラチナステン |
|---|---|
| サイズ | 幅 2,700mm 奥行 5,052mm |
| 屋根高等 | ハイルーフ柱仕様(有効高 約2,350mm) |
| 屋根材等 | 熱線遮断ポリカーボネート(クリアマット) |
| 工事方法 | 地域密着あんしん施工 |
ネットショッピングという事で不安な面もありましたが、丁寧な対応だったので購入を決めました。施工も丁寧で予定の日が雨天の為、延期になった際も朝一で連絡をくれた事も良かったです。
当サイトは以下のセキュリティ機能や保護認定等を備えています。安心してお申し込みください
当サイトは256ビットSSL暗号化に対応しています。入力した個人情報は暗号化して送られますので、安心してご利用ください。
当社はJADMAの正会員です。同協会は法律で位置づけられた団体で、消費者の利益保護と業界の健全な発展の為に活動しています。
こちらの工事に使用しているエクステリア
![]()
アリュース 600タイプ 1台用

工事費・税込
133,100円〜
総合平均評価(星5つ評価)
4.84
商品レビュー数
190件
アリュース 600タイプ 1台用はアール屋根・片側支持仕様のカーポートです。柱と梁にはT6処理(部材押出時に水で急速冷凍し高強度化)を施したアルミニウム合金を採用。基準風速Vo=34m/s・耐積雪性能20cmの安心性能です。オプションとしてサイドパネルなどもご用意。
この商品の詳細へ
無料お見積り・現場調査・ご注文もこちら
この商品のレビュー
商品レビュー190件

岡山県 玉野市 Y.T.様
幅広いバリエーションで幅、奥行き、高さ等の選択肢が多く、遮熱屋根が選べたのが良かったです。

高知県 四万十市 N.M.様
まだ駐車場の土間コンクリートが完成してないので使っていませんがとても満足です。暑くなるこれからの季節にとても役立つと思います。

兵庫県 明石市 S.E.様
前のカーポートは20年以上使っていたので、入れ替えた事により明るくなりました。近所の方々によーなったなぁと言っていただき高評判です。

広島県 三原市 O.Y.様
見た目も大変よく大満足です。工事もとても丁寧にしていただきました。

兵庫県 神戸市 N.H.様
作りがしっかりしていて、デザインがよく 色のバリエーションも多いので家に合わせやすい

神奈川県 横浜市 I.T.様
思ったより大きかったので少し積雪が心配です。

埼玉県 東松山市 M.M.様
比較的安い商品を頼んだが、柱が太くて丈夫そう。 倒壊の心配は無い。

栃木県 さくら市 F.A.様
全長も長く、幅広なので車が停めやすくなった。自宅の屋根と位置を合わせたことで雨に濡れなくなった。

三重県 津市 K.T.様
事前にイメージしたとおりでとても満足しています。質感や色も悪くないです。

奈良県 生駒市 K.H.様
現時点では大変満足しています。 家族の評判も良いです。

岡山県 倉敷市 C.N.様
カーポート自体少し大きく、車以外、自転車もいれることができ満足してます

大分県 大分市 Z.M.様
九州はこれからの季節、朝の慌ただしい出勤時… 「今朝は車のフロントガラスが朝霜で凍ってるかな〜?凍ってたら溶かさなきゃな〜」と気をもむ1月に施工していただきました。おかげさまで、カーポート屋根が朝霜をすべて受け止め…毎朝スムーズ快適に出勤しております。

岐阜県 関市 M.Y.様
モデルチェンジしたみたいですが前のモデルとそんなに変わらないのでよかったです。

兵庫県 高砂市 T.M.様
カーポートの形状も色合いもよく、大変満足しています。

神奈川県 横浜市 H.N.様
カーポートの設置によって、部屋の明るさに影響を与えることを心配していましたが、 透過性のよい材質のため、全く影響なく設置できました。

栃木県 塩谷郡高根沢町 M.S.様
ご丁寧にメールを頂きありがとうございました。土日しか休みがないので、休日に見積りや施工が出来ると良かったです。

神奈川県 横浜市 K.Y.様
日差しがしっかり抑えられ、霜が車につくことが少なくなり安心して車を停められるようになりました。

佐賀県 伊万里市 N.T.様
まだ設置したばかりで1年の春夏秋冬を経験していないので何とも言えませんが今の所は満足です。

神奈川県 川崎市 A.S.様
既存の外構と違和感なく溶け込んで、とてもよいです。今は冬なので実感できませんが、夏を迎えた時に遮光性を発揮してくれることを期待しています。

東京都 練馬区 A.N.様
概ね想定通りの製品であったが、使用開始後間もないので、評価はこれからです。

千葉県 四街道市 Y.H.様
シンプルで非常に気に入ってます。 サイドのパネルは高くて手が出ませんでした。
関連するお客様の声

5つ星のうち5
大阪府Y.T. 様回答日:2012年12月
ネットショッピングと言う事で少し不安が有りましたが地元の施工業者の方が見積り、こちらの要望も気持ちよく聞いて頂き結果的には、安心してお願いする事が出来ました。

5つ星のうち5
東京都M.T. 様回答日:2011年2月
メールや電話で丁寧に対応して頂けたので、ネットショッピングでは中々購入に踏み切れなかったカーポートを購入する事が出来ました。またエクステリアを購入する機会があれば、エクスショップでの購入を検討したいと思っています。

5つ星のうち4
熊本県H.A. 様回答日:2013年12月
ネットショッピングという不安もあったが、要望等にきめ細かく対応していただいて、安心できました。施工も丁寧な仕事ぶりで満足しています。

5つ星のうち5
福岡県M.K. 様回答日:2011年2月
日程調整や連絡事項などご丁寧に対応頂きありがとうございました。工事の方も丁寧かつ安心してお任せすることができました。ネットショッピングだったので少し不安でしたが、満足のいく工事を行って頂きありがとうございました。

5つ星のうち4
愛知県T.K. 様回答日:2014年1月
工事日がメールの予定と違い、戸惑った。隣家の車を移動してもらうのも突然言われ、事前か、せめて朝一で教えて欲しかった。忙しい時間にすぐに移動してと頼む事になり、迷惑をかけてしまった。商品自体は満足しています。

5つ星のうち5
宮城県K.D. 様回答日:2012年2月
ネット販売という事で不安があったのですが、メールや電話での対応がとても丁寧だったので安心してお任せする事が出来ました。

5つ星のうち4
愛知県Y.M. 様回答日:2017年7月
車に乗る際に雨に濡れる事を防ぐ為。車に直射日光が当たり車内がかなり暑い為、多少なりと防ぐ事ができるのではないかという事で購入しました。

5つ星のうち4
岐阜県S.K. 様回答日:2017年8月
受付、見積対応、施工まで文句なしの対応でした。ただ、雨で工事が延期になったのですが、その際、延期になった旨と、新しい工事予定日を連絡を頂ければ幸いでした。特に施工業者さんは丁寧に対応頂きありがとうございました。

5つ星のうち5
大阪府T.K. 様回答日:2015年12月
素早い対応が決め手でした。Web申込みから直ぐに電話にて連絡を頂き、丁寧に対応してもらえました。雨天で延期になり時間が掛かりましたが、そのフォローアップも迅速でストレスが無かったです。ありがとうございました。

5つ星のうち5
群馬県K.K. 様回答日:2015年12月
車の増加によりカーポートが欲しいと思い購入。ネットショッピングで不安もありましたが、対応・工事も問題無く完了し満足しています。
関連するブログ記事
関連するよくあるご質問
カーポートの設置と一緒に土間コンクリートを打設できますか?
【商品カテゴリ >カーポート】(ご質問No.707)
既存のカーポート屋根材の張り替えの依頼はできますか?
【商品カテゴリ >カーポート】(ご質問No.21)
以前購入したカーポートの部品のみを追加で購入する事は可能ですか?
【商品カテゴリ >カーポート】(ご質問No.48)
ワイドタイプのカーポートですが、横幅の切り詰めは可能ですか?
【商品カテゴリ >カーポート】(ご質問No.69)
カーポートって何ですか?
【商品カテゴリ >カーポート】(ご質問No.28910)
既存のカーポートの柱の高さを桁上げする事は可能ですか?
【商品カテゴリ >カーポート】(ご質問No.43)
既存のカーポートをいったん解体し、再度組み立てることは可能ですか?
【商品カテゴリ >カーポート】(ご質問No.46)
四国化成のFリードカーポート収納庫付きタイプは取り扱ってますか?
【商品カテゴリ >カーポート】(ご質問No.74)
既存カーポートの支柱を流用して、増設、縦列2台用のカーポートを設置することは可能ですか?
【商品カテゴリ >カーポート】(ご質問No.84)
四国化成のマイポートneoの取り扱いはありますか?
【商品カテゴリ >カーポート】(ご質問No.88)


















