バイク・自転車を雨風から保護
お家の収納能力をアップ
ガレージの保全・防犯にカーポートと合わせて
お庭に機能的スペースを作り出します
防犯、お家のドレスアップはこれで決まり
ガレージ商品とコンビで高級感を演出
各取扱メーカーの会社名、ロゴ及び商品名等は各社の商標または登録商標です。
| 日 | 月 | 火 | 水 | 木 | 金 | 土 |
|---|---|---|---|---|---|---|
| 1 | ||||||
| 2 | 3 | 4 | 5 | 6 | 7 | 8 |
| 9 | 10 | 11 | 12 | 13 | 14 | 15 |
| 16 | 17 | 18 | 19 | 20 | 21 | 22 |
| 23 | 24 | 25 | 26 | 27 | 28 | 29 |
| 30 |
| 日 | 月 | 火 | 水 | 木 | 金 | 土 |
|---|---|---|---|---|---|---|
| 1 | 2 | 3 | 4 | 5 | 6 | |
| 7 | 8 | 9 | 10 | 11 | 12 | 13 |
| 14 | 15 | 16 | 17 | 18 | 19 | 20 |
| 21 | 22 | 23 | 24 | 25 | 26 | 27 |
| 28 | 29 | 30 | 31 |
…休業日(現場調査・工事は一部対応)
![]()
【受付時間】9:30 - 17:30(営業日)
![]()
【受付時間】9:30 - 17:30(営業日)
オペレーションスタッフ
エクステリアプランナー有資格者の私たちにお任せください。
ショップ責任者
神(じん)
エクステリア プランナー
有資格者61名
1/3
木附
枡田
重富
吉澤
吉野
小東
池本
山田
佐藤
白崎
新西
伊野
次田
浅川
南
西山
小林
梨田
長谷川
藤田
阿重田
村上
植松
内田
久田
小野
平戸
中島
長石
水口
榮
山崎
清水
室谷
安田
水谷
酒井
神吉
日下部
山中
深田
田中
水田
西田
一氏
岡本
北
坂本
中嶋
岩野
伊藤
上中
高山
竹本
犬井
佐伯
谷川
原
丸山
塚田
松本
上内
島田
森
梅田
松山
山本
小林
倉地
山根
中原
河野
村上
土井
岩破
南
井上
三ツ股
小田
依藤
永禮
林
加藤
石藤
駒井
末吉
山本
芦野
樽井
野上
岡田
木村
池田
西村
藤澤
達川
奥原
那須
小西
森下
1/3
今週のPick Upページ
![]()
ご利用頂いたお客様の口コミ・レビューを「お客様の声」として掲載しております。
全てのご感想を掲載しておりますので、エクスショップの評判としてご参考ください。
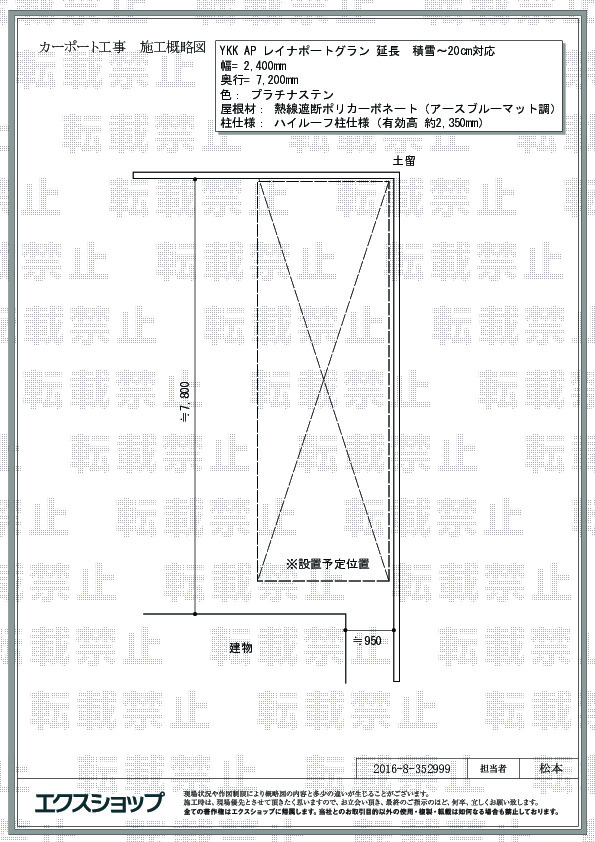
正式お見積りと一緒に提出させて頂いております「工事概略図面」もご覧頂けます。
商品や設置場所のご検討にお役立てください。
(写真No:35299938)
(カーポート)
| カラー | プラチナステン |
|---|---|
| サイズ | 幅 2,400mm 奥行 7,200mm |
| 屋根高等 | ハイルーフ柱仕様(有効高 約2,350mm) |
| 屋根材等 | 熱線遮断ポリカーボネート(アースブルーマット調) |
| 工事方法 | 地域密着あんしん施工 |
担当者からのメール返信や電話で誠実さが感じられた。施工業者の雨のなか1日で完了してくれました。これから自分なりに棚の設置などして使いやすくします。
弊社スタッフの対応、工事の内容につきまして、ご満足のお声を頂戴し、誠に有り難うございます。シンプルなデザインのレイナポートグラン 延長タイプが周りの風景に溶け込み、違和感のないお仕上がりでございますね。冬場のフロントガラスの凍結も軽減され、お車を利用しやすくなるものと存じます。今後益々精進して参りますので、また機会がございましたら、是非弊社をご用命頂きますよう、宜しくお願い致します。この度のご利用、誠に有り難うございました。
当サイトは以下のセキュリティ機能や保護認定等を備えています。安心してお申し込みください
当サイトは256ビットSSL暗号化に対応しています。入力した個人情報は暗号化して送られますので、安心してご利用ください。
当社はJADMAの正会員です。同協会は法律で位置づけられた団体で、消費者の利益保護と業界の健全な発展の為に活動しています。
こちらの工事に使用しているエクステリア
![]()
アリュース 600タイプ 1台用 奥行延長セット

工事費・税込
197,300円〜
総合平均評価(星5つ評価)
4.81
商品レビュー数
52件
アリュース 600タイプ 1台用 奥行延長セットはアリュース 600タイプ 1台用の奥行が広くなった片側支持スタイルのカーポートです。柱・梁は高強度T6アルミニウム合金が使われており、基準風速Vo=34m/s・耐積雪性能20cmの性能を保持しています。
この商品の詳細へ
無料お見積り・現場調査・ご注文もこちら
この商品のレビュー
商品レビュー52件

長野県 小諸市 T.T.様
寸法を自分で測って注文したのでほぼ計画通りに出来たと思います。ただ、サイドパネルが透明だと思って注文したがすりガラスっぽく、それが予想外だった。

神奈川県 平塚市 N.J.様
実際に設置するまで写真しか見れなかったため、色合いなど心配していましたが、写真と変わらない印象でとても良かったです。

東京都 国分寺市 I.T.様
とてもしっかりした作り。柱の位置に融通が利くので既存の構造物を避けられる。

兵庫県 加東市 H.S.様
以前設置したテラス屋根と同じ色で揃えられて良かった。

奈良県 奈良市 F.K.様
車および自転車をカーポートの屋根がかぶる範囲で置くことができたので、とてもよかった。

和歌山県 和歌山市 M.T.様
思っていたより、どっしりとした感じでたいへん気に入っています。

宮城県 気仙沼市 S.Y.様
倉庫にかかるよう商品を選んだが、開け閉めの際に予想より雨が入らず満足している。

兵庫県 加古郡稲美町 Y.Y.様
購入前に商品を見ていなかったので、強度面やカラー(天板含む)が少し不安でしたが、出来上がりを見て、しっかりした作りで安心しました。また、シルバー色の構造体や天板の薄いブルー色は品があって私好みでした。

千葉県 印西市 K.M.様
価格と性能のバランスがよいと感じる、色もよい。

群馬県 高崎市 O.T.様
車とバイクの両方の置き場所を設置したいと思っていたところ、サイズも価格もちょうど良く満足しております。

徳島県 阿南市 A.T.様
風速5メ-トル位でも想像以上の揺れがあり心配

茨城県 つくばみらい市 N.H.様
商品に関してはイメージ通りで非常に満足です。高さの設定に悩みましたが、施工の際いろいろアドバイスいただけて、納得して決める事が出来ました。

愛知県 一宮市 M.T.様
満足しています!色をホワイトにしたので玄関が暗くなりにくいのは良かった。又、近所の方にカーポートを付けると車に霜がかからないから、冬はフロントガラスが凍らないからいいよと言われました。

神奈川県 横浜市 M.T.様
商品にはとても満足しています。本来車両2台分のカーポートにしようと思いましたが、柱の位置に水洗が埋め込まれていた為、それを回避する為中途半端ですが車両1.5台分の延長型のカーポートにしました。唯一の不満は真ん中の柱が丁度車両のドア位置に来るため、開閉時に接触する懸念がある点です。

兵庫県 神戸市 H.K.様
暑さはかなり軽減されました。 もう少し日光の眩しさはないのかと思っていましたが、そうでもなかった。

兵庫県 神戸市 U.Y.様
これまでと比べて高さがあるので圧迫感もなく、幅も広くなり建物との隙間も少なくなった。車の乗り降り時に雨に濡れることが少なくなった。見た目もきれい。
関連するお客様の声

5つ星のうち4
大阪府T.T. 様回答日:2014年6月
施工当日は雨が降りそうななか1日で素早く施工していだきありがとうございました。下見と施工当日では色々相談しながら決めれた事が良かったです。大変気にいるものができて満足しています。また、別物の時も頼みたいと思います。

5つ星のうち4
静岡県N.H. 様回答日:2021年3月
ほしいカーポートをネットで探していたらエクスショップのページに辿り着きました。担当の方の対応が早く、誠実さを感じ、頼みました。

5つ星のうち4
福島県T.M. 様回答日:2020年12月
仕事をしていると、自分からなかなか連絡できないことが多いのですが、対応がメール、電話とも早く、とても助かりました。雪が降る前にカーポートの設置が完了してとても助かりました。

5つ星のうち5
奈良県O.S. 様回答日:2013年7月
やはり最初は、ぜんぜん知らないところなので不安が少しありましたが担当者の方の笑顔の写真が掲載されてたことと、見積もりに来られた方の誠実さで、とても安心しました。丁寧なお仕事で、とても満足しております。

5つ星のうち5
愛知県O.T. 様回答日:2015年2月
購入、施工をネットでやり取りする事について多少の不安が有ったが、電話対応やメール返信が親切かつスピーディーで非常に満足しております。

5つ星のうち5
埼玉県N.H. 様回答日:2011年7月
ネットでの注文という便利さはあるものの、やはり顔が見えないという不安はありました。しかし素早く明瞭なメール返信、見積もり後の、再見積もりなども快く応じていただき感謝しています。当日の施工も一日ですべてが完了し、とても満足しています。

5つ星のうち4
兵庫県Y.K. 様回答日:2013年3月
ネットで申し込んだのですが、すぐにメール返信と電話があり、対応が迅速でした。その後事前調査と見積もり受領へと進み、工事は丁寧な施工で好感が持てました。

5つ星のうち5
兵庫県M.S. 様回答日:2014年1月
価格も安いが、メールの対応、迅速、また誠実さに感心しお願いしました。担当業者さんも感じが良く丁寧に工事してもらい、大変満足しております。

5つ星のうち5
奈良県F.K. 様回答日:2024年11月
カーポートに関しては、車はもちろんのこと自転車が雨ざらしの状態であったため、雨、直射日光を防ぐために設置したかった。フェンスは家の横が歩行者専用道路になっており、歩行者の目線的にちょうど家の中が見えてしまう状態であったので、目隠しのために設置したかった。

5つ星のうち5
愛知県M.T. 様回答日:2024年10月
年齢的に今後、楽に生活出来るように少しずつ変えていきたいと思ったのがきっかけです。ウッドデッキについては、一階に寝室がある為、布団干しをするのに便利になりました。又、カーポートは雨の時の出入りが楽になった。雪かきが楽になる。自転車も濡れなくなった。

5つ星のうち4
群馬県M.N. 様回答日:2024年9月
新車購入にあたり新たにカーポートの設置の検討を始め、ご対応いただいた内容から他社よりも信頼できそうだと感じ依頼する事とした。契約から工事まで少し時間が空いてしまったが、施工業者さんは人柄も良くとても丁寧な仕事ぶりで安心してお任せする事ができた。

5つ星のうち5
埼玉県U.S. 様回答日:2024年2月
見積もりに来てくださった方の対応がとても良かったこと、見積もりもとてもわかり易く表示してあり、信頼できると思いました。また、エクスショップの担当の方が丁寧に対応して頂けたのと施工業者の方も分かりやすく説明いただき、対応も丁寧にして頂けたのが良かったです。

5つ星のうち5
岡山県M.A. 様回答日:2023年7月
今度新車を購入するのに、炎天下では、車が焼けるので、カーポートを設置したかったので。色々ネットでみて、ホームセンターをみてみましたが、エクスショップさんが1番でした。現場を見ていただいて見積もりをいただいて、バッチリでした。工事を担当していただいた業者さんも、暑い中、頑張っていただきました。本当にありがとうございました。
関連するブログ記事
関連するよくあるご質問
カーポートの設置と一緒に土間コンクリートを打設できますか?
【商品カテゴリ >カーポート】(ご質問No.707)
既存のカーポート屋根材の張り替えの依頼はできますか?
【商品カテゴリ >カーポート】(ご質問No.21)
以前購入したカーポートの部品のみを追加で購入する事は可能ですか?
【商品カテゴリ >カーポート】(ご質問No.48)
ワイドタイプのカーポートですが、横幅の切り詰めは可能ですか?
【商品カテゴリ >カーポート】(ご質問No.69)
カーポートって何ですか?
【商品カテゴリ >カーポート】(ご質問No.28910)
既存のカーポートの柱の高さを桁上げする事は可能ですか?
【商品カテゴリ >カーポート】(ご質問No.43)
既存のカーポートをいったん解体し、再度組み立てることは可能ですか?
【商品カテゴリ >カーポート】(ご質問No.46)
四国化成のFリードカーポート収納庫付きタイプは取り扱ってますか?
【商品カテゴリ >カーポート】(ご質問No.74)
既存カーポートの支柱を流用して、増設、縦列2台用のカーポートを設置することは可能ですか?
【商品カテゴリ >カーポート】(ご質問No.84)
四国化成のマイポートneoの取り扱いはありますか?
【商品カテゴリ >カーポート】(ご質問No.88)


















