バイク・自転車を雨風から保護
お家の収納能力をアップ
ガレージの保全・防犯にカーポートと合わせて
お庭に機能的スペースを作り出します
防犯、お家のドレスアップはこれで決まり
ガレージ商品とコンビで高級感を演出
各取扱メーカーの会社名、ロゴ及び商品名等は各社の商標または登録商標です。
| 日 | 月 | 火 | 水 | 木 | 金 | 土 |
|---|---|---|---|---|---|---|
| 1 | 2 | 3 | 4 | 5 | 6 | |
| 7 | 8 | 9 | 10 | 11 | 12 | 13 |
| 14 | 15 | 16 | 17 | 18 | 19 | 20 |
| 21 | 22 | 23 | 24 | 25 | 26 | 27 |
| 28 | 29 | 30 | 31 |
| 日 | 月 | 火 | 水 | 木 | 金 | 土 |
|---|---|---|---|---|---|---|
| 1 | 2 | 3 | ||||
| 4 | 5 | 6 | 7 | 8 | 9 | 10 |
| 11 | 12 | 13 | 14 | 15 | 16 | 17 |
| 18 | 19 | 20 | 21 | 22 | 23 | 24 |
| 25 | 26 | 27 | 28 | 29 | 30 | 31 |
…休業日(現場調査・工事は一部対応)
![]()
【受付時間】9:30 - 17:30(営業日)
![]()
【受付時間】9:30 - 17:30(営業日)
オペレーションスタッフ
エクステリアプランナー有資格者の私たちにお任せください。
ショップ責任者
神(じん)
エクステリア プランナー
有資格者61名
1/3
木附
枡田
重富
吉澤
吉野
小東
池本
山田
佐藤
白崎
新西
伊野
次田
浅川
南
西山
小林
梨田
長谷川
藤田
阿重田
村上
植松
内田
久田
小野
平戸
中島
長石
水口
榮
山崎
清水
室谷
安田
水谷
酒井
神吉
日下部
山中
深田
田中
水田
西田
一氏
岡本
北
坂本
中嶋
岩野
伊藤
上中
高山
竹本
犬井
佐伯
谷川
原
丸山
塚田
松本
上内
島田
森
梅田
松山
山本
小林
倉地
山根
中原
河野
村上
土井
岩破
南
井上
三ツ股
小田
依藤
永禮
林
加藤
石藤
駒井
末吉
山本
芦野
樽井
野上
岡田
木村
池田
西村
藤澤
達川
奥原
那須
小西
森下
1/3
今週のPick Upページ
![]()
ご利用頂いたお客様の口コミ・レビューを「お客様の声」として掲載しております。
全てのご感想を掲載しておりますので、エクスショップの評判としてご参考ください。
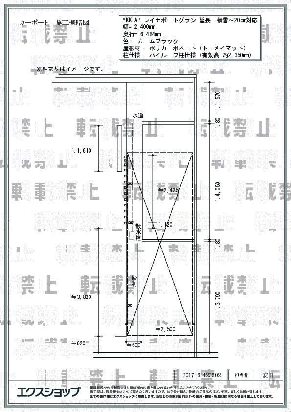
正式お見積りと一緒に提出させて頂いております「工事概略図面」もご覧頂けます。
商品や設置場所のご検討にお役立てください。
(写真No:44146449)
(カーポート)
| カラー | カームブラック |
|---|---|
| サイズ | 幅 2,400mm 奥行 6,484mm |
| 屋根高等 | ハイルーフ柱仕様(有効高 約2,350mm) |
| 屋根材等 | ポリカーボネート(トーメイマット) |
| 工事方法 | 地域密着あんしん施工 |
雨の日に子どもの乗り降りが大変で、購入を検討。設置したおかげで、乗せる際に大人が濡れずに済むのでストレスが減りました。エクスショップさんは、施工は地元の工務店さんなので、安心して任せることができました。営業の方も丁寧に対応していただき好印象でした。
レイナポートグラン 延長タイプの施工をご依頼頂きまして、誠に有り難うございます。カームブラックのフレームとポリカーボネート(トーメイマット)の屋根のカーポートのスタイリッシュな外観が、ご自宅の雰囲気ともマッチしてございますね。雨の日の乗り降りの煩わしさが解消されるだけでなく、お車の汚れや傷みも軽減されるものと存じます。今後も変わらず、お客様の満足の為に精進して参りますので、また機会がございましたら、お気軽にエクスショップにご用命くださいますよう宜しくお願い致します。
当サイトは以下のセキュリティ機能や保護認定等を備えています。安心してお申し込みください
当サイトは256ビットSSL暗号化に対応しています。入力した個人情報は暗号化して送られますので、安心してご利用ください。
当社はJADMAの正会員です。同協会は法律で位置づけられた団体で、消費者の利益保護と業界の健全な発展の為に活動しています。
こちらの工事に使用しているエクステリア
![]()
アリュース 600タイプ 1台用 奥行延長セット

工事費・税込
197,300円〜
総合平均評価(星5つ評価)
4.81
商品レビュー数
52件
アリュース 600タイプ 1台用 奥行延長セットはアリュース 600タイプ 1台用の奥行が広くなった片側支持スタイルのカーポートです。柱・梁は高強度T6アルミニウム合金が使われており、基準風速Vo=34m/s・耐積雪性能20cmの性能を保持しています。
この商品の詳細へ
無料お見積り・現場調査・ご注文もこちら
この商品のレビュー
商品レビュー52件

長野県 小諸市 T.T.様
寸法を自分で測って注文したのでほぼ計画通りに出来たと思います。ただ、サイドパネルが透明だと思って注文したがすりガラスっぽく、それが予想外だった。

神奈川県 平塚市 N.J.様
実際に設置するまで写真しか見れなかったため、色合いなど心配していましたが、写真と変わらない印象でとても良かったです。

東京都 国分寺市 I.T.様
とてもしっかりした作り。柱の位置に融通が利くので既存の構造物を避けられる。

兵庫県 加東市 H.S.様
以前設置したテラス屋根と同じ色で揃えられて良かった。

奈良県 奈良市 F.K.様
車および自転車をカーポートの屋根がかぶる範囲で置くことができたので、とてもよかった。

和歌山県 和歌山市 M.T.様
思っていたより、どっしりとした感じでたいへん気に入っています。

宮城県 気仙沼市 S.Y.様
倉庫にかかるよう商品を選んだが、開け閉めの際に予想より雨が入らず満足している。

兵庫県 加古郡稲美町 Y.Y.様
購入前に商品を見ていなかったので、強度面やカラー(天板含む)が少し不安でしたが、出来上がりを見て、しっかりした作りで安心しました。また、シルバー色の構造体や天板の薄いブルー色は品があって私好みでした。

千葉県 印西市 K.M.様
価格と性能のバランスがよいと感じる、色もよい。

群馬県 高崎市 O.T.様
車とバイクの両方の置き場所を設置したいと思っていたところ、サイズも価格もちょうど良く満足しております。

徳島県 阿南市 A.T.様
風速5メ-トル位でも想像以上の揺れがあり心配

茨城県 つくばみらい市 N.H.様
商品に関してはイメージ通りで非常に満足です。高さの設定に悩みましたが、施工の際いろいろアドバイスいただけて、納得して決める事が出来ました。

愛知県 一宮市 M.T.様
満足しています!色をホワイトにしたので玄関が暗くなりにくいのは良かった。又、近所の方にカーポートを付けると車に霜がかからないから、冬はフロントガラスが凍らないからいいよと言われました。

神奈川県 横浜市 M.T.様
商品にはとても満足しています。本来車両2台分のカーポートにしようと思いましたが、柱の位置に水洗が埋め込まれていた為、それを回避する為中途半端ですが車両1.5台分の延長型のカーポートにしました。唯一の不満は真ん中の柱が丁度車両のドア位置に来るため、開閉時に接触する懸念がある点です。

兵庫県 神戸市 H.K.様
暑さはかなり軽減されました。 もう少し日光の眩しさはないのかと思っていましたが、そうでもなかった。

兵庫県 神戸市 U.Y.様
これまでと比べて高さがあるので圧迫感もなく、幅も広くなり建物との隙間も少なくなった。車の乗り降り時に雨に濡れることが少なくなった。見た目もきれい。
関連するお客様の声

5つ星のうち4
東京都T.M. 様回答日:2016年10月
子どもが小さいので、雨の日の車の乗り降りが大変であったため、設置をお願いしました。設置後、雨にうたれる事なく、乗り降りでき、大変助かっております。

5つ星のうち5
愛知県W.K. 様回答日:2017年11月
駐車場に屋根がなく、雨の日は車の乗り降りが大変でした。子どもが産まれるということもあり、カーポートを設置することにしました。

5つ星のうち4
埼玉県S.S. 様回答日:2019年7月
雨が降った際、車の乗り降りがストレスなくできるようになった。エクスショップさんには、こちらの要望に対して親切に対応してもらいました。

5つ星のうち5
大分県K.H. 様回答日:2012年5月
エクスショップさんの対応が迅速であったので、安心して頼めました。また、工務店さんの応対も親切で,大変よかったと思います。

5つ星のうち5
静岡県A.A. 様回答日:2022年1月
小さい子どもがいるので車の乗り降りで雨に濡れたくなかったので購入しました。雨が降っても慌てなくてよくなりとても満足です。

5つ星のうち5
千葉県M.M. 様回答日:2015年1月
雨風などから車を守るため、雨天時などに車の乗り降りを楽にするためにカーポートを購入しました。設置してから、車が汚れにくくなったことはもちろん、雨に濡れず車の乗り降りができるようになって、大人も子どもも大助かりです。

5つ星のうち5
高知県K.T. 様回答日:2015年4月
雨に濡れないように設置を決めました。こんなに安く設置できて良かったと思います。おかげで、雨の日でも濡れずに車に乗り降り出来そうです。

5つ星のうち5
大分県I.H. 様回答日:2020年10月
子どもが増え、雨の日のカーポートがない状態での乗り降りが大変になってきたため購入を考えました。設置前と比較して、落ち着いて乗り降りが出来るので大変助かっています。

5つ星のうち4
滋賀県S.N. 様回答日:2017年10月
今回、カーポートの設置で以前は車の乗り降りの際に、雨に濡れていましたが、カーポートを設置したおかげで、雨にも濡れることなく、車の乗り降りが出来るようになり、大変満足しています。子供も小さいので、大変助かっています。

5つ星のうち5
兵庫県I.T. 様回答日:2013年12月
見積りから施工までストレス無くスムーズでした、営業の方の電話対応も丁寧でしたし、施工の方も丁寧な仕事をされていました、依頼して良かったと思います。
関連するブログ記事
関連するよくあるご質問
カーポートの設置と一緒に土間コンクリートを打設できますか?
【商品カテゴリ >カーポート】(ご質問No.707)
既存のカーポート屋根材の張り替えの依頼はできますか?
【商品カテゴリ >カーポート】(ご質問No.21)
以前購入したカーポートの部品のみを追加で購入する事は可能ですか?
【商品カテゴリ >カーポート】(ご質問No.48)
ワイドタイプのカーポートですが、横幅の切り詰めは可能ですか?
【商品カテゴリ >カーポート】(ご質問No.69)
カーポートって何ですか?
【商品カテゴリ >カーポート】(ご質問No.28910)
既存のカーポートの柱の高さを桁上げする事は可能ですか?
【商品カテゴリ >カーポート】(ご質問No.43)
既存のカーポートをいったん解体し、再度組み立てることは可能ですか?
【商品カテゴリ >カーポート】(ご質問No.46)
四国化成のFリードカーポート収納庫付きタイプは取り扱ってますか?
【商品カテゴリ >カーポート】(ご質問No.74)
既存カーポートの支柱を流用して、増設、縦列2台用のカーポートを設置することは可能ですか?
【商品カテゴリ >カーポート】(ご質問No.84)
四国化成のマイポートneoの取り扱いはありますか?
【商品カテゴリ >カーポート】(ご質問No.88)


















