バイク・自転車を雨風から保護
お家の収納能力をアップ
ガレージの保全・防犯にカーポートと合わせて
お庭に機能的スペースを作り出します
防犯、お家のドレスアップはこれで決まり
ガレージ商品とコンビで高級感を演出
各取扱メーカーの会社名、ロゴ及び商品名等は各社の商標または登録商標です。
| 日 | 月 | 火 | 水 | 木 | 金 | 土 |
|---|---|---|---|---|---|---|
| 1 | 2 | 3 | 4 | 5 | 6 | |
| 7 | 8 | 9 | 10 | 11 | 12 | 13 |
| 14 | 15 | 16 | 17 | 18 | 19 | 20 |
| 21 | 22 | 23 | 24 | 25 | 26 | 27 |
| 28 | 29 | 30 | 31 |
| 日 | 月 | 火 | 水 | 木 | 金 | 土 |
|---|---|---|---|---|---|---|
| 1 | 2 | 3 | ||||
| 4 | 5 | 6 | 7 | 8 | 9 | 10 |
| 11 | 12 | 13 | 14 | 15 | 16 | 17 |
| 18 | 19 | 20 | 21 | 22 | 23 | 24 |
| 25 | 26 | 27 | 28 | 29 | 30 | 31 |
…休業日(現場調査・工事は一部対応)
![]()
【受付時間】9:30 - 17:30(営業日)
![]()
【受付時間】9:30 - 17:30(営業日)
オペレーションスタッフ
エクステリアプランナー有資格者の私たちにお任せください。
ショップ責任者
神(じん)
エクステリア プランナー
有資格者61名
1/3
木附
枡田
重富
吉澤
吉野
小東
池本
山田
佐藤
白崎
新西
伊野
次田
浅川
南
西山
小林
梨田
長谷川
藤田
阿重田
村上
植松
内田
久田
小野
平戸
中島
長石
水口
榮
山崎
清水
室谷
安田
水谷
酒井
神吉
日下部
山中
深田
田中
水田
西田
一氏
岡本
北
坂本
中嶋
岩野
伊藤
上中
高山
竹本
犬井
佐伯
谷川
原
丸山
塚田
松本
上内
島田
森
梅田
松山
山本
小林
倉地
山根
中原
河野
村上
土井
岩破
南
井上
三ツ股
小田
依藤
永禮
林
加藤
石藤
駒井
末吉
山本
芦野
樽井
野上
岡田
木村
池田
西村
藤澤
達川
奥原
那須
小西
森下
1/3
今週のPick Upページ
![]()
ご利用頂いたお客様の口コミ・レビューを「お客様の声」として掲載しております。
全てのご感想を掲載しておりますので、エクスショップの評判としてご参考ください。
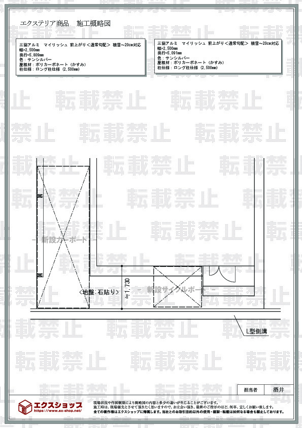
正式お見積りと一緒に提出させて頂いております「工事概略図面」もご覧頂けます。
商品や設置場所のご検討にお役立てください。
(写真No:20012021)
(カーポート)
| カラー | サンシルバー |
|---|---|
| サイズ | 幅 1,862mm 奥行 2,219mm |
| 屋根高等 | ロング柱仕様(有効高 約2,500mm) |
| 屋根材等 | ポリカーボネート(かすみ) |
| 工事方法 | 地域密着あんしん施工 |
本当によかったと思っております。
マイリッシュの施工を2カ所にご依頼頂きまして、誠に有り難うございます。施工する場所に応じて、通常勾配と逆勾配を使い分けることにより、雨じまいもよく、ご満足頂けるものと存じます。スタイリッシュな雰囲気が、ご自宅の外観と見事に調和してございますね。これからも、お客様の笑顔の為に、日々努力して参りたいと存じますので、また、機会がございましたら、是非エクスショップをご利用頂けますよう、宜しくお願い致します。
当サイトは以下のセキュリティ機能や保護認定等を備えています。安心してお申し込みください
当サイトは256ビットSSL暗号化に対応しています。入力した個人情報は暗号化して送られますので、安心してご利用ください。
当社はJADMAの正会員です。同協会は法律で位置づけられた団体で、消費者の利益保護と業界の健全な発展の為に活動しています。
こちらの工事に使用しているエクステリア
![]()
ニューマイリッシュ 逆勾配 前下がり

工事費・税込
280,500円〜
総合平均評価(星5つ評価)
4.76
商品レビュー数
66件
軽快でモダンな印象を放つスタイリッシュカーポート。サイズも豊富にそろえ、門まわりから車庫まわりまでトータルコーディネートできます。限られた敷地への設置や所有される車が小さめの場合におすすめする、コンパクトなサイズを用意しています。
この商品の詳細へ
無料お見積り・現場調査・ご注文もこちら
この商品のレビュー
商品レビュー66件

静岡県 周智郡森町 I.T.様
施工会社も丁寧で高さもちゃんと調整してくれて本当に良かったです。

神奈川県 秦野市 K.E.様
しっかりした作りで少々の風ではビクともしなそう。

宮城県 仙台市 S.K.様
着工して一週間位の大雪で25cmくらい積り心配でしたが、しっかりした工事でびくともしませんでした。

埼玉県 さいたま市 S.K.様
家の形状と色合いに合わせたものを選ぶことが出来ました。大変満足しています。後方支持型→カーブ状の側方支持型→ストレート状の側方支持型と、考えが変化していきましたが、これに決めて良かったと思っています。

兵庫県 尼崎市 K.M.様
駐車スペースが狭く、条件が合うものがないか心配していましたが、ニーズに合うものがあって助かりました。

京都府 京都市 T.Y.様
前下がりのデザインも良く、雨の吹き込みも少なくなると思います。

熊本県 人吉市 B.S.様
ハイロング柱を選びましたが、家と あっていて、かっこいい感じに 仕上がっている。

埼玉県 さいたま市 K.H.様
スペースいっぱいまで屋根が設置できたので車だけでなく通路としての雨除けになる。

埼玉県 朝霞市 S.T.様
逆勾配で割高ですが、隣地に迷惑かからないようにした結果なので満足しています。

東京都 西多摩郡日の出町 S.Y.様
梁が特徴的なフラットルーフの逆勾配と言う事で見た目が非常に気に入っております。

京都府 京都市 T.H.様
自転車が濡れなくなりとても快適です。ご近所からも色が涼しげだと好評でした。

京都府 京都市 T.H.様
ポスト前まで屋根があるので雨の日本当に快適です。

岡山県 倉敷市 H.A.様
黒にポリカーボネートは霞だったのですが、ブルーがかって見えます。熱線遮断に期待大です。

東京都 江戸川区 N.S.様
幅を一番広い3432mmで依頼しました。大きすぎるかと思いましたが、車へ乗り込む時を考えると必要なサイズで、家の窓のサイズともあっていたので良かったです。

熊本県 菊池郡菊陽町 K.G.様
柱を片側にして車を止めやすくしたいのと建物側に雨を落としたくない為、(敷地の形状から)逆勾配にしたいという2点を満たせて満足してます。安っぽく見えないのも良かったです。

兵庫県 明石市 A.M.様
概ね満足だが、柱を取り付ける為に床面に穴を開けていたが、中央ではなく端によっていることから、コンクリートの強度がもつのか心配です。今後も継続してコンクリート割れがないか確認します。

神奈川県 横浜市 O.R.様
屋根のフレームが少し変わった形状をしているのがこの商品の特徴であり、メインフレームとサブフレームの間にスペースがあります。よって、フレームに穴を開けることなくライト等を容易に設置出来る優れものです。

東京都 杉並区 S.H.様
標準柱の高さが2,200mmと他社に比べ高く、ワンボックスでも余裕がありました。

千葉県 松戸市 N.H.様
家族の評判は上々です。私自身も満足しています。

千葉県 船橋市 S.T.様
逆勾配の製品は2物件しかなく、そのなかでも本製品は雨樋等設置場所も考慮され良いものであるとの印象です。

兵庫県 神戸市 K.M.様
友人に自慢したら、エクスショップに依頼すると言っていました。

京都府 京田辺市 O.K.様
商品自体はスタイリッシュでカッコよく気に入っています。設置工事・仕上がりも問題無く、期待通りでした。
関連するお客様の声

5つ星のうち5
三重県O.T. 様回答日:2022年4月
数年に一度は、大雪が降るので、逆勾配で隣の家に迷惑をかけない為、この商品を選んだ。施工翌日に雨降ったが、快適に車の乗り降りが出来た。2日の工期予定だったのに、朝9じから午後3時で全て完了したのには驚いた。施工業者に恵まれ後半は、4名で作業をしてくれました。

5つ星のうち5
東京都H.H. 様回答日:2017年6月
新居購入に伴いカーポート設置を検討してました。幅広のものを選んだので運転席、助手席両方から雨に濡れずに乗り降りできるようになりました。もちろんクルマの雨よけとしても。洗車してもきれいな状態が続いてます。良いものを提供していただき、本当にありがとうございました。

5つ星のうち5
神奈川県O.M. 様回答日:2016年12月
エクスショップには急な寸法の変更に対応して頂き また 工事をして頂いた職人さんには取り付け場所の変更にも当日対応して頂きありがとうございました 出来上がりは自分の思い描いたとうりで大変満足しています エクスショップにお願いして良かったと思っております

5つ星のうち5
東京都I.T. 様回答日:2016年6月
新製品であったこと(三協アルミ社 ニューマイリッシュ)、屋根の高さが低すぎず・高すぎずの2,200mmの設定があったことが良かったです。工事により屋内のプライバシーも向上でき、非常に満足です。エクスショップの良さは価格だけでなく、豊富な情報量と明確な見積にあると思います。

5つ星のうち5
京都府I.Y. 様回答日:2014年7月
勝手口から雨に当たらずに外に出られるような位置で、かつ、既存の設備に干渉しないよう、微妙な位置での設置をお願いしておりました。事前の打ち合わせの段階で、住宅の設計士と十分に打ち合わせしていただき、要望通りに施工していただけました。値段以外の部分でもとても満足しています。

5つ星のうち5
愛知県A.M. 様回答日:2025年9月
ずっとカーポートが付けたかったけど、どうしてもいるものではなかったので後回しになっていた。年々猛暑が続いていた事がきっかけです。暑い日に乗った最初の車内の温度が低く感じられて、つけて良かったと思った。小雨の時の車の汚れが防げるといいなと思っています。

5つ星のうち5
静岡県G.M. 様回答日:2025年4月
昨年購入した車両は高さが2,250mmあり構造的にルーフには乗れず、洗車がとても大変で苦労していました。現在3連のカーポートはありますが高さが2,400mmの所があり納まりません。高さがクリアーできるカーポートを探した所エクスショップに辿り着きました。価格、保証等説明を聞き、クチコミにも後押しされ決めさせて頂きました。現地調査も準則にして頂き設置も近くの業者様により、2日で完了しました。設置後雨が降りましたが、車両が濡れないため雨垂れ等無くとても満足しております。また機会がありましたらその際は是非お願いしたいと思います。大変有り難う御座いました。

5つ星のうち5
長野県N.Y. 様回答日:2025年4月
友人の話を聞いて購入を考えました。初めてのマイホームということもあり、また積雪も多い地域であったことから、カーポートをつけたいと考えていました。今回購入したことで車に積もった雪を降ろすことなく快適に乗車できそうなので大変助かります。購入してよかったです。ありがとうございました。
関連するブログ記事
関連するよくあるご質問
カーポートの設置と一緒に土間コンクリートを打設できますか?
【商品カテゴリ >カーポート】(ご質問No.707)
既存のカーポート屋根材の張り替えの依頼はできますか?
【商品カテゴリ >カーポート】(ご質問No.21)
以前購入したカーポートの部品のみを追加で購入する事は可能ですか?
【商品カテゴリ >カーポート】(ご質問No.48)
ワイドタイプのカーポートですが、横幅の切り詰めは可能ですか?
【商品カテゴリ >カーポート】(ご質問No.69)
カーポートって何ですか?
【商品カテゴリ >カーポート】(ご質問No.28910)
既存のカーポートの柱の高さを桁上げする事は可能ですか?
【商品カテゴリ >カーポート】(ご質問No.43)
既存のカーポートをいったん解体し、再度組み立てることは可能ですか?
【商品カテゴリ >カーポート】(ご質問No.46)
四国化成のFリードカーポート収納庫付きタイプは取り扱ってますか?
【商品カテゴリ >カーポート】(ご質問No.74)
既存カーポートの支柱を流用して、増設、縦列2台用のカーポートを設置することは可能ですか?
【商品カテゴリ >カーポート】(ご質問No.84)
四国化成のマイポートneoの取り扱いはありますか?
【商品カテゴリ >カーポート】(ご質問No.88)


















