バイク・自転車を雨風から保護
お家の収納能力をアップ
ガレージの保全・防犯にカーポートと合わせて
お庭に機能的スペースを作り出します
防犯、お家のドレスアップはこれで決まり
ガレージ商品とコンビで高級感を演出
各取扱メーカーの会社名、ロゴ及び商品名等は各社の商標または登録商標です。
| 日 | 月 | 火 | 水 | 木 | 金 | 土 |
|---|---|---|---|---|---|---|
| 1 | 2 | 3 | 4 | 5 | 6 | |
| 7 | 8 | 9 | 10 | 11 | 12 | 13 |
| 14 | 15 | 16 | 17 | 18 | 19 | 20 |
| 21 | 22 | 23 | 24 | 25 | 26 | 27 |
| 28 | 29 | 30 | 31 |
| 日 | 月 | 火 | 水 | 木 | 金 | 土 |
|---|---|---|---|---|---|---|
| 1 | 2 | 3 | ||||
| 4 | 5 | 6 | 7 | 8 | 9 | 10 |
| 11 | 12 | 13 | 14 | 15 | 16 | 17 |
| 18 | 19 | 20 | 21 | 22 | 23 | 24 |
| 25 | 26 | 27 | 28 | 29 | 30 | 31 |
…休業日(現場調査・工事は一部対応)
![]()
【受付時間】9:30 - 17:30(営業日)
![]()
【受付時間】9:30 - 17:30(営業日)
オペレーションスタッフ
エクステリアプランナー有資格者の私たちにお任せください。
ショップ責任者
神(じん)
エクステリア プランナー
有資格者61名
1/3
木附
枡田
重富
吉澤
吉野
小東
池本
山田
佐藤
白崎
新西
伊野
次田
浅川
南
西山
小林
梨田
長谷川
藤田
阿重田
村上
植松
内田
久田
小野
平戸
中島
長石
水口
榮
山崎
清水
室谷
安田
水谷
酒井
神吉
日下部
山中
深田
田中
水田
西田
一氏
岡本
北
坂本
中嶋
岩野
伊藤
上中
高山
竹本
犬井
佐伯
谷川
原
丸山
塚田
松本
上内
島田
森
梅田
松山
山本
小林
倉地
山根
中原
河野
村上
土井
岩破
南
井上
三ツ股
小田
依藤
永禮
林
加藤
石藤
駒井
末吉
山本
芦野
樽井
野上
岡田
木村
池田
西村
藤澤
達川
奥原
那須
小西
森下
1/3
今週のPick Upページ
![]()
ご利用頂いたお客様の口コミ・レビューを「お客様の声」として掲載しております。
全てのご感想を掲載しておりますので、エクスショップの評判としてご参考ください。
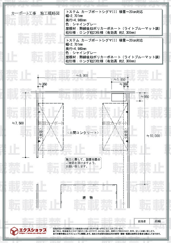
正式お見積りと一緒に提出させて頂いております「工事概略図面」もご覧頂けます。
商品や設置場所のご検討にお役立てください。
(写真No:23080726)
(カーポート)
| カラー | シャイングレー |
|---|---|
| サイズ | 幅 2,701mm 奥行 4,980mm |
| 屋根高等 | ロング柱23仕様(有効高 約2,300mm) |
| 屋根材等 | 熱線吸収ポリカーボネート(ライトブルーマット調) |
| 工事方法 | 地域密着あんしん施工 |
最初は出来上がりが不安だったが、工事がおわったら、満足100%でした。エクスショップを選んで良かったです。
この度は、カーブポートシグマIIIの施工ご依頼を頂き誠に有り難うございます。2台のカーポートが綺麗に収まり、スタイリッシュな印象が素敵でございますね。ご満足頂けるお仕上がりとなり、施工士も担当スタッフも大変喜んでおります。今後も、お客様にご満足頂ける様、日々精進して参りますので、又機会がございましたら是非エクスショップをご利用下さいますよう、宜しくお願い致します。
当サイトは以下のセキュリティ機能や保護認定等を備えています。安心してお申し込みください
当サイトは256ビットSSL暗号化に対応しています。入力した個人情報は暗号化して送られますので、安心してご利用ください。
当社はJADMAの正会員です。同協会は法律で位置づけられた団体で、消費者の利益保護と業界の健全な発展の為に活動しています。
こちらの工事に使用しているエクステリア
![]()
ネスカ R 1台用(ラウンドスタイル)

工事費・税込
137,800円〜
総合平均評価(星5つ評価)
4.71
商品レビュー数
1012件
ネスカ R 1台用(ラウンドスタイル)はラウンドタイプのアール屋根が特徴的な側方支柱カーポートです。本体カラーはシャイングレーを含めた全5色から、日差しからお車を守る屋根材は全6タイプ展開と種類に富む組み合わせが可能に。耐風性能は基準風速Vo=34m/s、耐積雪性能は20cm相当を対応しています。
この商品の詳細へ
無料お見積り・現場調査・ご注文もこちら
この商品のレビュー
商品レビュー1,012件

神奈川県 横須賀市 O.N.様
近所の方々からも、立派でかっこいいと言われています。

東京都 八王子市 S.N.様
とても満足しています。 ありがとうございました。

東京都 西東京市 F.N.様
大変満足しております。 思い切って、取り付けて良かったです。

奈良県 高市郡高取町 H.H.様
前回施工頂いたものがモデルチェンジしてましたが、問題なく感じてます。

愛知県 豊田市 U.R.様
商品の見た目はとても良いです、今のところ特に不満はありません。

大阪府 河内長野市 N.H.様
これまで支柱が4本あったのが2本になってすっきりです

茨城県 牛久市 T.Y.様
きれいで明るくなり近所の方も「頑丈そうね」と眺めていました。ロング柱が以外に高く強風だと吹き込みが予想以上でしたが背の高い1BOXも余裕で入りそうなので全体的に満足です。

大阪府 藤井寺市 Y.T.様
屋根材は透明色、適度に遮光され暗くありません。支柱高を有効高2500mmしたおかげで開放感があります。横殴りの雨でも濡れることはなく、支柱高を上げて良かったと思います。

大阪府 枚方市 N.T.様
まだ実際に利用していないので満足度は不明ですが、希望通りに施工していただけました。

東京都 小平市 H.T.様
屋根の色も白系の透明な屋根にしたので、昼間は明るく満足しています。

東京都 足立区 A.T.様
雨の吹き込みなどはまだ確認出来ていないが、見た目などに特に違和感なく問題なし。
関連するお客様の声

5つ星のうち3
千葉県S.T. 様回答日:2015年10月
カーポートを設置したおかげで、車の保護は勿論のこと、ご近所からの視界も多少防ぐことが出来るようになり大変満足しています。施工業者の方が見積り調査の時から我が家に合ういろいろなタイプのカーポートの提案をしてくれて、納得のいくものを設置出来たと思います。

5つ星のうち5
岡山県N.N. 様回答日:2015年9月
カーポートが古くなり、高さも低かったので検討していたところ、こちらのHPを拝見し検討、丁寧にメール連絡を取っていただいたこちらにお願いしました。施工工事担当の方々が見積段階から丁寧に対応してくださり、実際工事も既存撤去から仕上がりまで、工事状況を都度説明してくださいながら大変丁寧にしていただきました。実際仕上がったカーポートはとてもきれいで大満足です。ありがとうございました。

5つ星のうち5
静岡県K.Y. 様回答日:2015年5月
家の新築にあたりカーポートの設置を考えていたところ、エクスショップをネットで見つけて金額の安さに惹かれてお願いすることにしました。電話の対応や施工して頂いた方もとても感じが良く、大変満足です。また利用してみたいです。

5つ星のうち4
埼玉県H.T. 様回答日:2015年5月
商品の種類が豊富でカーポート、フェンス、ブロック塀の同時施工が可能だったためお願いした。担当スタッフの方、施工業者の方も丁寧でとても良かった。

5つ星のうち5
栃木県H.M. 様回答日:2015年4月
新築でガレージの設置を考えていたが、色や設置場所について悩んでいましたが施工会社の方にアドバイスを頂き使いやすい駐車場になりました。

5つ星のうち5
愛知県A.M. 様回答日:2025年9月
ずっとカーポートが付けたかったけど、どうしてもいるものではなかったので後回しになっていた。年々猛暑が続いていた事がきっかけです。暑い日に乗った最初の車内の温度が低く感じられて、つけて良かったと思った。小雨の時の車の汚れが防げるといいなと思っています。

5つ星のうち5
静岡県G.M. 様回答日:2025年4月
昨年購入した車両は高さが2,250mmあり構造的にルーフには乗れず、洗車がとても大変で苦労していました。現在3連のカーポートはありますが高さが2,400mmの所があり納まりません。高さがクリアーできるカーポートを探した所エクスショップに辿り着きました。価格、保証等説明を聞き、クチコミにも後押しされ決めさせて頂きました。現地調査も準則にして頂き設置も近くの業者様により、2日で完了しました。設置後雨が降りましたが、車両が濡れないため雨垂れ等無くとても満足しております。また機会がありましたらその際は是非お願いしたいと思います。大変有り難う御座いました。

5つ星のうち5
長野県N.Y. 様回答日:2025年4月
友人の話を聞いて購入を考えました。初めてのマイホームということもあり、また積雪も多い地域であったことから、カーポートをつけたいと考えていました。今回購入したことで車に積もった雪を降ろすことなく快適に乗車できそうなので大変助かります。購入してよかったです。ありがとうございました。
関連するブログ記事
関連するよくあるご質問
カーポートの設置と一緒に土間コンクリートを打設できますか?
【商品カテゴリ >カーポート】(ご質問No.707)
既存のカーポート屋根材の張り替えの依頼はできますか?
【商品カテゴリ >カーポート】(ご質問No.21)
以前購入したカーポートの部品のみを追加で購入する事は可能ですか?
【商品カテゴリ >カーポート】(ご質問No.48)
ワイドタイプのカーポートですが、横幅の切り詰めは可能ですか?
【商品カテゴリ >カーポート】(ご質問No.69)
カーポートって何ですか?
【商品カテゴリ >カーポート】(ご質問No.28910)
既存のカーポートの柱の高さを桁上げする事は可能ですか?
【商品カテゴリ >カーポート】(ご質問No.43)
既存のカーポートをいったん解体し、再度組み立てることは可能ですか?
【商品カテゴリ >カーポート】(ご質問No.46)
四国化成のFリードカーポート収納庫付きタイプは取り扱ってますか?
【商品カテゴリ >カーポート】(ご質問No.74)
既存カーポートの支柱を流用して、増設、縦列2台用のカーポートを設置することは可能ですか?
【商品カテゴリ >カーポート】(ご質問No.84)
四国化成のマイポートneoの取り扱いはありますか?
【商品カテゴリ >カーポート】(ご質問No.88)


















