工事情報
| 工事対応エリア | 対応地域 |
|---|
商品について
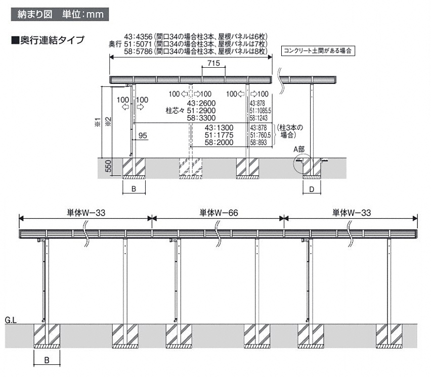
| 形状 | 複数台(2台・3台以上)用縦連棟タイプ |
|---|---|
| 積雪対応 | 〜20cmまで積雪対応 |
| 基準風速Vo | 34m |
| 保証 | 安心ダブル保証 |
| キャンペーン | 対象商品 |
サンシルバー+トラッドオーク
サンシルバー+クラフトチェリー
アーバングレー+トラッドオーク
アーバングレー+クラフトチェリー
商品規格
| 規格幅 | 3426mm |
|---|---|
| 規格奥行 | 8646mm / 10076mm / 11506mm |
| 屋根高タイプ | 標準柱仕様 (有効高 約2,200mm) / ロング柱仕様 (有効高 約2,500mm) / ハイロング柱仕様 (有効高 約2,800mm) |
工事費込み価格
(税込)
円〜
[メーカーカタログ商品価格(税込): 1,333,090円〜1,931,490円]
軽快でモダンな印象を放つスタイリッシュカーポート。サイズも豊富にそろえ、門まわりから車庫まわりまでトータルコーディネートできます。限られた敷地への設置や所有される車が小さめの場合におすすめする、コンパクトなサイズを用意しています。

ニューマイリッシュシリーズの魅力はなんと言ってもそのスタイリッシュさ。シンプルな構造ながらしっかりとした強度とデザイン性を兼ね備えたカーポートです。スタイリッシュに見せる技の特徴はやはり、「水平に伸びる梁」です。直角の美しい構造体のラインが他のメーカーのカーポートにはない美しさです。
バイク・自転車を雨風から保護
お家の収納能力をアップ
ガレージの保全・防犯にカーポートと合わせて
お庭に機能的スペースを作り出します
防犯、お家のドレスアップはこれで決まり
ガレージ商品とコンビで高級感を演出
各取扱メーカーの会社名、ロゴ及び商品名等は各社の商標または登録商標です。
| 日 | 月 | 火 | 水 | 木 | 金 | 土 |
|---|---|---|---|---|---|---|
| 1 | 2 | 3 | 4 | 5 | 6 | |
| 7 | 8 | 9 | 10 | 11 | 12 | 13 |
| 14 | 15 | 16 | 17 | 18 | 19 | 20 |
| 21 | 22 | 23 | 24 | 25 | 26 | 27 |
| 28 | 29 | 30 | 31 |
| 日 | 月 | 火 | 水 | 木 | 金 | 土 |
|---|---|---|---|---|---|---|
| 1 | 2 | 3 | ||||
| 4 | 5 | 6 | 7 | 8 | 9 | 10 |
| 11 | 12 | 13 | 14 | 15 | 16 | 17 |
| 18 | 19 | 20 | 21 | 22 | 23 | 24 |
| 25 | 26 | 27 | 28 | 29 | 30 | 31 |
…休業日(現場調査・工事は一部対応)
![]()
【受付時間】9:30 - 17:30(営業日)
![]()
【受付時間】9:30 - 17:30(営業日)
オペレーションスタッフ
エクステリアプランナー有資格者の私たちにお任せください。
ショップ責任者
神(じん)
エクステリア プランナー
有資格者61名
1/3
木附
枡田
重富
吉澤
吉野
小東
池本
山田
佐藤
白崎
新西
伊野
次田
浅川
南
西山
小林
梨田
長谷川
藤田
阿重田
村上
植松
内田
久田
小野
平戸
中島
長石
水口
榮
山崎
清水
室谷
安田
水谷
酒井
神吉
日下部
山中
深田
田中
水田
西田
一氏
岡本
北
坂本
中嶋
岩野
伊藤
上中
高山
竹本
犬井
佐伯
谷川
原
丸山
塚田
松本
上内
島田
森
梅田
松山
山本
小林
倉地
山根
中原
河野
村上
土井
岩破
南
井上
三ツ股
小田
依藤
永禮
林
加藤
石藤
駒井
末吉
山本
芦野
樽井
野上
岡田
木村
池田
西村
藤澤
達川
奥原
那須
小西
森下
1/3
今週のPick Upページ

![]()
ニューマイリッシュ 縦連棟 通常勾配 前上がり 6本柱仕様マテリアルカラー
| カラー | |
|---|---|
| サイズ | -/-/- |
| - | - |
| - | - |
| - | - |
この商品のキーワード














