工事情報
| 工事対応エリア | 全国対応 |
|---|
商品について
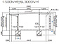
| 形状 | 複数台(2台・3台以上)用一体型タイプ |
|---|---|
| 積雪対応 | 〜50cmまで積雪対応 |
| 基準風速Vo | 44m |
| 保証 | 安心ダブル保証 |
| キャンペーン | 対象商品 |
ステンカラー
ブラックつや消し
ステンカラー+ブラックつや消し
商品規格
| 規格幅 | 8500mm |
|---|---|
| 規格奥行 | 5500mm / 6000mm |
| 屋根高タイプ | 標準高仕様(有効高 約2,300mm) / 延高仕様(有効高 約3,000mm) |
工事費込み価格
(税込)
円〜
[メーカーカタログ商品価格(税込): 1,150,710円〜1,342,990円]
積雪地にも安心して施工することができる積雪地対応カーポート。豪雪、強風にも耐える頑丈な四国化成の折板カーポートです。

この商品は公共用エクステリア商品で圧倒的なシェアを誇り、その商品強度は官公庁も認める逸品です。オプションで揺れを50%軽減する横揺れ軽減部材もご用意しております。
バイク・自転車を雨風から保護
お家の収納能力をアップ
ガレージの保全・防犯にカーポートと合わせて
お庭に機能的スペースを作り出します
防犯、お家のドレスアップはこれで決まり
ガレージ商品とコンビで高級感を演出
各取扱メーカーの会社名、ロゴ及び商品名等は各社の商標または登録商標です。
| 日 | 月 | 火 | 水 | 木 | 金 | 土 |
|---|---|---|---|---|---|---|
| 1 | ||||||
| 2 | 3 | 4 | 5 | 6 | 7 | 8 |
| 9 | 10 | 11 | 12 | 13 | 14 | 15 |
| 16 | 17 | 18 | 19 | 20 | 21 | 22 |
| 23 | 24 | 25 | 26 | 27 | 28 | 29 |
| 30 |
| 日 | 月 | 火 | 水 | 木 | 金 | 土 |
|---|---|---|---|---|---|---|
| 1 | 2 | 3 | 4 | 5 | 6 | |
| 7 | 8 | 9 | 10 | 11 | 12 | 13 |
| 14 | 15 | 16 | 17 | 18 | 19 | 20 |
| 21 | 22 | 23 | 24 | 25 | 26 | 27 |
| 28 | 29 | 30 | 31 |
…休業日(現場調査・工事は一部対応)
![]()
【受付時間】9:30 - 17:30(営業日)
![]()
【受付時間】9:30 - 17:30(営業日)
オペレーションスタッフ
エクステリアプランナー有資格者の私たちにお任せください。
ショップ責任者
神(じん)
エクステリア プランナー
有資格者61名
1/3
木附
枡田
重富
吉澤
吉野
小東
池本
山田
佐藤
白崎
新西
伊野
次田
浅川
南
西山
小林
梨田
長谷川
藤田
阿重田
村上
植松
内田
久田
小野
平戸
中島
長石
水口
榮
山崎
清水
室谷
安田
水谷
酒井
神吉
日下部
山中
深田
田中
水田
西田
一氏
岡本
北
坂本
中嶋
岩野
伊藤
上中
高山
竹本
犬井
佐伯
谷川
原
丸山
塚田
松本
上内
島田
森
梅田
松山
山本
小林
倉地
山根
中原
河野
村上
土井
岩破
南
井上
三ツ股
小田
依藤
永禮
林
加藤
石藤
駒井
末吉
山本
芦野
樽井
野上
岡田
木村
池田
西村
藤澤
達川
奥原
那須
小西
森下
1/3
今週のPick Upページ

![]()
レジストポートSG 1+2台用 積雪50cm 6本柱 折板
| カラー | |
|---|---|
| サイズ | -/-/- |
| - | - |
| - | - |
| - | - |














