工事情報
| 工事対応エリア | 全国対応 |
|---|
商品について
| 形状 | 複数台(2台・3台以上)用一体型タイプ |
|---|---|
| 積雪対応 | 〜20cmまで積雪対応 |
| 基準風速Vo | 36m |
| 保証 | 安心ダブル保証 |
| キャンペーン | 対象商品 |
オータムブラウン
シャイングレー
ナチュラルシルバー
商品規格
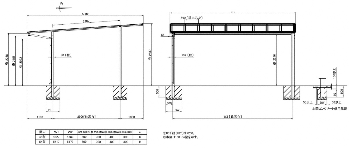
| 規格幅 | 4827mm / 5417mm |
|---|---|
| 規格奥行 | 5002mm |
| 屋根高タイプ | 標準柱仕様(有効高 約2,200mm) / ロング柱仕様(有効高 約2,500mm) |
工事費込み価格
(税込)
円〜
[メーカーカタログ商品価格(税込): 537,900円〜589,820円]
ソリッドポート ワイドは2台並列駐車が可能なスペースを確保した、中央に連結部がないワイドタイプのカーポートです。商品カラーは3種類あり、住宅外観に適したお色を選択いただけます。用途に合わせてサイドパネルを追加設置も可能です。

ソリッドポート ワイドは美しさと機能性を追求したスタイリッシュカーポートです。フラット屋根の直線ラインが際立つスタイルで、適度な開放感も感じられます。オプションのサイドパネルは車を横からの雨風から守るほか、目隠しパネルとしても効果的です。
総合評価5つ星のうち4.64.6
5つ星のうち4
徳島県I.H. 様
2024年4月
十年くらい前から予定はしていたのですが、最近チラシで他社メーカーの商品を見かけました。そこでネット検索していたところ、いろいろな製品を見かけ今回エクスショップさんで検討しました。熱線吸収ポリカーボネート(ブルーマットS・すりガラス調)は太陽光をかなり遮るので、夏季はカーポート下で作業をすればかなり涼しく感じられるかと思います。
5つ星のうち5
岐阜県S.C. 様
2024年4月
今までは車から降りる際に、雨だとちょっとぬれるな〜とは思っていたが、親が足が悪く、徐々にうまく歩けなくなり、最近は、ちょっとどころかびしょ濡れになってしまうので、屋根があったらいいなと思った所へ、ちょうど車を買い換えたので、「じゃあ思い切って一緒にカーポート作るかァ〜」となった。
5つ星のうち5
静岡県Y.M. 様
2024年2月
Youtubeでエクスショップを紹介している方がいた。初回見積り回答早いが、見積り内容の変更と工事着工日取り決めは実際に工事を行う工務店とエクスショップの調整があるので数日のタイムラグあるものの概ねスムーズに出来た。目隠しフェンスとカーポート設置は稼動4日程度で完成し、出来も満足できた。
5つ星のうち5
静岡県I.S. 様
2023年4月
雨の際の車の乗り降りが非常にしづらかったため前からカーポートを検討していましたが、なるべく安くしたいがどこに頼んでいいかわからなかったで、ネット検索で出てきてお値段も安そうなエクスショップさんにお願いしました。ついでに隣家とのフェンスが一部なかったので頼みましたが、他の工事とまとめてお願いできるのもいいですね。
5つ星のうち5
佐賀県B.H. 様
2022年12月
ハウスメーカーでテラスやサイクルポートの見積もりをお願いしたところ、値段が予想以上に高く、ホームセンターやネットショップを検討しました。こちらは商品が豊富で値段も安かったことが決め手になりました。カーポートのお陰で雨の日も濡れずに車に乗り降りでき、サイクルポートには自転車以外にもベビーカーなどを置けるので便利です。
5つ星のうち5
千葉県H.M. 様
2022年7月
以前よりカーポートの購入を検討していたところにこちらのサイトを発見し、見積りに来ていただいたところ対応・価格面で納得することが出来たので購入を決めました。駐車場にぴったりのサイズで設置していただいたので雨天時でも雨を気にせず乗降できるようになり満足しております。
5つ星のうち5
奈良県K.Y. 様
2022年4月
引っ越し後、妻はサンルームが欲しいと言い、私はガレージに屋根が必要かと思いましたが当時コロナ禍真っ只中、中々発注に踏み切れず工事はこの時期まで延びてしまいました。今までは雨が降れば洗車、洗濯物は2階ベランダまで運び乾燥、急な雨には慌てて濡れていないかの確認で大変でした。
5つ星のうち5
愛知県N.K. 様
2022年3月
購入の決め手となったのは、施工業者の丁寧かつ親切な説明が良かったからです。玄関前をフラットにしたことで、駐車スペースが増えて便利になり、カーポートは車の保護、又天候不良の日でもいろいろ作業ができるようになって快適です。不安があれば電話での対応もして頂きよかったです。
5つ星のうち5
神奈川県Y.H. 様
2022年1月
新築入居時から延ばし延ばしになっていたカーポートですが、分かっていたことではありますが雨天時の車の乗り降りのストレスは無くなりました。冬季に入り通勤用バイクの霜取りを毎朝していましたが、カーポートの空きスペースに停めることでこれも解消。良い事づくめです。
5つ星のうち4
茨城県K.M. 様
2021年9月
柱の設置位置や移動量などについて、施工業者の方がしっかり相談に乗ってくださったので良い仕上がりになったと思います。一方、基礎補強工事やハツリ工事など、見積シミュレーションで出てこなかったものが実際には追加されたため、予定より金額がかかってしまいました。注文側としては基礎補強が入る条件やハツリ工事の単価などがWebで明示されていると助かります。
5つ星のうち5
福岡県I.M. 様
2021年9月
今回、新車購入することになりカーポートを検討しようと思い、地場のお店やネットで色々価格含め調べました。結果的にエクスショップさんが1番安価でしたので決めました。施工の方も親切丁寧にいただき、総合的に満足です。また機会があったらエクスショップさんにお願いします。
5つ星のうち5
福島県M.A. 様
2020年10月
近所のカーポートの形が新しくて気に入ったので似たものをつけたくなった。荷物をドアを開けたまま雨にあたらずに運べるのがとても便利で快適。営業担当の方の対応の早さや丁寧さも満足だし、職人さんは打ち合わせから施工まで真摯に対応してくれて本当に信頼できると思った。
5つ星のうち4
栃木県K.Y. 様
2018年6月
今回はシャッターゲートと家の間に規格内のカーポートを切り詰めだけで建てる事が出来て良かった。家とカーポート間5cmシャッターゲート間5cmでしたがシャッターゲート側が数センチ広かったが、数センチ単位で建てるのは、施工現場を見ていて、この金額で建つのは有り難い。
5つ星のうち4
埼玉県Y.H. 様
2018年4月
現場調査の際に、施工の方に相談し、「クリアマット・すりガラス調」にしました。完成後、曇りの日でも明るくて良かったです。親切にアドバイスいただきました。一方、想像よりも横幅がやや狭く感じました。これは、数値で予めわかっていたことなので、自分のミスでした。
5つ星のうち4
広島県M.S. 様
2024年5月
周辺がスッキリした。
5つ星のうち5
愛知県K.M. 様
2024年5月
雨天時に車の乗り降りが楽になりました。ベランダの屋根は少しの雨なら外に洗濯物が干せるようになり、一日中戸を開けて換気ができるようになり大変助かりました。
5つ星のうち5
愛知県Y.C. 様
2024年5月
お客様からカーポートの注文があり購入しました。日程も繰り上げて頂き、大変助かりました。ありがとうございました。今後も購入機会があればお願いしたいと思います。
5つ星のうち5
滋賀県O.H. 様
2024年5月
雨の日に濡れずに自宅に入れるようになりました。
5つ星のうち5
福岡県O.A. 様
2024年5月
ネット上だけのやり取りは正直不安もあったけど、何度も親身に見積もりや質問に答えて頂き、お電話での対応もあり、安心でしました。カーポートの設置後子供も快適に車に乗せれるようになりました。
5つ星のうち4
長野県O.T. 様
2024年4月
トラクターや田苗機などの農機具を入れるために設置した。ワイドな設定のタイプがあり、スムーズな作業をすることができる。
5つ星のうち5
埼玉県W.K. 様
2024年4月
雨 風をよけて毎日の生活に大変満足して居ます。
5つ星のうち5
岐阜県Y.Y. 様
2024年4月
地元の施工会社が良い。梅雨や雨の日にはとても良い。
5つ星のうち5
京都府N.T. 様
2024年4月
YouTube。
5つ星のうち5
埼玉県F.E. 様
2024年4月
とてもスタイリッシュなおうちになりました。雑然としていたじてんしゃ、車、バイクたちがひとまとまりになりうれしいです。こまめにご連絡もいただけ安心しました。
5つ星のうち5
熊本県H.T. 様
2024年4月
ネット。
5つ星のうち5
広島県O.H. 様
2024年4月
丁寧な連絡もそうですが、施工スタッフがとても好感が持てました。
5つ星のうち5
岐阜県F.K. 様
2024年4月
雨の日の乗車が楽。
5つ星のうち5
埼玉県K.M. 様
2024年4月
熱線吸収タイプの屋根材にしたので、雨除けだけでなく車内温上昇も抑えられるのが良いです。デザインも、シンプルながら素晴らしいと思います。
5つ星のうち5
奈良県K.T. 様
2024年4月
いずれ設置しようとしてたカーポートを、設置してもらい雨の日が特に快適に過ごせている!
5つ星のうち5
茨城県T.Y. 様
2024年4月
雨や夜露などが無くなったので快適になりました。
バイク・自転車を雨風から保護
お家の収納能力をアップ
ガレージの保全・防犯にカーポートと合わせて
お庭に機能的スペースを作り出します
防犯、お家のドレスアップはこれで決まり
ガレージ商品とコンビで高級感を演出
各取扱メーカーの会社名、ロゴ及び商品名等は各社の商標または登録商標です。
| 日 | 月 | 火 | 水 | 木 | 金 | 土 |
|---|---|---|---|---|---|---|
| 1 | 2 | 3 | 4 | 5 | 6 | |
| 7 | 8 | 9 | 10 | 11 | 12 | 13 |
| 14 | 15 | 16 | 17 | 18 | 19 | 20 |
| 21 | 22 | 23 | 24 | 25 | 26 | 27 |
| 28 | 29 | 30 | 31 |
| 日 | 月 | 火 | 水 | 木 | 金 | 土 |
|---|---|---|---|---|---|---|
| 1 | 2 | 3 | ||||
| 4 | 5 | 6 | 7 | 8 | 9 | 10 |
| 11 | 12 | 13 | 14 | 15 | 16 | 17 |
| 18 | 19 | 20 | 21 | 22 | 23 | 24 |
| 25 | 26 | 27 | 28 | 29 | 30 | 31 |
…休業日(現場調査・工事は一部対応)
![]()
【受付時間】9:30 - 17:30(営業日)
![]()
【受付時間】9:30 - 17:30(営業日)
オペレーションスタッフ
エクステリアプランナー有資格者の私たちにお任せください。
ショップ責任者
神(じん)
エクステリア プランナー
有資格者61名
1/3
木附
枡田
重富
吉澤
吉野
小東
池本
山田
佐藤
白崎
新西
伊野
次田
浅川
南
西山
小林
梨田
長谷川
藤田
阿重田
村上
植松
内田
久田
小野
平戸
中島
長石
水口
榮
山崎
清水
室谷
安田
水谷
酒井
神吉
日下部
山中
深田
田中
水田
西田
一氏
岡本
北
坂本
中嶋
岩野
伊藤
上中
高山
竹本
犬井
佐伯
谷川
原
丸山
塚田
松本
上内
島田
森
梅田
松山
山本
小林
倉地
山根
中原
河野
村上
土井
岩破
南
井上
三ツ股
小田
依藤
永禮
林
加藤
石藤
駒井
末吉
山本
芦野
樽井
野上
岡田
木村
池田
西村
藤澤
達川
奥原
那須
小西
森下
1/3
今週のPick Upページ

![]()
ソリッドポート ワイド
| カラー | |
|---|---|
| サイズ | -/-/- |
| - | - |
| - | - |
| - | - |














