バイク・自転車を雨風から保護
お家の収納能力をアップ
ガレージの保全・防犯にカーポートと合わせて
お庭に機能的スペースを作り出します
防犯、お家のドレスアップはこれで決まり
ガレージ商品とコンビで高級感を演出
各取扱メーカーの会社名、ロゴ及び商品名等は各社の商標または登録商標です。
| 日 | 月 | 火 | 水 | 木 | 金 | 土 |
|---|---|---|---|---|---|---|
| 1 | 2 | 3 | 4 | 5 | 6 | 7 |
| 8 | 9 | 10 | 11 | 12 | 13 | 14 |
| 15 | 16 | 17 | 18 | 19 | 20 | 21 |
| 22 | 23 | 24 | 25 | 26 | 27 | 28 |
| 29 | 30 | 31 |
| 日 | 月 | 火 | 水 | 木 | 金 | 土 |
|---|---|---|---|---|---|---|
| 1 | 2 | 3 | 4 | |||
| 5 | 6 | 7 | 8 | 9 | 10 | 11 |
| 12 | 13 | 14 | 15 | 16 | 17 | 18 |
| 19 | 20 | 21 | 22 | 23 | 24 | 25 |
| 26 | 27 | 28 | 29 | 30 |
…休業日(現場調査・工事は一部対応)
![]()
【受付時間】9:30 - 17:30(営業日)
![]()
【受付時間】9:30 - 17:30(営業日)
オペレーションスタッフ
エクステリアプランナー有資格者の私たちにお任せください。
ショップ責任者
神(じん)
エクステリア プランナー
有資格者61名
1/3
木附
枡田
重富
吉澤
吉野
小東
池本
山田
佐藤
白崎
新西
伊野
次田
南
西山
小林
阿重田
梨田
長谷川
藤田
村上
平戸
植松
内田
久田
中島
長石
水口
榮
山崎
清水
室谷
安田
水谷
小野
酒井
一氏
神吉
日下部
山中
深田
田中
水田
西田
岡本
丸山
北
坂本
中嶋
岩野
伊藤
上中
高山
原
犬井
佐伯
谷川
塚田
松本
小林
森下
上内
島田
森
梅田
松山
山本
小西
倉地
山根
中原
河野
村上
土井
岩破
南
井上
三ツ股
小田
依藤
永禮
林
加藤
石藤
駒井
末吉
山本
芦野
樽井
野上
岡田
木村
池田
西村
藤澤
達川
奥原
那須
1/3
今週のPick Upページ
![]()
ご利用頂いたお客様の口コミ・レビューを「お客様の声」として掲載しております。
全てのご感想を掲載しておりますので、エクスショップの評判としてご参考ください。
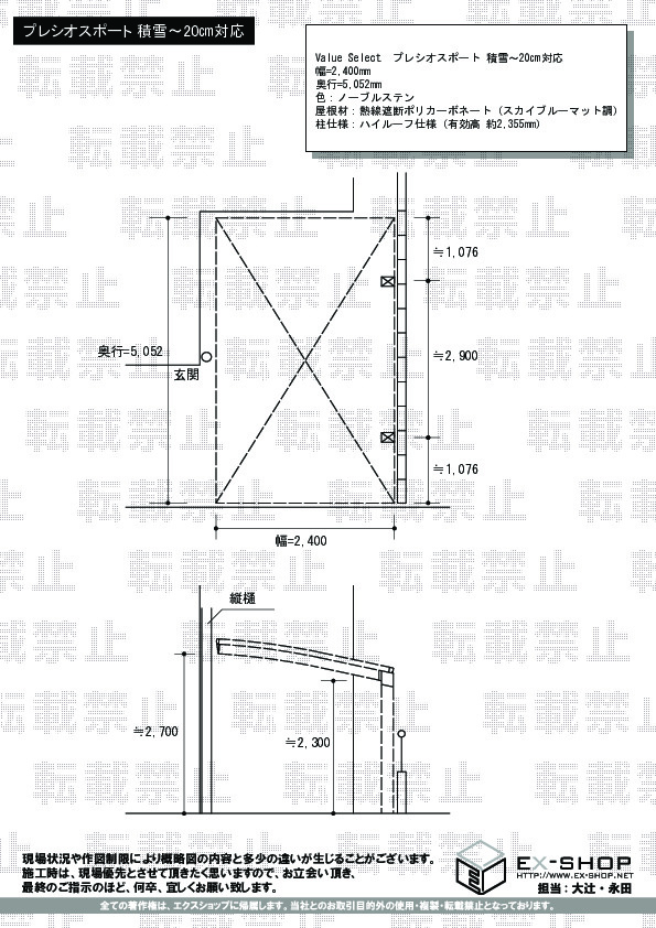
正式お見積りと一緒に提出させて頂いております「工事概略図面」もご覧頂けます。
商品や設置場所のご検討にお役立てください。
(写真No:5197351)
(カーポート)
| カラー | ノーブルステン |
|---|---|
| サイズ | 幅 2,400mm 奥行 5,052mm |
| 屋根高等 | ハイルーフ仕様(有効高 約2,355mm) |
| 屋根材等 | 熱線遮断ポリカーボネート(スカイブルーマット調) |
| 工事方法 | 地域密着あんしん施工 |
メール及び電話での連絡で十分安心して取引できました。施工時間もかなり短く、完成度もイメージ以上で大変満足しています。
この度はカーポートの施工をご依頼頂き、誠に有り難うございます。お顔の見えないネット販売であるため、お客様がご不安に思われることのないよう、お電話とメールにて、随時ご連絡を差し上げております。『安心できた』とお言葉を頂き、大変光栄に存じます。ご自宅の敷地内にプレシオスポートが綺麗に納まり、美しいお仕上がりですね。熱線遮断ポリカーボネート(スカイブルーマット調)の屋根材は、雨や紫外線だけではなく、太陽の熱もカット致しますので、一年を通して快適にご使用頂けるものと存じます。今後また機会がございましたら、是非エクスショップにご用命ください。またのご利用を、心よりお待ち致しております。
当サイトは以下のセキュリティ機能や保護認定等を備えています。安心してお申し込みください
当サイトはSSL暗号化に対応しています。入力した個人情報は暗号化して送られますので、安心してご利用ください。
当社はJADMAの正会員です。同協会は法律で位置づけられた団体で、消費者の利益保護と業界の健全な発展の為に活動しています。
こちらの工事に使用しているエクステリア
![]()
プレシオスポート アール型 1台用

工事費・税込
112,000円〜
総合平均評価(星5つ評価)
4.77
商品レビュー数
54件
プレシオスポート アール型 1台用はアール屋根が特徴的なエクスショップオリジナルブランドのスタンダードカーポートです。耐風性能は基準風速Vo=34m/s・耐積雪性能は20cm相当(600N/㎡)を確保しています。本体カラーは3色展開・屋根材は4種類あります。
この商品の詳細へ
無料お見積り・現場調査・ご注文もこちら
この商品のレビュー
商品レビュー54件

愛知県 名古屋市 N.K.様
概ね満足。屋根がもう少し濃い青だと良かった。

茨城県 水戸市 K.Y.様
比較的安いカーポートを頼みましたが、しっかりした造りで大満足です。 明るく広くなったと周りからも好評です。

大阪府 大阪狭山市 K.I.様
希望道理で施工も綺麗で工事の方の対応も礼儀正しく満足です。

広島県 世羅郡世羅町 M.M.様
施工業者様のお薦めでした。 費用対効果高い商品だと思います。 有効高さの選択があれば更に良い。

和歌山県 和歌山市 O.K.様
見積金額、施工と大満足です。また、機会があればよろしくお願いいたします。ありがとうございました。

福岡県 福岡市 A.H.様
見た目は一般的なカーポートと比べ先進的でおしゃれに感じる、柱は頑丈そうで安心感がある。天井部分が透明度が高く庭が暗くならず解放感がある

大阪府 高槻市 O.K.様
大満足です。来訪者の方から、見栄え良く綺麗になったなと、言われます。

埼玉県 日高市 N.A.様
ほぼイメージどおり。やや高さが低かったが、軽でトールタイプでなければ余裕。

長野県 諏訪市 T.R.様
非常に良く出来たカーポートと思います。コスパが良い、デザインも良い。ポリカの色もいろいろ有り良いです。

兵庫県 宝塚市 N.M.様
ステンレスのカーポートは、近所には無いので良いねといってもらえます。

滋賀県 守山市 I.A.様
満足しています。敷地に合わせて切り詰めて頂いたので駐輪スペースが広くとれて良かったです。
関連するお客様の声

5つ星のうち5
福岡県K.Y. 様回答日:2015年5月
2Fテラスを工事いただき、雨に濡れることなく洗濯物が干せるようになりました。ウッドデッキができて、今後カフェみたいに落ち着いた時間を利用させていただきたいと考えております。車も濡れることがすくなくなりました。

5つ星のうち3
大阪府U.M. 様回答日:2015年4月
屋根ができて雨にぬれなく乗降で来て良い色も家とあってよかった

5つ星のうち5
広島県I.N. 様回答日:2015年4月
車が雨で汚れなくなり、嬉しく思います。

5つ星のうち5
三重県T.S. 様回答日:2015年3月
お店の店舗へ行って見積もりを頼むのは、頼みずらいのですが、その点エクスショップさんはインターネットで事前見積もりを頼めるので頼みやすかったです。見積もりの際の方も親切で、事前にこうしたいと伝えることができ、安心して施工を頼むことができました。完成状況もとても満足しています。ありがとうございました。

5つ星のうち5
熊本県I.H. 様回答日:2015年2月
エクスショップを選んで正解でした。価格はもちろんのこと、地元の業者さんで安心しました。対応が早く助かりました。

5つ星のうち5
福岡県N.H. 様回答日:2026年3月
カーポート設置を検討したのは、EV購入に伴い、EV用充電器を設置したのがきっかけで、充電時に雨に濡れるということを避けたかったためです(濡れても問題ないとのことですが、なんとなく気持ちが悪いので)。カーポート設置後、最も快適に感じるのは、雨の日の車の乗り降りが苦にならなくなったことです(当たり前ですが・・・)。設置はエクスショップさんに依頼し、工事していただきましたが、工事に来てくださった職人さんが、とても感じが良く、また大変丁寧に作業していただき、このショップをチョイスして正解だったと思いました。有難うございました。

5つ星のうち5
香川県M.Y. 様回答日:2026年3月
所有する車の台数も増え、車の出し入れも大変だったため、カーポートを4台用に取替えました。車の出し入れもスムーズになり、土間も新しくコンクリート敷にしたため、雨の日でも快適に出かけることができました。注文手続きについても、主にメールで丁寧にやりとりしていただいたため、忙しい中でも確実に情報連絡でき助かりました。

5つ星のうち5
静岡県K.M. 様回答日:2026年3月
新たに車を買い足して、二台とも長く使いたいため、二台用のカーポートを購入した。本当は来客用に三台用が欲しかったが、駐車場用地の形状から無理とのことで、二台用カーポートに一台分の空きスペース確保を条件に施工していただいた。施工後翌々日に雨が降りましたが、やはり屋根があると車の乗り降りが快適ですね。屋根を低くし、熱線遮断の素材にしたので、日中も少しヒンヤリします。夏には酷暑対策にもなりそうです。
関連するブログ記事
関連するよくあるご質問
カーポートの設置と一緒に土間コンクリートを打設できますか?
【商品カテゴリ >カーポート】(ご質問No.707)
既存のカーポート屋根材の張り替えの依頼はできますか?
【商品カテゴリ >カーポート】(ご質問No.21)
以前購入したカーポートの部品のみを追加で購入する事は可能ですか?
【商品カテゴリ >カーポート】(ご質問No.48)
ワイドタイプのカーポートですが、横幅の切り詰めは可能ですか?
【商品カテゴリ >カーポート】(ご質問No.69)
カーポートって何ですか?
【商品カテゴリ >カーポート】(ご質問No.28910)
既存のカーポートの柱の高さを桁上げする事は可能ですか?
【商品カテゴリ >カーポート】(ご質問No.43)
既存のカーポートをいったん解体し、再度組み立てることは可能ですか?
【商品カテゴリ >カーポート】(ご質問No.46)
四国化成のFリードカーポート収納庫付きタイプは取り扱ってますか?
【商品カテゴリ >カーポート】(ご質問No.74)
既存カーポートの支柱を流用して、増設、縦列2台用のカーポートを設置することは可能ですか?
【商品カテゴリ >カーポート】(ご質問No.84)
四国化成のマイポートneoの取り扱いはありますか?
【商品カテゴリ >カーポート】(ご質問No.88)


















