バイク・自転車を雨風から保護
お家の収納能力をアップ
ガレージの保全・防犯にカーポートと合わせて
お庭に機能的スペースを作り出します
防犯、お家のドレスアップはこれで決まり
ガレージ商品とコンビで高級感を演出
各取扱メーカーの会社名、ロゴ及び商品名等は各社の商標または登録商標です。
| 日 | 月 | 火 | 水 | 木 | 金 | 土 |
|---|---|---|---|---|---|---|
| 1 | 2 | 3 | 4 | 5 | 6 | 7 |
| 8 | 9 | 10 | 11 | 12 | 13 | 14 |
| 15 | 16 | 17 | 18 | 19 | 20 | 21 |
| 22 | 23 | 24 | 25 | 26 | 27 | 28 |
| 29 | 30 | 31 |
| 日 | 月 | 火 | 水 | 木 | 金 | 土 |
|---|---|---|---|---|---|---|
| 1 | 2 | 3 | 4 | |||
| 5 | 6 | 7 | 8 | 9 | 10 | 11 |
| 12 | 13 | 14 | 15 | 16 | 17 | 18 |
| 19 | 20 | 21 | 22 | 23 | 24 | 25 |
| 26 | 27 | 28 | 29 | 30 |
…休業日(現場調査・工事は一部対応)
![]()
【受付時間】9:30 - 17:30(営業日)
![]()
【受付時間】9:30 - 17:30(営業日)
オペレーションスタッフ
エクステリアプランナー有資格者の私たちにお任せください。
ショップ責任者
神(じん)
エクステリア プランナー
有資格者61名
1/3
木附
枡田
重富
吉澤
吉野
小東
池本
山田
佐藤
白崎
新西
伊野
次田
南
西山
小林
阿重田
梨田
長谷川
藤田
村上
平戸
植松
内田
久田
中島
長石
水口
榮
山崎
清水
室谷
安田
水谷
小野
酒井
一氏
神吉
日下部
山中
深田
田中
水田
西田
岡本
丸山
北
坂本
中嶋
岩野
伊藤
上中
高山
原
犬井
佐伯
谷川
塚田
松本
小林
森下
上内
島田
森
梅田
松山
山本
小西
倉地
山根
中原
河野
村上
土井
岩破
南
井上
三ツ股
小田
依藤
永禮
林
加藤
石藤
駒井
末吉
山本
芦野
樽井
野上
岡田
木村
池田
西村
藤澤
達川
奥原
那須
1/3
今週のPick Upページ
![]()
ご利用頂いたお客様の口コミ・レビューを「お客様の声」として掲載しております。
全てのご感想を掲載しておりますので、エクスショップの評判としてご参考ください。
正式お見積りと一緒に提出させて頂いております「工事概略図面」もご覧頂けます。
商品や設置場所のご検討にお役立てください。
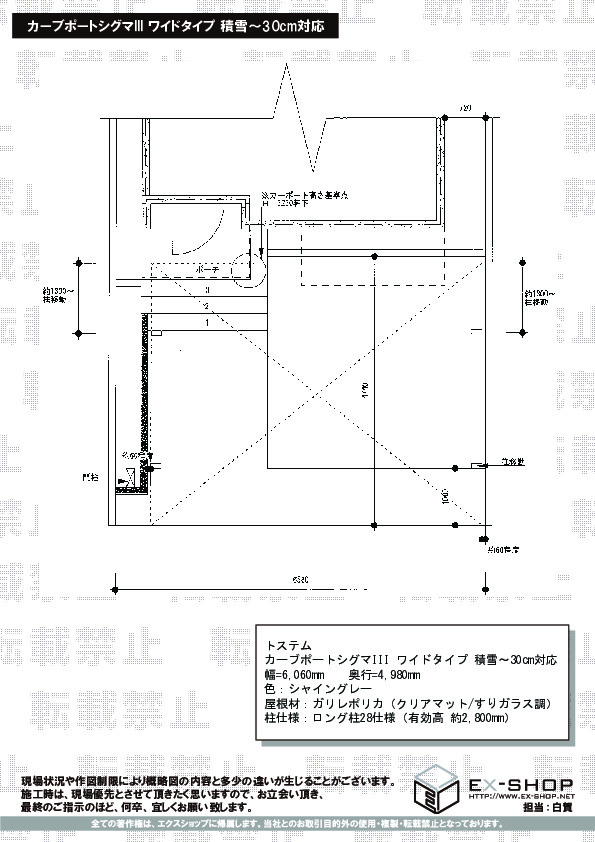
(写真No:10134111)
(カーポート)
| カラー | シャイングレー |
|---|---|
| サイズ | 幅 6,060mm 奥行 4,980mm |
| 屋根高等 | ロング柱28仕様(有効高 約2,800mm)z |
| 屋根材等 | ガリレポリカ(クリアマット/すりガラス調) |
| 工事方法 | 地域密着あんしん施工 |
良かった点当初は施工に2日間を要するとのことでしたが、職人さんの手が早く1日間で工事終了でした。また支柱周りに苗字イニシャルのタイルを埋め込む作業にも快く対応してくれた。(綺麗にするには手間な作業をお願いした)悪かった点見積りに来る人と、施工する人が同じ方が良かった。図面で引き継いでいるとはいえ、再度説明しなければならない。
カーブポートシグマIII ワイドタイプの施工をご依頼頂きまして、誠に有難うございます。ガリレポリカ(クリアマット/すりガラス調)のお屋根が明るく、圧迫感の無いお仕上がりでございますね。担当致しました施工士にお褒めのお言葉を頂き、誠に有難うございます。イニシャルのタイルを埋め込むというお洒落な趣向に、スタッフ一同感心致しております。今後もより良いシステムを構築しお客様にお喜び頂けるよう努めて参りますので、また機会がございましたらぜひ、弊社をご用命頂けますよう、宜しくお願い致します。
当サイトは以下のセキュリティ機能や保護認定等を備えています。安心してお申し込みください
当サイトはSSL暗号化に対応しています。入力した個人情報は暗号化して送られますので、安心してご利用ください。
当社はJADMAの正会員です。同協会は法律で位置づけられた団体で、消費者の利益保護と業界の健全な発展の為に活動しています。
こちらの工事に使用しているエクステリア
![]()
ネスカ R 2台用(ラウンドスタイル)

工事費・税込
223,500円〜
総合平均評価(星5つ評価)
4.76
商品レビュー数
1291件
ネスカ R 2台用(ラウンドスタイル)は大きなアール仕様の屋根が特徴的な横並び2台駐車可能のカーポートです。標準柱が2200mmとなっており大半の車種に対応可能。耐風性能は基準風速Vo=40m/s、耐積雪性能は20cm相当の耐性があります。
この商品の詳細へ
無料お見積り・現場調査・ご注文もこちら
この商品のレビュー
商品レビュー1,291件

東京都 江戸川区 K.A.様
とても満足していますが屋根が雨などの吹き込み防止など一工夫あると更に大満足になります。

滋賀県 大津市 H.K.様
今のところ不満はないです。 もし今後、友人にどこで買うか聞かれたら、勧めようと思います。

東京都 あきる野市 T.S.様
標準仕様で高さが220cmあり十分。カラーも希望のものが選択でき、周囲との調和が図れた。

高知県 香美市 N.N.様
カーポートの下側、内面は問題有りませんが、外側の上側の方で、シーラントがされてるのにちょっと疑問持ちました。隣の一基目のカーポートはシーラントされていないので。

佐賀県 佐賀市 S.N.様
見た目もスッキリしていて柱も思ったほど太くなく設置後の駐車もスムーズです。

和歌山県 和歌山市 I.M.様
幅=3,624mm 奥行=5,686mm 色:シャイングレー 屋根材:ポリカーボネート(クリアブラウン) 柱仕様:標準柱仕様(有効高 約2,200mm)

千葉県 市原市 I.T.様
パネルの色や支柱の色合いなども良く満足しております。

宮崎県 西臼杵郡高千穂町 S.F.様
フォルムも設置場所も満足しています。近所の人も「いいね」と言っています。

埼玉県 さいたま市 S.M.様
商品は満足です、現地確認の担当者も丁寧に説明して頂きました、施工の方も初めにいろいろと説明して頂いてからの施工でしたが、施工完了時の商品が汚れたままだったのが残念です。

東京都 八王子市 A.S.様
思ったよりも高さがあったので、2.2mの高さで 良かったです。 欲を言えば、もう少し日光を遮断してくれれば良かったのですけど。

東京都 杉並区 I.T.様
前回施工して頂いた自転車置き場の時と同様に、非常に満足です。 ネスカは、柱が多少高いので仕上り全体の感じが良いように思います。

埼玉県 北本市 K.Y.様
車2台が余裕に入り、強風でも揺ら足りしないので、重宝しています。

茨城県 水戸市 K.H.様
暗くなるかと思ったが意外に明るくとても満足しています。

埼玉県 川口市 O.K.様
暑くなってきたのもあり、カーポートがあると直射日光を遮れるし、梅雨の時期を前にして設置できて満足している。

兵庫県 宍粟市 F.M.様
高さもあり、フェンスともマッチしていて、良いと思います。

山梨県 中央市 G.H.様
・大変満足しています ・ご近所でも評判のスタイリッシュな仕上がりになりました ・前より柱が一回り細くなり、少々(強度面で)不安はありますが、 そこは品質を信じています。 ・施工完了時、特に書類を書かされなかったのは少しだけ不安です。 ・お見積り時に提示頂いたかと思うのですが、何年保証なのかが承知しておらず、ちょとだけ不安です。
関連するお客様の声

5つ星のうち5
大阪府F.H. 様回答日:2020年4月
カーポートを取り付けたことで、雨が降っても濡れなくなった。施工しに来てくれた。職人さんもいい人で、丁寧な対応だった。

5つ星のうち5
埼玉県K.M. 様回答日:2013年11月
見積りに来た人と職人さんが、同じ人で安心でした。また、見積りのときの寸法など図面も見やすくてイメージができよかったと思います。

5つ星のうち5
愛知県O.H. 様回答日:2012年2月
インターネットでの注文は少しばかり不安でしたが、対応して頂いた全ての人(電話受付の人、メール対応の人、現場調査の人、施工の人)はとても対応が早く感じよかったので安心できました。仕上がりもとても満足しています。ホームセンターに比べて安いし大満足です。

5つ星のうち5
静岡県K.K 様回答日:2016年6月
見積もりに来た人と工事をする人は同じ人のほうがよかったかな。工事をした人が良くなかったという意味ではなく。丁寧にやってくれて、良かったと思います。

5つ星のうち5
千葉県K.H. 様回答日:2012年8月
地域密着安心施工の最初に見積りに来た人は頼り甲斐の無さそうな人だったのでメーカー責任施工に変えて見積りを取りました。2回目に来た人は感じの良い頼んでもよさそうな人が来てよかったです。結局、見積もりに来た人と施工した人は違う人でしたがメーカー責任施工の方に変えてよかったと思ってます。

5つ星のうち5
熊本県I.J. 様回答日:2012年5月
連絡、対応、施工はやくてして頂いてありがとうございました。施工業者の方もいい人でしたので良かったです。また機会があればお願いしようと思っています。

5つ星のうち4
千葉県H.K. 様回答日:2014年4月
見積もりに来てくれた人も丁寧な説明をしてくれたため、良く分かった。施工した人も、余計なことは言わず、黙々と仕事していて好感が持てた。

5つ星のうち4
東京都S.T. 様回答日:2011年1月
見積もりに来てくれた人や、エクスショップの担当の方の説明がとてもわかりやすかったので、スムーズに注文することができました。実際の施工の人も近隣に店を出している方なので世間話をしながら気楽に作業してもらえました。

5つ星のうち5
香川県O.S. 様回答日:2015年6月
対応も丁寧で非常にわかりやすかった。施工もきっちりスピーディにおこなわれた。職人さんも感じの良い人で丁寧に説明してくれた。

5つ星のうち5
奈良県A.M. 様回答日:2017年12月
やはり、ネット対応なので、現地を見に来た人と、見積もりしてからの対応の方、施工の方、全部違う人なので、何回も同じようなことを話さなければならないのは、仕方ないのですが、せめて現地視察の方と施工の方を同じ人にしてはいかがでしょうか?(不満があったわけではないのですが・・・頼んだほうからしては、又違う人かって感じになってしまいます)
関連するブログ記事
関連するよくあるご質問
カーポートの設置と一緒に土間コンクリートを打設できますか?
【商品カテゴリ >カーポート】(ご質問No.707)
既存のカーポート屋根材の張り替えの依頼はできますか?
【商品カテゴリ >カーポート】(ご質問No.21)
以前購入したカーポートの部品のみを追加で購入する事は可能ですか?
【商品カテゴリ >カーポート】(ご質問No.48)
ワイドタイプのカーポートですが、横幅の切り詰めは可能ですか?
【商品カテゴリ >カーポート】(ご質問No.69)
カーポートって何ですか?
【商品カテゴリ >カーポート】(ご質問No.28910)
既存のカーポートの柱の高さを桁上げする事は可能ですか?
【商品カテゴリ >カーポート】(ご質問No.43)
既存のカーポートをいったん解体し、再度組み立てることは可能ですか?
【商品カテゴリ >カーポート】(ご質問No.46)
四国化成のFリードカーポート収納庫付きタイプは取り扱ってますか?
【商品カテゴリ >カーポート】(ご質問No.74)
既存カーポートの支柱を流用して、増設、縦列2台用のカーポートを設置することは可能ですか?
【商品カテゴリ >カーポート】(ご質問No.84)
四国化成のマイポートneoの取り扱いはありますか?
【商品カテゴリ >カーポート】(ご質問No.88)


















