バイク・自転車を雨風から保護
お家の収納能力をアップ
ガレージの保全・防犯にカーポートと合わせて
お庭に機能的スペースを作り出します
防犯、お家のドレスアップはこれで決まり
ガレージ商品とコンビで高級感を演出
各取扱メーカーの会社名、ロゴ及び商品名等は各社の商標または登録商標です。
| 日 | 月 | 火 | 水 | 木 | 金 | 土 |
|---|---|---|---|---|---|---|
| 1 | 2 | 3 | 4 | 5 | 6 | 7 |
| 8 | 9 | 10 | 11 | 12 | 13 | 14 |
| 15 | 16 | 17 | 18 | 19 | 20 | 21 |
| 22 | 23 | 24 | 25 | 26 | 27 | 28 |
| 29 | 30 | 31 |
| 日 | 月 | 火 | 水 | 木 | 金 | 土 |
|---|---|---|---|---|---|---|
| 1 | 2 | 3 | 4 | |||
| 5 | 6 | 7 | 8 | 9 | 10 | 11 |
| 12 | 13 | 14 | 15 | 16 | 17 | 18 |
| 19 | 20 | 21 | 22 | 23 | 24 | 25 |
| 26 | 27 | 28 | 29 | 30 |
…休業日(現場調査・工事は一部対応)
![]()
【受付時間】9:30 - 17:30(営業日)
![]()
【受付時間】9:30 - 17:30(営業日)
オペレーションスタッフ
エクステリアプランナー有資格者の私たちにお任せください。
ショップ責任者
神(じん)
エクステリア プランナー
有資格者61名
1/3
木附
枡田
重富
吉澤
吉野
小東
池本
山田
佐藤
白崎
新西
伊野
次田
南
西山
小林
阿重田
梨田
長谷川
藤田
村上
平戸
植松
内田
久田
中島
長石
水口
榮
山崎
清水
室谷
安田
水谷
小野
酒井
一氏
神吉
日下部
山中
深田
田中
水田
西田
岡本
丸山
北
坂本
中嶋
岩野
伊藤
上中
高山
原
犬井
佐伯
谷川
塚田
松本
小林
森下
上内
島田
森
梅田
松山
山本
小西
倉地
山根
中原
河野
村上
土井
岩破
南
井上
三ツ股
小田
依藤
永禮
林
加藤
石藤
駒井
末吉
山本
芦野
樽井
野上
岡田
木村
池田
西村
藤澤
達川
奥原
那須
1/3
今週のPick Upページ
![]()
ご利用頂いたお客様の口コミ・レビューを「お客様の声」として掲載しております。
全てのご感想を掲載しておりますので、エクスショップの評判としてご参考ください。
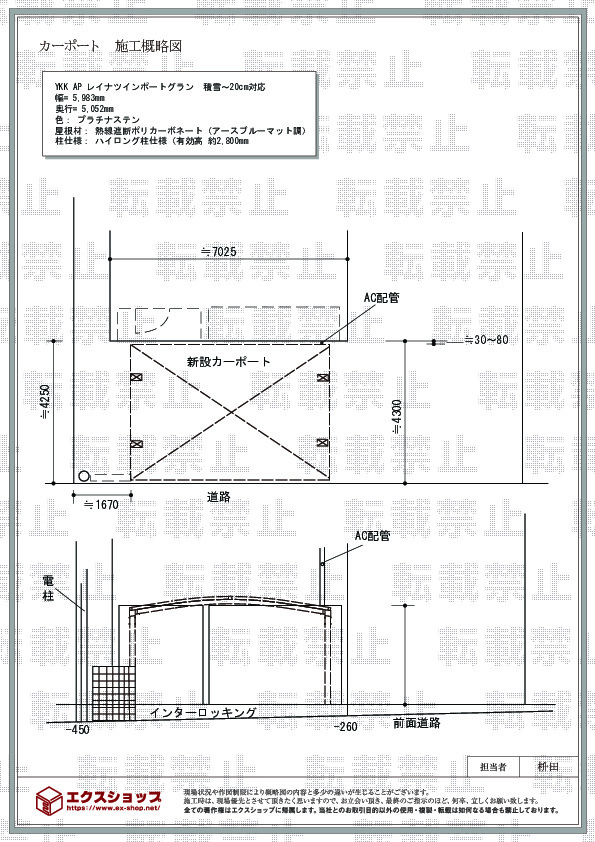
正式お見積りと一緒に提出させて頂いております「工事概略図面」もご覧頂けます。
商品や設置場所のご検討にお役立てください。
(写真No:18928611)
(カーポート)
| カラー | プラチナステン |
|---|---|
| サイズ | 幅 5,983mm 奥行 5,052mm |
| 屋根高等 | ハイロング柱仕様(有効高 約2,800mm) |
| 屋根材等 | 熱線遮断ポリカーボネート(アースブルーマット調) |
| 工事方法 | 地域密着あんしん施工 |
はじめ、現場調査に来ていただいた時から親切でした。施工して頂いた方もとても親切でした。玄関の雨が気になると話したところ、できる限り家に近づけてくれました。施工中、妻はパートでずっと在宅できないと言ったところ快く引き受けていただけました。値段もかなり安いのにちゃんと柱の下のブロックも切ってきれいに埋めてくれました。家を建てる時に頼めばよかったと後悔しました。また何かあったら是非頼みたいと思いました。
『地域密着あんしん施工』にて、レイナツインポートグランの施工をご依頼頂き、提携施工店のスタッフの対応、施工技術に高い評価を頂きましたこと、誠に光栄に存じます。ご自宅の雰囲気にマッチした、スタイリッシュなお仕上がりでございますね。これからも頂いたお言葉に恥じないよう、丁寧できめ細かい対応を心掛けて参りたいと存じます。またのご利用を、心よりお待ち申し上げております。
当サイトは以下のセキュリティ機能や保護認定等を備えています。安心してお申し込みください
当サイトはSSL暗号化に対応しています。入力した個人情報は暗号化して送られますので、安心してご利用ください。
当社はJADMAの正会員です。同協会は法律で位置づけられた団体で、消費者の利益保護と業界の健全な発展の為に活動しています。
こちらの工事に使用しているエクステリア
![]()
アリュース 600タイプ 2台用

工事費・税込
215,900円〜
総合平均評価(星5つ評価)
4.86
商品レビュー数
165件
アリュース 600タイプ 2台用は継ぎ目のない大きなアール屋根が特徴的な両側支持タイプの2台用カーポートです。柱・梁には水での急速冷却により高強度化(T6処理)したアルミニウム合金を用いており、基準風速Vo=40m/s・耐積雪性能20cmを確保しています。
この商品の詳細へ
無料お見積り・現場調査・ご注文もこちら
この商品のレビュー
商品レビュー165件

岡山県 玉野市 N.Y.様
熱線遮断ポリカーボネートにしたことで光をしっかり遮断しており、高さも2,500mmにしたことで高さのある車に乗り換え時にも安心です。 現在車1台と自転車3台置いていますが、まだ余裕があります。

茨城県 古河市 S.M.様
色々アドバイスもいただき良い買い物が出来たと思います。

静岡県 浜松市 M.E.様
安さで選択しましたが、とてもしっかりとした商品でした。 色もブラックして高級感を感じ、自己満足しています。 サイズ選びも迷いましたが、良い選択だったと思います。 縦横巾に少し余裕もあり、高さを少し高めにしたので 圧迫感の無いカーポートとなり良かったです。

静岡県 浜松市 A.T.様
急遽ハツリ工事が発生しましたが、職人さんも快く施工してくれました。 仕上がりも綺麗で満足してます。

島根県 出雲市 H.T.様
屋根からの透過による明るい感じが思った以上に良かった。 施工直後の現状については問題は認められず、コスパが非常に高い印象。

福岡県 久留米市 R.K.様
仕様は2台用ですが、2台駐車は難しいと思います。私は1台で使用するので、ゆっくり停めれて満足です。

岡山県 岡山市 N.M.様
色も形も大満足です。 熱線遮断ポリカーボネートのクリアマットにしました。明るさが気になっていましたが、思っていたより明るくて良かったです。

宮城県 仙台市 K.N.様
以前設置したサイクルポートと同じタイプで同色の物にしたので、統一感もあり妻もとても満足しているので良かったです。

栃木県 小山市 N.C.様
高さがあり安いので、便利です。購入は3ケめになります。

埼玉県 川口市 S.M.様
商品に関しては本当に綺麗だったのでものすごく満足してます、車も塗らずに済むので良かったです、嫁でさえ綺麗さに感動しました。

大分県 大分市 M.M.様
外構工事中でまだ使用できていませんが、楽しみです。

香川県 高松市 M.N.様
デザインも良い商品だと思います。もう少し柱の間隔を広く出来れば尚更良いですね。

千葉県 木更津市 H.T.様
断熱ポリカボネートの色がもっと選べるとよい。

茨城県 土浦市 N.K.様
同じものを追加で建てたが、前回同様、気に入っている。

岡山県 小田郡矢掛町 E.H.様
手際良く施工していただきありがとうございました。

高知県 四万十市 S.M.様
長さ幅を長くしてもらい 遮熱も付けて とても 満足してます。

兵庫県 三木市 T.Y.様
長年、雨天時は不便だったのが快適に。早く施工しなかったのを後悔。 出入りの宅配業者、郵便の方が雨天時の仕分け作業にも使用しており有り難がっている

埼玉県 入間郡三芳町 Y.R.様
高さがあるカーポートをお願いしました。車の整備を多少するので、高さがありこれから色々な用途で使えそう

埼玉県 さいたま市 S.S.様
友達に見せました皆も綺麗ないい評判しました。

愛知県 一宮市 E.H.様
しっかりした柱や施工に満足しております。幅や高さ等非常に我が家に合ってます。
関連するお客様の声

5つ星のうち5
和歌山県S.A. 様回答日:2011年3月
施工してくださった方が親切で、きちんとしたお仕事をしてくださいました。また何かあったら同じ方にしていただきたいと思いました。

5つ星のうち5
長崎県E.A. 様回答日:2020年6月
はじめはこんなに安くて大丈夫なのかな?と不安に思っていましたが、実際の施工も丁寧で親切に要望も聞いてくれて、非常によかったです。まだ施工が終わったばかりなので耐久性とかは分かりませんが、現在のところは満足してます。

5つ星のうち5
兵庫県K.M. 様回答日:2018年7月
雨が降った時でも濡れずに車から家に入る事ができ、便利で快適になりました。見た目も気に入っています。担当の方も親切、丁寧に対応して頂き満足しています。また機会があればよろしくお願いします。

5つ星のうち5
福岡県W.H. 様回答日:2013年2月
現地調査を2回お願いしたところ、快く来て頂きました。内容の説明も親切で何も知らない妻でも理解できました。ネットと言うことで心配していましたが、とても安心できました。ありがとうございました。

5つ星のうち4
岐阜県M.K. 様回答日:2019年7月
雨の時や雪の時に不便を感じたため自転車置き場も兼ねて設置を検討した。設置後は雨の時、車から降りる時に濡れないので良かった。

5つ星のうち5
熊本県T.I. 様回答日:2013年8月
インターネットからの注文でしたが、色々気になる所を電話でお尋ねした時はとても親切な電話対応をして頂きました。施工に来た業者様もとても親切だったので依頼をお願いしてよかったと思っています。

5つ星のうち5
愛知県A.K. 様回答日:2019年9月
玄関とカーポートが繋がったので雨が降っても濡れずに車まで行く事が出来乗り降りが出来るようになった。テラスは雨が降った時やベランダに干せきれなくなった時に使用する予定。

5つ星のうち5
佐賀県H.M. 様回答日:2011年4月
現地調査の時、親切に対応して下さったので安心できました。作業に来られた方も、とても感じの良い方ばかりでした。カーポートの仕上がりも満足してます。

5つ星のうち5
埼玉県M.T. 様回答日:2017年7月
車の買い替えと、家族からの要望でカーポートを施工しました。まだ、雨は経験してませんが雨天の車の乗降の時は助かると思います。エクスショップ様は、見積もりの時から迅速で親切な対応をしていただきました。施工業者の方も下見から親切に対応していただき、仕上がりに満足しています。

5つ星のうち5
兵庫県O.T. 様回答日:2025年4月
カーポートはもう少し先に設置予定だったが、資材高騰による値上げ前に設置しようということになりいろいろと検索、結果エクスショップでの施工となった。設置前と比べて雨の日の乗り降りや日差し、車の保護に役立っている。ホームセンターなども検討していたが、エクスショップにしてよかったと心から思っている。次回もあれば検討したい。

5つ星のうち5
千葉県S.D. 様回答日:2025年4月
以前エクスショップさんでカーポートを建てた時は施工のトラブルがあったのですがきちんと対応をしていただき最終的にはしっかりとしたものになりました。その事もあり安心しておまかせできましたし今回は何も問題なかったです。また、細かい位置出しなどの相談やこちらのお願い事にも対応していただけてとても助かりました。

5つ星のうち5
愛媛県G.M. 様回答日:2025年4月
高齢化に伴い車の台数整理を行ったことがきっかけで、カーポートを設置したものです。工事完了後すぐに雨となりましたが、以前であれば車から家の入口まで傘をさすか走って移動していましたが、設置後は雨でぬれる時間も大変短く快適になりました。見積 工事予定日 請求等、メールによる連絡は時間に制限されることなくスムーズに設置することができました。

5つ星のうち5
群馬県K.H. 様回答日:2025年4月
自宅の庭にベンチやテーブルを作りBBQなどを行っていた。 木製のためテントを建てて雨除けにしていたが風に弱くたびたび壊れた。 ガゼボを建てようかと思っていたが高額なのでカーポートで代用しようと決定した。 工事請負業者が下見に来て、上記の事を説明したら、屋根の高さなどアドバイスしてくれた。 やっつけ仕事ではなく、顧客のために考えてくれた事が嬉しかった。

5つ星のうち4
佐賀県N.T. 様回答日:2025年1月
外構を調べていてYouTubeを良く見ていましたがお勧めがエクスショップだったので3台用で見積りを取ってみて希望に近かったので決めましたが、実際に決定した見積りは設置業者さんお勧めの組合せが良かったので変更して決定しました。設置してから霜が降りる寒い日や雨の日の乗り降りが大変楽になり設置して良かったです。
関連するブログ記事
関連するよくあるご質問
カーポートの設置と一緒に土間コンクリートを打設できますか?
【商品カテゴリ >カーポート】(ご質問No.707)
既存のカーポート屋根材の張り替えの依頼はできますか?
【商品カテゴリ >カーポート】(ご質問No.21)
以前購入したカーポートの部品のみを追加で購入する事は可能ですか?
【商品カテゴリ >カーポート】(ご質問No.48)
ワイドタイプのカーポートですが、横幅の切り詰めは可能ですか?
【商品カテゴリ >カーポート】(ご質問No.69)
カーポートって何ですか?
【商品カテゴリ >カーポート】(ご質問No.28910)
既存のカーポートの柱の高さを桁上げする事は可能ですか?
【商品カテゴリ >カーポート】(ご質問No.43)
既存のカーポートをいったん解体し、再度組み立てることは可能ですか?
【商品カテゴリ >カーポート】(ご質問No.46)
四国化成のFリードカーポート収納庫付きタイプは取り扱ってますか?
【商品カテゴリ >カーポート】(ご質問No.74)
既存カーポートの支柱を流用して、増設、縦列2台用のカーポートを設置することは可能ですか?
【商品カテゴリ >カーポート】(ご質問No.84)
四国化成のマイポートneoの取り扱いはありますか?
【商品カテゴリ >カーポート】(ご質問No.88)


















