バイク・自転車を雨風から保護
お家の収納能力をアップ
ガレージの保全・防犯にカーポートと合わせて
お庭に機能的スペースを作り出します
防犯、お家のドレスアップはこれで決まり
ガレージ商品とコンビで高級感を演出
各取扱メーカーの会社名、ロゴ及び商品名等は各社の商標または登録商標です。
| 日 | 月 | 火 | 水 | 木 | 金 | 土 |
|---|---|---|---|---|---|---|
| 1 | 2 | 3 | 4 | 5 | 6 | 7 |
| 8 | 9 | 10 | 11 | 12 | 13 | 14 |
| 15 | 16 | 17 | 18 | 19 | 20 | 21 |
| 22 | 23 | 24 | 25 | 26 | 27 | 28 |
| 日 | 月 | 火 | 水 | 木 | 金 | 土 |
|---|---|---|---|---|---|---|
| 1 | 2 | 3 | 4 | 5 | 6 | 7 |
| 8 | 9 | 10 | 11 | 12 | 13 | 14 |
| 15 | 16 | 17 | 18 | 19 | 20 | 21 |
| 22 | 23 | 24 | 25 | 26 | 27 | 28 |
| 29 | 30 | 31 |
…休業日(現場調査・工事は一部対応)
![]()
【受付時間】9:30 - 17:30(営業日)
![]()
【受付時間】9:30 - 17:30(営業日)
オペレーションスタッフ
エクステリアプランナー有資格者の私たちにお任せください。
ショップ責任者
神(じん)
エクステリア プランナー
有資格者61名
1/3
木附
枡田
重富
吉澤
吉野
小東
池本
山田
佐藤
白崎
新西
伊野
次田
南
西山
小林
阿重田
梨田
長谷川
藤田
村上
平戸
植松
内田
久田
中島
長石
水口
榮
山崎
清水
室谷
安田
水谷
小野
酒井
一氏
神吉
日下部
山中
深田
田中
水田
西田
岡本
丸山
北
坂本
中嶋
岩野
伊藤
上中
高山
原
犬井
佐伯
谷川
塚田
松本
小林
森下
上内
島田
森
梅田
松山
山本
小西
倉地
山根
中原
河野
村上
土井
岩破
南
井上
三ツ股
小田
依藤
永禮
林
加藤
石藤
駒井
末吉
山本
芦野
樽井
野上
岡田
木村
池田
西村
藤澤
達川
奥原
那須
1/3
今週のPick Upページ
![]()
ご利用頂いたお客様の口コミ・レビューを「お客様の声」として掲載しております。
全てのご感想を掲載しておりますので、エクスショップの評判としてご参考ください。
正式お見積りと一緒に提出させて頂いております「工事概略図面」もご覧頂けます。
商品や設置場所のご検討にお役立てください。
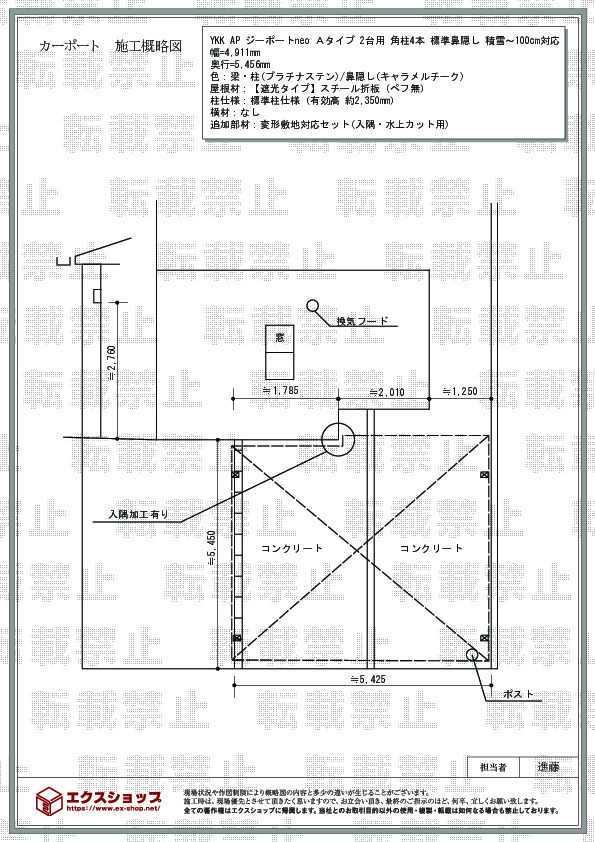
(写真No:18943511)
(カーポート)
| カラー | 梁・柱(プラチナステン)/鼻隠し(キャラメルチーク) |
|---|---|
| サイズ | 幅 4,911mm 奥行 5,456mm |
| 屋根高等 | 標準柱仕様(有効高 約2,350mm) |
| 屋根材等 | 【遮光タイプ】スチール折板(ペフ無) |
| 工事方法 | 地域密着あんしん施工 |
価格も安く施工業者様の対応も大変よかったです。仕上がりにも満足で家族共々感謝しております。貴社に依頼し良かったと思ってます。ありがとうございました。
この度は、エクスショップをご利用くださいまして、誠に有り難うございます。弊社はネット販売ならではの低価格に加え、迅速・丁寧な対応を日々心掛けておりますので、このようなお褒めのお言葉を頂き、大変嬉しく存じます。今回ご購入頂いたジーポートneoをお気に召して頂き、永くご愛用頂ければ幸いでございます。今後益々精進して参りますので、また機会がございましたら、ぜひエクスショップにご用命くださいますよう、宜しくお願い致します。
当サイトは以下のセキュリティ機能や保護認定等を備えています。安心してお申し込みください
当サイトはSSL暗号化に対応しています。入力した個人情報は暗号化して送られますので、安心してご利用ください。
当社はJADMAの正会員です。同協会は法律で位置づけられた団体で、消費者の利益保護と業界の健全な発展の為に活動しています。
こちらの工事に使用しているエクステリア
![]()
ジーポートPro 積雪100cm対応 2台用 4本柱 折板

工事費・税込
642,600円〜
総合平均評価(星5つ評価)
4.52
商品レビュー数
21件
ジーポートProは車を守る強さ、外観に馴染む意匠の美しさ、機能の豊かさを兼ね備えております。また、耐風性能46m/s、耐積雪性能100cmと高い耐久力を誇ります。車2台分の駐車が可能なスペースを確保した開放感溢れる4本柱仕様のカーポートです。
この商品の詳細へ
無料お見積り・現場調査・ご注文もこちら
この商品のレビュー
商品レビュー21件

山梨県 北杜市 H.M.様
大変喜んでおります。とても良い施工業者さんでした。

岩手県 奥州市 S.D.様
商品については大いに満足しています。車の乗り降りで雨を気にしなくてよくなり、夏場の日射遮蔽、冬場には雪下ろしからも解放されるため、生活の利便性が格段に向上しました。

京都府 京都府宮津市 Y.S.様
4本柱で解放感がある。 カームブラックもシックで良い。

新潟県 糸魚川市 H.S.様
商品には不満はありません。黒色だが実際の外壁の色と全て合わないのでそこだけ施工の際は注意が必要だと思う。

滋賀県 犬上郡豊郷町 Y.T.様
思ったより圧迫感なく、また風を通す隙間があるので風の抵抗を少しでも減らしてくれると期待してます。 視線を感じることが少なくなったので満足。 ただ、下のブロックは既存なので保証外となっているのは仕方ないがちょっとした補強で保証が効くようにすることなどの工夫やプランの提案がほしかったなと思います。

福島県 福島市 A.K.様
カーポートを設置することで、車の雪下ろしが無くなり楽になりました。又、雨の日や雪の日でもゆっくり乗り降り出来るので子ども達は喜んでいます。

岩手県 北上市 K.O.様
カーポートの色に悩みましたが、プラチナステンにしました。 施工後やはり家にマッチした色だったので満足くしています。

鳥取県 鳥取市 H.T.様
・近所の方から、玄関側に屋根を伸ばさなかったのは暗くならなくて良い、との言葉をいただいた。

岩手県 盛岡市 W.N.様
2台用ですが、SUVなど大型の車2台はギリギリだと思います。

群馬県 藤岡市 S.K.様
敷地に合わせて工夫して施工するととに、前回の他社の工事のよくない点について解説して、丁寧に立ててくれました。息子夫婦が2〜3年の間にカーポートをお願いしてもよいと言っていた。

山口県 防府市 S.H.様
イメージどおりの商品でした。満足してます。

岩手県 北上市 T.T.様
とても満足しています。梁を延長したことで車庫入れも楽です。

新潟県 新潟市 M.N.様
前後柱の間に柱が無いから車を柱側に止めても乗り降りがしやすい。

鳥取県 米子市 K.K.様
現時点では、しっかりとした作りで満足しています。

長野県 中野市 U.T.様
柱、梁もしっかりした商品で積雪(100cm対応)も大丈夫と安心できた。
関連するお客様の声

5つ星のうち4
滋賀県Y.T. 様回答日:2022年12月
冬は車の窓が凍って解凍に時間がかかります。夏は太陽が直に車に当たり車内温度が上昇します。また、周りに建物がないので遠くからでも見えてしまう。これらを解消するためにカーポートとフェンスを設置しました。冬は快適に過ごせていると思います。また、視線を気にする必要がなくなりました。夏は温度上昇を抑えてくれると期待してます。

5つ星のうち5
岩手県T.T. 様回答日:2022年3月
冬の除雪作業が大変になって来たことと、車が2台になりタイヤを保管する物置が必要となったため。車の乗り降りの際に雨に当たらずにすむのが良い。ただ施工が春に延期になったので、冬のカーポートの効果は今後に期待したい。スタッドレスタイヤ2台分と除雪用具を物置に収納できたので玄関がとても広くなった。

5つ星のうち5
岩手県O.R. 様回答日:2018年11月
雪が多い場所なので、いずれは設置したいと思い、お願いしました。雪かきの範囲が広く、毎年体がボロボロだったのでカーポートを置いた事で今年の冬は快適に過ごせそうです。業者の方もとても親身に対応、説明して頂いたので、安心して頼む事ができたと思います。

5つ星のうち5
神奈川県N.N. 様回答日:2018年5月
21年間使用してきた従来のポリカーボネート板の屋根は、太陽光などによって経年劣化が進み脆くなっていた。新設のアルミニウム亜鉛合金メッキ鋼板製折板の屋根は耐熱性、耐久性に優れており、骨太なアルミニウム構造材と相俟って、従来品に比べて格段の安心感がある。

5つ星のうち5
宮城県S.M. 様回答日:2017年11月
駐車場整備に伴い購入を決めました。設置前の雨ざらしから解消され、また強風時も安心して車を駐車しています。また、以前に使用していた、片流れタイプに比べ強風時の安心感が格段に上がりました。エクスショップ様については、連絡事項などメールのみだけではなく、電話でも対応していただき安心して利用することが出来ました。

5つ星のうち5
岡山県S.A. 様回答日:2026年1月
新築戸建の購入に伴い、カーポートとサイクルポートの設置を検討していました。インターネットで検索した際に上位に表示され、施工事例の画像やレビューを拝見して良さそうだと感じ、見積もりを依頼しました。見積もり内容の変更を何度かお願いしましたが、その都度迅速にご対応いただきました。また、工事日程の調整などについても小まめにご連絡をいただき、無事に完工することができました。

5つ星のうち5
神奈川県O.K. 様回答日:2025年11月
カーポート設置は住宅新築当初からの懸案でしたが、デザイン的に満足するものがなく、十年にわたり車は陽ざらし雨ざらしの状態を続けていました。あるときネット上でふと目にした製品がようやく気に入り、そこからどんどん話を進めて短期間での設置完了となりました。その過程で、エクスショップさんとは二十回以上のメール応答があり、担当の方の迅速かつ丁寧な対応は好印象だったといえます。予想していたよりも早い日にちで工事をしてもらえた点も大いに助かりました。なお施工完了後にみても、費用に十分見合う出来映えとして満足しています。

5つ星のうち5
愛知県A.M. 様回答日:2025年9月
ずっとカーポートが付けたかったけど、どうしてもいるものではなかったので後回しになっていた。年々猛暑が続いていた事がきっかけです。暑い日に乗った最初の車内の温度が低く感じられて、つけて良かったと思った。小雨の時の車の汚れが防げるといいなと思っています。
関連するブログ記事










関連するよくあるご質問
カーポートの設置と一緒に土間コンクリートを打設できますか?
【商品カテゴリ >カーポート】(ご質問No.707)
既存のカーポート屋根材の張り替えの依頼はできますか?
【商品カテゴリ >カーポート】(ご質問No.21)
以前購入したカーポートの部品のみを追加で購入する事は可能ですか?
【商品カテゴリ >カーポート】(ご質問No.48)
ワイドタイプのカーポートですが、横幅の切り詰めは可能ですか?
【商品カテゴリ >カーポート】(ご質問No.69)
カーポートって何ですか?
【商品カテゴリ >カーポート】(ご質問No.28910)
既存のカーポートの柱の高さを桁上げする事は可能ですか?
【商品カテゴリ >カーポート】(ご質問No.43)
既存のカーポートをいったん解体し、再度組み立てることは可能ですか?
【商品カテゴリ >カーポート】(ご質問No.46)
四国化成のFリードカーポート収納庫付きタイプは取り扱ってますか?
【商品カテゴリ >カーポート】(ご質問No.74)
既存カーポートの支柱を流用して、増設、縦列2台用のカーポートを設置することは可能ですか?
【商品カテゴリ >カーポート】(ご質問No.84)
四国化成のマイポートneoの取り扱いはありますか?
【商品カテゴリ >カーポート】(ご質問No.88)


















