バイク・自転車を雨風から保護
お家の収納能力をアップ
ガレージの保全・防犯にカーポートと合わせて
お庭に機能的スペースを作り出します
防犯、お家のドレスアップはこれで決まり
ガレージ商品とコンビで高級感を演出
各取扱メーカーの会社名、ロゴ及び商品名等は各社の商標または登録商標です。
| 日 | 月 | 火 | 水 | 木 | 金 | 土 |
|---|---|---|---|---|---|---|
| 1 | ||||||
| 2 | 3 | 4 | 5 | 6 | 7 | 8 |
| 9 | 10 | 11 | 12 | 13 | 14 | 15 |
| 16 | 17 | 18 | 19 | 20 | 21 | 22 |
| 23 | 24 | 25 | 26 | 27 | 28 | 29 |
| 30 |
| 日 | 月 | 火 | 水 | 木 | 金 | 土 |
|---|---|---|---|---|---|---|
| 1 | 2 | 3 | 4 | 5 | 6 | |
| 7 | 8 | 9 | 10 | 11 | 12 | 13 |
| 14 | 15 | 16 | 17 | 18 | 19 | 20 |
| 21 | 22 | 23 | 24 | 25 | 26 | 27 |
| 28 | 29 | 30 | 31 |
…休業日(現場調査・工事は一部対応)
![]()
【受付時間】9:30 - 17:30(営業日)
![]()
【受付時間】9:30 - 17:30(営業日)
オペレーションスタッフ
エクステリアプランナー有資格者の私たちにお任せください。
ショップ責任者
神(じん)
エクステリア プランナー
有資格者61名
1/3
木附
枡田
重富
吉澤
吉野
小東
池本
山田
佐藤
白崎
新西
伊野
次田
浅川
南
西山
小林
梨田
長谷川
藤田
阿重田
村上
植松
内田
久田
小野
平戸
中島
長石
水口
榮
山崎
清水
室谷
安田
水谷
酒井
神吉
日下部
山中
深田
田中
水田
西田
一氏
岡本
北
坂本
中嶋
岩野
伊藤
上中
高山
竹本
犬井
佐伯
谷川
原
丸山
塚田
松本
上内
島田
森
梅田
松山
山本
小林
倉地
山根
中原
河野
村上
土井
岩破
南
井上
三ツ股
小田
依藤
永禮
林
加藤
石藤
駒井
末吉
山本
芦野
樽井
野上
岡田
木村
池田
西村
藤澤
達川
奥原
那須
小西
森下
1/3
今週のPick Upページ
![]()
ご利用頂いたお客様の口コミ・レビューを「お客様の声」として掲載しております。
全てのご感想を掲載しておりますので、エクスショップの評判としてご参考ください。
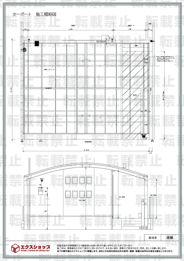
正式お見積りと一緒に提出させて頂いております「工事概略図面」もご覧頂けます。
商品や設置場所のご検討にお役立てください。
(写真No:19249811)
(カーポート)
| カラー | シャイングレー |
|---|---|
| サイズ | 幅 7,208mm 奥行 4,982mm |
| 屋根高等 | |
| 屋根材等 | |
| 工事方法 | 地域密着あんしん施工 |
現地調査からの図面が分かりやすく、仕上がりイメージがつきやすくて安心して発注できました。問い合わせに対する応答も早く丁寧で良かったです。工事担当の方の対応も丁寧で気持ち良く、また思った以上に早くきれいに仕上げていただけて良かったです。エクスショップにして良かったです。
この度は、エクスショップをご利用くださいまして、誠に有り難うございます。お客様より、このようなお言葉を頂き、大変嬉しく存じます。弊社はお客様にご満足して頂くために、迅速で丁寧な対応を心掛けております。今後益々精進して参りますので、また機会がございましたら、ぜひエクスショップにご用命くださいますよう、宜しくお願い致します。
当サイトは以下のセキュリティ機能や保護認定等を備えています。安心してお申し込みください
当サイトは256ビットSSL暗号化に対応しています。入力した個人情報は暗号化して送られますので、安心してご利用ください。
当社はJADMAの正会員です。同協会は法律で位置づけられた団体で、消費者の利益保護と業界の健全な発展の為に活動しています。
こちらの工事に使用しているエクステリア
![]()
フーゴ R 3台用(ラウンドスタイル)

工事費・税込
856,900円〜
総合平均評価(星5つ評価)
5
商品レビュー数
4件
フーゴ R 3台用(ラウンドスタイル)は大きく車を包み込むアーチ状の屋根が特徴的な3台横に並んで駐車ができるカーポートです。車高のある車にも適応できるH22柱を基本仕様としました。基準風速Vo=38m/s、20cm相当の積雪に対応する耐久性を有しています。
この商品の詳細へ
無料お見積り・現場調査・ご注文もこちら
関連するお客様の声

5つ星のうち4
岡山県A.A. 様回答日:2012年6月
エクスショップからのメールが分かりやすく丁寧でした。お問い合わせにも丁寧に対応していただき安心でした。

5つ星のうち5
岐阜県T.K. 様回答日:2011年4月
見積もりも早く対応してくれ、丁寧に説明していただいて、安心して発注できました。施工に来ていただいた方も、細かく打ち合わせして頂き、とても、きれいな仕事をして頂きました。

5つ星のうち5
大阪府U.K. 様回答日:2014年5月
今回はメーカー責任施工を選択させていただきました。採寸に来られた方の対応が丁寧でわかりやすかったです。また、工事担当の方もとても丁寧に対応していただき、とても満足しております。

5つ星のうち4
東京都O.S. 様回答日:2011年9月
カーポートの発注でしたが、見積もりも対応早く、図面もわかりやすく記載して頂いていたので良かったです。施工についても丁寧に施工して頂いたので、とても満足しています。

5つ星のうち4
岡山県T.M. 様回答日:2012年10月
質問にも丁寧に早く答えていただきました。現地調査,施工も丁寧に対応していだき満足しています。ありがとうございました。

5つ星のうち4
福岡県O.T. 様回答日:2012年3月
見積もりから工事日まで迅速な対応で安心して発注が出来た。特に工事担当の方にはこちらの要望を十分に聞いて頂き、丁寧な施工で出来上がりも申し分なく非常に感謝しています。

5つ星のうち4
愛媛県K.K. 様回答日:2012年11月
価格が安かったため少し不安がありましたが、電話やメールの対応が丁寧で安心でした。現地調査の方の対応もよく、カーポートの長さや高さの相談にものって頂き助かりました。出来上がりもきれいで満足しています。ありがとうございました。

5つ星のうち4
大分県M.K. 様回答日:2014年10月
最初はインターネットということもあり少し不安でしたが、工事担当の方が現地調査、相談にものっていただき、また対応も良かったので決定しました。

5つ星のうち5
兵庫県N.N. 様回答日:2012年7月
問い合わせに対して迅速・丁寧に対応して頂き、また、現場調査では分かりやすい説明を受けましたので安心して発注できました。仕上がりにも大変満足しています。

5つ星のうち4
愛媛県M.T. 様回答日:2012年3月
まず価格が安かったので、とりあえず現地調査に来ていただきました。担当者も親切な方だったので安心してお任せできると思い発注しました。
関連するブログ記事
関連するよくあるご質問
カーポートの設置と一緒に土間コンクリートを打設できますか?
【商品カテゴリ >カーポート】(ご質問No.707)
既存のカーポート屋根材の張り替えの依頼はできますか?
【商品カテゴリ >カーポート】(ご質問No.21)
以前購入したカーポートの部品のみを追加で購入する事は可能ですか?
【商品カテゴリ >カーポート】(ご質問No.48)
ワイドタイプのカーポートですが、横幅の切り詰めは可能ですか?
【商品カテゴリ >カーポート】(ご質問No.69)
カーポートって何ですか?
【商品カテゴリ >カーポート】(ご質問No.28910)
既存のカーポートの柱の高さを桁上げする事は可能ですか?
【商品カテゴリ >カーポート】(ご質問No.43)
既存のカーポートをいったん解体し、再度組み立てることは可能ですか?
【商品カテゴリ >カーポート】(ご質問No.46)
四国化成のFリードカーポート収納庫付きタイプは取り扱ってますか?
【商品カテゴリ >カーポート】(ご質問No.74)
既存カーポートの支柱を流用して、増設、縦列2台用のカーポートを設置することは可能ですか?
【商品カテゴリ >カーポート】(ご質問No.84)
四国化成のマイポートneoの取り扱いはありますか?
【商品カテゴリ >カーポート】(ご質問No.88)


















