バイク・自転車を雨風から保護
お家の収納能力をアップ
ガレージの保全・防犯にカーポートと合わせて
お庭に機能的スペースを作り出します
防犯、お家のドレスアップはこれで決まり
ガレージ商品とコンビで高級感を演出
各取扱メーカーの会社名、ロゴ及び商品名等は各社の商標または登録商標です。
| 日 | 月 | 火 | 水 | 木 | 金 | 土 |
|---|---|---|---|---|---|---|
| 1 | 2 | 3 | 4 | 5 | 6 | |
| 7 | 8 | 9 | 10 | 11 | 12 | 13 |
| 14 | 15 | 16 | 17 | 18 | 19 | 20 |
| 21 | 22 | 23 | 24 | 25 | 26 | 27 |
| 28 | 29 | 30 | 31 |
| 日 | 月 | 火 | 水 | 木 | 金 | 土 |
|---|---|---|---|---|---|---|
| 1 | 2 | 3 | ||||
| 4 | 5 | 6 | 7 | 8 | 9 | 10 |
| 11 | 12 | 13 | 14 | 15 | 16 | 17 |
| 18 | 19 | 20 | 21 | 22 | 23 | 24 |
| 25 | 26 | 27 | 28 | 29 | 30 | 31 |
…休業日(現場調査・工事は一部対応)
![]()
【受付時間】9:30 - 17:30(営業日)
![]()
【受付時間】9:30 - 17:30(営業日)
オペレーションスタッフ
エクステリアプランナー有資格者の私たちにお任せください。
ショップ責任者
神(じん)
エクステリア プランナー
有資格者61名
1/3
木附
枡田
重富
吉澤
吉野
小東
池本
山田
佐藤
白崎
新西
伊野
次田
浅川
南
西山
小林
梨田
長谷川
藤田
阿重田
村上
植松
内田
久田
小野
平戸
中島
長石
水口
榮
山崎
清水
室谷
安田
水谷
酒井
神吉
日下部
山中
深田
田中
水田
西田
一氏
岡本
北
坂本
中嶋
岩野
伊藤
上中
高山
竹本
犬井
佐伯
谷川
原
丸山
塚田
松本
上内
島田
森
梅田
松山
山本
小林
倉地
山根
中原
河野
村上
土井
岩破
南
井上
三ツ股
小田
依藤
永禮
林
加藤
石藤
駒井
末吉
山本
芦野
樽井
野上
岡田
木村
池田
西村
藤澤
達川
奥原
那須
小西
森下
1/3
今週のPick Upページ
![]()
ご利用頂いたお客様の口コミ・レビューを「お客様の声」として掲載しております。
全てのご感想を掲載しておりますので、エクスショップの評判としてご参考ください。
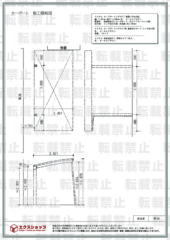
正式お見積りと一緒に提出させて頂いております「工事概略図面」もご覧頂けます。
商品や設置場所のご検討にお役立てください。
(写真No:19848011)
(カーポート)
| カラー | オータムブラウン |
|---|---|
| サイズ | 幅 2,401mm 奥行 4,980mm |
| 屋根高等 | ロング柱23仕様(有効高 約2,300mm) |
| 屋根材等 | 熱線吸収ポリカーボネート(ライトブルーマット調) |
| 工事方法 | 地域密着あんしん施工 |
電話で親切丁寧な対応を頂き、又施工業者様丁寧にして頂きました。もし、友人にカーポートを薦めるなら、エクスショップさんを推します。
この度はカーブポートシグマIII の施工をご依頼頂き、誠に有り難うございました。日々、どのような対応をすればお客様に安心してご利用頂けるかと、試行錯誤を繰り返しているスタッフにとりましては、このようなお褒めのお言葉が何よりの励みになります。熱線吸収ポリカーボネート(ライトブルーマット調)の屋根材を使用したカーポートは、雨や埃の他に有害な紫外線や太陽の熱もしっかり遮る、非常に機能的なお仕上がりでございますね。これからも、エクステリアの施工を通じて、豊かな暮らしのお手伝いが出来たらと考えております。また機会がございましたら、是非エクスショップにご用命頂きますよう宜しくお願い致します。
当サイトは以下のセキュリティ機能や保護認定等を備えています。安心してお申し込みください
当サイトは256ビットSSL暗号化に対応しています。入力した個人情報は暗号化して送られますので、安心してご利用ください。
当社はJADMAの正会員です。同協会は法律で位置づけられた団体で、消費者の利益保護と業界の健全な発展の為に活動しています。
こちらの工事に使用しているエクステリア
![]()
ネスカ R 1台用(ラウンドスタイル)

工事費・税込
137,800円〜
総合平均評価(星5つ評価)
4.71
商品レビュー数
1012件
ネスカ R 1台用(ラウンドスタイル)はラウンドタイプのアール屋根が特徴的な側方支柱カーポートです。本体カラーはシャイングレーを含めた全5色から、日差しからお車を守る屋根材は全6タイプ展開と種類に富む組み合わせが可能に。耐風性能は基準風速Vo=34m/s、耐積雪性能は20cm相当を対応しています。
この商品の詳細へ
無料お見積り・現場調査・ご注文もこちら
この商品のレビュー
商品レビュー1,012件

神奈川県 横須賀市 O.N.様
近所の方々からも、立派でかっこいいと言われています。

東京都 八王子市 S.N.様
とても満足しています。 ありがとうございました。

東京都 西東京市 F.N.様
大変満足しております。 思い切って、取り付けて良かったです。

奈良県 高市郡高取町 H.H.様
前回施工頂いたものがモデルチェンジしてましたが、問題なく感じてます。

愛知県 豊田市 U.R.様
商品の見た目はとても良いです、今のところ特に不満はありません。

大阪府 河内長野市 N.H.様
これまで支柱が4本あったのが2本になってすっきりです

茨城県 牛久市 T.Y.様
きれいで明るくなり近所の方も「頑丈そうね」と眺めていました。ロング柱が以外に高く強風だと吹き込みが予想以上でしたが背の高い1BOXも余裕で入りそうなので全体的に満足です。

大阪府 藤井寺市 Y.T.様
屋根材は透明色、適度に遮光され暗くありません。支柱高を有効高2500mmしたおかげで開放感があります。横殴りの雨でも濡れることはなく、支柱高を上げて良かったと思います。

大阪府 枚方市 N.T.様
まだ実際に利用していないので満足度は不明ですが、希望通りに施工していただけました。

東京都 小平市 H.T.様
屋根の色も白系の透明な屋根にしたので、昼間は明るく満足しています。

東京都 足立区 A.T.様
雨の吹き込みなどはまだ確認出来ていないが、見た目などに特に違和感なく問題なし。
関連するお客様の声

5つ星のうち5
東京都M.S. 様回答日:2021年1月
友人の家にあるカーポートを見せてもらいました。友人からの話を聞いて決断しました。取り付けてくれた業者は寒い中にも関わらず丁寧な作業をしてくれました。仕上がりを見て満足しています。

5つ星のうち5
広島県H.T. 様回答日:2015年5月
電話の対応も親切丁寧で感じ良く、現場に来た業者の方も感じ良く、気持ち良い取り引きが出来ました。また施工する事が近々あるので、迷わずエクスショップさんにお願いする予定です。

5つ星のうち5
宮崎県K.A. 様回答日:2020年11月
親切丁寧な対応で良かったです。設置して頂いた人も親切丁寧でした。エクスショップさんは、着信があったのでかけなおしたけど、1回も電話が繋がらず結局メールでのやり取りだけだったのは不安でした。

5つ星のうち5
岡山県S.Y. 様回答日:2011年12月
まず、対応の早さに驚きました。また、地元業者との価格の差に驚きました。その上、施工も低価格で対応して下さることに満足しました。今後も、エクステリアはエクスショップさんにお願いしようと思いますし、友人にも薦めています。

5つ星のうち5
大分県E.H. 様回答日:2013年12月
最初に電話した時から工事完了までとても良い対応でした。地域密着工事でしたが丁寧で安心できました。友人などにも紹介したいと思います。

5つ星のうち5
東京都S.T. 様回答日:2012年4月
現場調査、工事担当の方も丁寧な対応でとても満足のいく買い物ができました。友人にも紹介したいと思っています。

5つ星のうち5
千葉県T.T. 様回答日:2019年3月
親切丁寧な対応有難うございました。メール、電話での連絡が迅速で安心して買い物ができました。施工業者もわかりやすく説明していただき大変助かりました。

5つ星のうち5
東京都Y.H. 様回答日:2014年10月
見積もり、電話対応、施工業者の対応ともに満足しています。カーポートを検討する友人がいたら勧めたいと思います。

5つ星のうち5
千葉県I.Y. 様回答日:2012年3月
担当者の方がとても丁寧で御親切に案内をしていただいたので安心できました。友人にも紹介したいと思いました。

5つ星のうち5
福岡県Y.K. 様回答日:2018年10月
カーポートは特に欲しくはなかったのですが、友人の家を見て欲しくなって、取付たら家全体が見映えがよくなりました。
関連するブログ記事
関連するよくあるご質問
カーポートの設置と一緒に土間コンクリートを打設できますか?
【商品カテゴリ >カーポート】(ご質問No.707)
既存のカーポート屋根材の張り替えの依頼はできますか?
【商品カテゴリ >カーポート】(ご質問No.21)
以前購入したカーポートの部品のみを追加で購入する事は可能ですか?
【商品カテゴリ >カーポート】(ご質問No.48)
ワイドタイプのカーポートですが、横幅の切り詰めは可能ですか?
【商品カテゴリ >カーポート】(ご質問No.69)
カーポートって何ですか?
【商品カテゴリ >カーポート】(ご質問No.28910)
既存のカーポートの柱の高さを桁上げする事は可能ですか?
【商品カテゴリ >カーポート】(ご質問No.43)
既存のカーポートをいったん解体し、再度組み立てることは可能ですか?
【商品カテゴリ >カーポート】(ご質問No.46)
四国化成のFリードカーポート収納庫付きタイプは取り扱ってますか?
【商品カテゴリ >カーポート】(ご質問No.74)
既存カーポートの支柱を流用して、増設、縦列2台用のカーポートを設置することは可能ですか?
【商品カテゴリ >カーポート】(ご質問No.84)
四国化成のマイポートneoの取り扱いはありますか?
【商品カテゴリ >カーポート】(ご質問No.88)


















