バイク・自転車を雨風から保護
お家の収納能力をアップ
ガレージの保全・防犯にカーポートと合わせて
お庭に機能的スペースを作り出します
防犯、お家のドレスアップはこれで決まり
ガレージ商品とコンビで高級感を演出
各取扱メーカーの会社名、ロゴ及び商品名等は各社の商標または登録商標です。
| 日 | 月 | 火 | 水 | 木 | 金 | 土 |
|---|---|---|---|---|---|---|
| 1 | 2 | 3 | 4 | 5 | 6 | 7 |
| 8 | 9 | 10 | 11 | 12 | 13 | 14 |
| 15 | 16 | 17 | 18 | 19 | 20 | 21 |
| 22 | 23 | 24 | 25 | 26 | 27 | 28 |
| 日 | 月 | 火 | 水 | 木 | 金 | 土 |
|---|---|---|---|---|---|---|
| 1 | 2 | 3 | 4 | 5 | 6 | 7 |
| 8 | 9 | 10 | 11 | 12 | 13 | 14 |
| 15 | 16 | 17 | 18 | 19 | 20 | 21 |
| 22 | 23 | 24 | 25 | 26 | 27 | 28 |
| 29 | 30 | 31 |
…休業日(現場調査・工事は一部対応)
![]()
【受付時間】9:30 - 17:30(営業日)
![]()
【受付時間】9:30 - 17:30(営業日)
オペレーションスタッフ
エクステリアプランナー有資格者の私たちにお任せください。
ショップ責任者
神(じん)
エクステリア プランナー
有資格者61名
1/3
木附
枡田
重富
吉澤
吉野
小東
池本
山田
佐藤
白崎
新西
伊野
次田
南
西山
小林
阿重田
梨田
長谷川
藤田
村上
平戸
植松
内田
久田
中島
長石
水口
榮
山崎
清水
室谷
安田
水谷
小野
酒井
一氏
神吉
日下部
山中
深田
田中
水田
西田
岡本
丸山
北
坂本
中嶋
岩野
伊藤
上中
高山
原
犬井
佐伯
谷川
塚田
松本
小林
森下
上内
島田
森
梅田
松山
山本
小西
倉地
山根
中原
河野
村上
土井
岩破
南
井上
三ツ股
小田
依藤
永禮
林
加藤
石藤
駒井
末吉
山本
芦野
樽井
野上
岡田
木村
池田
西村
藤澤
達川
奥原
那須
1/3
今週のPick Upページ
![]()
ご利用頂いたお客様の口コミ・レビューを「お客様の声」として掲載しております。
全てのご感想を掲載しておりますので、エクスショップの評判としてご参考ください。
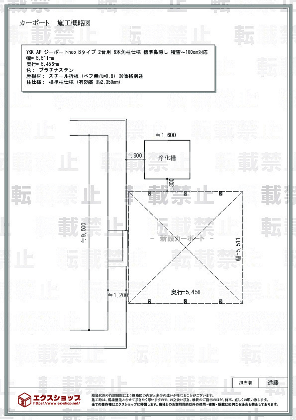
正式お見積りと一緒に提出させて頂いております「工事概略図面」もご覧頂けます。
商品や設置場所のご検討にお役立てください。
(写真No:18304518)
(カーポート)
| カラー | ブラウン |
|---|---|
| サイズ | 幅 5,511mm 奥行 5,456mm |
| 屋根高等 | 標準柱仕様(有効高 約2,350mm) |
| 屋根材等 | スチール折板(ペフ無/t=0.8) |
| 工事方法 | 地域密着あんしん施工 |
申し込んでから、メールでのやり取りも、順調に進みました。工事は近郊の造園会社でしっかりしていたので安心して任せられました。残念だったのは、防雪ネットを別途注文をしたのですが、ネットのタグが逆についていたところです。
この度は、エクスショップをご利用頂きまして、誠に有り難うございます。ジーポートneoが、堂々としていて、頼もしい存在でございますね。商品の不備がありましたこと、心からお詫び申し上げます。今後は、商品の確認を徹底し、お客様に100%ご満足頂けるよう、努めて参ります。また、機会がございましたら、エクスショップをご利用頂けますよう、宜しくお願い致します。
当サイトは以下のセキュリティ機能や保護認定等を備えています。安心してお申し込みください
当サイトはSSL暗号化に対応しています。入力した個人情報は暗号化して送られますので、安心してご利用ください。
当社はJADMAの正会員です。同協会は法律で位置づけられた団体で、消費者の利益保護と業界の健全な発展の為に活動しています。
こちらの工事に使用しているエクステリア
![]()
ジーポートPro 積雪100cm対応 2台用 6本柱 折板

工事費・税込
704,700円〜
総合平均評価(星5つ評価)
5
商品レビュー数
2件
ジーポートProは車を守る強さ、外観に馴染む意匠の美しさ、機能の豊かさを兼ね備えております。また、耐風性能46m/s、耐積雪性能100cmの耐久力があります。車2台分の駐車が可能なスペースを確保した安心感MAXの6本柱仕様のカーポートです。
この商品の詳細へ
無料お見積り・現場調査・ご注文もこちら
関連するお客様の声

5つ星のうち4
大阪府I.C. 様回答日:2012年6月
メールでのやり取りは簡単ではありますが、少し食い違いがあったように思います。思っていたのと少し違っていました。(出来上がり)工事は順調にして頂きとてもご丁寧な仕事をしてくださっていました。

5つ星のうち5
島根県M.D. 様回答日:2013年5月
注文からの流もスムーズで、施工は地元の造園会社のベテラン職人さんで人柄も良く、安心しておまかせすることができました。値段にも満足しています(^-^)

5つ星のうち4
鹿児島県I.K. 様回答日:2015年1月
ネットで注文したのは、メールでやり取りしたかったからということもあったのだが、何度も特に重要なことではない事で電話連絡があり煩わしかった。

5つ星のうち5
群馬県O.S. 様回答日:2014年1月
・現地調査に来た人が近郊の方(知っている方)で身近に感じ安心ができてよかった。・工事に来た人も地元の方で、施工も大変よかった。

5つ星のうち5
京都府U.Y. 様回答日:2017年5月
今回、エクスショップさんで二度目のカーポートの施工になります。以前のカーポートが、積雪20cmの商品で、前回の大雪で屋根が抜けてしまったので、雪対策と安心のためこちらの折半屋根の商品を注文しました。施行当日も前回と同じ職人さんが来られ、打ち合わせ後こちらの要望通りに施工していただけ、希望通りに設置してもらえました。施工、価格共に大変満足しております。

5つ星のうち5
新潟県I.T. 様回答日:2016年10月
子供たちの就職に伴い、車が増えたことでカーポートの増設が必要になりました。限られたスペースに設置できるかメールにて確認したところ、現地調査まで迅速に対応していただけました。施工業者さんの説明や作業も非常に丁寧で好感が持てました。既存のカーポートともバランスよく設置していただき満足しております。雪対策ができて安心です。

5つ星のうち4
群馬県U.K. 様回答日:2015年1月
近年の異常気象による想定外の雨・雪・風に耐える頑丈な物を捜した結果決めました。見るからに安心感のある、希望どおりの仕上がりになり満足です。担当者の方も私のくどい質問にも快く迅速に答えていただき感謝しています。次回もエクスショップさんにお願いしたいと思います。

5つ星のうち4
石川県F.H. 様回答日:2011年10月
最初はAタイプ(角柱4本)サイドパネル取付けで検討していたのですが、現地調査の段階でBタイプ(角柱6本)もあることを知り、両方の見積もりを出していただきました。価格含めて検討しBタイプにしました。また波板パネル材もカタログだけではよくわからなかったので後日現物を見せていただき決めました。商品、仕上がりには大変満足しています。ありがとうございました。

5つ星のうち5
福井県Y.Y. 様回答日:2011年8月
現場調査・見積もり・施工の流れの中での連絡(Eメール・電話)が非常に密で気持ちの良い対応でした。現場調査の際のアドバイスも親切で納得のいくものでした。家の前の道路が狭く、建替えという事もあり施工担当の方は苦労されたと思いますが、おかげ様で良い物が出来て大変満足しています。

5つ星のうち5
岡山県S.A. 様回答日:2026年1月
新築戸建の購入に伴い、カーポートとサイクルポートの設置を検討していました。インターネットで検索した際に上位に表示され、施工事例の画像やレビューを拝見して良さそうだと感じ、見積もりを依頼しました。見積もり内容の変更を何度かお願いしましたが、その都度迅速にご対応いただきました。また、工事日程の調整などについても小まめにご連絡をいただき、無事に完工することができました。
関連するブログ記事










関連するよくあるご質問
カーポートの設置と一緒に土間コンクリートを打設できますか?
【商品カテゴリ >カーポート】(ご質問No.707)
既存のカーポート屋根材の張り替えの依頼はできますか?
【商品カテゴリ >カーポート】(ご質問No.21)
以前購入したカーポートの部品のみを追加で購入する事は可能ですか?
【商品カテゴリ >カーポート】(ご質問No.48)
ワイドタイプのカーポートですが、横幅の切り詰めは可能ですか?
【商品カテゴリ >カーポート】(ご質問No.69)
カーポートって何ですか?
【商品カテゴリ >カーポート】(ご質問No.28910)
既存のカーポートの柱の高さを桁上げする事は可能ですか?
【商品カテゴリ >カーポート】(ご質問No.43)
既存のカーポートをいったん解体し、再度組み立てることは可能ですか?
【商品カテゴリ >カーポート】(ご質問No.46)
四国化成のFリードカーポート収納庫付きタイプは取り扱ってますか?
【商品カテゴリ >カーポート】(ご質問No.74)
既存カーポートの支柱を流用して、増設、縦列2台用のカーポートを設置することは可能ですか?
【商品カテゴリ >カーポート】(ご質問No.84)
四国化成のマイポートneoの取り扱いはありますか?
【商品カテゴリ >カーポート】(ご質問No.88)


















